賃貸マンション
ガラ・ステーション四谷三丁目の賃貸物件情報(1K/3階)
| 家賃 | 管理費等 | 敷金 | 礼金 | 間取り | 専有面積 |
|---|---|---|---|---|---|
| 9.7万円 | 9,000円 | 9.7万円 | 19.4万円 | 1K | 23.92m2 |
入居決定でお祝い金最大100,000円
- 保証金
- -
- 償却・敷引
- -
- 築年数
- 築23年
- 所在階
- 3階
- 向き
- 西
Point
初期費用分割払い可能☆最大24ヶ月払い☆カード決済も対応しております!!遠方の方や忙しい方向けオンライン内見実施中☆
提供:PRA(株)青山店(SUUMO経由)

詳細情報 ガラ・ステーション四谷三丁目
物件紹介
ガラ・ステーション四谷三丁目は東京メトロ丸ノ内線四谷三丁目駅から徒歩1分にあり、駅近で通勤通学に便利なマンションです。
このお部屋は2階以上に位置しているので、通行人や周囲の住人からの視線が気になりにくく、防犯面でも安心。建物のエントランスはオートロックがついており、インターホンにはTVモニタもついているため、相手の顔を確認してから来客対応することができます。
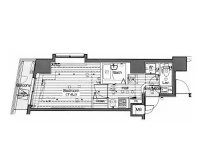
人気の角部屋で周囲の居住者の生活音も気になりにくく、また、フローリングのお部屋なのでお掃除もラクラク。キッチンはシステムキッチン仕様になっていますので、お料理好きの方にもぴったり。バス・トイレは別なので、のんびりお風呂タイムも楽しめるでしょう。また、雨の日でも浴室乾燥機を使えば、お洗濯も問題ありません。
通信設備面では、インターネット接続が可能です。また、BSアンテナ・CSアンテナがありCATVにも対応しているので、おうち時間も充実するでしょう(別途工事、契約料が必要な場合あり)。
建物にはエレベーターがついているので、重い荷物があっても安心。共用部には宅配ボックスが設定されているので、不在の時にも荷物を受け取ることができます。
このお部屋は2階以上に位置しているので、通行人や周囲の住人からの視線が気になりにくく、防犯面でも安心。建物のエントランスはオートロックがついており、インターホンにはTVモニタもついているため、相手の顔を確認してから来客対応することができます。
人気の角部屋で周囲の居住者の生活音も気になりにくく、また、フローリングのお部屋なのでお掃除もラクラク。キッチンはシステムキッチン仕様になっていますので、お料理好きの方にもぴったり。バス・トイレは別なので、のんびりお風呂タイムも楽しめるでしょう。また、雨の日でも浴室乾燥機を使えば、お洗濯も問題ありません。
通信設備面では、インターネット接続が可能です。また、BSアンテナ・CSアンテナがありCATVにも対応しているので、おうち時間も充実するでしょう(別途工事、契約料が必要な場合あり)。
建物にはエレベーターがついているので、重い荷物があっても安心。共用部には宅配ボックスが設定されているので、不在の時にも荷物を受け取ることができます。
お金・契約の情報
※「-」と表示されているものは、実際は料金が発生するものもございます。詳細はお問い合わせください。
| 家賃 | 9.7万円 | 管理費・共益費 | 9,000円 |
|---|---|---|---|
| 敷金 | 9.7万円 | 礼金 | 19.4万円 |
| 入居決定でお祝い金最大100,000円 | |||
| 保証金 | - | 償却・敷引 | - |
| 住宅保険料 | - | 更新料 | - |
| 保証会社利用 | 必須 | 保証会社名 | - |
| 保証会社費用 | - | 保証会社備考 | 保証会社利用必 初回保証委託料:月額賃料等の50%、月次保証料:賃料等の1.2% Casa |
| 契約形態 | - | 契約期間 | - |
| 入居・引渡期間 | - | 現況 | - |
| 契約備考 | 通勤管理 合計2.31万円(内訳:鍵交換代2.31万円) 更新料 新賃料1.00ヶ月分 室内清掃費用 51700円 1K 普通借家2年 損保【2.6万円2年】 バストイレ別、バルコニー、エアコン、ガスコンロ対応、クロゼット、TVインターホン、浴室乾燥機、オートロック、室内洗濯置、陽当り良好、シューズボックス、システムキッチン、角住戸、温水洗浄便座、エレベーター、2口コンロ、駐輪場、宅配ボックス、CATV、閑静な住宅地、2面採光、BS・CS、防犯カメラ、出窓、保証人不要、全居室フローリング、ディンプルキー、ネット専用回線、眺望良好、人感照明センサー、耐火構造、耐震構造、防犯ガラス、高気密住宅、2駅利用可、3駅以上利用可、駅前、防犯強化地域、駅徒歩5分以内、駅徒歩10分以内、耐風構造、24時間ゴミ出し可、敷地内ごみ置き場、日勤管理、備付食器棚、都市ガス、通風良好 入居日:'26年2月上旬 | ||
部屋の情報
| 間取り | 1K | 専有面積 | 23.92m2 |
|---|---|---|---|
| 所在階 / 向き | 3階 / 西 | バルコニー面積 | - |
| 水道 / ガス | - | ||
| 設備 | バス・トイレ別、2階以上、オートロック、テレビドアホン、宅配ボックス、浴室乾燥機、インターネット対応、システムキッチン、エアコン、エレベーター、温水洗浄便座、角部屋、バルコニー、フローリング、2口コンロ、コンロ:ガス、CATV、CSアンテナ、BSアンテナ、洗濯機:室内 | ||
| 当社物件ID | 158586052 | ||
建物の情報
| 建物名 | ガラ・ステーション四谷三丁目 | ||
|---|---|---|---|
| 所在地 | 東京都新宿区舟町 | ||
| 交通 | 東京メトロ丸ノ内線 四谷三丁目駅 徒歩1分 都営新宿線 曙橋駅 徒歩7分 東京メトロ丸ノ内線 新宿御苑前駅 徒歩11分 | ||
| 階数 | 14階建 | 総戸数 | 85戸 |
| 築年月 | 2003年08月 / 築23年 | エレベーター | あり |
| 駐車場 | なし | バイク置き場 | - |
| 駐輪場 | あり | 管理人/管理会社 | - |
| 周辺環境 | その他 ローソン 四谷左門町店(コンビニ)まで336m | ||
| 建物種別 | マンション | 建物構造 | SRC(鉄骨鉄筋コンクリート) |
この部屋の取扱い不動産会社
| 会社名 | Ptif(株)(SUUMO経由) | ||
|---|---|---|---|
| 所在地 | 東京都港区北青山1-3-3 6階 | 交通 | - |
| 営業時間 | 9:00~21:00 | 定休日 | 年中無休です! |
| 免許番号 | 東京都知事107647 | 取引態様 | 仲介 |
| 不動産会社管理番号 | 100481621163 | 当社管理番号 | 89 |
| 所属団体 | (公社)東京都宅地建物取引業協会会員 | ||
| 公正取引協議会 | (公社)首都圏不動産公正取引協議会加盟 | ||
| 取扱い物件情報 | 物件詳細へ | ||
※各種情報と現状に差異がある場合は、現状優先となります。問い合わせをすることで、より詳しい条件、情報を確認する事ができます。
提供:Ptif(株)(SUUMO経由)
この物件が気になったら掲載期限まであと10日
ガラ・ステーション四谷三丁目に条件(家賃・エリア)が近い物件一覧
| 写真 | 家賃 管理費等 | 敷金 礼金 | 間取り 専有面積 | 築年数 | 最寄り駅 所在地 | キープ | 詳細 |
|---|---|---|---|---|---|---|---|
マンション グランハイツ1(ワンルーム/2階) | |||||||
![]() | 6.5万円 2,000円 | 6.5万円 なし | ワンルーム 15.25m2 | 築35年 | 東京地下鉄丸ノ内線 新大塚駅 徒歩4分 東京地下鉄有楽町線 護国寺駅 徒歩10分 山手線 大塚駅(東京) 徒歩14分 東京都文京区大塚5丁目 | 詳細を見る | |
マンション ラフィーネ音羽(1K/7階) | |||||||
![]() | 11.5万円 9,000円 | 11.5万円 11.5万円 | 1K 21.24m2 | 築7年 | 東京地下鉄有楽町線 江戸川橋駅 徒歩4分 東京地下鉄有楽町線 護国寺駅 徒歩6分 東京地下鉄丸ノ内線 茗荷谷駅 徒歩13分 東京都文京区音羽1丁目 | 詳細を見る | |
マンション レジディア新御茶ノ水(1K/8階) | |||||||
![]() | 12.6万円 1万円 | なし なし | 1K 21.66m2 | 築20年 | 東京都新宿線 小川町駅(東京) 徒歩2分 東京地下鉄千代田線 新御茶ノ水駅 徒歩3分 東京都千代田区神田小川町2丁目 | 詳細を見る | |
マンション 日興ロイヤルパレス白山(1DK/4階) | |||||||
![]() | 14.5万円 なし | 14.5万円 14.5万円 | 1DK 39.22m2 | 築35年 | 東京都三田線 千石駅 徒歩6分 東京都三田線 白山駅(東京) 徒歩7分 東京地下鉄南北線 本駒込駅 徒歩8分 東京都文京区白山5丁目 | 詳細を見る | |
マンション 芙蓉マンション(1LDK/1階) | |||||||
![]() | 10.3万円 5,000円 | 10.3万円 10.3万円 | 1LDK 30m2 | 築52年 | 東京地下鉄丸ノ内線 茗荷谷駅 徒歩4分 東京地下鉄有楽町線 江戸川橋駅 徒歩14分 東京地下鉄有楽町線 護国寺駅 徒歩15分 東京都文京区小日向4丁目 | 詳細を見る | |
マンション THEATER COURT本駒込(1K/3階) | |||||||
![]() | 12.8万円 1万円 | 12.8万円 なし | 1K 26m2 | 築3年 | 東京地下鉄南北線 本駒込駅 徒歩6分 東京地下鉄南北線 駒込駅 徒歩10分 東京都三田線 千石駅 徒歩10分 東京都文京区本駒込3丁目 | 詳細を見る | |
マンション ルーチェ六義園(1K/1階) | |||||||
![]() | 14万円 なし | 14万円 14万円 | 1K 28.92m2 | 築5年 | 山手線 巣鴨駅 徒歩6分 東京都三田線 千石駅 徒歩7分 東京都文京区本駒込6丁目 | 詳細を見る | |
マンション リヴシティ飯田橋(1K/2階) | |||||||
![]() | 14万円 1万円 | なし 14万円 | 1K 30.35m2 | 築5年 | 総武・中央緩行線 飯田橋駅 徒歩12分 東京都大江戸線 飯田橋駅 徒歩12分 東京地下鉄有楽町線 飯田橋駅 徒歩12分 東京都文京区水道1丁目 | 詳細を見る | |









