賃貸マンション
南千住5丁目計画の賃貸物件情報(ワンルーム/1階)
| 家賃 | 管理費等 | 敷金 | 礼金 | 間取り | 専有面積 |
|---|---|---|---|---|---|
| 11.5万円 | 1万円 | 11.5万円 | 11.5万円 | ワンルーム | 25.78m2 |
入居決定でお祝い金最大100,000円
- 保証金
- -
- 償却・敷引
- -
- 築年数
- 築1年
- 所在階
- 1階
- 向き
- 北
Point
3月賃料フリーレントキャンペーン。新築。3線利用可
提供:(株)NCM(SUUMO経由)

詳細情報 南千住5丁目計画
物件紹介
南千住5丁目計画は東京メトロ日比谷線南千住駅から徒歩4分にあり、駅近で通勤通学に便利なマンションです。
建物のエントランスはオートロックがついており、防犯性が高くなっています。
こちらは楽器相談が可能な物件。楽器演奏をお考えの方はぜひ相談してみてください。人気の角部屋で周囲の居住者の生活音も気になりにくく、また、フローリングのお部屋なのでお掃除もラクラク。キッチンはシステムキッチン仕様になっていますので、お料理好きの方にもぴったり。バス・トイレは別なので、のんびりお風呂タイムも楽しめるでしょう。また、雨の日でも浴室乾燥機を使えば、お洗濯も問題ありません。
建物にはエレベーターがついているので、重い荷物があっても安心。共用部には宅配ボックスが設定されているので、不在の時にも荷物を受け取ることができます。また、ペット飼育の相談ができますので、あなたの大切な家族の一員も快適に暮らせるか、ぜひ確認してみてください。
建物のエントランスはオートロックがついており、防犯性が高くなっています。
こちらは楽器相談が可能な物件。楽器演奏をお考えの方はぜひ相談してみてください。人気の角部屋で周囲の居住者の生活音も気になりにくく、また、フローリングのお部屋なのでお掃除もラクラク。キッチンはシステムキッチン仕様になっていますので、お料理好きの方にもぴったり。バス・トイレは別なので、のんびりお風呂タイムも楽しめるでしょう。また、雨の日でも浴室乾燥機を使えば、お洗濯も問題ありません。
建物にはエレベーターがついているので、重い荷物があっても安心。共用部には宅配ボックスが設定されているので、不在の時にも荷物を受け取ることができます。また、ペット飼育の相談ができますので、あなたの大切な家族の一員も快適に暮らせるか、ぜひ確認してみてください。
お金・契約の情報
※「-」と表示されているものは、実際は料金が発生するものもございます。詳細はお問い合わせください。
| 家賃 | 11.5万円 | 管理費・共益費 | 1万円 |
|---|---|---|---|
| 敷金 | 11.5万円 | 礼金 | 11.5万円 |
| 入居決定でお祝い金最大100,000円 | |||
| 保証金 | - | 償却・敷引 | - |
| 住宅保険料 | - | 更新料 | - |
| 保証会社利用 | 必須 | 保証会社名 | 日本セーフティー |
| 保証会社費用 | - | 保証会社備考 | 日本セーフティー利用必 エポスも可 (どちらも初回保証料50%) |
| 契約形態 | - | 契約期間 | - |
| 入居・引渡期間 | 相談 | 現況 | - |
| 入居可能条件 | 楽器相談、ペット相談 | ||
| 契約備考 | 巡回管理 ハウスクリーニング費用(税込) Aタイプ44000円 B・Cタイプ49500円エアコンクリーニング費用(税込) 13200円 ワンルーム 単身者可/ペット相談/楽器相談/事務所利用不可 普通借家2年 損保【1.7万円2年】 バストイレ別、エアコン、クロゼット、フローリング、浴室乾燥機、オートロック、システムキッチン、追焚機能浴室、角住戸、温水洗浄便座、エレベーター、洗面所独立、宅配ボックス、オートバス、二人入居相談、駅まで平坦、3沿線以上利用可、駅徒歩10分以内、都市ガス、室内物干機、玄関収納 | ||
部屋の情報
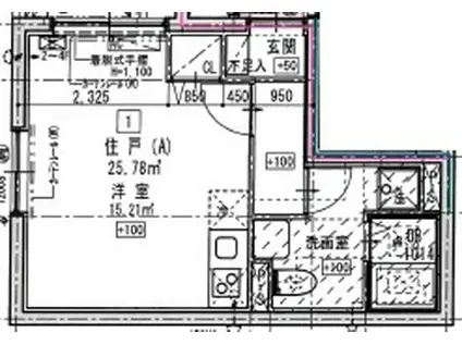
| 間取り | ワンルーム | 専有面積 | 25.78m2 |
|---|---|---|---|
| 所在階 / 向き | 1階 / 北 | バルコニー面積 | - |
| 水道 / ガス | - | ||
| 設備 | バス・トイレ別、オートロック、宅配ボックス、浴室乾燥機、追い焚き、システムキッチン、エアコン、エレベーター、温水洗浄便座、角部屋、フローリング、洗髪洗面化粧台 | ||
| 当社物件ID | 160503930 | ||
建物の情報
| 建物名 | 南千住5丁目計画 | ||
|---|---|---|---|
| 所在地 | 東京都荒川区南千住 | ||
| 交通 | 東京メトロ日比谷線 南千住駅 徒歩4分 つくばエクスプレス 南千住駅 徒歩4分 JR常磐線 南千住駅 徒歩4分 | ||
| 階数 | 5階建 | 総戸数 | - |
| 築年月 | 2026年02月 / 築1年 | エレベーター | あり |
| 駐車場 | なし | バイク置き場 | - |
| 駐輪場 | - | 管理人/管理会社 | - |
| 周辺環境 | その他 BiVi南千住(ショッピングセンター)まで640m その他 LaLaテラス南千住(ショッピングセンター)まで765m その他 くすりの福太郎南千住6丁目店(ドラッグストア)まで586m その他 まいばすけっと南千住5丁目店(スーパー)まで182m その他 デニーズ南千住店(飲食店)まで258m その他 ファミリーマートワタナベ南千住店(コンビニ)まで282m | ||
| 建物種別 | マンション | 建物構造 | RC(鉄筋コンクリート) |
この部屋の取扱い不動産会社
| 会社名 | (株)NCM(SUUMO経由) | ||
|---|---|---|---|
| 所在地 | 東京都江東区東陽5-13-1 | 交通 | - |
| 営業時間 | - | 定休日 | - |
| 免許番号 | 東京都知事89101 | 取引態様 | 代理 |
| 不動産会社管理番号 | 100491658544 | 当社管理番号 | 89 |
| 所属団体 | (公社)全日本不動産協会東京都本部会員 | ||
| 公正取引協議会 | (公社)首都圏不動産公正取引協議会加盟 | ||
| 取扱い物件情報 | 物件詳細へ | ||
※各種情報と現状に差異がある場合は、現状優先となります。問い合わせをすることで、より詳しい条件、情報を確認する事ができます。
提供:(株)NCM(SUUMO経由)
この物件が気になったら掲載期限まであと6日
南千住5丁目計画に条件(家賃・エリア)が近い物件一覧
| 写真 | 家賃 管理費等 | 敷金 礼金 | 間取り 専有面積 | 築年数 | 最寄り駅 所在地 | キープ | 詳細 |
|---|---|---|---|---|---|---|---|
マンション エストゥルース両国Ⅱ(1K/4階) | |||||||
![]() | 11万円 1万円 | なし なし | 1K 25.77m2 | 築6年 | 東京都大江戸線 両国駅 徒歩8分 東京都大江戸線 蔵前駅 徒歩10分 総武・中央緩行線 両国駅 徒歩14分 東京都墨田区石原1丁目 | 詳細を見る | |
マンション パークアクシス東上野(1K/11階) | |||||||
![]() | 13.1万円 1万円 | 13.1万円 13.1万円 | 1K 25.83m2 | 築12年 | 東京地下鉄銀座線 稲荷町駅(東京) 徒歩7分 山手線 上野駅 徒歩10分 つくばエクスプレス 浅草駅(つくばEXP) 徒歩11分 東京都台東区東上野6丁目 | 詳細を見る | |
マンション スアヴィス三ノ輪(1LDK/5階) | |||||||
![]() | 17.6万円 9,400円 | なし 26.4万円 | 1LDK 43.08m2 | 築2年 | 東京地下鉄日比谷線 三ノ輪駅 徒歩4分 つくばエクスプレス 南千住駅 徒歩16分 常磐線 南千住駅 徒歩19分 東京都台東区三ノ輪1丁目 | 詳細を見る | |
マンション エルフォルテ東京イースト(1LDK/3階) | |||||||
![]() | 16.2万円 2万円 | 16.2万円 16.2万円 | 1LDK 40.6m2 | 築6年 | 東京地下鉄日比谷線 三ノ輪駅 徒歩6分 東京都荒川線 三ノ輪橋駅 徒歩9分 常磐線 南千住駅 徒歩10分 東京都台東区日本堤2丁目 | 詳細を見る | |
マンション ロアール御茶ノ水順天堂大学前(1K/2階) | |||||||
![]() | 9万円 1万円 | なし 9万円 | 1K 20.96m2 | 築24年 | 東京地下鉄丸ノ内線 本郷三丁目駅 徒歩5分 東京都大江戸線 本郷三丁目駅 徒歩5分 東京地下鉄丸ノ内線 御茶ノ水駅 徒歩8分 東京都文京区本郷2丁目 | 詳細を見る | |
マンション BRILLIA IST 浅草橋(1LDK/9階) | |||||||
![]() | 15.6万円 1.5万円 | なし なし | 1LDK 33.2m2 | 築5年 | 総武・中央緩行線 浅草橋駅 徒歩2分 東京都浅草線 浅草橋駅 徒歩4分 総武本線 馬喰町駅 徒歩7分 東京都台東区浅草橋1丁目 | 詳細を見る | |
マンション DECOR RESIDENCE田原町(1K/1階) | |||||||
![]() | 11.7万円 1万円 | なし なし | 1K 23.04m2 | 築1年 | 東京地下鉄銀座線 田原町駅(東京) 徒歩5分 つくばエクスプレス 浅草駅(つくばEXP) 徒歩6分 東京地下鉄銀座線 稲荷町駅(東京) 徒歩12分 東京都台東区西浅草2丁目 | 詳細を見る | |
マンション S-RESIDENCE 新御徒町 ウエスト(1K/2階) | |||||||
![]() | 12万円 1.4万円 | なし なし | 1K 25.5m2 | 築8年 | 東京都大江戸線 新御徒町駅 徒歩4分 東京地下鉄日比谷線 仲御徒町駅 徒歩8分 山手線 御徒町駅 徒歩11分 東京都台東区小島1丁目 | 詳細を見る | |








