賃貸マンション
南千住5丁目計画の賃貸物件情報(ワンルーム/5階)
| 家賃 | 管理費等 | 敷金 | 礼金 | 間取り | 専有面積 |
|---|---|---|---|---|---|
| 11.9万円 | 1万円 | 11.9万円 | 11.9万円 | ワンルーム | 25.78m2 |
入居決定でお祝い金最大100,000円
- 保証金
- -
- 償却・敷引
- -
- 築年数
- 築1年
- 所在階
- 5階
- 向き
- 北
Point
3月賃料フリーレントキャンペーン。新築。3線利用可
提供:(株)NCM(SUUMO経由)

詳細情報 南千住5丁目計画
物件紹介
南千住5丁目計画は東京メトロ日比谷線南千住駅から徒歩4分にあり、駅近で通勤通学に便利なマンションです。
このお部屋は2階以上に位置しているので通行人や周囲の住人からの視線が気になりにくく、建物のエントランスはオートロックがついているので防犯性が高くなっています。
こちらは楽器相談が可能な物件。楽器演奏をお考えの方はぜひ相談してみてください。人気の角部屋で周囲の居住者の生活音も気になりにくく、また、フローリングのお部屋なのでお掃除もラクラク。キッチンはシステムキッチン仕様になっていますので、お料理好きの方にもぴったり。バス・トイレは別なので、のんびりお風呂タイムも楽しめるでしょう。また、雨の日でも浴室乾燥機を使えば、お洗濯も問題ありません。
建物にはエレベーターがついているので、重い荷物があっても安心。共用部には宅配ボックスが設定されているので、不在の時にも荷物を受け取ることができます。また、ペット飼育の相談ができますので、あなたの大切な家族の一員も快適に暮らせるか、ぜひ確認してみてください。
このお部屋は2階以上に位置しているので通行人や周囲の住人からの視線が気になりにくく、建物のエントランスはオートロックがついているので防犯性が高くなっています。
こちらは楽器相談が可能な物件。楽器演奏をお考えの方はぜひ相談してみてください。人気の角部屋で周囲の居住者の生活音も気になりにくく、また、フローリングのお部屋なのでお掃除もラクラク。キッチンはシステムキッチン仕様になっていますので、お料理好きの方にもぴったり。バス・トイレは別なので、のんびりお風呂タイムも楽しめるでしょう。また、雨の日でも浴室乾燥機を使えば、お洗濯も問題ありません。
建物にはエレベーターがついているので、重い荷物があっても安心。共用部には宅配ボックスが設定されているので、不在の時にも荷物を受け取ることができます。また、ペット飼育の相談ができますので、あなたの大切な家族の一員も快適に暮らせるか、ぜひ確認してみてください。
お金・契約の情報
※「-」と表示されているものは、実際は料金が発生するものもございます。詳細はお問い合わせください。
| 家賃 | 11.9万円 | 管理費・共益費 | 1万円 |
|---|---|---|---|
| 敷金 | 11.9万円 | 礼金 | 11.9万円 |
| 入居決定でお祝い金最大100,000円 | |||
| 保証金 | - | 償却・敷引 | - |
| 住宅保険料 | - | 更新料 | - |
| 保証会社利用 | 必須 | 保証会社名 | 日本セーフティー |
| 保証会社費用 | - | 保証会社備考 | 日本セーフティー利用必 エポスも可 (どちらも初回保証料50%) |
| 契約形態 | - | 契約期間 | - |
| 入居・引渡期間 | 相談 | 現況 | - |
| 入居可能条件 | 楽器相談、ペット相談 | ||
| 契約備考 | 巡回管理 ハウスクリーニング費用(税込) Aタイプ44000円 B・Cタイプ49500円エアコンクリーニング費用(税込) 13200円 ワンルーム 単身者可/ペット相談/楽器相談/事務所利用不可 普通借家2年 損保【1.7万円2年】 バストイレ別、エアコン、クロゼット、フローリング、浴室乾燥機、オートロック、システムキッチン、追焚機能浴室、角住戸、温水洗浄便座、エレベーター、洗面所独立、宅配ボックス、オートバス、二人入居相談、駅まで平坦、3沿線以上利用可、駅徒歩10分以内、都市ガス、室内物干機、玄関収納 | ||
部屋の情報
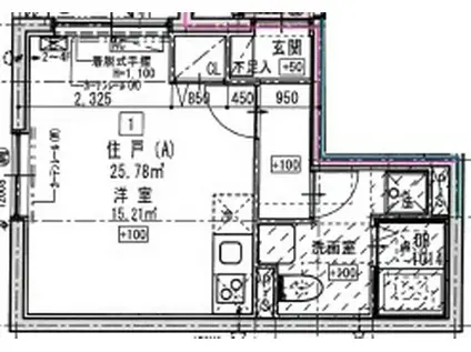
| 間取り | ワンルーム | 専有面積 | 25.78m2 |
|---|---|---|---|
| 所在階 / 向き | 5階 / 北 | バルコニー面積 | - |
| 水道 / ガス | - | ||
| 設備 | バス・トイレ別、2階以上、オートロック、宅配ボックス、浴室乾燥機、追い焚き、システムキッチン、エアコン、エレベーター、温水洗浄便座、角部屋、フローリング、洗髪洗面化粧台 | ||
| 当社物件ID | 160503909 | ||
建物の情報
| 建物名 | 南千住5丁目計画 | ||
|---|---|---|---|
| 所在地 | 東京都荒川区南千住 | ||
| 交通 | 東京メトロ日比谷線 南千住駅 徒歩4分 つくばエクスプレス 南千住駅 徒歩4分 JR常磐線 南千住駅 徒歩4分 | ||
| 階数 | 5階建 | 総戸数 | - |
| 築年月 | 2026年02月 / 築1年 | エレベーター | あり |
| 駐車場 | なし | バイク置き場 | - |
| 駐輪場 | - | 管理人/管理会社 | - |
| 周辺環境 | その他 BiVi南千住(ショッピングセンター)まで640m その他 LaLaテラス南千住(ショッピングセンター)まで765m その他 くすりの福太郎南千住6丁目店(ドラッグストア)まで586m その他 まいばすけっと南千住5丁目店(スーパー)まで182m その他 デニーズ南千住店(飲食店)まで258m その他 ファミリーマートワタナベ南千住店(コンビニ)まで282m | ||
| 建物種別 | マンション | 建物構造 | RC(鉄筋コンクリート) |
この部屋の取扱い不動産会社
| 会社名 | (株)NCM(SUUMO経由) | ||
|---|---|---|---|
| 所在地 | 東京都江東区東陽5-13-1 | 交通 | - |
| 営業時間 | - | 定休日 | - |
| 免許番号 | 東京都知事89101 | 取引態様 | 代理 |
| 不動産会社管理番号 | 100491656303 | 当社管理番号 | 89 |
| 所属団体 | (公社)全日本不動産協会東京都本部会員 | ||
| 公正取引協議会 | (公社)首都圏不動産公正取引協議会加盟 | ||
| 取扱い物件情報 | 物件詳細へ | ||
※各種情報と現状に差異がある場合は、現状優先となります。問い合わせをすることで、より詳しい条件、情報を確認する事ができます。
提供:(株)NCM(SUUMO経由)
この物件が気になったら掲載期限まであと6日
南千住5丁目計画に条件(家賃・エリア)が近い物件一覧
| 写真 | 家賃 管理費等 | 敷金 礼金 | 間取り 専有面積 | 築年数 | 最寄り駅 所在地 | キープ | 詳細 |
|---|---|---|---|---|---|---|---|
マンション エルフォルテ東京イースト(1LDK/3階) | |||||||
![]() | 16.2万円 2万円 | 16.2万円 16.2万円 | 1LDK 40.6m2 | 築6年 | 東京地下鉄日比谷線 三ノ輪駅 徒歩6分 東京都荒川線 三ノ輪橋駅 徒歩9分 常磐線 南千住駅 徒歩10分 東京都台東区日本堤2丁目 | 詳細を見る | |
マンション BRILLIA IST 浅草橋(1LDK/9階) | |||||||
![]() | 15.6万円 1.5万円 | なし なし | 1LDK 33.2m2 | 築5年 | 総武・中央緩行線 浅草橋駅 徒歩2分 東京都浅草線 浅草橋駅 徒歩4分 総武本線 馬喰町駅 徒歩7分 東京都台東区浅草橋1丁目 | 詳細を見る | |
マンション エストゥルース両国Ⅱ(1K/4階) | |||||||
![]() | 11万円 1万円 | なし なし | 1K 25.77m2 | 築6年 | 東京都大江戸線 両国駅 徒歩8分 東京都大江戸線 蔵前駅 徒歩10分 総武・中央緩行線 両国駅 徒歩14分 東京都墨田区石原1丁目 | 詳細を見る | |
マンション ロアール御茶ノ水順天堂大学前(1K/2階) | |||||||
![]() | 9万円 1万円 | なし 9万円 | 1K 20.96m2 | 築24年 | 東京地下鉄丸ノ内線 本郷三丁目駅 徒歩5分 東京都大江戸線 本郷三丁目駅 徒歩5分 東京地下鉄丸ノ内線 御茶ノ水駅 徒歩8分 東京都文京区本郷2丁目 | 詳細を見る | |
マンション S-RESIDENCE 新御徒町 ウエスト(1K/2階) | |||||||
![]() | 12万円 1.4万円 | なし なし | 1K 25.5m2 | 築8年 | 東京都大江戸線 新御徒町駅 徒歩4分 東京地下鉄日比谷線 仲御徒町駅 徒歩8分 山手線 御徒町駅 徒歩11分 東京都台東区小島1丁目 | 詳細を見る | |
マンション パークアクシス東上野(1K/11階) | |||||||
![]() | 13.1万円 1万円 | 13.1万円 13.1万円 | 1K 25.83m2 | 築12年 | 東京地下鉄銀座線 稲荷町駅(東京) 徒歩7分 山手線 上野駅 徒歩10分 つくばエクスプレス 浅草駅(つくばEXP) 徒歩11分 東京都台東区東上野6丁目 | 詳細を見る | |
マンション スアヴィス三ノ輪(1LDK/5階) | |||||||
![]() | 17.6万円 9,400円 | なし 26.4万円 | 1LDK 43.08m2 | 築2年 | 東京地下鉄日比谷線 三ノ輪駅 徒歩4分 つくばエクスプレス 南千住駅 徒歩16分 常磐線 南千住駅 徒歩19分 東京都台東区三ノ輪1丁目 | 詳細を見る | |
マンション プラウドフラット浅草アベニュー(1LDK/15階) | |||||||
![]() | 18.7万円 1.2万円 | 18.7万円 18.7万円 | 1LDK 40.35m2 | 築4年 | つくばエクスプレス 浅草駅(つくばEXP) 徒歩7分 東京地下鉄日比谷線 入谷駅(東京) 徒歩11分 東京地下鉄銀座線 田原町駅(東京) 徒歩13分 東京都台東区千束1丁目 | 詳細を見る | |








