賃貸マンション
ヒルクレスト 寺塚の賃貸物件情報(2DK/7階)
| 家賃 | 管理費等 | 敷金 | 礼金 | 間取り | 専有面積 |
|---|---|---|---|---|---|
| 7.4万円 | 5,000円 | なし | 14.8万円 | 2DK | 45.33m2 |
入居決定でお祝い金最大100,000円
- 保証金
- -
- 償却・敷引
- -
- 築年数
- 築4年
- 所在階
- 7階
- 向き
- 東
Point
浴室乾燥機、追焚機能、温水便座、ペアガラス、エアコン、シャンプードレッサー、カウンターキッチン、モニター付きインターホン、センサーライト、宅配BOX、ディンプルキー、オートロック、大型集合ポスト
提供:(株)RFG不動産福岡中央店(SUUMO経由)

詳細情報 ヒルクレスト 寺塚
物件紹介
ヒルクレスト 寺塚は西鉄天神大牟田線高宮駅から徒歩23分にあるマンションです。
このお部屋は2階以上に位置しているので、通行人や周囲の住人からの視線が気になりにくく、防犯面でも安心。建物のエントランスはオートロックがついており、インターホンにはTVモニタもついているため、相手の顔を確認してから来客対応することができます。
おしゃれなデザイナーズ物件!キッチンはシステムキッチン仕様になっていますので、お料理好きの方にもぴったり。バス・トイレは別なので、のんびりお風呂タイムも楽しめるでしょう。また、雨の日でも浴室乾燥機を使えば、お洗濯も問題ありません。
通信設備面では、インターネットが無料で使えるので、月々の出費を抑えられるのも魅力です。また、BSアンテナ・CSアンテナがありCATVにも対応しているので、おうち時間も充実するでしょう(別途工事、BS・CS・CATVの契約料等が必要な場合あり)。
建物にはエレベーターがついているので、重い荷物があっても安心。共用部には宅配ボックスが設定されているので、不在の時にも荷物を受け取ることができます。また、ペット飼育の相談ができますので、あなたの大切な家族の一員も快適に暮らせるか、ぜひ確認してみてください。
このお部屋は2階以上に位置しているので、通行人や周囲の住人からの視線が気になりにくく、防犯面でも安心。建物のエントランスはオートロックがついており、インターホンにはTVモニタもついているため、相手の顔を確認してから来客対応することができます。
おしゃれなデザイナーズ物件!キッチンはシステムキッチン仕様になっていますので、お料理好きの方にもぴったり。バス・トイレは別なので、のんびりお風呂タイムも楽しめるでしょう。また、雨の日でも浴室乾燥機を使えば、お洗濯も問題ありません。
通信設備面では、インターネットが無料で使えるので、月々の出費を抑えられるのも魅力です。また、BSアンテナ・CSアンテナがありCATVにも対応しているので、おうち時間も充実するでしょう(別途工事、BS・CS・CATVの契約料等が必要な場合あり)。
建物にはエレベーターがついているので、重い荷物があっても安心。共用部には宅配ボックスが設定されているので、不在の時にも荷物を受け取ることができます。また、ペット飼育の相談ができますので、あなたの大切な家族の一員も快適に暮らせるか、ぜひ確認してみてください。
お金・契約の情報
※「-」と表示されているものは、実際は料金が発生するものもございます。詳細はお問い合わせください。
| 家賃 | 7.4万円 | 管理費・共益費 | 5,000円 |
|---|---|---|---|
| 敷金 | なし | 礼金 | 14.8万円 |
| 入居決定でお祝い金最大100,000円 | |||
| 保証金 | - | 償却・敷引 | - |
| 住宅保険料 | - | 更新料 | - |
| 保証会社利用 | 必須 | 保証会社名 | - |
| 保証会社費用 | - | 保証会社備考 | 保証会社利用必 エポスカード エポスカード:初回月額賃料の30%・月更新1.2% 法人契約:上場会社の場合、保証会社不要 |
| 契約形態 | - | 契約期間 | - |
| 入居・引渡期間 | - | 現況 | - |
| 入居可能条件 | ペット相談 | ||
| 契約備考 | 合計1.1万円(内訳:鍵設定費11000円) RFGサポート24プラス2420円(月額)/町内会費300円(月額)/原付バイク置場利用料500円(月額)/駐輪場利用料200円(月額) 2DK ペット相談 損保【2.2万円2年】 バストイレ別、バルコニー、エアコン、シャワー付洗面台、TVインターホン、浴室乾燥機、オートロック、室内洗濯置、シューズボックス、システムキッチン、追焚機能浴室、温水洗浄便座、エレベーター、洗面所独立、2口コンロ、駐輪場、宅配ボックス、CATV、敷金不要、対面式キッチン、防犯カメラ、ペット相談、バイク置場、デザイナーズ、CS、ネット使用料不要、複層ガラス、3駅以上利用可、敷地内ごみ置き場、築5年以内、プロパンガス、BS、礼金2ヶ月 入居日:'26年1月下旬 | ||
部屋の情報
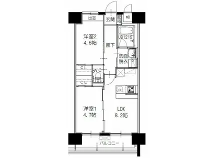
| 間取り | 2DK | 専有面積 | 45.33m2 |
|---|---|---|---|
| 所在階 / 向き | 7階 / 東 | バルコニー面積 | 6m2 |
| 水道 / ガス | - | ||
| 設備 | バス・トイレ別、2階以上、オートロック、テレビドアホン、宅配ボックス、浴室乾燥機、追い焚き、インターネット対応、システムキッチン、エアコン、エレベーター、温水洗浄便座、バルコニー、洗髪洗面化粧台、2口コンロ、デザイナーズ、CATV、CSアンテナ、BSアンテナ、インターネット使用料無料、洗濯機:室内 | ||
| 当社物件ID | 157811972 | ||
建物の情報
| 建物名 | ヒルクレスト 寺塚 | ||
|---|---|---|---|
| 所在地 | 福岡県福岡市南区寺塚 | ||
| 交通 | 西鉄天神大牟田線 高宮駅(福岡) 徒歩23分 西鉄天神大牟田線 西鉄平尾駅 徒歩29分 西鉄天神大牟田線 大橋駅(福岡) 徒歩38分 | ||
| 階数 | 9階建 | 総戸数 | 58戸 |
| 築年月 | 2022年02月 / 築4年 | エレベーター | あり |
| 駐車場 | 空有 9900円 | バイク置き場 | あり |
| 駐輪場 | あり | 管理人/管理会社 | - |
| 周辺環境 | その他 ローソン長丘二丁目店(コンビニ)まで300m その他 寺塚コスモス保育園(幼稚園・保育園)まで450m その他 大池小学校(小学校)まで1100m その他 パセオ野間大池店(ショッピングセンター)まで1100m その他 サニー長丘店(スーパー)まで900m その他 福岡大池郵便局(郵便局)まで1000m | ||
| 建物種別 | マンション | 建物構造 | RC(鉄筋コンクリート) |
この部屋の取扱い不動産会社
| 会社名 | (株)RFG不動産福岡中央店(SUUMO経由) | ||
|---|---|---|---|
| 所在地 | 福岡県福岡市中央区白金1-2-21 6階 | 交通 | - |
| 営業時間 | - | 定休日 | - |
| 免許番号 | 国土交通大臣7086 | 取引態様 | 代理 |
| 不動産会社管理番号 | 100480451300 | 当社管理番号 | 89 |
| 所属団体 | (公社)福岡県宅地建物取引業協会会員 | ||
| 公正取引協議会 | (一社)九州不動産公正取引協議会加盟 | ||
| 取扱い物件情報 | 物件詳細へ | ||
※各種情報と現状に差異がある場合は、現状優先となります。問い合わせをすることで、より詳しい条件、情報を確認する事ができます。
提供:(株)RFG不動産福岡中央店(SUUMO経由)
この物件が気になったら掲載期限まであと11日
ヒルクレスト 寺塚に条件(家賃・エリア)が近い物件一覧
| 写真 | 家賃 管理費等 | 敷金 礼金 | 間取り 専有面積 | 築年数 | 最寄り駅 所在地 | キープ | 詳細 |
|---|---|---|---|---|---|---|---|
マンション プランドールS(3DK/3階) | |||||||
![]() | 5.5万円 3,000円 | なし なし | 3DK 61m2 | 築49年 | 博多南線 博多南駅 徒歩24分 西鉄天神大牟田線 井尻駅 徒歩34分 鹿児島本線 南福岡駅 徒歩38分 福岡県福岡市南区柳瀬1丁目 | 詳細を見る | |
アパート フラテッリ S(1LDK/3階) | |||||||
![]() | 7.4万円 2,800円 | なし 7.4万円 | 1LDK 42.2m2 | 築1年 | 西鉄天神大牟田線 雑餉隈駅 徒歩25分 鹿児島本線 笹原駅 徒歩25分 西鉄天神大牟田線 井尻駅 徒歩31分 福岡県大野城市仲畑1丁目 | 詳細を見る | |
アパート ロザージュ惣利(1LDK/3階) | |||||||
![]() | 8.2万円 4,500円 | なし 16.4万円 | 1LDK 47.03m2 | 築4年 | 西鉄天神大牟田線 白木原駅 徒歩31分 鹿児島本線 大野城駅 徒歩33分 鹿児島本線 水城駅 徒歩35分 福岡県春日市惣利5丁目 | 詳細を見る | |
マンション PEARL COURT 春日原(2DK/6階) | |||||||
![]() | 6万円 5,000円 | なし 12万円 | 2DK 38.88m2 | 築33年 | 西鉄天神大牟田線 春日原駅 徒歩5分 鹿児島本線 春日駅(福岡) 徒歩6分 鹿児島本線 大野城駅 徒歩20分 福岡県春日市春日原北町4丁目 | 詳細を見る | |
マンション 井駒ハイツ(2DK/4階) | |||||||
![]() | 5.8万円 なし | なし 11.6万円 | 2DK 35m2 | 築37年 | 鹿児島本線 笹原駅 徒歩2分 西鉄天神大牟田線 井尻駅 徒歩7分 西鉄天神大牟田線 雑餉隈駅 徒歩21分 福岡県福岡市南区井尻3丁目 | 詳細を見る | |
アパート HALSO2(1LDK/1階) | |||||||
![]() | 6.2万円 4,000円 | なし 6.2万円 | 1LDK 36.07m2 | 築1年 | JR博多南線 博多南駅 徒歩20分 JR鹿児島本線 春日駅(福岡) 徒歩40分 JR鹿児島本線 南福岡駅 徒歩45分 福岡県春日市天神山 | 詳細を見る | |
マンション 第二天神山コーポ(2LDK/1階) | |||||||
![]() | 8.3万円 2,000円 | なし 24.9万円 | 2LDK 63.76m2 | 築44年 | JR博多南線 博多南駅 徒歩15分 JR鹿児島本線 南福岡駅 徒歩42分 JR鹿児島本線 春日駅(福岡) 徒歩42分 福岡県春日市下白水南 | 詳細を見る | |
アパート WISTERIA Ⅶ(1K/2階) | |||||||
![]() | 7万円 2,800円 | なし 7万円 | 1K 36.33m2 | 新築 | 博多南線 博多南駅 徒歩16分 鹿児島本線 笹原駅 徒歩54分 福岡県福岡市南区弥永2丁目 | 詳細を見る | |









