賃貸マンション
第二天神山コーポの賃貸物件情報(2LDK/1階)
| 家賃 | 管理費等 | 敷金 | 礼金 | 間取り | 専有面積 |
|---|---|---|---|---|---|
| 8.3万円 | 2,000円 | なし | 24.9万円 | 2LDK | 63.76m2 |
入居決定でお祝い金最大100,000円
- 保証金
- -
- 償却・敷引
- -
- 築年数
- 築44年
- 所在階
- 1階
- 向き
- -
Point
リノベーション物件、設備充実しております!
提供:株式会社DR・エステート ドッとあーる賃貸井尻店(賃貸スモッカ経由)

詳細情報 第二天神山コーポ
物件紹介
第二天神山コーポは博多南線博多南駅から徒歩14分にあるマンションです。
このお部屋のインターホンにはTVモニタがついているため、相手の顔を確認してから来客対応することができます。
フローリングのお部屋なのでお掃除もラクラク。キッチンはシステムキッチン仕様になっていますので、お料理好きの方にもぴったり。また、バス・トイレは別で、のんびりお風呂タイムも楽しめるでしょう。
このお部屋のインターホンにはTVモニタがついているため、相手の顔を確認してから来客対応することができます。
フローリングのお部屋なのでお掃除もラクラク。キッチンはシステムキッチン仕様になっていますので、お料理好きの方にもぴったり。また、バス・トイレは別で、のんびりお風呂タイムも楽しめるでしょう。
お金・契約の情報
※「-」と表示されているものは、実際は料金が発生するものもございます。詳細はお問い合わせください。
| 家賃 | 8.3万円 | 管理費・共益費 | 2,000円 |
|---|---|---|---|
| 敷金 | なし | 礼金 | 24.9万円 |
| 入居決定でお祝い金最大100,000円 | |||
| 保証金 | - | 償却・敷引 | - |
| 住宅保険料 | 住宅保険料あり | 更新料 | - |
| 契約形態 | - | 契約期間 | 2年 |
| 入居・引渡期間 | 即時 | 現況 | 空室 |
| 契約備考 | リノベーション物件、設備充実しております! リノベーション物件、設備充実しております! その他設備/条件:1階の物件、TVドアホン、即入居可 | ||
部屋の情報
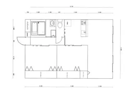
| 間取り | 2LDK | 専有面積 | 63.76m2 |
|---|---|---|---|
| 所在階 / 向き | 1階 / - | バルコニー面積 | - |
| 水道 / ガス | - | ||
| 設備 | バス・トイレ別、システムキッチン、カウンターキッチン、温水洗浄便座、バルコニー、フローリング | ||
| 当社物件ID | 159741429 | ||
建物の情報
| 建物名 | 第二天神山コーポ | ||
|---|---|---|---|
| 所在地 | 福岡県春日市下白水南5丁目 | ||
| 交通 | 博多南線 博多南駅 徒歩14分 鹿児島本線 南福岡駅 徒歩40分 鹿児島本線 春日駅(福岡) 徒歩42分 | ||
| 階数 | 4階建 | 総戸数 | - |
| 築年月 | 1982年06月 / 築44年 | エレベーター | - |
| 駐車場 | - | バイク置き場 | - |
| 駐輪場 | - | 管理人/管理会社 | - |
| 建物種別 | マンション | 建物構造 | RC(鉄筋コンクリート) |
この部屋の取扱い不動産会社
| 会社名 | 株式会社DR・エステート ドッとあーる賃貸井尻店(賃貸スモッカ経由) | ||
|---|---|---|---|
| 所在地 | 福岡市南区井尻3丁目10番12号政都ビル1F | 交通 | - |
| 営業時間 | - | 定休日 | - |
| 免許番号 | 福岡県知事免許(3)第17172号 | 取引態様 | 仲介 |
| 不動産会社管理番号 | dresuteto_010150001826457 | 当社管理番号 | 463 |
| 取扱い物件情報 | 物件詳細へ | ||
※各種情報と現状に差異がある場合は、現状優先となります。問い合わせをすることで、より詳しい条件、情報を確認する事ができます。
提供:株式会社DR・エステート ドッとあーる賃貸井尻店(賃貸スモッカ経由)
この物件が気になったら掲載期限まであと7日
第二天神山コーポに条件(家賃・エリア)が近い物件一覧
| 写真 | 家賃 管理費等 | 敷金 礼金 | 間取り 専有面積 | 築年数 | 最寄り駅 所在地 | キープ | 詳細 |
|---|---|---|---|---|---|---|---|
アパート トリシア野多目Ⅰ(2LDK/3階) | |||||||
![]() | 11.6万円 6,000円 | なし 14万円 | 2LDK 56.26m2 | 新築 | 鹿児島本線 笹原駅 徒歩42分 福岡県福岡市南区野多目2丁目 | 詳細を見る | |
マンション 日宝サンセーヌ大橋南(3LDK/2階) | |||||||
![]() | 8.5万円 5,000円 | なし 8.5万円 | 3LDK 66m2 | 築39年 | 西鉄天神大牟田線 井尻駅 徒歩17分 福岡県福岡市南区横手4丁目 | 詳細を見る | |
アパート トリシア野多目Ⅱ(2LDK/1階) | |||||||
![]() | 10.6万円 6,000円 | なし 13万円 | 2LDK 52.78m2 | 新築 | 鹿児島本線 南福岡駅 徒歩51分 福岡県福岡市南区野多目2丁目 | 詳細を見る | |
アパート ファミール那珂川(2DK/1階) | |||||||
![]() | 6.2万円 3,800円 | なし 9.3万円 | 2DK 47.59m2 | 築20年 | 博多南線 博多南駅 徒歩26分 西鉄天神大牟田線 井尻駅 徒歩62分 西鉄天神大牟田線 大橋駅(福岡) 徒歩63分 福岡県那珂川市 | 詳細を見る | |
マンション エステートモア天神倶楽部(1K/14階) | |||||||
| 7万円 なし | なし 21万円 | 1K 22.44m2 | 築26年 | 福岡市七隈線 薬院大通駅 徒歩6分 西鉄天神大牟田線 西鉄福岡駅(天神) 徒歩10分 福岡市空港線 赤坂駅(福岡) 徒歩11分 福岡県福岡市中央区今泉2丁目 | 詳細を見る | ||
アパート ISOLA板付(2LDK/2階) | |||||||
![]() | 11.6万円 6,500円 | 5.8万円 11.6万円 | 2LDK 57.37m2 | 築1年 | 鹿児島本線 笹原駅 徒歩20分 西鉄天神大牟田線 井尻駅 徒歩20分 西鉄天神大牟田線 雑餉隈駅 徒歩26分 福岡県福岡市博多区 | 詳細を見る | |
マンション 博多南線 博多南駅 徒歩19分 築42年(2LDK/1階) | |||||||
![]() | 5.6万円 3,000円 | なし なし | 2LDK 55m2 | 築42年 | 博多南線 博多南駅 徒歩19分 西鉄天神大牟田線 井尻駅 徒歩63分 鹿児島本線 南福岡駅 徒歩63分 福岡県那珂川市 | 詳細を見る | |
アパート レオパレスORCHIDⅠ(1K/1階) | |||||||
![]() | 6.1万円 5,000円 | なし 6.1万円 | 1K 20.28m2 | 築19年 | 鹿児島本線 笹原駅 徒歩14分 西鉄天神大牟田線 大橋駅(福岡) 徒歩25分 福岡県福岡市南区井尻2丁目 | 詳細を見る | |








