賃貸アパート
レオパレスVIEWPOINTⅡの賃貸物件情報(1K/1階)
| 家賃 | 管理費等 | 敷金 | 礼金 | 間取り | 専有面積 |
|---|---|---|---|---|---|
| 5万円 | 4,500円 | なし | 5万円 | 1K | 22.35m2 |
入居決定でお祝い金最大100,000円
- 保証金
- -
- 償却・敷引
- -
- 築年数
- 築19年
- 所在階
- 1階
- 向き
- -
Point
まずはお問い合わせ!
不動産会社は街のプロ、あなたに合った物件がきっと見つかります。
提供:ハウスコム静岡株式会社 静岡店

詳細情報 レオパレスVIEWPOINTⅡ
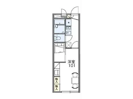
物件紹介
このお部屋のインターホンにはTVモニタがついているため、相手の顔を確認してから来客対応することができます。
フローリングのお部屋なのでお掃除もラクラク。バス・トイレ別の仕様で、のんびりお風呂タイムも楽しめます。
通信設備面では、インターネット接続が可能です(別途工事、契約料が必要な場合あり)。
共用部には宅配ボックスが設定されているので、不在の時にも荷物を受け取ることができます。
フローリングのお部屋なのでお掃除もラクラク。バス・トイレ別の仕様で、のんびりお風呂タイムも楽しめます。
通信設備面では、インターネット接続が可能です(別途工事、契約料が必要な場合あり)。
共用部には宅配ボックスが設定されているので、不在の時にも荷物を受け取ることができます。
お金・契約の情報
※「-」と表示されているものは、実際は料金が発生するものもございます。詳細はお問い合わせください。
| 家賃 | 5万円 | 管理費・共益費 | 4,500円 |
|---|---|---|---|
| 敷金 | なし | 礼金 | 5万円 |
| 入居決定でお祝い金最大100,000円 | |||
| 保証金 | - | 償却・敷引 | - |
| 住宅保険料 | 1円 | 更新料 | - |
| その他費用 | 抗菌施工(任意):2.376万円 | ||
| 保証会社利用 | 必須 | 保証会社名 | - |
| 保証会社費用 | - | 保証会社備考 | 保証料:55790円(契約内容により100〜120%で変動有)※記載金額は120%の場合 |
| 契約形態 | - | 契約期間 | - |
| 入居・引渡期間 | 即時 | 現況 | - |
| 入居可能条件 | 事務所不可、楽器不可、ペット不可 | ||
| 契約備考 | 月額(環境維持費 550円) 鍵交換費用:16500 室内清掃費用:41800 その他設備/条件:室内洗濯機置き場 | ||
部屋の情報
| 間取り | 1K | 専有面積 | 22.35m2 |
|---|---|---|---|
| 所在階 / 向き | 1階 / - | バルコニー面積 | - |
| 水道 / ガス | 水道【公営】 | ||
| 設備 | バス・トイレ別、テレビドアホン、宅配ボックス、光ファイバー対応、エアコン、フローリング、家具家電付き | ||
| 当社物件ID | 3086551 | ||
建物の情報
| 建物名 | レオパレスVIEWPOINTⅡ | ||
|---|---|---|---|
| 所在地 | 静岡県静岡市清水区宮加三 | ||
| 交通 | 東海道本線 清水駅(静岡) バス乗車時間:12分 宮加三バス停で下車 徒歩8分 | ||
| 階数 | 2階建 | 総戸数 | 20戸 |
| 築年月 | 2007年01月 / 築19年 | エレベーター | - |
| 駐車場 | 空有 4,950円/月 | バイク置き場 | - |
| 駐輪場 | あり | 管理人/管理会社 | - |
| 周辺環境 | 病院 徒歩26分(2035m) その他 ドラッグストア その他 公園 その他 銀行 その他 * | ||
| 建物種別 | アパート | 建物構造 | 軽量鉄骨造 |
この部屋の取扱い不動産会社
| 会社名 | ハウスコム静岡株式会社 静岡草薙店 | ||
|---|---|---|---|
| 所在地 | 静岡県静岡市清水区6-11KOWAビル1階 | 交通 | - |
| 営業時間 | 10:00~18:00 | 定休日 | - |
| 免許番号 | 静岡県知事(1)第14629号 | 取引態様 | 仲介 |
| 不動産会社管理番号 | HC5-953821-103-0079 | 当社管理番号 | 468 |
| 所属団体 | 、 | ||
| 取扱い物件情報 | 物件詳細へ | ||
※各種情報と現状に差異がある場合は、現状優先となります。問い合わせをすることで、より詳しい条件、情報を確認する事ができます。
提供:ハウスコム静岡株式会社 静岡草薙店
この物件が気になったら掲載期限まであと4日
レオパレスVIEWPOINTⅡに条件(家賃・エリア)が近い物件一覧
| 写真 | 家賃 管理費等 | 敷金 礼金 | 間取り 専有面積 | 築年数 | 最寄り駅 所在地 | キープ | 詳細 |
|---|---|---|---|---|---|---|---|
マンション フラワーアネックス(ワンルーム/2階) | |||||||
![]() | 3.8万円 1,000円 | なし なし | ワンルーム 18.55m2 | 築37年 | 静岡鉄道静岡清水線 新清水駅 徒歩55分 JR東海道本線 清水駅(静岡) 徒歩63分 静岡県静岡市清水区宮加三 | 詳細を見る | |
マンション シェーンパラスト(1K/1階) | |||||||
![]() | 3.8万円 2,000円 | なし なし | 1K 25.73m2 | 築31年 | 静岡県静岡市清水区折戸 | 詳細を見る | |
マンション メゾン琢磨II(2DK/4階) | |||||||
![]() | 6.2万円 4,000円 | 12.4万円 なし | 2DK 43.2m2 | 築39年 | JR東海道本線 藤枝駅 徒歩5分 JR東海道本線 西焼津駅 徒歩45分 静岡県藤枝市駅前 | 詳細を見る | |
アパート D CREST 中之郷2丁目(1LDK/2階) | |||||||
![]() | 7.85万円 5,500円 | なし 11.78万円 | 1LDK 40.35m2 | 新築 | 静岡鉄道静岡清水線 県立美術館前駅 徒歩5分 JR東海道本線 草薙駅(JR) 徒歩7分 静岡鉄道静岡清水線 県総合運動場駅 徒歩19分 静岡県静岡市清水区中之郷 | 詳細を見る | |
マンション レジーナ(1LDK/3階) | |||||||
![]() | 6.5万円 5,000円 | なし 6.5万円 | 1LDK 43.65m2 | 築15年 | 静岡鉄道静岡清水線 桜橋駅(静岡) 徒歩16分 静岡鉄道静岡清水線 入江岡駅 徒歩18分 静岡県静岡市清水区船原 | 詳細を見る | |
マンション 富士昭和ビルI(3DK/2階) | |||||||
![]() | 5万円 3,000円 | なし なし | 3DK 47.85m2 | 築40年 | JR東海道本線 富士駅 徒歩14分 JR身延線 柚木駅(JR) 徒歩21分 JR身延線 竪堀駅 徒歩23分 静岡県富士市本市場 | 詳細を見る | |
アパート レオパレス明野(1K/2階) | |||||||
![]() | 3.6万円 4,000円 | なし 3.6万円 | 1K 22.35m2 | 築21年 | 東海道本線 富士駅 徒歩22分 静岡県富士市森島 | 詳細を見る | |
アパート 太田屋アパート(2DK/2階) | |||||||
![]() | 5.2万円 なし | なし なし | 2DK 43.16m2 | 築53年 | 岳南電車 吉原本町駅 徒歩18分 JR東海道本線 富士駅 徒歩54分 静岡県富士市浅間本町 | 詳細を見る | |









