賃貸アパート
レオパレスVIEWPOINTⅡの賃貸物件情報(1K/2階)
| 家賃 | 管理費等 | 敷金 | 礼金 | 間取り | 専有面積 |
|---|---|---|---|---|---|
| 5.9万円 | 4,500円 | なし | 5.9万円 | 1K | 22.35m2 |
入居決定でお祝い金最大100,000円
- 保証金
- -
- 償却・敷引
- -
- 築年数
- 築20年
- 所在階
- 2階
- 向き
- -
Point
まずはお問い合わせ!
不動産会社は街のプロ、あなたに合った物件がきっと見つかります。
提供:ハウスコム静岡株式会社 静岡草薙店

詳細情報 レオパレスVIEWPOINTⅡ
物件紹介
このお部屋は2階以上に位置しているので、通行人や周囲の住人からの視線が気になりにくく、防犯面でも安心。インターホンにはTVモニタもついているため、相手の顔を確認してから来客対応することができます。
バス・トイレ別の仕様で、のんびりお風呂タイムも楽しめます。
通信設備面では、インターネット接続が可能です(別途工事、契約料が必要な場合あり)。
共用部には宅配ボックスが設定されているので、不在の時にも荷物を受け取ることができます。
バス・トイレ別の仕様で、のんびりお風呂タイムも楽しめます。
通信設備面では、インターネット接続が可能です(別途工事、契約料が必要な場合あり)。
共用部には宅配ボックスが設定されているので、不在の時にも荷物を受け取ることができます。
お金・契約の情報
※「-」と表示されているものは、実際は料金が発生するものもございます。詳細はお問い合わせください。
| 家賃 | 5.9万円 | 管理費・共益費 | 4,500円 |
|---|---|---|---|
| 敷金 | なし | 礼金 | 5.9万円 |
| 入居決定でお祝い金最大100,000円 | |||
| 保証金 | - | 償却・敷引 | - |
| 住宅保険料 | 1円 | 更新料 | - |
| その他費用 | 抗菌施工(任意):2.376万円 | ||
| 保証会社利用 | 必須 | 保証会社名 | - |
| 保証会社費用 | - | 保証会社備考 | 保証料:52190円(契約内容により100〜120%で変動有)※記載金額は120%の場合 |
| 契約形態 | - | 契約期間 | - |
| 入居・引渡期間 | 即時 | 現況 | - |
| 契約備考 | 鍵交換費10260円、抗菌施工(任意)17712円から23328円(税込)、環境維持費540円/月 月額(環境維持費 550円) 鍵交換費用:16500 室内清掃費用:41800 その他設備/条件:室内洗濯機置き場、セキュリティ会社有 | ||
部屋の情報
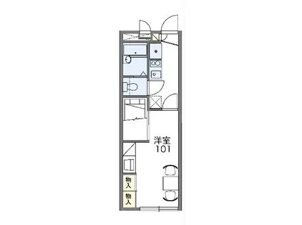
| 間取り | 1K | 専有面積 | 22.35m2 |
|---|---|---|---|
| 所在階 / 向き | 2階 / - | バルコニー面積 | - |
| 水道 / ガス | - | ||
| 設備 | バス・トイレ別、テレビドアホン、宅配ボックス、光ファイバー対応、エアコン、コンロ:電気 | ||
| 当社物件ID | 7143118 | ||
建物の情報
| 建物名 | レオパレスVIEWPOINTⅡ | ||
|---|---|---|---|
| 所在地 | 静岡県静岡市清水区宮加三 | ||
| 交通 | 東海道本線 清水駅(静岡) バス乗車時間:12分 宮加三バス停で下車 徒歩8分 | ||
| 階数 | 2階建 | 総戸数 | 20戸 |
| 築年月 | 2007年01月 / 築20年 | エレベーター | - |
| 駐車場 | 空有 4,950円/月 | バイク置き場 | - |
| 駐輪場 | - | 管理人/管理会社 | - |
| 周辺環境 | その他 ドラッグストア その他 公園 その他 銀行 その他 * | ||
| 建物種別 | アパート | 建物構造 | 軽量鉄骨造 |
この部屋の取扱い不動産会社
| 会社名 | ハウスコム静岡株式会社 静岡北店 | ||
|---|---|---|---|
| 所在地 | 静岡県静岡市葵区10-6第一富士岡ビル1階 | 交通 | - |
| 営業時間 | 10:00~18:00 | 定休日 | - |
| 免許番号 | 静岡県知事(1)第14629号 | 取引態様 | 仲介 |
| 不動産会社管理番号 | HC5-953821-210-0039 | 当社管理番号 | 468 |
| 所属団体 | 、 | ||
| 取扱い物件情報 | 物件詳細へ | ||
※各種情報と現状に差異がある場合は、現状優先となります。問い合わせをすることで、より詳しい条件、情報を確認する事ができます。
提供:ハウスコム静岡株式会社 静岡北店
この物件が気になったら掲載期限まであと4日
レオパレスVIEWPOINTⅡに条件(家賃・エリア)が近い物件一覧
| 写真 | 家賃 管理費等 | 敷金 礼金 | 間取り 専有面積 | 築年数 | 最寄り駅 所在地 | キープ | 詳細 |
|---|---|---|---|---|---|---|---|
マンション セアティーI(1DK/1階) | |||||||
![]() | 4.7万円 3,000円 | 4.7万円 なし | 1DK 30.29m2 | 築30年 | 静岡鉄道静岡清水線 狐ケ崎駅 徒歩11分 静岡県静岡市清水区馬走 | 詳細を見る | |
マンション シャトー草薙(ワンルーム/2階) | |||||||
![]() | 6.3万円 なし | 6.3万円 なし | ワンルーム 31.09m2 | 築18年 | 静岡鉄道静岡清水線 御門台駅 徒歩9分 JR東海道本線 草薙駅(JR) 徒歩11分 静岡鉄道静岡清水線 狐ケ崎駅 徒歩17分 静岡県静岡市清水区草薙 | 詳細を見る | |
アパート ボナール草薙(ワンルーム/1階) | |||||||
![]() | 4.2万円 2,000円 | なし なし | ワンルーム 21.39m2 | 築35年 | JR東海道本線 草薙駅(JR) 徒歩7分 静岡鉄道静岡清水線 県立美術館前駅 徒歩12分 静岡鉄道静岡清水線 御門台駅 徒歩13分 静岡県静岡市清水区草薙 | 詳細を見る | |
アパート ヴィレッジパイン(1LDK/2階) | |||||||
![]() | 7.2万円 5,000円 | なし 7.2万円 | 1LDK 49.64m2 | 築13年 | 静岡鉄道静岡清水線 入江岡駅 徒歩31分 静岡県静岡市清水区村松 | 詳細を見る | |
アパート エスクレール(2LDK/3階) | |||||||
![]() | 5.9万円 なし | なし なし | 2LDK 58m2 | 築24年 | JR東海道本線 焼津駅 徒歩58分 JR東海道本線 西焼津駅 徒歩67分 JR東海道本線 藤枝駅 徒歩92分 静岡県焼津市下小田 | 詳細を見る | |
マンション ヴェール(1DK/2階) | |||||||
![]() | 4.6万円 3,500円 | なし なし | 1DK 25.92m2 | 築31年 | 東海道本線 西焼津駅 徒歩6分 東海道本線 焼津駅 徒歩45分 静岡県焼津市柳新屋 | 詳細を見る | |
マンション ラピスマノワール(2K/1階) | |||||||
![]() | 4.2万円 3,000円 | なし 4.2万円 | 2K 36.82m2 | 築16年 | JR東海道本線 新蒲原駅 徒歩8分 JR東海道本線 富士川駅 徒歩28分 JR東海道本線 蒲原駅 徒歩42分 静岡県静岡市清水区蒲原 | 詳細を見る | |
マンション コーポラス瓜島(3DK/2階) | |||||||
![]() | 5.7万円 なし | なし なし | 3DK 55.68m2 | 築36年 | 岳南電車 吉原本町駅 徒歩19分 JR東海道本線 富士駅 徒歩42分 東海道新幹線 新富士駅(静岡) 徒歩43分 静岡県富士市瓜島町 | 詳細を見る | |









