賃貸マンション
フラッフィー市谷台町の賃貸物件情報(1LDK/4階)
| 家賃 | 管理費等 | 敷金 | 礼金 | 間取り | 専有面積 |
|---|---|---|---|---|---|
| 20.5万円 | 2万円 | 20.5万円 | 20.5万円 | 1LDK | 35.72m2 |
入居決定でお祝い金最大100,000円
- 保証金
- -
- 償却・敷引
- -
- 築年数
- 築3年
- 所在階
- 4階
- 向き
- -
Point
★システムキッチン・2口ガスコンロ★追焚機能★浴室乾燥機★温水洗浄便座★独立洗面台★室内洗濯機置場★WIC★フローリング★モニター付きインターホン★オートロック★詳細はお気軽にお問い合わせください!★
提供:(株)ユウキ・ホーム麻布十番店(SUUMO経由)

詳細情報 フラッフィー市谷台町
物件紹介
フラッフィー市谷台町は都営新宿線曙橋駅から徒歩6分にあり、駅近で通勤通学に便利なマンションです。
このお部屋は2階以上に位置しているので、通行人や周囲の住人からの視線が気になりにくく、防犯面でも安心。建物のエントランスはオートロックがついており、インターホンにはTVモニタもついているため、相手の顔を確認してから来客対応することができます。
おしゃれなデザイナーズ物件!人気の角部屋で周囲の居住者の生活音も気になりにくく、また、フローリングのお部屋なのでお掃除もラクラク。室内にはウォークインクローゼットがありますので、たくさんの荷物も効率的に収納ができます。キッチンはシステムキッチン仕様になっていますので、お料理好きの方にもぴったり。バス・トイレは別なので、のんびりお風呂タイムも楽しめるでしょう。また、雨の日でも浴室乾燥機を使えば、お洗濯も問題ありません。
通信設備面では、インターネットが無料で使えるので、月々の出費を抑えられるのも魅力です。また、BSアンテナ・CSアンテナがありCATVにも対応しているので、おうち時間も充実するでしょう(別途工事、BS・CS・CATVの契約料等が必要な場合あり)。
床暖房があり、冬も足元から暖かく快適に過ごすことができます。建物にはエレベーターがついているので、重い荷物があっても安心。共用部には宅配ボックスが設定されているので、不在の時にも荷物を受け取ることができます。また、ペット飼育の相談ができますので、あなたの大切な家族の一員も快適に暮らせるか、ぜひ確認してみてください。
このお部屋は2階以上に位置しているので、通行人や周囲の住人からの視線が気になりにくく、防犯面でも安心。建物のエントランスはオートロックがついており、インターホンにはTVモニタもついているため、相手の顔を確認してから来客対応することができます。
おしゃれなデザイナーズ物件!人気の角部屋で周囲の居住者の生活音も気になりにくく、また、フローリングのお部屋なのでお掃除もラクラク。室内にはウォークインクローゼットがありますので、たくさんの荷物も効率的に収納ができます。キッチンはシステムキッチン仕様になっていますので、お料理好きの方にもぴったり。バス・トイレは別なので、のんびりお風呂タイムも楽しめるでしょう。また、雨の日でも浴室乾燥機を使えば、お洗濯も問題ありません。
通信設備面では、インターネットが無料で使えるので、月々の出費を抑えられるのも魅力です。また、BSアンテナ・CSアンテナがありCATVにも対応しているので、おうち時間も充実するでしょう(別途工事、BS・CS・CATVの契約料等が必要な場合あり)。
床暖房があり、冬も足元から暖かく快適に過ごすことができます。建物にはエレベーターがついているので、重い荷物があっても安心。共用部には宅配ボックスが設定されているので、不在の時にも荷物を受け取ることができます。また、ペット飼育の相談ができますので、あなたの大切な家族の一員も快適に暮らせるか、ぜひ確認してみてください。
お金・契約の情報
※「-」と表示されているものは、実際は料金が発生するものもございます。詳細はお問い合わせください。
| 家賃 | 20.5万円 | 管理費・共益費 | 2万円 |
|---|---|---|---|
| 敷金 | 20.5万円 | 礼金 | 20.5万円 |
| 入居決定でお祝い金最大100,000円 | |||
| 保証金 | - | 償却・敷引 | - |
| 住宅保険料 | - | 更新料 | - |
| 保証会社利用 | 必須 | 保証会社名 | - |
| 保証会社費用 | - | 保証会社備考 | 保証会社利用必 保証料:月額賃料の50% 詳細はお問い合わせ下さい |
| 契約形態 | - | 契約期間 | - |
| 入居・引渡期間 | 相談 | 現況 | - |
| 入居可能条件 | ペット相談 | ||
| 契約備考 | 巡回管理/ペット相談可※詳細要確認 短期解約違約金:1年未満2カ月、2年未満1カ月 室内クリーニング費用:借主負担 合計6.05万円(内訳:プレミアデスク/2年2.2万円鍵交換代3.85万円) 1LDK 単身者可/ペット相談 普通借家2年 損保【2万円2年】 バストイレ別、エアコン、ガスコンロ対応、フローリング、TVインターホン、浴室乾燥機、オートロック、室内洗濯置、シューズボックス、システムキッチン、追焚機能浴室、角住戸、温水洗浄便座、洗面所独立、2口コンロ、宅配ボックス、最上階、防犯カメラ、ペット相談、オートバス、ウォークインクロゼット、保証人不要、デザイナーズ、2沿線利用可、ディンプルキー、ネット使用料不要、ペット専用設備、2駅利用可、3駅以上利用可、3沿線以上利用可、駅徒歩10分以内、都市ガス、保証会社利用可 | ||
部屋の情報
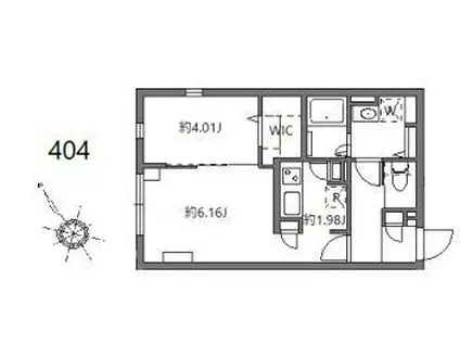
| 間取り | 1LDK | 専有面積 | 35.72m2 |
|---|---|---|---|
| 所在階 / 向き | 4階 / - | バルコニー面積 | - |
| 水道 / ガス | - | ||
| 設備 | バス・トイレ別、2階以上、オートロック、テレビドアホン、宅配ボックス、浴室乾燥機、ウォークインクローゼット、追い焚き、インターネット対応、システムキッチン、エアコン、温水洗浄便座、角部屋、フローリング、洗髪洗面化粧台、2口コンロ、コンロ:ガス、デザイナーズ、インターネット使用料無料、洗濯機:室内 | ||
| 当社物件ID | 152844001 | ||
建物の情報
| 建物名 | フラッフィー市谷台町 | ||
|---|---|---|---|
| 所在地 | 東京都新宿区市谷台町 | ||
| 交通 | 都営新宿線 曙橋駅 徒歩6分 都営大江戸線 若松河田駅 徒歩11分 東京メトロ丸ノ内線 四谷三丁目駅 徒歩12分 | ||
| 階数 | 4階建 | 総戸数 | - |
| 築年月 | 2024年03月 / 築3年 | エレベーター | - |
| 駐車場 | なし | バイク置き場 | - |
| 駐輪場 | - | 管理人/管理会社 | - |
| 周辺環境 | その他 ファミリーマート 市谷台町店(コンビニ)まで88m その他 ココカラファイン 曙橋店(ドラッグストア)まで260m その他 まいばすけっと 曙橋駅前店(スーパー)まで296m | ||
| 建物種別 | マンション | 建物構造 | RC(鉄筋コンクリート) |
この部屋の取扱い不動産会社
| 会社名 | (株)ユウキ・ホーム麻布十番網代公園店(SUUMO経由) | ||
|---|---|---|---|
| 所在地 | 東京都港区麻布十番2-19-10 桂麻布十番ビル1階 | 交通 | - |
| 営業時間 | 9:00~20:30 | 定休日 | なし |
| 免許番号 | 東京都知事76214 | 取引態様 | 仲介 |
| 不動産会社管理番号 | 100488551053 | 当社管理番号 | 89 |
| 所属団体 | (公社)東京都宅地建物取引業協会会員 | ||
| 公正取引協議会 | (公社)首都圏不動産公正取引協議会加盟 | ||
| 取扱い物件情報 | 物件詳細へ | ||
※各種情報と現状に差異がある場合は、現状優先となります。問い合わせをすることで、より詳しい条件、情報を確認する事ができます。
提供:(株)ユウキ・ホーム麻布十番網代公園店(SUUMO経由)
この物件が気になったら掲載期限まであと10日
フラッフィー市谷台町に条件(家賃・エリア)が近い物件一覧
| 写真 | 家賃 管理費等 | 敷金 礼金 | 間取り 専有面積 | 築年数 | 最寄り駅 所在地 | キープ | 詳細 |
|---|---|---|---|---|---|---|---|
マンション ハーモニーレジデンス池袋ウエストゲート(1K/3階) | |||||||
![]() | 12.4万円 1.2万円 | 12.4万円 24.8万円 | 1K 25.57m2 | 築8年 | JR山手線 池袋駅 徒歩9分 東武東上線 北池袋駅 徒歩12分 東武東上線 下板橋駅 徒歩16分 東京都豊島区池袋 | 詳細を見る | |
マンション ルフォンプログレ千代田御茶ノ水(1DK/6階) | |||||||
![]() | 17.5万円 1.5万円 | 17.5万円 なし | 1DK 27.02m2 | 築5年 | 東京メトロ半蔵門線 神保町駅 徒歩6分 JR中央線 水道橋駅 徒歩6分 東京メトロ丸ノ内線 御茶ノ水駅 徒歩11分 東京都千代田区神田猿楽町神田猿楽町 | 詳細を見る | |
マンション シャレール広尾1号棟(1K/2階) | |||||||
![]() | 13.7万円 1.1万円 | なし 13.7万円 | 1K 29.03m2 | 築20年 | 東京メトロ日比谷線 恵比寿駅 徒歩14分 東京メトロ銀座線 表参道駅 徒歩15分 東京メトロ日比谷線 広尾駅 徒歩17分 東京都渋谷区広尾 | 詳細を見る | |
マンション エルファーロ代々木(1K/3階) | |||||||
![]() | 13.1万円 1万円 | なし なし | 1K 20.27m2 | 築4年 | 小田急電鉄小田原線 南新宿駅 徒歩7分 山手線 代々木駅 徒歩8分 東京都渋谷区代々木3丁目 | 詳細を見る | |
マンション コスモシティ市ヶ谷(ワンルーム/2階) | |||||||
![]() | 18.5万円 1.5万円 | 18.5万円 37万円 | ワンルーム 58.32m2 | 築39年 | 都営大江戸線 牛込神楽坂駅 徒歩2分 東京メトロ東西線 神楽坂駅 徒歩8分 都営大江戸線 牛込柳町駅 徒歩11分 東京都新宿区箪笥町 | 詳細を見る | |
マンション ル・リオン牛込柳町(2K/3階) | |||||||
![]() | 19.9万円 1.1万円 | なし 19.9万円 | 2K 40.96m2 | 築17年 | 都営大江戸線 牛込柳町駅 徒歩2分 都営新宿線 曙橋駅 徒歩10分 東京メトロ東西線 早稲田駅(メトロ) 徒歩11分 東京都新宿区原町 | 詳細を見る | |
マンション シャトレー山の上(1LDK/2階) | |||||||
![]() | 16.5万円 6,500円 | なし 33万円 | 1LDK 41.78m2 | 築14年 | 都営大江戸線 西新宿五丁目駅 徒歩5分 東京メトロ丸ノ内線 中野坂上駅 徒歩8分 都営大江戸線 都庁前駅 徒歩10分 東京都渋谷区本町 | 詳細を見る | |
マンション パークナードフィット南青山ビスタ(ワンルーム/6階) | |||||||
![]() | 14万円 1.5万円 | 14万円 なし | ワンルーム 25.39m2 | 築7年 | 東京メトロ千代田線 表参道駅 徒歩13分 東京メトロ日比谷線 広尾駅 徒歩14分 東京メトロ千代田線 乃木坂駅 徒歩18分 東京都港区南青山 | 詳細を見る | |








