賃貸マンション
ベルグレード吉野町の賃貸物件情報(ワンルーム/7階)
| 家賃 | 管理費等 | 敷金 | 礼金 | 間取り | 専有面積 |
|---|---|---|---|---|---|
| 8.3万円 | 1万円 | なし | 4.15万円 | ワンルーム | 21.24m2 |
入居決定でお祝い金最大100,000円
Point
収納はクロゼット・シューズボックスなど豊富なので、衣類や履き物の整理がしやすく便利です。
提供:(株)ネクストライフ新横浜店(SUUMO経由)

詳細情報 ベルグレード吉野町
物件紹介
ベルグレード吉野町はブルーライン吉野町駅から徒歩8分にあり、駅近で通勤通学に便利なマンションです。
このお部屋は2階以上に位置しているので、通行人や周囲の住人からの視線が気になりにくく、防犯面でも安心。建物のエントランスはオートロックがついており、インターホンにはTVモニタもついているため、相手の顔を確認してから来客対応することができます。
人気の角部屋で周囲の居住者の生活音も気になりにくく、また、フローリングのお部屋なのでお掃除もラクラク。キッチンはシステムキッチン仕様になっていますので、お料理好きの方にもぴったり。バス・トイレは別なので、のんびりお風呂タイムも楽しめるでしょう。また、雨の日でも浴室乾燥機を使えば、お洗濯も問題ありません。
通信設備面では、インターネットが無料で使えるので、月々の出費を抑えられるのも魅力です(別途工事等が必要な場合あり)。
建物にはエレベーターがついているので、重い荷物があっても安心。共用部には宅配ボックスが設定されているので、不在の時にも荷物を受け取ることができます。また、ペット飼育の相談ができますので、あなたの大切な家族の一員も快適に暮らせるか、ぜひ確認してみてください。
コンビニまで徒歩7分の場所にあり、日用品や食料品のお買い物にも便利です。
このお部屋は2階以上に位置しているので、通行人や周囲の住人からの視線が気になりにくく、防犯面でも安心。建物のエントランスはオートロックがついており、インターホンにはTVモニタもついているため、相手の顔を確認してから来客対応することができます。
人気の角部屋で周囲の居住者の生活音も気になりにくく、また、フローリングのお部屋なのでお掃除もラクラク。キッチンはシステムキッチン仕様になっていますので、お料理好きの方にもぴったり。バス・トイレは別なので、のんびりお風呂タイムも楽しめるでしょう。また、雨の日でも浴室乾燥機を使えば、お洗濯も問題ありません。
通信設備面では、インターネットが無料で使えるので、月々の出費を抑えられるのも魅力です(別途工事等が必要な場合あり)。
建物にはエレベーターがついているので、重い荷物があっても安心。共用部には宅配ボックスが設定されているので、不在の時にも荷物を受け取ることができます。また、ペット飼育の相談ができますので、あなたの大切な家族の一員も快適に暮らせるか、ぜひ確認してみてください。
コンビニまで徒歩7分の場所にあり、日用品や食料品のお買い物にも便利です。
お金・契約の情報
※「-」と表示されているものは、実際は料金が発生するものもございます。詳細はお問い合わせください。
| 家賃 | 8.3万円 | 管理費・共益費 | 1万円 |
|---|---|---|---|
| 敷金 | なし | 礼金 | 4.15万円 |
| 入居決定でお祝い金最大100,000円 | |||
| 保証金 | - | 償却・敷引 | - |
| 住宅保険料 | 1円 | 更新料 | - |
| その他費用 | エアコンクリーニング代:1.65万円、16500円: | ||
| 保証会社利用 | 必須 | 保証会社名 | - |
| 保証会社費用 | - | 保証会社備考 | 初回契約時:50%、更新時:15,000円、※学生プラン:初回契約時30% 更新料15,000円 |
| 契約形態 | - | 契約期間 | 2年 |
| 入居・引渡期間 | 2026年03月上旬 | 現況 | - |
| 入居可能条件 | ペット相談 | ||
| 契約備考 | 1年未満で解約する場合、違約金として賃料総額1ヶ月分相当額 駐輪場:有料 ペット飼育時、敷金1か月加算 室内清掃費用:66000 その他設備/条件:室内洗濯機置き場、独立洗面台、クローゼット、シューズボックス、分譲賃貸 | ||
部屋の情報
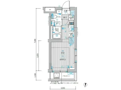
| 間取り | ワンルーム | 専有面積 | 21.24m2 |
|---|---|---|---|
| 所在階 / 向き | 7階 / 北 | バルコニー面積 | - |
| 水道 / ガス | 水道【公営】、ガス【都市】 | ||
| 設備 | バス・トイレ別、オートロック、テレビドアホン、宅配ボックス、浴室乾燥機、インターネット対応、システムキッチン、エアコン、エレベーター、温水洗浄便座、角部屋、バルコニー、フローリング、洗髪洗面化粧台、2口コンロ、コンロ:ガス、シャワー、給湯 | ||
| 当社物件ID | 160507292 | ||
建物の情報
| 建物名 | ベルグレード吉野町 | ||
|---|---|---|---|
| 所在地 | 神奈川県横浜市南区東蒔田町 | ||
| 交通 | 横浜市ブルーライン 蒔田駅 徒歩9分 横浜市ブルーライン 吉野町駅 徒歩9分 | ||
| 階数 | 7階建 | 総戸数 | 47戸 |
| 築年月 | 2026年02月 / 新築(築1年) | エレベーター | あり |
| 駐車場 | - | バイク置き場 | - |
| 駐輪場 | あり | 管理人/管理会社 | - |
| 周辺環境 | コンビニ 徒歩7分(512m) 販売店 徒歩7分(536m) その他 ドラッグストア その他 公園 その他 銀行 その他 * | ||
| 建物種別 | マンション | 建物構造 | RC(鉄筋コンクリート) |
この部屋の取扱い不動産会社
| 会社名 | ハウスコム東神奈川株式会社 上大岡店 | ||
|---|---|---|---|
| 所在地 | 神奈川県横浜市港南区11-7第10オーヴァルビル1階 | 交通 | - |
| 営業時間 | 10:00~18:00 | 定休日 | - |
| 免許番号 | 神奈川県知事(1)第31769号 | 取引態様 | 仲介 |
| 不動産会社管理番号 | HC2-5409441-703-0017 | 当社管理番号 | 468 |
| 所属団体 | 、 | ||
| 取扱い物件情報 | 物件詳細へ | ||
※各種情報と現状に差異がある場合は、現状優先となります。問い合わせをすることで、より詳しい条件、情報を確認する事ができます。
提供:ハウスコム東神奈川株式会社 上大岡店
この物件が気になったら掲載期限まであと5日
ベルグレード吉野町に条件(家賃・エリア)が近い物件一覧
| 写真 | 家賃 管理費等 | 敷金 礼金 | 間取り 専有面積 | 築年数 | 最寄り駅 所在地 | キープ | 詳細 |
|---|---|---|---|---|---|---|---|
マンション RELUXIA GRANDE川崎(1K/2階) | |||||||
![]() | 11.8万円 1万円 | なし 11.8万円 | 1K 25.07m2 | 新築 | 京浜急行電鉄本線 京急川崎駅 徒歩8分 神奈川県川崎市幸区幸町2丁目 | 詳細を見る | |
アパート ハーミットクラブハウス京急弘明寺IIIB棟(ワンルーム/1階) | |||||||
![]() | 5.7万円 2,000円 | なし なし | ワンルーム 16.57m2 | 築4年 | 京急本線 弘明寺駅(京急) 徒歩8分 ブルーライン 弘明寺駅(横浜市営) 徒歩14分 京急本線 井土ケ谷駅 徒歩16分 神奈川県横浜市南区六ツ川 | 詳細を見る | |
アパート ウィスタリア(1K/1階) | |||||||
![]() | 5.3万円 2,000円 | なし なし | 1K 16.6m2 | 築11年 | 神奈川県川崎市宮前区菅生 | 詳細を見る | |
アパート メイプルハウス横濱(1K/1階) | |||||||
![]() | 5.7万円 3,000円 | なし なし | 1K 17.44m2 | 築5年 | 京急本線 黄金町駅 徒歩9分 京急本線 南太田駅 徒歩10分 ブルーライン 吉野町駅 徒歩12分 神奈川県横浜市南区三春台 | 詳細を見る | |
アパート 相武佐助ビルディング(1LDK/3階) | |||||||
![]() | 13.4万円 5,000円 | 26.8万円 13.4万円 | 1LDK 43.37m2 | 築1年 | JR横須賀線 鎌倉駅 徒歩10分 江ノ島電鉄線 由比ケ浜駅 徒歩15分 江ノ島電鉄線 和田塚駅 徒歩15分 神奈川県鎌倉市佐助 | 詳細を見る | |
アパート メルベージュ(ワンルーム/2階) | |||||||
![]() | 7万円 3,500円 | 7万円 7万円 | ワンルーム 30.39m2 | 築15年 | 小田急江ノ島線 善行駅 徒歩5分 小田急江ノ島線 藤沢本町駅 徒歩27分 小田急江ノ島線 六会日大前駅 徒歩31分 神奈川県藤沢市善行 | 詳細を見る | |
マンション チャイルドシティB(2DK/3階) | |||||||
![]() | 7.8万円 2,000円 | なし なし | 2DK 44.62m2 | 築43年 | 東急田園都市線 中央林間駅 徒歩4分 小田急江ノ島線 東林間駅 徒歩17分 東急田園都市線 つきみ野駅 徒歩20分 神奈川県大和市中央林間 | 詳細を見る | |
マンション ヴァンクール湘南(1K/9階) | |||||||
![]() | 9.3万円 7,000円 | 18.6万円 9.3万円 | 1K 34.1m2 | 築19年 | 小田急江ノ島線 湘南台駅 徒歩2分 小田急江ノ島線 長後駅 徒歩23分 小田急江ノ島線 六会日大前駅 徒歩25分 神奈川県藤沢市湘南台 | 詳細を見る | |








