賃貸マンション
ベルグレード吉野町の賃貸物件情報(ワンルーム/3階)
| 家賃 | 管理費等 | 敷金 | 礼金 | 間取り | 専有面積 |
|---|---|---|---|---|---|
| 8.1万円 | 1万円 | なし | 4.05万円 | ワンルーム | 21.24m2 |
入居決定でお祝い金最大100,000円
Point
セキュリティ面は、オートロック・TVインターホンなどを設置しているので安全面でも優れております。
提供:(株)ネクストライフ新横浜店(SUUMO経由)

詳細情報 ベルグレード吉野町
物件紹介
ベルグレード吉野町はブルーライン吉野町駅から徒歩8分にあり、駅近で通勤通学に便利なマンションです。
このお部屋は2階以上に位置しているので、通行人や周囲の住人からの視線が気になりにくく、防犯面でも安心。建物のエントランスはオートロックがついており、インターホンにはTVモニタもついているため、相手の顔を確認してから来客対応することができます。
人気の南向きのお部屋。また、フローリングなのでお掃除もラクラク。キッチンはシステムキッチン仕様になっていますので、お料理好きの方にもぴったり。バス・トイレは別なので、のんびりお風呂タイムも楽しめるでしょう。また、雨の日でも浴室乾燥機を使えば、お洗濯も問題ありません。
通信設備面では、インターネットが無料で使えるので、月々の出費を抑えられるのも魅力です(別途工事等が必要な場合あり)。
建物にはエレベーターがついているので、重い荷物があっても安心。共用部には宅配ボックスが設定されているので、不在の時にも荷物を受け取ることができます。また、ペット飼育の相談ができますので、あなたの大切な家族の一員も快適に暮らせるか、ぜひ確認してみてください。
コンビニまで徒歩7分の場所にあり、日用品や食料品のお買い物にも便利です。
このお部屋は2階以上に位置しているので、通行人や周囲の住人からの視線が気になりにくく、防犯面でも安心。建物のエントランスはオートロックがついており、インターホンにはTVモニタもついているため、相手の顔を確認してから来客対応することができます。
人気の南向きのお部屋。また、フローリングなのでお掃除もラクラク。キッチンはシステムキッチン仕様になっていますので、お料理好きの方にもぴったり。バス・トイレは別なので、のんびりお風呂タイムも楽しめるでしょう。また、雨の日でも浴室乾燥機を使えば、お洗濯も問題ありません。
通信設備面では、インターネットが無料で使えるので、月々の出費を抑えられるのも魅力です(別途工事等が必要な場合あり)。
建物にはエレベーターがついているので、重い荷物があっても安心。共用部には宅配ボックスが設定されているので、不在の時にも荷物を受け取ることができます。また、ペット飼育の相談ができますので、あなたの大切な家族の一員も快適に暮らせるか、ぜひ確認してみてください。
コンビニまで徒歩7分の場所にあり、日用品や食料品のお買い物にも便利です。
お金・契約の情報
※「-」と表示されているものは、実際は料金が発生するものもございます。詳細はお問い合わせください。
| 家賃 | 8.1万円 | 管理費・共益費 | 1万円 |
|---|---|---|---|
| 敷金 | なし | 礼金 | 4.05万円 |
| 入居決定でお祝い金最大100,000円 | |||
| 保証金 | - | 償却・敷引 | - |
| 住宅保険料 | 1円 | 更新料 | - |
| その他費用 | エアコンクリーニング代:1.65万円、16500円: | ||
| 保証会社利用 | 必須 | 保証会社名 | - |
| 保証会社費用 | - | 保証会社備考 | 初回契約時:50%、更新時:15,000円、※学生プラン:初回契約時30% 更新料15,000円 |
| 契約形態 | - | 契約期間 | 2年 |
| 入居・引渡期間 | 2026年03月上旬 | 現況 | - |
| 入居可能条件 | ペット相談 | ||
| 契約備考 | 1年未満で解約する場合、違約金として賃料総額1ヶ月分相当額 駐輪場:有料 ペット飼育時、敷金1か月加算 室内清掃費用:66000 その他設備/条件:室内洗濯機置き場、独立洗面台、クローゼット、シューズボックス、分譲賃貸 | ||
部屋の情報
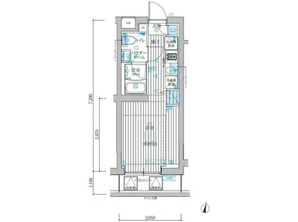
| 間取り | ワンルーム | 専有面積 | 21.24m2 |
|---|---|---|---|
| 所在階 / 向き | 3階 / 南 | バルコニー面積 | - |
| 水道 / ガス | 水道【公営】、ガス【都市】 | ||
| 設備 | バス・トイレ別、オートロック、テレビドアホン、宅配ボックス、浴室乾燥機、インターネット対応、システムキッチン、エアコン、エレベーター、温水洗浄便座、バルコニー、フローリング、洗髪洗面化粧台、2口コンロ、コンロ:ガス、シャワー、給湯 | ||
| 当社物件ID | 160507303 | ||
建物の情報
| 建物名 | ベルグレード吉野町 | ||
|---|---|---|---|
| 所在地 | 神奈川県横浜市南区東蒔田町 | ||
| 交通 | 横浜市ブルーライン 蒔田駅 徒歩9分 横浜市ブルーライン 吉野町駅 徒歩9分 | ||
| 階数 | 7階建 | 総戸数 | 47戸 |
| 築年月 | 2026年02月 / 新築(築1年) | エレベーター | あり |
| 駐車場 | - | バイク置き場 | - |
| 駐輪場 | あり | 管理人/管理会社 | - |
| 周辺環境 | コンビニ 徒歩7分(512m) 販売店 徒歩7分(536m) その他 ドラッグストア その他 公園 その他 銀行 その他 * | ||
| 建物種別 | マンション | 建物構造 | RC(鉄筋コンクリート) |
この部屋の取扱い不動産会社
| 会社名 | ハウスコム東神奈川株式会社 関内店 | ||
|---|---|---|---|
| 所在地 | 神奈川県横浜市中区15-1フィル・パーク関内駅前Ⅱ5階 | 交通 | - |
| 営業時間 | 10:00~18:00 | 定休日 | 水曜定休 |
| 免許番号 | 神奈川県知事(1)第31769号 | 取引態様 | 仲介 |
| 不動産会社管理番号 | HC2-5409441-306-0205 | 当社管理番号 | 468 |
| 所属団体 | 、 | ||
| 取扱い物件情報 | 物件詳細へ | ||
※各種情報と現状に差異がある場合は、現状優先となります。問い合わせをすることで、より詳しい条件、情報を確認する事ができます。
提供:ハウスコム東神奈川株式会社 関内店
この物件が気になったら掲載期限まであと5日
ベルグレード吉野町に条件(家賃・エリア)が近い物件一覧
| 写真 | 家賃 管理費等 | 敷金 礼金 | 間取り 専有面積 | 築年数 | 最寄り駅 所在地 | キープ | 詳細 |
|---|---|---|---|---|---|---|---|
マンション フォレストガーデン(3DK/3階) | |||||||
![]() | 12.5万円 5,000円 | 12.5万円 12.5万円 | 3DK 58.8m2 | 築29年 | JR南武線 中野島駅 徒歩1分 神奈川県川崎市多摩区中野島 | 詳細を見る | |
アパート レオパレスSHIROYAMAVI(1K/2階) | |||||||
![]() | 6.9万円 5,000円 | なし 6.9万円 | 1K 19.87m2 | 築20年 | 東急田園都市線 南町田グランベリーパーク駅 徒歩10分 東急田園都市線 つきみ野駅 徒歩12分 神奈川県大和市下鶴間 | 詳細を見る | |
アパート 第2ロイヤルコーポ(3DK/1階) | |||||||
![]() | 8.3万円 2,000円 | 8.3万円 なし | 3DK 57.1m2 | 築35年 | 小田急電鉄江ノ島線 高座渋谷駅 徒歩5分 神奈川県大和市福田 | 詳細を見る | |
アパート CRANE横濱伊勢佐木町(1K/2階) | |||||||
![]() | 6.8万円 なし | なし 6.8万円 | 1K 20.46m2 | 築37年 | 横浜市ブルーライン 伊勢佐木長者町駅 徒歩8分 神奈川県横浜市南区永楽町1丁目 | 詳細を見る | |
アパート プリマ蒔田(ワンルーム/1階) | |||||||
![]() | 7.4万円 4,000円 | 7.4万円 なし | ワンルーム 20.47m2 | 築11年 | ブルーライン 蒔田駅 徒歩4分 京急本線 井土ケ谷駅 徒歩11分 ブルーライン 弘明寺駅(横浜市営) 徒歩11分 神奈川県横浜市南区中島町 | 詳細を見る | |
アパート レオパレスりんどう(1K/2階) | |||||||
![]() | 6.5万円 5,000円 | なし なし | 1K 20.28m2 | 築21年 | 横須賀線 衣笠駅 徒歩9分 神奈川県横須賀市平作2丁目 | 詳細を見る | |
アパート トワーニ北鎌倉(1K/1階) | |||||||
![]() | 7万円 5,000円 | なし 7万円 | 1K 25.29m2 | 築9年 | JR横須賀線 北鎌倉駅 徒歩10分 湘南モノレール 富士見町駅(神奈川) 徒歩13分 JR東海道本線 大船駅 徒歩20分 神奈川県鎌倉市小袋谷 | 詳細を見る | |
マンション ルーブル武蔵小杉(1K/1階) | |||||||
![]() | 7.6万円 1.4万円 | なし 7.6万円 | 1K 20.38m2 | 築15年 | JR南武線 向河原駅 徒歩6分 東急東横線 武蔵小杉駅 徒歩11分 東急東横線 新丸子駅 徒歩13分 神奈川県川崎市中原区下沼部 | 詳細を見る | |









