賃貸マンション
ガーネットコート四谷の賃貸物件情報(1LDK/10階)
| 家賃 | 管理費等 | 敷金 | 礼金 | 間取り | 専有面積 |
|---|---|---|---|---|---|
| 24.6万円 | 1.5万円 | 24.6万円 | なし | 1LDK | 52.36m2 |
入居決定でお祝い金最大100,000円
- 保証金
- -
- 償却・敷引
- -
- 築年数
- 築22年
- 所在階
- 10階
- 向き
- 西
Point
都心部の物件情報は随時流動しています。ハイクラス物件を中心とした専門のプロフェッショナルエージェントが、迅速かつ的確なご提案から諸条件交渉や細部に至るニーズまで、お客様の「住」の価値の最大化に努めます
提供:(株)リアルビジョン青山支店(SUUMO経由)

詳細情報 ガーネットコート四谷
物件紹介
ガーネットコート四谷は東京メトロ丸ノ内線四谷三丁目駅から徒歩4分にあり、駅近で通勤通学に便利なマンションです。
このお部屋は2階以上に位置しているので、通行人や周囲の住人からの視線が気になりにくく、防犯面でも安心。建物のエントランスはオートロックがついており、インターホンにはTVモニタもついているため、相手の顔を確認してから来客対応することができます。
こちらは楽器相談が可能な物件。楽器演奏をお考えの方はぜひ相談してみてください。フローリングのお部屋なのでお掃除もラクラク。室内には人気のウォークインクローゼットがありますので、たくさんの荷物も効率的に収納ができます。キッチンはシステムキッチン仕様になっていますので、お料理好きの方にもぴったり。バス・トイレは別なので、のんびりお風呂タイムも楽しめるでしょう。また、雨の日でも浴室乾燥機を使えば、お洗濯も問題ありません。
通信設備面では、インターネット接続が可能です。また、BSアンテナ・CSアンテナがありCATVにも対応しているので、おうち時間も充実するでしょう(別途工事、契約料が必要な場合あり)。
建物にはエレベーターがついているので、重い荷物があっても安心。共用部には宅配ボックスが設定されているので、不在の時にも荷物を受け取ることができます。
このお部屋は2階以上に位置しているので、通行人や周囲の住人からの視線が気になりにくく、防犯面でも安心。建物のエントランスはオートロックがついており、インターホンにはTVモニタもついているため、相手の顔を確認してから来客対応することができます。
こちらは楽器相談が可能な物件。楽器演奏をお考えの方はぜひ相談してみてください。フローリングのお部屋なのでお掃除もラクラク。室内には人気のウォークインクローゼットがありますので、たくさんの荷物も効率的に収納ができます。キッチンはシステムキッチン仕様になっていますので、お料理好きの方にもぴったり。バス・トイレは別なので、のんびりお風呂タイムも楽しめるでしょう。また、雨の日でも浴室乾燥機を使えば、お洗濯も問題ありません。
通信設備面では、インターネット接続が可能です。また、BSアンテナ・CSアンテナがありCATVにも対応しているので、おうち時間も充実するでしょう(別途工事、契約料が必要な場合あり)。
建物にはエレベーターがついているので、重い荷物があっても安心。共用部には宅配ボックスが設定されているので、不在の時にも荷物を受け取ることができます。
お金・契約の情報
※「-」と表示されているものは、実際は料金が発生するものもございます。詳細はお問い合わせください。
| 家賃 | 24.6万円 | 管理費・共益費 | 1.5万円 |
|---|---|---|---|
| 敷金 | 24.6万円 | 礼金 | なし |
| 入居決定でお祝い金最大100,000円 | |||
| 保証金 | - | 償却・敷引 | - |
| 住宅保険料 | - | 更新料 | - |
| 保証会社利用 | 必須 | 保証会社名 | - |
| 保証会社費用 | - | 保証会社備考 | 保証会社利用必 総賃料の50%から、2年目以降:9600円/年 |
| 契約形態 | 定期借家 | 契約期間 | 3年 |
| 入居・引渡期間 | - | 現況 | - |
| 入居可能条件 | 楽器相談 | ||
| 契約備考 | 巡回管理 合計2.2万円(内訳:鍵交換費用) 口座振替手数料:110円税込/月、清掃費:97913円、1年未満短期解約違約金あり 1LDK 二人入居可/子供可/楽器相談 定期借家3年 損保【要】 バストイレ別、バルコニー、エアコン、ガスコンロ対応、クロゼット、フローリング、TVインターホン、浴室乾燥機、オートロック、室内洗濯置、シューズボックス、システムキッチン、追焚機能浴室、温水洗浄便座、エレベーター、洗面所独立、洗面化粧台、駐輪場、宅配ボックス、CATV、光ファイバー、礼金不要、BS・CS、3口以上コンロ、防犯カメラ、独立型キッチン、グリル付、保証人不要、二人入居相談、全居室フローリング、ディンプルキー、眺望良好、ダブルロックキー、24時間換気システム、楽器相談、耐震構造、3駅以上利用可、3沿線以上利用可、駅徒歩5分以内、制震構造、24時間ゴミ出し可、敷地内ごみ置き場、LDK12畳以上、全居室6畳以上、都市ガス、保証会社利用可、初期費用カード決済可、通風良好 入居日:'26年3月上旬 | ||
部屋の情報
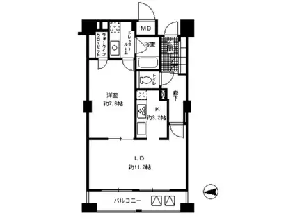
| 間取り | 1LDK | 専有面積 | 52.36m2 |
|---|---|---|---|
| 所在階 / 向き | 10階 / 西 | バルコニー面積 | - |
| 水道 / ガス | - | ||
| 設備 | バス・トイレ別、2階以上、オートロック、テレビドアホン、宅配ボックス、浴室乾燥機、追い焚き、インターネット対応、システムキッチン、エアコン、エレベーター、温水洗浄便座、バルコニー、フローリング、洗髪洗面化粧台、2口コンロ、コンロ:ガス、CATV、CSアンテナ、BSアンテナ、洗濯機:室内 | ||
| 当社物件ID | 2966448 | ||
建物の情報
| 建物名 | ガーネットコート四谷 | ||
|---|---|---|---|
| 所在地 | 東京都新宿区左門町 | ||
| 交通 | 東京メトロ丸ノ内線 四谷三丁目駅 徒歩4分 JR中央線 信濃町駅 徒歩7分 都営大江戸線 国立競技場駅 徒歩15分 | ||
| 階数 | 地下1地上11階建 | 総戸数 | 46戸 |
| 築年月 | 2004年05月 / 築22年 | エレベーター | あり |
| 駐車場 | なし | バイク置き場 | - |
| 駐輪場 | あり | 管理人/管理会社 | - |
| 周辺環境 | その他 MARUSHO総本店(スーパー)まで503m その他 サンドラッグCVS四谷三丁目店(ドラッグストア)まで440m その他 ガスト四谷三丁目店(飲食店)まで358m その他 松屋四谷三丁目店(飲食店)まで367m その他 サイゼリヤ四谷三丁目店(飲食店)まで482m その他 ミニストップ新宿左門町店(コンビニ)まで157m | ||
| 建物種別 | マンション | 建物構造 | SRC(鉄骨鉄筋コンクリート) |
この部屋の取扱い不動産会社
| 会社名 | (株)T-BRIDGE(SUUMO経由) | ||
|---|---|---|---|
| 所在地 | 東京都渋谷区渋谷2-19-15 MIYAMASUZAKABUILDING2階 | 交通 | - |
| 営業時間 | 9:00~21:00 | 定休日 | 年中無休 |
| 免許番号 | 東京都知事104461 | 取引態様 | 仲介 |
| 不動産会社管理番号 | 100313968763 | 当社管理番号 | 89 |
| 所属団体 | (公社)全日本不動産協会東京都本部会員 | ||
| 公正取引協議会 | (公社)首都圏不動産公正取引協議会加盟 | ||
| 取扱い物件情報 | 物件詳細へ | ||
※各種情報と現状に差異がある場合は、現状優先となります。問い合わせをすることで、より詳しい条件、情報を確認する事ができます。
提供:(株)T-BRIDGE(SUUMO経由)
この物件が気になったら掲載期限まであと7日
ガーネットコート四谷に条件(家賃・エリア)が近い物件一覧
| 写真 | 家賃 管理費等 | 敷金 礼金 | 間取り 専有面積 | 築年数 | 最寄り駅 所在地 | キープ | 詳細 |
|---|---|---|---|---|---|---|---|
マンション イースタンホームズ六本木(1LDK/3階) | |||||||
![]() | 27万円 2万円 | 27万円 27万円 | 1LDK 53.44m2 | 築46年 | 東京地下鉄日比谷線 六本木駅 徒歩11分 東京地下鉄日比谷線 広尾駅 徒歩14分 東京地下鉄南北線 麻布十番駅 徒歩15分 東京都港区元麻布3丁目 | 詳細を見る | |
マンション BLUROCK後楽園(1DK/11階) | |||||||
![]() | 15.3万円 1.2万円 | 15.3万円 なし | 1DK 25.01m2 | 築4年 | 東京地下鉄南北線 後楽園駅 徒歩7分 東京都三田線 春日駅(東京) 徒歩7分 東京都大江戸線 飯田橋駅 徒歩11分 東京都文京区春日1丁目 | 詳細を見る | |
マンション パークアクシス御茶ノ水ステージ(1K/1階) | |||||||
![]() | 15.5万円 8,000円 | 15.5万円 15.5万円 | 1K 33.48m2 | 築21年 | 東京地下鉄銀座線 末広町駅(東京) 徒歩6分 総武・中央緩行線 御茶ノ水駅 徒歩8分 山手線 秋葉原駅 徒歩13分 東京都文京区湯島3丁目 | 詳細を見る | |
マンション パークフロント代々木(1LDK/2階) | |||||||
![]() | 20.8万円 7,000円 | 20.8万円 31.2万円 | 1LDK 42.66m2 | 築7年 | 小田急線 代々木八幡駅 徒歩4分 東京メトロ千代田線 代々木公園駅 徒歩4分 東京都渋谷区代々木 | 詳細を見る | |
マンション NANALA(2LDK/3階) | |||||||
![]() | 23.1万円 1万円 | 11.55万円 なし | 2LDK 57.6m2 | 築1年 | 西武新宿線 新井薬師前駅 徒歩9分 西武新宿線 沼袋駅 徒歩13分 都営大江戸線 新江古田駅 徒歩21分 東京都中野区松が丘 | 詳細を見る | |
マンション GLACIER神保町(1K/4階) | |||||||
![]() | 15万円 1.5万円 | 15万円 15万円 | 1K 25.1m2 | 築7年 | 東京地下鉄半蔵門線 神保町駅 徒歩4分 東京地下鉄千代田線 新御茶ノ水駅 徒歩9分 東北本線 東仙台駅 徒歩10分 中央本線 御茶ノ水駅 徒歩10分 東京都千代田区神田神保町1丁目 | 詳細を見る | |
マンション クロスレジデンス神田神保町(1DK/6階) | |||||||
![]() | 16万円 1.2万円 | 16万円 16万円 | 1DK 25.16m2 | 築2年 | 東京地下鉄半蔵門線 神保町駅 徒歩1分 東京地下鉄丸ノ内線 淡路町駅 徒歩8分 東京地下鉄東西線 九段下駅 徒歩9分 東京都千代田区神田神保町1丁目 | 詳細を見る | |







