賃貸マンション
SAKURA AXIS 中板橋の賃貸物件情報(1DK/4階)
| 家賃 | 管理費等 | 敷金 | 礼金 | 間取り | 専有面積 |
|---|---|---|---|---|---|
| 11.7万円 | 1万円 | 11.7万円 | 11.7万円 | 1DK | 25.65m2 |
入居決定でお祝い金最大100,000円
- 保証金
- -
- 償却・敷引
- -
- 築年数
- 築1年
- 所在階
- 4階
- 向き
- 北東
Point
オートロック機能があるので来訪者は基本的に玄関先まで来ることがなく安全面に優れております。室内設備は洗面化粧台・浴室乾燥機などが揃っているので、快適に過ごしやすいお部屋になります。
提供:ハウス・トゥ・ハウス・ネットサービス(株)巣鴨店(SUUMO経由)

詳細情報 SAKURA AXIS 中板橋
物件紹介
SAKURA AXIS 中板橋は東武東上線中板橋駅から徒歩5分にあり、駅近で通勤通学に便利なマンションです。
このお部屋は2階以上に位置しているので、通行人や周囲の住人からの視線が気になりにくく、防犯面でも安心。建物のエントランスはオートロックがついており、インターホンにはTVモニタもついているため、相手の顔を確認してから来客対応することができます。
フローリングのお部屋なのでお掃除もラクラク。キッチンはシステムキッチン仕様になっていますので、お料理好きの方にもぴったり。バス・トイレは別なので、のんびりお風呂タイムも楽しめるでしょう。また、雨の日でも浴室乾燥機を使えば、お洗濯も問題ありません。
通信設備面では、インターネットが無料で使えるので、月々の出費を抑えられるのも魅力です。また、BSアンテナ・CSアンテナがありCATVにも対応しているので、おうち時間も充実するでしょう(別途工事、BS・CS・CATVの契約料等が必要な場合あり)。
建物にはエレベーターがついているので、重い荷物があっても安心。共用部には宅配ボックスが設定されているので、不在の時にも荷物を受け取ることができます。また、ペット飼育の相談ができますので、あなたの大切な家族の一員も快適に暮らせるか、ぜひ確認してみてください。
このお部屋は2階以上に位置しているので、通行人や周囲の住人からの視線が気になりにくく、防犯面でも安心。建物のエントランスはオートロックがついており、インターホンにはTVモニタもついているため、相手の顔を確認してから来客対応することができます。
フローリングのお部屋なのでお掃除もラクラク。キッチンはシステムキッチン仕様になっていますので、お料理好きの方にもぴったり。バス・トイレは別なので、のんびりお風呂タイムも楽しめるでしょう。また、雨の日でも浴室乾燥機を使えば、お洗濯も問題ありません。
通信設備面では、インターネットが無料で使えるので、月々の出費を抑えられるのも魅力です。また、BSアンテナ・CSアンテナがありCATVにも対応しているので、おうち時間も充実するでしょう(別途工事、BS・CS・CATVの契約料等が必要な場合あり)。
建物にはエレベーターがついているので、重い荷物があっても安心。共用部には宅配ボックスが設定されているので、不在の時にも荷物を受け取ることができます。また、ペット飼育の相談ができますので、あなたの大切な家族の一員も快適に暮らせるか、ぜひ確認してみてください。
お金・契約の情報
※「-」と表示されているものは、実際は料金が発生するものもございます。詳細はお問い合わせください。
| 家賃 | 11.7万円 | 管理費・共益費 | 1万円 |
|---|---|---|---|
| 敷金 | 11.7万円 | 礼金 | 11.7万円 |
| 入居決定でお祝い金最大100,000円 | |||
| 保証金 | - | 償却・敷引 | - |
| 住宅保険料 | - | 更新料 | - |
| 保証会社利用 | 必須 | 保証会社名 | - |
| 保証会社費用 | - | 保証会社備考 | 保証会社利用必 初回:50% 月額:700円 月額事務手数料:330円 |
| 契約形態 | - | 契約期間 | - |
| 入居・引渡期間 | 即時 | 現況 | - |
| 入居可能条件 | ペット相談 | ||
| 契約備考 | ペット(小型犬または猫1匹まで)飼育時:敷金1ヶ月追加。解約予告:2ヶ月前。セキュリティ面は、TVインターホン・オートロックなど充実しているので、防犯対策もばっちりです。共用部には宅配ボックスが備え付けられているため、急なお出かけや不在の際にも荷物を受け取ることが可能です。室内設備は洗面化粧台・浴室乾燥機など大変充実しております。 合計2.42万円(内訳:シラープレミアムクラブ(更新時より26400円)2.42万円) 更新料 新賃料1.00ヶ月分 室内清掃費用 52800円 1DK ペット相談 普通借家2年 損保【2万円2年】 バストイレ別、バルコニー、エアコン、ガスコンロ対応、クロゼット、フローリング、TVインターホン、浴室乾燥機、オートロック、室内洗濯置、シューズボックス、システムキッチン、温水洗浄便座、エレベーター、洗面化粧台、2口コンロ、宅配ボックス、CATV、防犯カメラ、ペット相談、CS、ネット使用料不要、敷地内ごみ置き場、都市ガス、BS、IT重説対応物件、初期費用カード決済可 敷金積み増し【ペット飼育の場合敷金2ヶ月(総額)】 | ||
部屋の情報
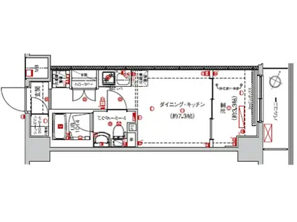
| 間取り | 1DK | 専有面積 | 25.65m2 |
|---|---|---|---|
| 所在階 / 向き | 4階 / 北東 | バルコニー面積 | - |
| 水道 / ガス | - | ||
| 設備 | バス・トイレ別、2階以上、オートロック、テレビドアホン、宅配ボックス、浴室乾燥機、インターネット対応、システムキッチン、エアコン、エレベーター、温水洗浄便座、バルコニー、フローリング、2口コンロ、コンロ:ガス、CATV、CSアンテナ、BSアンテナ、インターネット使用料無料、洗濯機:室内 | ||
| 当社物件ID | 160207907 | ||
建物の情報
| 建物名 | SAKURA AXIS 中板橋 | ||
|---|---|---|---|
| 所在地 | 東京都板橋区常盤台 | ||
| 交通 | 東武東上線 中板橋駅 徒歩5分 東武東上線 ときわ台駅(東京) 徒歩6分 都営三田線 板橋本町駅 徒歩17分 | ||
| 階数 | 9階建 | 総戸数 | - |
| 築年月 | 2025年10月 / 築1年 | エレベーター | あり |
| 駐車場 | なし | バイク置き場 | - |
| 駐輪場 | - | 管理人/管理会社 | - |
| 周辺環境 | その他 セブンイレブン 板橋富士見町店(コンビニ)まで256m その他 EQUiA(エキア)ときわ台(ショッピングセンター)まで455m その他 スーパーTANAKA 中板橋店(スーパー)まで489m その他 常盤台外科病院(病院)まで850m その他 ファミリーマート 常盤台北口店(コンビニ)まで472m その他 セブンイレブン 中板店(コンビニ)まで394m | ||
| 建物種別 | マンション | 建物構造 | RC(鉄筋コンクリート) |
この部屋の取扱い不動産会社
| 会社名 | ハウス・トゥ・ハウス・ネットサービス(株)赤羽店(本店)(SUUMO経由) | ||
|---|---|---|---|
| 所在地 | 東京都北区赤羽1-6-5 KAZAMAビル1階 | 交通 | - |
| 営業時間 | 10:00~18:30 | 定休日 | 水曜日 (1月~3月無休) |
| 免許番号 | 国土交通大臣7400 | 取引態様 | 仲介 |
| 不動産会社管理番号 | 100482744165 | 当社管理番号 | 89 |
| 所属団体 | (公社)全日本不動産協会東京都本部会員 | ||
| 公正取引協議会 | (公社)首都圏不動産公正取引協議会加盟 | ||
| 取扱い物件情報 | 物件詳細へ | ||
※各種情報と現状に差異がある場合は、現状優先となります。問い合わせをすることで、より詳しい条件、情報を確認する事ができます。
提供:ハウス・トゥ・ハウス・ネットサービス(株)赤羽店(本店)(SUUMO経由)
この物件が気になったら掲載期限まであと10日
SAKURA AXIS 中板橋の空き部屋一覧
全部で29の空き部屋があります。
SAKURA AXIS 中板橋に条件(家賃・エリア)が近い物件一覧
| 写真 | 家賃 管理費等 | 敷金 礼金 | 間取り 専有面積 | 築年数 | 最寄り駅 所在地 | キープ | 詳細 |
|---|---|---|---|---|---|---|---|
マンション スパシエベレーザ練馬(1K/6階) | |||||||
![]() | 7.4万円 6,000円 | 7.4万円 7.4万円 | 1K 22.54m2 | 築19年 | 西武池袋・豊島線 練馬高野台駅 徒歩7分 東京都練馬区南田中3丁目 | 詳細を見る | |
アパート マンション大山(1LDK/2階) | |||||||
![]() | 16万円 3,000円 | 16万円 16万円 | 1LDK 40.47m2 | 築2年 | 東武東上線 大山駅(東京) 徒歩2分 都営三田線 板橋区役所前駅 徒歩15分 東京メトロ副都心線 千川駅 徒歩23分 東京都板橋区大山町 | 詳細を見る | |
マンション LUANA(1K/1階) | |||||||
![]() | 8.3万円 1.032万円 | なし 12.45万円 | 1K 27.34m2 | 築9年 | 都営三田線 板橋本町駅 徒歩11分 JR埼京線 十条駅(東京) 徒歩13分 都営三田線 本蓮沼駅 徒歩21分 東京都板橋区稲荷台 | 詳細を見る | |
アパート 小池コーポ(2K/2階) | |||||||
![]() | 9万円 なし | 9万円 9万円 | 2K 33.45m2 | 築31年 | 都電荒川線 新庚申塚駅 徒歩2分 都営三田線 西巣鴨駅 徒歩6分 JR山手線 巣鴨駅 徒歩16分 東京都豊島区巣鴨 | 詳細を見る | |
アパート シャンブル目白(1K/1階) | |||||||
![]() | 8万円 4,000円 | なし なし | 1K 28.06m2 | 築28年 | 西武池袋線 椎名町駅 徒歩4分 東京メトロ有楽町線 要町駅 徒歩12分 JR山手線 池袋駅 徒歩17分 東京都豊島区目白 | 詳細を見る | |
アパート 板橋区高島平2丁目PJ(2LDK/1階) | |||||||
![]() | 15万円 5,000円 | なし 30万円 | 2LDK 44.71m2 | 新築 | 東京都三田線 高島平駅 徒歩13分 東京都三田線 西台駅 徒歩17分 東京都板橋区高島平2丁目 | 詳細を見る | |
アパート 練馬区北町1丁目(2LDK/2階) | |||||||
![]() | 15.7万円 6,000円 | 15.7万円 15.7万円 | 2LDK 58.49m2 | 新築 | 東武東上線 上板橋駅 徒歩9分 東武東上線 東武練馬駅 徒歩12分 東京メトロ副都心線 平和台駅(東京) 徒歩25分 東京都練馬区北町 | 詳細を見る | |
マンション ハイグローブ東十条(1K/2階) | |||||||
![]() | 8.5万円 3,000円 | 8.5万円 8.5万円 | 1K 20.34m2 | 築15年 | 京浜東北・根岸線 東十条駅 徒歩5分 東京都北区中十条4丁目 | 詳細を見る | |








