賃貸マンション
SAKURA AXIS 中板橋の賃貸物件情報(1K/6階)
| 家賃 | 管理費等 | 敷金 | 礼金 | 間取り | 専有面積 |
|---|---|---|---|---|---|
| 11.8万円 | 1万円 | 11.8万円 | 11.8万円 | 1K | 25.65m2 |
入居決定でお祝い金最大100,000円
- 保証金
- -
- 償却・敷引
- -
- 築年数
- 築1年
- 所在階
- 6階
- 向き
- 北東
Point
インターネット上の物件はほぼ全てご紹介可能。まとめてご紹介致します。お気軽にお問合せください。お部屋探しは情報量地域ナンバー1のタウンハウジングまで。
提供:(株)タウンハウジング東京 成増店(SUUMO経由)

詳細情報 SAKURA AXIS 中板橋
物件紹介
SAKURA AXIS 中板橋は東武東上線中板橋駅から徒歩5分にあり、駅近で通勤通学に便利なマンションです。
このお部屋は2階以上に位置しているので、通行人や周囲の住人からの視線が気になりにくく、防犯面でも安心。建物のエントランスはオートロックがついており、インターホンにはTVモニタもついているため、相手の顔を確認してから来客対応することができます。
フローリングのお部屋なのでお掃除もラクラク。バス・トイレ別の仕様で、のんびりお風呂タイムも楽しめます。
通信設備面では、インターネットが無料で使えるので、月々の出費を抑えられるのも魅力です。また、BSアンテナ・CSアンテナがありCATVにも対応しているので、おうち時間も充実するでしょう(別途工事、BS・CS・CATVの契約料等が必要な場合あり)。
共用部には宅配ボックスが設定されているので、不在の時にも荷物を受け取ることができます。
このお部屋は2階以上に位置しているので、通行人や周囲の住人からの視線が気になりにくく、防犯面でも安心。建物のエントランスはオートロックがついており、インターホンにはTVモニタもついているため、相手の顔を確認してから来客対応することができます。
フローリングのお部屋なのでお掃除もラクラク。バス・トイレ別の仕様で、のんびりお風呂タイムも楽しめます。
通信設備面では、インターネットが無料で使えるので、月々の出費を抑えられるのも魅力です。また、BSアンテナ・CSアンテナがありCATVにも対応しているので、おうち時間も充実するでしょう(別途工事、BS・CS・CATVの契約料等が必要な場合あり)。
共用部には宅配ボックスが設定されているので、不在の時にも荷物を受け取ることができます。
お金・契約の情報
※「-」と表示されているものは、実際は料金が発生するものもございます。詳細はお問い合わせください。
| 家賃 | 11.8万円 | 管理費・共益費 | 1万円 |
|---|---|---|---|
| 敷金 | 11.8万円 | 礼金 | 11.8万円 |
| 入居決定でお祝い金最大100,000円 | |||
| 保証金 | - | 償却・敷引 | - |
| 住宅保険料 | - | 更新料 | - |
| 保証会社利用 | 必須 | 保証会社名 | - |
| 保証会社費用 | - | 保証会社備考 | 保証会社利用必 賃貸保証料:0.50ヶ月 |
| 契約形態 | - | 契約期間 | - |
| 入居・引渡期間 | 即時 | 現況 | - |
| 契約備考 | 板橋区・練馬区・和光市・朝霞市を中心に数多くのお部屋を取り扱いしてます!ご紹介できるお部屋の情報量に自信あり!クレジットカード決済が可能なお部屋もお取り扱いあります!お家賃の減額や契約の開始時期など全力で交渉致します!お部屋探しは、首都圏直営140店舗以上のタウンハウジング東京成増店へ!まずはお気軽にお電話下さい!安心してお部屋をお探しできるよう親切・丁寧にご紹介する事を心掛けております! 合計2.42万円(内訳:プレミアムクラブ:24200円) 更新料新賃料(ヶ月):1.00ヶ月 1K 普通借家2年 損保【2万円2年】 バストイレ別、バルコニー、エアコン、ガスコンロ対応、クロゼット、フローリング、TVインターホン、オートロック、シューズボックス、温水洗浄便座、脱衣所、洗面所独立、2口コンロ、駐輪場、宅配ボックス、CATV、光ファイバー、即入居可、BS・CS、分譲賃貸、保証人不要、敷金1ヶ月、2沿線利用可、ディンプルキー、ネット専用回線、ネット使用料不要、24時間換気システム、耐震構造、2駅利用可、駅徒歩10分以内、24時間ゴミ出し可、敷地内ごみ置き場、都市ガス、浴室床暖房、玄関収納、高速ネット対応、礼金1ヶ月、IT重説対応物件、初期費用カード決済可 | ||
部屋の情報
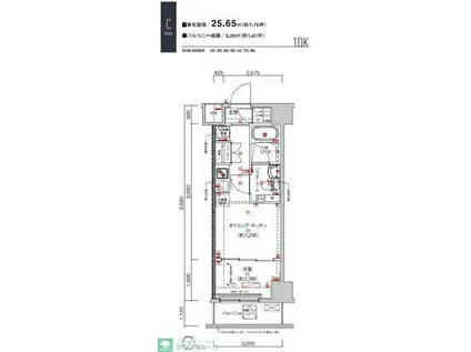
| 間取り | 1K | 専有面積 | 25.65m2 |
|---|---|---|---|
| 所在階 / 向き | 6階 / 北東 | バルコニー面積 | - |
| 水道 / ガス | - | ||
| 設備 | バス・トイレ別、2階以上、オートロック、テレビドアホン、宅配ボックス、インターネット対応、エアコン、温水洗浄便座、バルコニー、フローリング、洗髪洗面化粧台、2口コンロ、コンロ:ガス、CATV、CSアンテナ、BSアンテナ、インターネット使用料無料 | ||
| 当社物件ID | 160207902 | ||
建物の情報
| 建物名 | SAKURA AXIS 中板橋 | ||
|---|---|---|---|
| 所在地 | 東京都板橋区常盤台 | ||
| 交通 | 東武東上線 中板橋駅 徒歩5分 東武東上線 ときわ台駅(東京) 徒歩5分 都営三田線 板橋本町駅 徒歩16分 | ||
| 階数 | 9階建 | 総戸数 | - |
| 築年月 | 2025年10月 / 築1年 | エレベーター | - |
| 駐車場 | なし | バイク置き場 | - |
| 駐輪場 | あり | 管理人/管理会社 | - |
| 周辺環境 | その他 ドン・キホーテ北池袋店(ショッピングセンター)まで2610m その他 アコレ中板橋店(スーパー)まで410m その他 まいばすけっと中板橋駅前店(スーパー)まで590m その他 セブンイレブン中板店(コンビニ)まで390m その他 アコレ中板橋店(コンビニ)まで410m その他 ミヤモトドラッグ中板橋店(ドラッグストア)まで450m | ||
| 建物種別 | マンション | 建物構造 | RC(鉄筋コンクリート) |
この部屋の取扱い不動産会社
| 会社名 | (株)タウンハウジング東京 成増店(SUUMO経由) | ||
|---|---|---|---|
| 所在地 | 東京都板橋区成増2-17-36 | 交通 | - |
| 営業時間 | AM10:00~PM7:00 | 定休日 | 水曜日 |
| 免許番号 | 国土交通大臣9926 | 取引態様 | 仲介 |
| 不動産会社管理番号 | 100482795300 | 当社管理番号 | 89 |
| 所属団体 | (公社)東京都宅地建物取引業協会会員 | ||
| 公正取引協議会 | (公社)首都圏不動産公正取引協議会加盟 | ||
| 取扱い物件情報 | 物件詳細へ | ||
※各種情報と現状に差異がある場合は、現状優先となります。問い合わせをすることで、より詳しい条件、情報を確認する事ができます。
提供:(株)タウンハウジング東京 成増店(SUUMO経由)
この物件が気になったら掲載期限まであと11日
SAKURA AXIS 中板橋の空き部屋一覧
全部で25の空き部屋があります。
SAKURA AXIS 中板橋に条件(家賃・エリア)が近い物件一覧
| 写真 | 家賃 管理費等 | 敷金 礼金 | 間取り 専有面積 | 築年数 | 最寄り駅 所在地 | キープ | 詳細 |
|---|---|---|---|---|---|---|---|
マンション スパシエロッサ池袋(1K/8階) | |||||||
![]() | 9万円 1.5万円 | 9万円 9万円 | 1K 20.7m2 | 築12年 | 東京メトロ有楽町線 東池袋駅 徒歩3分 東京メトロ副都心線 雑司が谷駅(東京メトロ) 徒歩11分 JR山手線 池袋駅 徒歩13分 東京都豊島区南池袋 | 詳細を見る | |
アパート パティシオン中板橋(1K/1階) | |||||||
![]() | 8.3万円 4,000円 | なし 8.3万円 | 1K 17.28m2 | 築1年 | 東武鉄道東上線 中板橋駅 徒歩6分 東京都板橋区弥生町 | 詳細を見る | |
マンション ジェネラルアパートメント常盤台(1K/1階) | |||||||
![]() | 7.7万円 6,000円 | 7.7万円 7.7万円 | 1K 21.03m2 | 築21年 | 東武東上線 ときわ台駅(東京) 徒歩9分 東武東上線 上板橋駅 徒歩12分 東武東上線 中板橋駅 徒歩19分 東京都板橋区常盤台 | 詳細を見る | |
マンション パラスト大山(2DK/3階) | |||||||
![]() | 12.9万円 6,000円 | 12.9万円 12.9万円 | 2DK 35.7m2 | 築48年 | 東武東上線 下板橋駅 徒歩9分 東武東上線 大山駅(東京) 徒歩9分 都営三田線 板橋区役所前駅 徒歩12分 東京都板橋区大山金井町 | 詳細を見る | |
マンション BPRレジデンス王子(1LDK/6階) | |||||||
![]() | 17.1万円 1.2万円 | 17.1万円 なし | 1LDK 38.07m2 | 築3年 | JR京浜東北線 王子駅 徒歩4分 東京メトロ南北線 西ケ原駅 徒歩16分 JR京浜東北線 上中里駅 徒歩20分 東京都北区王子 | 詳細を見る | |
マンション エコヴィレッジ光が丘公園(2LDK/7階) | |||||||
![]() | 18.5万円 なし | 37万円 なし | 2LDK 60.38m2 | 築22年 | 東京メトロ副都心線 地下鉄赤塚駅 徒歩5分 東武東上線 下赤塚駅 徒歩8分 東武東上線 成増駅 徒歩23分 東京都練馬区田柄 | 詳細を見る | |
マンション コート関町北(1K/3階) | |||||||
![]() | 8.5万円 4,000円 | なし 8.5万円 | 1K 21.76m2 | 築1年 | 西武新宿線 武蔵関駅 徒歩7分 西武新宿線 上石神井駅 徒歩14分 東京都練馬区関町北 | 詳細を見る | |








