賃貸マンション
プラウドフラット四谷三丁目の賃貸物件情報(1DK/9階)
| 家賃 | 管理費等 | 敷金 | 礼金 | 間取り | 専有面積 |
|---|---|---|---|---|---|
| 18.9万円 | 1.5万円 | 18.9万円 | なし | 1DK | 27.14m2 |
入居決定でお祝い金最大100,000円
- 保証金
- -
- 償却・敷引
- -
- 築年数
- 築1年
- 所在階
- 9階
- 向き
- 南
Point
【先行申込受付中】→詳細は渋谷区・港区・新宿区特化のリアルビジョンへお問い合わせくださいませ☆彡
提供:(株)リアルビジョン青山支店(SUUMO経由)

詳細情報 プラウドフラット四谷三丁目
物件紹介
プラウドフラット四谷三丁目は東京メトロ丸ノ内線四谷三丁目駅から徒歩1分にあり、駅近で通勤通学に便利なマンションです。
このお部屋は2階以上に位置しているので、通行人や周囲の住人からの視線が気になりにくく、防犯面でも安心。建物のエントランスはオートロックがついており、インターホンにはTVモニタもついているため、相手の顔を確認してから来客対応することができます。
人気の南向きのお部屋。また、フローリングなのでお掃除もラクラク。キッチンはシステムキッチン仕様になっていますので、お料理好きの方にもぴったり。バス・トイレは別なので、のんびりお風呂タイムも楽しめるでしょう。また、雨の日でも浴室乾燥機を使えば、お洗濯も問題ありません。
通信設備面では、インターネットが無料で使えるので、月々の出費を抑えられるのも魅力です。また、BSアンテナ・CSアンテナがありCATVにも対応しているので、おうち時間も充実するでしょう(別途工事、BS・CS・CATVの契約料等が必要な場合あり)。
建物にはエレベーターがついているので、重い荷物があっても安心。共用部には宅配ボックスが設定されているので、不在の時にも荷物を受け取ることができます。また、ペット飼育の相談ができますので、あなたの大切な家族の一員も快適に暮らせるか、ぜひ確認してみてください。
このお部屋は2階以上に位置しているので、通行人や周囲の住人からの視線が気になりにくく、防犯面でも安心。建物のエントランスはオートロックがついており、インターホンにはTVモニタもついているため、相手の顔を確認してから来客対応することができます。
人気の南向きのお部屋。また、フローリングなのでお掃除もラクラク。キッチンはシステムキッチン仕様になっていますので、お料理好きの方にもぴったり。バス・トイレは別なので、のんびりお風呂タイムも楽しめるでしょう。また、雨の日でも浴室乾燥機を使えば、お洗濯も問題ありません。
通信設備面では、インターネットが無料で使えるので、月々の出費を抑えられるのも魅力です。また、BSアンテナ・CSアンテナがありCATVにも対応しているので、おうち時間も充実するでしょう(別途工事、BS・CS・CATVの契約料等が必要な場合あり)。
建物にはエレベーターがついているので、重い荷物があっても安心。共用部には宅配ボックスが設定されているので、不在の時にも荷物を受け取ることができます。また、ペット飼育の相談ができますので、あなたの大切な家族の一員も快適に暮らせるか、ぜひ確認してみてください。
お金・契約の情報
※「-」と表示されているものは、実際は料金が発生するものもございます。詳細はお問い合わせください。
| 家賃 | 18.9万円 | 管理費・共益費 | 1.5万円 |
|---|---|---|---|
| 敷金 | 18.9万円 | 礼金 | なし |
| 入居決定でお祝い金最大100,000円 | |||
| 保証金 | - | 償却・敷引 | - |
| 住宅保険料 | - | 更新料 | - |
| 保証会社利用 | 必須 | 保証会社名 | - |
| 保証会社費用 | - | 保証会社備考 | 保証会社利用必 初回保証料:総賃料の40%、月額保証料:800円 詳細はお問い合わせください |
| 契約形態 | - | 契約期間 | - |
| 入居・引渡期間 | 即時 | 現況 | - |
| 入居可能条件 | ペット相談 | ||
| 契約備考 | ■バイク置き場:月額5000円 ■駐輪場:月額300円 ■駐車場:月額45000円※サイズや空き状況等要確認 ■更新料:新賃料1ヶ月 ■短期解約違約金有 ■ペット相談可:敷金1ヶ月積増/詳細条件要確認 ■法人契約相談可 退去時クリーニング費用負担有 1DK ペット相談 損保【要】 バストイレ別、バルコニー、エアコン、ガスコンロ対応、クロゼット、フローリング、TVインターホン、浴室乾燥機、オートロック、室内洗濯置、シューズボックス、システムキッチン、南向き、追焚機能浴室、温水洗浄便座、エレベーター、洗面所独立、2口コンロ、駐輪場、宅配ボックス、CATV、光ファイバー、礼金不要、BS・CS、防犯カメラ、ペット相談、オートバス、グリル付、全居室洋室、保証人不要、バイク置場、ディンプルキー、ネット使用料不要、エアコン全室、ダブルロックキー、24時間換気システム、クロゼット2ヶ所、3駅以上利用可、3沿線以上利用可、駅徒歩5分以内、24時間ゴミ出し可、敷地内ごみ置き場、LDK12畳以上、都市ガス、南面バルコニー、シューズWIC、IT重説対応物件 敷金積み増し【ペット飼育の場合敷金2ヶ月(総額)】 | ||
部屋の情報
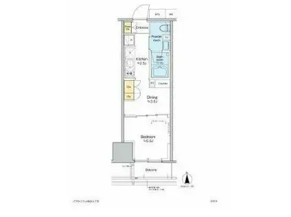
| 間取り | 1DK | 専有面積 | 27.14m2 |
|---|---|---|---|
| 所在階 / 向き | 9階 / 南 | バルコニー面積 | - |
| 水道 / ガス | - | ||
| 設備 | バス・トイレ別、2階以上、オートロック、テレビドアホン、宅配ボックス、浴室乾燥機、追い焚き、インターネット対応、システムキッチン、エアコン、エレベーター、温水洗浄便座、南向き、バルコニー、フローリング、洗髪洗面化粧台、2口コンロ、コンロ:ガス、CATV、CSアンテナ、BSアンテナ、インターネット使用料無料、洗濯機:室内 | ||
| 当社物件ID | 159650621 | ||
建物の情報
| 建物名 | プラウドフラット四谷三丁目 | ||
|---|---|---|---|
| 所在地 | 東京都新宿区四谷 | ||
| 交通 | 東京メトロ丸ノ内線 四谷三丁目駅 徒歩1分 都営新宿線 曙橋駅 徒歩8分 JR中央線 信濃町駅 徒歩11分 | ||
| 階数 | 13階建 | 総戸数 | 115戸 |
| 築年月 | 2025年09月 / 築1年 | エレベーター | あり |
| 駐車場 | 空有 45000円/機械式駐 | バイク置き場 | あり |
| 駐輪場 | あり | 管理人/管理会社 | - |
| 周辺環境 | その他 ビオセボン四谷三丁目店(スーパー)まで191m その他 まいばすけっと四谷4丁目店(スーパー)まで182m その他 セブンイレブン四谷3丁目店(コンビニ)まで72m その他 セブンイレブン新宿左門町店(コンビニ)まで155m その他 ファミリーマート四谷三丁目店(コンビニ)まで222m その他 サンドラッグCVS四谷三丁目店(ドラッグストア)まで110m | ||
| 建物種別 | マンション | 建物構造 | RC(鉄筋コンクリート) |
この部屋の取扱い不動産会社
| 会社名 | (株)リアルビジョン青山支店(SUUMO経由) | ||
|---|---|---|---|
| 所在地 | 東京都渋谷区渋谷2-9-11 インテリックス青山通りビル1階 | 交通 | - |
| 営業時間 | 10:00~19:00 | 定休日 | 定休日無し |
| 免許番号 | 東京都知事86601 | 取引態様 | 仲介 |
| 不動産会社管理番号 | 100465766443 | 当社管理番号 | 89 |
| 所属団体 | (公社)東京都宅地建物取引業協会会員 | ||
| 公正取引協議会 | (公社)首都圏不動産公正取引協議会加盟 | ||
| 取扱い物件情報 | 物件詳細へ | ||
※各種情報と現状に差異がある場合は、現状優先となります。問い合わせをすることで、より詳しい条件、情報を確認する事ができます。
提供:(株)リアルビジョン青山支店(SUUMO経由)
この物件が気になったら掲載期限まであと7日
プラウドフラット四谷三丁目の空き部屋一覧
全部で66の空き部屋があります。
プラウドフラット四谷三丁目に条件(家賃・エリア)が近い物件一覧
| 写真 | 家賃 管理費等 | 敷金 礼金 | 間取り 専有面積 | 築年数 | 最寄り駅 所在地 | キープ | 詳細 |
|---|---|---|---|---|---|---|---|
マンション コンフォリア本駒込(1SLDK/2階) | |||||||
![]() | 26.1万円 1万円 | 26.1万円 なし | 1SLDK 60.06m2 | 築21年 | 東京都三田線 千石駅 徒歩1分 山手線 巣鴨駅 徒歩9分 東京都文京区本駒込2丁目 | 詳細を見る | |
マンション パークアクシス小伝馬町(ワンルーム/3階) | |||||||
![]() | 17.7万円 1.1万円 | 17.7万円 17.7万円 | ワンルーム 31.28m2 | 築10年 | 東京地下鉄日比谷線 小伝馬町駅 徒歩3分 総武本線 馬喰町駅 徒歩5分 山手線 秋葉原駅 徒歩11分 東京都千代田区岩本町1丁目 | 詳細を見る | |
マンション ACPレジデンス文京春日(1LDK/3階) | |||||||
![]() | 20.9万円 2万円 | なし なし | 1LDK 40.65m2 | 築2年 | 東京地下鉄南北線 後楽園駅 徒歩11分 東京地下鉄丸ノ内線 後楽園駅 徒歩11分 東京都文京区春日2丁目 | 詳細を見る | |
マンション KDXレジデンス神田(1K/6階) | |||||||
![]() | 14.5万円 1万円 | 14.5万円 14.5万円 | 1K 25.86m2 | 築11年 | 山手線 神田駅(東京) 徒歩3分 京浜東北・根岸線 神田駅(東京) 徒歩3分 東京地下鉄銀座線 神田駅(東京) 徒歩6分 東京都千代田区内神田2丁目 | 詳細を見る | |
マンション LASANTE 千駄木(1LDK/9階) | |||||||
![]() | 22.1万円 1.2万円 | なし なし | 1LDK 42.35m2 | 築18年 | 山手線 西日暮里駅 徒歩5分 東京都文京区千駄木3丁目 | 詳細を見る | |
マンション モンレーヴ本駒込(1DK/2階) | |||||||
![]() | 13.2万円 5,000円 | 13.2万円 13.2万円 | 1DK 32.89m2 | 新築 | 山手線 駒込駅 徒歩8分 東京都三田線 千石駅 徒歩10分 東京地下鉄南北線 本駒込駅 徒歩12分 東京都文京区本駒込5丁目 | 詳細を見る | |
マンション チェスターコート御茶ノ水(1K/13階) | |||||||
![]() | 15.5万円 1万円 | なし なし | 1K 26.7m2 | 築19年 | 東京都新宿線 小川町駅(東京) 徒歩3分 東京地下鉄千代田線 新御茶ノ水駅 徒歩5分 東京地下鉄丸ノ内線 淡路町駅 徒歩6分 東京都千代田区神田小川町3丁目 | 詳細を見る | |
マンション ZOOM飯田橋(ワンルーム/4階) | |||||||
![]() | 14.9万円 9,000円 | 14.9万円 なし | ワンルーム 25.44m2 | 築13年 | 東京都大江戸線 飯田橋駅 徒歩9分 総武・中央緩行線 飯田橋駅 徒歩10分 東京地下鉄丸ノ内線 後楽園駅 徒歩10分 東京都文京区水道1丁目 | 詳細を見る | |









