賃貸マンション
ザ・パークハビオSOHO横浜関内の賃貸物件情報(2LDK/14階)
| 家賃 | 管理費等 | 敷金 | 礼金 | 間取り | 専有面積 |
|---|---|---|---|---|---|
| 40.5万円 | 2.5万円 | 40.5万円 | なし | 2LDK | 60.59m2 |
入居決定でお祝い金最大100,000円
- 保証金
- -
- 償却・敷引
- -
- 築年数
- 築1年
- 所在階
- 14階
- 向き
- -
Point
★首都圏に強いタウンハウジング蒲田店がご案内させていただきます!LINE&チャット対応でお手軽にスムーズな物件探しが可能です★オンラインでのご対応もお気軽にご相談くださいませ★
提供:(株)CreaVision(SUUMO経由)

詳細情報 ザ・パークハビオSOHO横浜関内
物件紹介
ザ・パークハビオSOHO横浜関内はJR根岸線関内駅から徒歩4分にあり、駅近で通勤通学に便利なマンションです。
このお部屋は2階以上に位置しているので、通行人や周囲の住人からの視線が気になりにくく、防犯面でも安心。建物のエントランスはオートロックがついており、インターホンにはTVモニタもついているため、相手の顔を確認してから来客対応することができます。
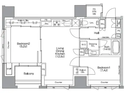
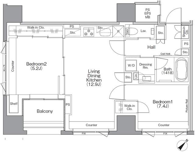
こちらは楽器相談が可能な物件。楽器演奏をお考えの方はぜひ相談してみてください。人気の南向き・フローリングのお部屋。角部屋でもあるため、周囲の居住者の生活音も気になりにくい場所です。室内にはウォークインクローゼットがありますので、たくさんの荷物も効率的に収納ができます。キッチンはシステムキッチン仕様になっていますので、お料理好きの方にもぴったり。バス・トイレは別なので、のんびりお風呂タイムも楽しめるでしょう。また、雨の日でも浴室乾燥機を使えば、お洗濯も問題ありません。
通信設備面では、インターネットが無料で使えるので、月々の出費を抑えられるのも魅力です。また、CATVにも対応しているので、おうち時間も充実するでしょう(別途工事、CATVの契約料等が必要な場合あり)。
建物にはエレベーターがついているので、重い荷物があっても安心。共用部には宅配ボックスが設定されているので、不在の時にも荷物を受け取ることができます。また、ペット飼育の相談ができますので、あなたの大切な家族の一員も快適に暮らせるか、ぜひ確認してみてください。
このお部屋は2階以上に位置しているので、通行人や周囲の住人からの視線が気になりにくく、防犯面でも安心。建物のエントランスはオートロックがついており、インターホンにはTVモニタもついているため、相手の顔を確認してから来客対応することができます。
こちらは楽器相談が可能な物件。楽器演奏をお考えの方はぜひ相談してみてください。人気の南向き・フローリングのお部屋。角部屋でもあるため、周囲の居住者の生活音も気になりにくい場所です。室内にはウォークインクローゼットがありますので、たくさんの荷物も効率的に収納ができます。キッチンはシステムキッチン仕様になっていますので、お料理好きの方にもぴったり。バス・トイレは別なので、のんびりお風呂タイムも楽しめるでしょう。また、雨の日でも浴室乾燥機を使えば、お洗濯も問題ありません。
通信設備面では、インターネットが無料で使えるので、月々の出費を抑えられるのも魅力です。また、CATVにも対応しているので、おうち時間も充実するでしょう(別途工事、CATVの契約料等が必要な場合あり)。
建物にはエレベーターがついているので、重い荷物があっても安心。共用部には宅配ボックスが設定されているので、不在の時にも荷物を受け取ることができます。また、ペット飼育の相談ができますので、あなたの大切な家族の一員も快適に暮らせるか、ぜひ確認してみてください。
お金・契約の情報
※「-」と表示されているものは、実際は料金が発生するものもございます。詳細はお問い合わせください。
| 家賃 | 40.5万円 | 管理費・共益費 | 2.5万円 |
|---|---|---|---|
| 敷金 | 40.5万円 | 礼金 | なし |
| 入居決定でお祝い金最大100,000円 | |||
| 保証金 | - | 償却・敷引 | - |
| 住宅保険料 | - | 更新料 | - |
| 保証会社利用 | 必須 | 保証会社名 | - |
| 保証会社費用 | - | 保証会社備考 | 保証会社利用必 当社指定:初期費用は賃料等の50%、月次保証料は賃料等の1%。その他保証会社条件有 |
| 契約形態 | - | 契約期間 | - |
| 入居・引渡期間 | 即時 | 現況 | - |
| 入居可能条件 | 楽器相談、ペット相談 | ||
| 契約備考 | 京浜急行電鉄本線日ノ出町駅徒歩12分/東京を中心に関東人気エリアの賃貸マンション・アパート情報が豊富!創業46年直営140店舗以上の独自のネットワークで最適なマンション・アパートをお探しします!お部屋探しからご契約までをオンラインで簡単にご対応できます!『ひとを、まちを、もっと豊かに。』2025年賃貸仲介件数全国第2位の実績です!安心してお問合せくださいませ。 合計1.65万円(内訳:MREALプレミアム会費2年:16500円) 更新料新賃料(ヶ月):1.00ヶ月 2LDK ペット相談/楽器相談 普通借家2年 損保【3.2万円2年】 バストイレ別、バルコニー、エアコン、ガスコンロ対応、フローリング、TVインターホン、浴室乾燥機、オートロック、室内洗濯置、シューズボックス、システムキッチン、角住戸、温水洗浄便座、エレベーター、洗面所独立、宅配ボックス、即入居可、礼金不要、3口以上コンロ、防犯カメラ、ペット相談、ウォークインクロゼット、敷金1ヶ月、ネット使用料不要、エアコン全室、保証金不要、楽器相談、24時間ゴミ出し可、都市ガス | ||
部屋の情報
| 間取り | 2LDK | 専有面積 | 60.59m2 |
|---|---|---|---|
| 所在階 / 向き | 14階 / - | バルコニー面積 | - |
| 水道 / ガス | - | ||
| 設備 | バス・トイレ別、2階以上、オートロック、テレビドアホン、宅配ボックス、浴室乾燥機、ウォークインクローゼット、インターネット対応、システムキッチン、エアコン、エレベーター、温水洗浄便座、角部屋、バルコニー、フローリング、洗髪洗面化粧台、2口コンロ、コンロ:ガス、インターネット使用料無料、洗濯機:室内 | ||
| 当社物件ID | 158446637 | ||
建物の情報
| 建物名 | ザ・パークハビオSOHO横浜関内 | ||
|---|---|---|---|
| 所在地 | 神奈川県横浜市中区羽衣町 | ||
| 交通 | JR京浜東北線 関内駅 徒歩5分 ブルーライン 関内駅 徒歩5分 ブルーライン 伊勢佐木長者町駅 徒歩5分 | ||
| 階数 | 15階建 | 総戸数 | 84戸 |
| 築年月 | 2025年03月 / 築1年 | エレベーター | あり |
| 駐車場 | 近隣 250m23000円 | バイク置き場 | - |
| 駐輪場 | - | 管理人/管理会社 | - |
| 周辺環境 | その他 ★★マルエツプチ(スーパー)まで100m その他 ★★まいばすけっと(スーパー)まで170m その他 ★★業務スーパー(スーパー)まで380m その他 ★★サミットストア(スーパー)まで690m | ||
| 建物種別 | マンション | 建物構造 | RC(鉄筋コンクリート) |
この部屋の取扱い不動産会社
| 会社名 | (株)タウンハウジング東京 蒲田店(SUUMO経由) | ||
|---|---|---|---|
| 所在地 | 東京都大田区西蒲田7-62-2 フロリダビル1階 | 交通 | - |
| 営業時間 | AM10:00~PM7:00 | 定休日 | 水曜日 |
| 免許番号 | 国土交通大臣9926 | 取引態様 | 仲介 |
| 不動産会社管理番号 | 100484007857 | 当社管理番号 | 89 |
| 所属団体 | (公社)東京都宅地建物取引業協会会員 | ||
| 公正取引協議会 | (公社)首都圏不動産公正取引協議会加盟 | ||
| 取扱い物件情報 | 物件詳細へ | ||
※各種情報と現状に差異がある場合は、現状優先となります。問い合わせをすることで、より詳しい条件、情報を確認する事ができます。
提供:(株)タウンハウジング東京 蒲田店(SUUMO経由)
この物件が気になったら掲載期限まであと10日
ザ・パークハビオSOHO横浜関内の空き部屋一覧
全部で27の空き部屋があります。
ザ・パークハビオSOHO横浜関内に条件(家賃・エリア)が近い物件一覧
| 写真 | 家賃 管理費等 | 敷金 礼金 | 間取り 専有面積 | 築年数 | 最寄り駅 所在地 | キープ | 詳細 |
|---|---|---|---|---|---|---|---|
一戸建て 小田急電鉄江ノ島線 湘南台駅 徒歩15分 築1年(3LDK) | |||||||
![]() | 34.5万円 5,000円 | なし 34.5万円 | 3LDK 153.6m2 | 築1年 | 小田急電鉄江ノ島線 湘南台駅 徒歩15分 神奈川県藤沢市土棚 | 詳細を見る | |
一戸建て 東急大井町線 二子新地駅 徒歩12分 築3年(2SLDK) | |||||||
![]() | 26.6万円 なし | 26.6万円 13.3万円 | 2SLDK 70.37m2 | 築3年 | 東急大井町線 二子新地駅 徒歩12分 神奈川県川崎市高津区諏訪2丁目 | 詳細を見る | |
マンション リストレジデンス辻堂タワー(3LDK/7階) | |||||||
![]() | 28万円 なし | 56万円 28万円 | 3LDK 75.01m2 | 築16年 | JR東海道本線 辻堂駅 徒歩1分 小田急江ノ島線 本鵠沼駅 徒歩39分 小田急江ノ島線 鵠沼海岸駅 徒歩39分 神奈川県藤沢市辻堂 | 詳細を見る | |
マンション アトラスタワー向ヶ丘遊園(3LDK/15階) | |||||||
![]() | 25万円 なし | 25万円 25万円 | 3LDK 78.71m2 | 築18年 | 小田急線 向ケ丘遊園駅 徒歩3分 JR南武線 登戸駅 徒歩8分 小田急線 和泉多摩川駅 徒歩21分 神奈川県川崎市多摩区登戸 | 詳細を見る | |
マンション 登戸メゾン西棟(3LDK/4階) | |||||||
![]() | 27.4万円 1.4万円 | 27.4万円 27.4万円 | 3LDK 83.98m2 | 新築 | JR南武線 中野島駅 徒歩14分 小田急線 向ケ丘遊園駅 徒歩18分 小田急線 登戸駅 徒歩18分 神奈川県川崎市多摩区登戸 | 詳細を見る | |
マンション LALLURE(2LDK/5階) | |||||||
![]() | 24.4万円 1.5万円 | なし なし | 2LDK 62.88m2 | 築1年 | 京浜東北・根岸線 川崎駅 徒歩14分 京浜急行電鉄本線 京急川崎駅 徒歩16分 神奈川県川崎市川崎区新川通 | 詳細を見る | |
マンション ラゾーナ川崎レジデンス・セントラルタワー(2LDK/33階) | |||||||
![]() | 38.5万円 2万円 | 38.5万円 38.5万円 | 2LDK 85.43m2 | 築20年 | JR京浜東北線 川崎駅 徒歩1分 京急本線 京急川崎駅 徒歩6分 JR南武線 尻手駅 徒歩16分 神奈川県川崎市幸区堀川町 | 詳細を見る | |
マンション パークタワー向ケ丘遊園(3LDK/8階) | |||||||
![]() | 27.3万円 1万円 | 27.3万円 27.3万円 | 3LDK 77.28m2 | 築1年 | 小田急線 向ケ丘遊園駅 徒歩2分 JR南武線 登戸駅 徒歩7分 神奈川県川崎市多摩区登戸 | 詳細を見る | |









