賃貸マンション
ザ・パークハビオSOHO横浜関内の賃貸物件情報(1LDK/12階)
| 家賃 | 管理費等 | 敷金 | 礼金 | 間取り | 専有面積 |
|---|---|---|---|---|---|
| 23.3万円 | 2.5万円 | 23.3万円 | なし | 1LDK | 54.2m2 |
入居決定でお祝い金最大100,000円
Point
弊社では全物件初期費用クレジットカード決済が可能♪
提供:アパマンショップ横浜西口店

詳細情報 ザ・パークハビオSOHO横浜関内
物件紹介
ザ・パークハビオSOHO横浜関内は京浜東北・根岸線関内駅から徒歩3分にあり、駅近で通勤通学に便利なマンションです。
このお部屋は2階以上に位置しているので、通行人や周囲の住人からの視線が気になりにくく、防犯面でも安心。建物のエントランスはオートロックがついており、インターホンにはTVモニタもついているため、相手の顔を確認してから来客対応することができます。
おしゃれなデザイナーズ物件!また、楽器相談が可能な物件となっているので、楽器演奏をお考えの方はぜひ相談してみてください。人気の南向き・フローリングのお部屋。角部屋でもあるため、周囲の居住者の生活音も気になりにくい場所です。室内にはウォークインクローゼットがありますので、たくさんの荷物も効率的に収納ができます。キッチンはシステムキッチン仕様になっていますので、お料理好きの方にもぴったり。バス・トイレは別なので、のんびりお風呂タイムも楽しめるでしょう。また、雨の日でも浴室乾燥機を使えば、お洗濯も問題ありません。
通信設備面では、インターネットが無料で使えるので、月々の出費を抑えられるのも魅力です。また、BSアンテナ・CSアンテナもありますので、おうち時間も充実するでしょう(別途工事、BS・CSの契約料等が必要な場合あり)。
建物にはエレベーターがついているので、重い荷物があっても安心。共用部には宅配ボックスが設定されているので、不在の時にも荷物を受け取ることができます。また、ペット飼育の相談ができますので、あなたの大切な家族の一員も快適に暮らせるか、ぜひ確認してみてください。
コンビニまで徒歩9分の場所にあり、日用品や食料品のお買い物にも便利です。
このお部屋は2階以上に位置しているので、通行人や周囲の住人からの視線が気になりにくく、防犯面でも安心。建物のエントランスはオートロックがついており、インターホンにはTVモニタもついているため、相手の顔を確認してから来客対応することができます。
おしゃれなデザイナーズ物件!また、楽器相談が可能な物件となっているので、楽器演奏をお考えの方はぜひ相談してみてください。人気の南向き・フローリングのお部屋。角部屋でもあるため、周囲の居住者の生活音も気になりにくい場所です。室内にはウォークインクローゼットがありますので、たくさんの荷物も効率的に収納ができます。キッチンはシステムキッチン仕様になっていますので、お料理好きの方にもぴったり。バス・トイレは別なので、のんびりお風呂タイムも楽しめるでしょう。また、雨の日でも浴室乾燥機を使えば、お洗濯も問題ありません。
通信設備面では、インターネットが無料で使えるので、月々の出費を抑えられるのも魅力です。また、BSアンテナ・CSアンテナもありますので、おうち時間も充実するでしょう(別途工事、BS・CSの契約料等が必要な場合あり)。
建物にはエレベーターがついているので、重い荷物があっても安心。共用部には宅配ボックスが設定されているので、不在の時にも荷物を受け取ることができます。また、ペット飼育の相談ができますので、あなたの大切な家族の一員も快適に暮らせるか、ぜひ確認してみてください。
コンビニまで徒歩9分の場所にあり、日用品や食料品のお買い物にも便利です。
お金・契約の情報
※「-」と表示されているものは、実際は料金が発生するものもございます。詳細はお問い合わせください。
| 家賃 | 23.3万円 | 管理費・共益費 | 2.5万円 |
|---|---|---|---|
| 敷金 | 23.3万円 | 礼金 | なし |
| 入居決定でお祝い金最大100,000円 | |||
| 保証金 | - | 償却・敷引 | - |
| 住宅保険料 | 3.2万円(2年) | 更新料 | - |
| 保証会社利用 | 必須 | 保証会社名 | その他 |
| 保証会社費用 | - | 保証会社備考 | 当社指定:初期費用は賃料等の50%、月次保証料は賃料等の1%。その他保証会社条件有 |
| 契約形態 | - | 契約期間 | 2年 |
| 入居・引渡期間 | 相談 | 現況 | - |
| 入居可能条件 | 楽器可、ペット可 | ||
| 契約備考 | M−REALプレミアム会費2年 19800円 | ||
部屋の情報
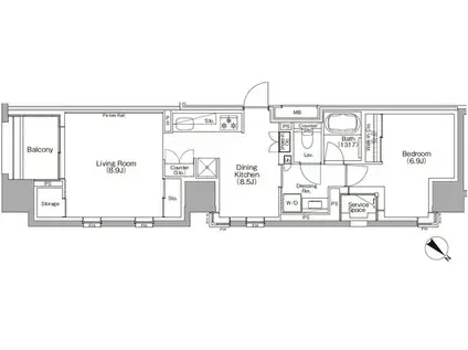
| 間取り | 1LDK | 専有面積 | 54.2m2 |
|---|---|---|---|
| 間取り詳細 | LDK(17.4帖)、洋室(6.9帖) | ||
| 所在階 / 向き | 12階 / 南東 | バルコニー面積 | - |
| 水道 / ガス | ガス【都市】 | ||
| 設備 | バス・トイレ別、オートロック、テレビドアホン、宅配ボックス、浴室乾燥機、ウォークインクローゼット、インターネット対応、システムキッチン、エレベーター、温水洗浄便座、角部屋、バルコニー、フローリング、インターネット使用料無料、洗濯機:室内 | ||
| 当社物件ID | 158417685 | ||
建物の情報
| 建物名 | ザ・パークハビオSOHO横浜関内 | ||
|---|---|---|---|
| 所在地 | 神奈川県横浜市中区羽衣町2丁目 | ||
| 交通 | 京浜東北・根岸線 関内駅 徒歩5分 | ||
| 階数 | 15階建 | 総戸数 | 84戸 |
| 築年月 | 2025年03月 / 築2年 | エレベーター | あり |
| 駐車場 | - | バイク置き場 | - |
| 駐輪場 | あり | 管理人/管理会社 | - |
| 周辺環境 | その他 ファミリーマート 徒歩2分(141m) その他 マルエツプチ関内店 徒歩2分(105m) その他 マツモトキヨシ伊勢佐木1丁目店 徒歩3分(181m) その他 ファミリーマート 徒歩6分(460m) その他 FitCareExpress 関内駅前店 徒歩6分(431m) その他 ハックドラッグ関内セルテ店 徒歩6分(431m) その他 ガスト関内店 徒歩6分(431m) その他 ドンキーホーテ 徒歩6分(480m) | ||
| 建物種別 | マンション | 建物構造 | RC(鉄筋コンクリート) |
この部屋の取扱い不動産会社
| 会社名 | アパマンショップ上大岡店 | ||
|---|---|---|---|
| 所在地 | 神奈川県横浜市港南区上大岡西1丁目 16-19上大岡エントランスビルB1 | 交通 | 京浜急行電鉄本線上大岡から徒歩1分 |
| 営業時間 | 10:00〜19:00 | 定休日 | - |
| 免許番号 | 神奈川県知事(10)13668 | 取引態様 | 仲介 |
| 不動産会社管理番号 | 104904464 | 当社管理番号 | 4 |
| 所属団体 | (公社)神奈川県宅地建物取引業協会、全国賃貸管理ビジネス協会 | ||
| 公正取引協議会 | (公社) 首都圏不動産公正取引協議会加盟 | ||
| 取扱い物件情報 | 物件詳細へ | ||
※各種情報と現状に差異がある場合は、現状優先となります。問い合わせをすることで、より詳しい条件、情報を確認する事ができます。
提供:アパマンショップ上大岡店
この物件が気になったら掲載期限まであと6日
ザ・パークハビオSOHO横浜関内に条件(家賃・エリア)が近い物件一覧
| 写真 | 家賃 管理費等 | 敷金 礼金 | 間取り 専有面積 | 築年数 | 最寄り駅 所在地 | キープ | 詳細 |
|---|---|---|---|---|---|---|---|
マンション ブランシエスタ新丸子リバーフロント(2LDK/9階) | |||||||
![]() | 20.7万円 2万円 | 20.7万円 20.7万円 | 2LDK 42.03m2 | 築1年 | 東急東横線 新丸子駅 徒歩8分 東急東横線 武蔵小杉駅 徒歩14分 JR南武線 向河原駅 徒歩16分 神奈川県川崎市中原区上丸子八幡町 | 詳細を見る | |
マンション グランクロス サクラ(1SLDK/1階) | |||||||
![]() | 17万円 8,500円 | なし 34万円 | 1SLDK 64.03m2 | 新築 | JR横須賀線 新川崎駅 徒歩19分 JR南武線 鹿島田駅 徒歩24分 神奈川県川崎市幸区南加瀬 | 詳細を見る | |
マンション ライオンズマンション横濱元町キャナリシア(3LDK/3階) | |||||||
![]() | 21.5万円 1万円 | 43万円 21.5万円 | 3LDK 71.21m2 | 築22年 | みなとみらい線 元町・中華街駅 徒歩7分 神奈川県横浜市中区新山下 | 詳細を見る | |
マンション メゾン オルジュ(2LDK/3階) | |||||||
![]() | 28.8万円 1万円 | 28.8万円 28.8万円 | 2LDK 68.33m2 | 築1年 | 東急東横線 新丸子駅 徒歩4分 東急東横線 武蔵小杉駅 徒歩10分 JR南武線 武蔵小杉駅 徒歩10分 神奈川県川崎市中原区丸子通 | 詳細を見る | |
マンション コンフォーザ(3LDK/2階) | |||||||
![]() | 27.9万円 1.5万円 | なし 27.9万円 | 3LDK 76.02m2 | 築1年 | 東急東横線 元住吉駅 徒歩11分 東急東横線 武蔵小杉駅 徒歩13分 JR南武線 向河原駅 徒歩17分 神奈川県川崎市中原区木月住吉町 | 詳細を見る | |
マンション ヴェール・クレール武蔵小杉(2SLDK/2階) | |||||||
![]() | 27万円 1万円 | 27万円 27万円 | 2SLDK 57.94m2 | 築1年 | JR南武線 武蔵小杉駅 徒歩10分 東急東横線 武蔵小杉駅 徒歩11分 JR南武線 武蔵中原駅 徒歩15分 神奈川県川崎市中原区今井仲町 | 詳細を見る | |
マンション ルネ・ブランシュ横浜海岸通(1LDK/7階) | |||||||
![]() | 21万円 1万円 | なし 21万円 | 1LDK 52.72m2 | 築21年 | みなとみらい線 日本大通り駅 徒歩3分 みなとみらい線 馬車道駅 徒歩4分 JR京浜東北線 関内駅 徒歩10分 神奈川県横浜市中区海岸通 | 詳細を見る | |







