賃貸マンション
ザ・パークハビオSOHO横浜関内の賃貸物件情報(ワンルーム/8階)
| 家賃 | 管理費等 | 敷金 | 礼金 | 間取り | 専有面積 |
|---|---|---|---|---|---|
| 12.7万円 | 2万円 | 12.7万円 | なし | ワンルーム | 27.36m2 |
入居決定でお祝い金最大100,000円
- 保証金
- -
- 償却・敷引
- -
- 築年数
- 新築(築1年)
- 所在階
- 8階
- 向き
- 北西
Point
まずはお問い合わせ!
不動産会社は街のプロ、あなたに合った物件がきっと見つかります。
提供:アパマンショップ金沢文庫店

詳細情報 ザ・パークハビオSOHO横浜関内
物件紹介
ザ・パークハビオSOHO横浜関内は京浜東北・根岸線関内駅から徒歩3分にあり、駅近で通勤通学に便利なマンションです。
このお部屋は2階以上に位置しているので、通行人や周囲の住人からの視線が気になりにくく、防犯面でも安心。建物のエントランスはオートロックがついており、インターホンにはTVモニタもついているため、相手の顔を確認してから来客対応することができます。
おしゃれなデザイナーズ物件!また、楽器相談が可能な物件となっているので、楽器演奏をお考えの方はぜひ相談してみてください。人気の角部屋で周囲の居住者の生活音も気になりにくく、また、フローリングのお部屋なのでお掃除もラクラク。キッチンはシステムキッチン仕様になっていますので、お料理好きの方にもぴったり。バス・トイレは別なので、のんびりお風呂タイムも楽しめるでしょう。また、雨の日でも浴室乾燥機を使えば、お洗濯も問題ありません。
通信設備面では、インターネットが無料で使えるので、月々の出費を抑えられるのも魅力です(別途工事等が必要な場合あり)。
建物にはエレベーターがついているので、重い荷物があっても安心。共用部には宅配ボックスが設定されているので、不在の時にも荷物を受け取ることができます。また、ペット飼育の相談ができますので、あなたの大切な家族の一員も快適に暮らせるか、ぜひ確認してみてください。
このお部屋は2階以上に位置しているので、通行人や周囲の住人からの視線が気になりにくく、防犯面でも安心。建物のエントランスはオートロックがついており、インターホンにはTVモニタもついているため、相手の顔を確認してから来客対応することができます。
おしゃれなデザイナーズ物件!また、楽器相談が可能な物件となっているので、楽器演奏をお考えの方はぜひ相談してみてください。人気の角部屋で周囲の居住者の生活音も気になりにくく、また、フローリングのお部屋なのでお掃除もラクラク。キッチンはシステムキッチン仕様になっていますので、お料理好きの方にもぴったり。バス・トイレは別なので、のんびりお風呂タイムも楽しめるでしょう。また、雨の日でも浴室乾燥機を使えば、お洗濯も問題ありません。
通信設備面では、インターネットが無料で使えるので、月々の出費を抑えられるのも魅力です(別途工事等が必要な場合あり)。
建物にはエレベーターがついているので、重い荷物があっても安心。共用部には宅配ボックスが設定されているので、不在の時にも荷物を受け取ることができます。また、ペット飼育の相談ができますので、あなたの大切な家族の一員も快適に暮らせるか、ぜひ確認してみてください。
お金・契約の情報
※「-」と表示されているものは、実際は料金が発生するものもございます。詳細はお問い合わせください。
| 家賃 | 12.7万円 | 管理費・共益費 | 2万円 |
|---|---|---|---|
| 敷金 | 12.7万円 | 礼金 | なし |
| 入居決定でお祝い金最大100,000円 | |||
| 保証金 | - | 償却・敷引 | - |
| 住宅保険料 | 1円 | 更新料 | - |
| その他費用 | M-REALプレミアム会費2年:1.98万円 | ||
| 保証会社利用 | 必須 | 保証会社名 | - |
| 保証会社費用 | - | 保証会社備考 | 当社指定:初期費用は賃料等の50%、月次保証料は賃料等の1%。その他保証会社条件有 |
| 契約形態 | - | 契約期間 | 2年 |
| 入居・引渡期間 | 即時 | 現況 | - |
| 入居可能条件 | 楽器可、ペット可 | ||
| 契約備考 | その他設備/条件:室内洗濯機置き場、ごみ出し24時間OK、防犯カメラ、クローゼット、シューズボックス | ||
部屋の情報
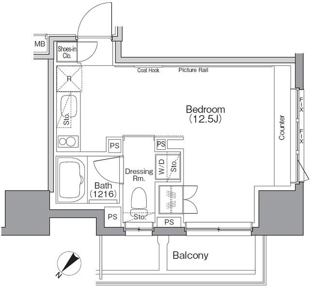
| 間取り | ワンルーム | 専有面積 | 27.36m2 |
|---|---|---|---|
| 間取り詳細 | 洋室(12.5帖) | ||
| 所在階 / 向き | 8階 / 北西 | バルコニー面積 | - |
| 水道 / ガス | ガス【都市】 | ||
| 設備 | バス・トイレ別、オートロック、テレビドアホン、宅配ボックス、浴室乾燥機、インターネット対応、システムキッチン、エアコン、エレベーター、温水洗浄便座、角部屋、バルコニー、フローリング、コンロ:IH、インターネット使用料無料 | ||
| 当社物件ID | 159372634 | ||
建物の情報
| 建物名 | ザ・パークハビオSOHO横浜関内 | ||
|---|---|---|---|
| 所在地 | 神奈川県横浜市中区羽衣町2丁目 | ||
| 交通 | 京浜東北・根岸線 関内駅 徒歩5分 横浜市ブルーライン 関内駅 徒歩5分 | ||
| 階数 | 地下1地上15階建 | 総戸数 | 84戸 |
| 築年月 | 2025年03月 / 新築(築1年) | エレベーター | あり |
| 駐車場 | なし | バイク置き場 | - |
| 駐輪場 | - | 管理人/管理会社 | - |
| 周辺環境 | その他 ドラッグストア その他 公園 その他 銀行 その他 * | ||
| 建物種別 | マンション | 建物構造 | RC(鉄筋コンクリート) |
この部屋の取扱い不動産会社
| 会社名 | ハウスコム東神奈川株式会社 横浜店 | ||
|---|---|---|---|
| 所在地 | 神奈川県横浜市西区20-2共栄ビル1階 | 交通 | - |
| 営業時間 | 10:00~18:00 | 定休日 | - |
| 免許番号 | 神奈川県知事(1)第31769号 | 取引態様 | 仲介 |
| 不動産会社管理番号 | HC4-5089516-802-0054 | 当社管理番号 | 468 |
| 所属団体 | 、 | ||
| 取扱い物件情報 | 物件詳細へ | ||
※各種情報と現状に差異がある場合は、現状優先となります。問い合わせをすることで、より詳しい条件、情報を確認する事ができます。
提供:ハウスコム東神奈川株式会社 横浜店
この物件が気になったら掲載期限まであと5日
ザ・パークハビオSOHO横浜関内の空き部屋一覧
全部で24の空き部屋があります。
ザ・パークハビオSOHO横浜関内に条件(家賃・エリア)が近い物件一覧
| 写真 | 家賃 管理費等 | 敷金 礼金 | 間取り 専有面積 | 築年数 | 最寄り駅 所在地 | キープ | 詳細 |
|---|---|---|---|---|---|---|---|
マンション LEXE 横濱関内(ワンルーム/3階) | |||||||
![]() | 8.3万円 1.2万円 | なし なし | ワンルーム 21.71m2 | 築1年 | 横浜市ブルーライン 伊勢佐木長者町駅 徒歩5分 神奈川県横浜市中区福富町西通 | 詳細を見る | |
マンション ジェノヴィア横浜関内IIスカイガーデン(1K/11階) | |||||||
![]() | 8.2万円 1万円 | 8.2万円 8.2万円 | 1K 22.91m2 | 築6年 | ブルーライン 伊勢佐木長者町駅 徒歩4分 JR京浜東北線 関内駅 徒歩5分 京急本線 日ノ出町駅 徒歩7分 神奈川県横浜市中区長者町 | 詳細を見る | |
マンション スカイエフビーケー(2DK/4階) | |||||||
![]() | 9.1万円 3,000円 | 9.1万円 9.1万円 | 2DK 45.34m2 | 築39年 | JR南武線 矢向駅 徒歩17分 JR横須賀線 新川崎駅 徒歩18分 JR南武線 鹿島田駅 徒歩21分 神奈川県川崎市幸区小倉 | 詳細を見る | |
アパート COAST TERRACE桜山(1LDK/3階) | |||||||
![]() | 11万円 3,000円 | 11万円 11万円 | 1LDK 30.38m2 | 新築 | 京急逗子線 逗子・葉山駅 徒歩14分 JR横須賀線 逗子駅 徒歩20分 神奈川県逗子市桜山 | 詳細を見る | |
マンション プリオーレ鎌倉(1LDK/1階) | |||||||
![]() | 12.6万円 8,000円 | 12.6万円 18.9万円 | 1LDK 42.12m2 | 築2年 | JR東海道本線 大船駅 徒歩20分 JR根岸線 本郷台駅 徒歩38分 神奈川県鎌倉市大船 | 詳細を見る | |
マンション GENOVIA二子新地(1K/2階) | |||||||
![]() | 12.3万円 1万円 | なし なし | 1K 25.35m2 | 築1年 | 東急田園都市線 二子新地駅 徒歩5分 東急田園都市線 高津駅(神奈川) 徒歩11分 神奈川県川崎市高津区瀬田 | 詳細を見る | |
テラスハウス 鎌倉市材木座5丁目計画(1LDK) | |||||||
![]() | 12.3万円 3,000円 | なし 18.45万円 | 1LDK 43.06m2 | 築1年 | 江ノ島電鉄 和田塚駅 徒歩10分 神奈川県鎌倉市材木座5丁目 | 詳細を見る | |
アパート セレーノ たまプラーザ(1K/2階) | |||||||
![]() | 8.2万円 3,000円 | なし なし | 1K 20.17m2 | 築1年 | 東急田園都市線 鷺沼駅 徒歩13分 東急田園都市線 たまプラーザ駅 徒歩14分 東急田園都市線 宮前平駅 徒歩28分 神奈川県川崎市宮前区犬蔵 | 詳細を見る | |








