賃貸マンション
エスリード 京橋ステーションプラザの賃貸物件情報(1K/10階)
| 家賃 | 管理費等 | 敷金 | 礼金 | 間取り | 専有面積 |
|---|---|---|---|---|---|
| 5.2万円 | 1万円 | なし | 5.2万円 | 1K | 20.3m2 |
入居決定でお祝い金最大100,000円
- 保証金
- -
- 償却・敷引
- -
- 築年数
- 築16年
- 所在階
- 10階
- 向き
- 西
Point
大阪市都島区近辺での物件情報:大好評のあの物件「エスリード京橋ステーションプラザ」。薬や日用品を買うのに便利なダイコクドラッグ 京橋店まで432mです。セキュリティ面は、オートロック・TVインターホンなどを設置しているので安全面でも優れております。快適な住まいで快適な生活を送りましょう。当社はお客様
提供:株式会社KARIRU

詳細情報 エスリード 京橋ステーションプラザ
物件紹介
エスリード 京橋ステーションプラザは大阪環状線京橋駅から徒歩4分にあり、駅近で通勤通学に便利なマンションです。
このお部屋は2階以上に位置しているので、通行人や周囲の住人からの視線が気になりにくく、防犯面でも安心。建物のエントランスはオートロックがついており、インターホンにはTVモニタもついているため、相手の顔を確認してから来客対応することができます。
人気の角部屋で周囲の居住者の生活音も気になりにくく、また、フローリングのお部屋なのでお掃除もラクラク。キッチンはシステムキッチン仕様になっていますので、お料理好きの方にもぴったり。バス・トイレは別なので、のんびりお風呂タイムも楽しめるでしょう。また、雨の日でも浴室乾燥機を使えば、お洗濯も問題ありません。
通信設備面では、インターネットが無料で使えるので、月々の出費を抑えられるのも魅力です。また、BSアンテナ・CSアンテナがありCATVにも対応しているので、おうち時間も充実するでしょう(別途工事、BS・CS・CATVの契約料等が必要な場合あり)。
建物にはエレベーターがついているので、重い荷物があっても安心。共用部には宅配ボックスが設定されているので、不在の時にも荷物を受け取ることができます。また、ペット飼育の相談ができますので、あなたの大切な家族の一員も快適に暮らせるか、ぜひ確認してみてください。
コンビニまで徒歩2分の場所にあり、日用品や食料品のお買い物にも便利です。
このお部屋は2階以上に位置しているので、通行人や周囲の住人からの視線が気になりにくく、防犯面でも安心。建物のエントランスはオートロックがついており、インターホンにはTVモニタもついているため、相手の顔を確認してから来客対応することができます。
人気の角部屋で周囲の居住者の生活音も気になりにくく、また、フローリングのお部屋なのでお掃除もラクラク。キッチンはシステムキッチン仕様になっていますので、お料理好きの方にもぴったり。バス・トイレは別なので、のんびりお風呂タイムも楽しめるでしょう。また、雨の日でも浴室乾燥機を使えば、お洗濯も問題ありません。
通信設備面では、インターネットが無料で使えるので、月々の出費を抑えられるのも魅力です。また、BSアンテナ・CSアンテナがありCATVにも対応しているので、おうち時間も充実するでしょう(別途工事、BS・CS・CATVの契約料等が必要な場合あり)。
建物にはエレベーターがついているので、重い荷物があっても安心。共用部には宅配ボックスが設定されているので、不在の時にも荷物を受け取ることができます。また、ペット飼育の相談ができますので、あなたの大切な家族の一員も快適に暮らせるか、ぜひ確認してみてください。
コンビニまで徒歩2分の場所にあり、日用品や食料品のお買い物にも便利です。
お金・契約の情報
※「-」と表示されているものは、実際は料金が発生するものもございます。詳細はお問い合わせください。
| 家賃 | 5.2万円 | 管理費・共益費 | 1万円 |
|---|---|---|---|
| 敷金 | なし | 礼金 | 5.2万円 |
| 入居決定でお祝い金最大100,000円 | |||
| 保証金 | - | 償却・敷引 | - |
| 住宅保険料 | 住宅保険料あり(2年) | 更新料 | - |
| 保証会社利用 | 必須 | 保証会社名 | - |
| 保証会社費用 | - | 保証会社備考 | 初回保証料50% 月々保証料1% 初回保証料50% 月々保証料1% |
| 契約形態 | - | 契約期間 | 2年 |
| 入居・引渡期間 | 相談 | 現況 | 空室 |
| 入居可能条件 | ペット相談 | ||
| 契約備考 | こだわりポイント満載のエスリード京橋ステーションプラザ。薬や日用品を買うのに便利なダイコクドラッグ 京橋店まで432mです。収納はシューズボックス・クロゼットなど豊富なので、衣類や履き物の整理がしやすく便利です。大阪市都島区エリアや大阪環状線京橋付近で、あなたのニーズに合ったお部屋探しをお手伝い致します。まずは当社へご連絡をお待ちしております。 | ||
部屋の情報
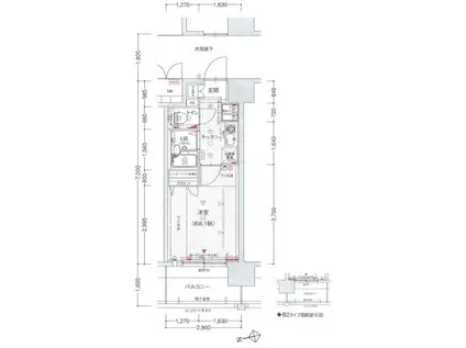
| 間取り | 1K | 専有面積 | 20.3m2 |
|---|---|---|---|
| 所在階 / 向き | 10階 / 西 | バルコニー面積 | - |
| 水道 / ガス | 水道【公営】、ガス【都市】 | ||
| 設備 | バス・トイレ別、オートロック、テレビドアホン、宅配ボックス、浴室乾燥機、インターネット対応、システムキッチン、エアコン、エレベーター、温水洗浄便座、バルコニー、フローリング、コンロ:ガス、CATV、CSアンテナ、BSアンテナ、シャワー、給湯、洗濯機:室内、1口コンロ、タイル張り | ||
| 当社物件ID | 467690 | ||
建物の情報
| 建物名 | エスリード 京橋ステーションプラザ | ||
|---|---|---|---|
| 所在地 | 大阪府大阪市都島区東野田町5丁目 6-2 | ||
| 交通 | 大阪環状線 京橋駅(大阪) 徒歩4分 JR東西線 京橋駅(大阪) 徒歩4分 | ||
| 階数 | 10階建 | 総戸数 | 80戸 |
| 築年月 | 2010年03月 / 築16年 | エレベーター | あり |
| 駐車場 | 近隣 1.98万円/月 徒歩3分(200m) 要確認 | バイク置き場 | あり |
| 駐輪場 | あり | 管理人/管理会社 | 巡回 |
| 周辺環境 | コンビニ 徒歩2分(105m) 販売店 徒歩2分(105m) 中学校 大阪市立桜宮中学校 徒歩5分(398m) | ||
| 建物種別 | マンション | 建物構造 | RC(鉄筋コンクリート) |
この部屋の取扱い不動産会社
| 会社名 | 株式会社KARIRU | ||
|---|---|---|---|
| 所在地 | 大阪府大阪市都島区東野田町2-9-13 松和京橋ビル4F | 交通 | JR環状線「京橋駅」北口徒歩3分 |
| 営業時間 | 10:00~24:00 | 定休日 | 年末年始 |
| 免許番号 | 大阪府知事(1)064547号 | 取引態様 | 仲介 |
| 不動産会社管理番号 | 331310 | 当社管理番号 | 462 |
| 取扱い物件情報 | 物件詳細へ | ||
※各種情報と現状に差異がある場合は、現状優先となります。問い合わせをすることで、より詳しい条件、情報を確認する事ができます。
提供:株式会社KARIRU
この物件が気になったら掲載期限まであと4日
エスリード 京橋ステーションプラザに条件(家賃・エリア)が近い物件一覧
| 写真 | 家賃 管理費等 | 敷金 礼金 | 間取り 専有面積 | 築年数 | 最寄り駅 所在地 | キープ | 詳細 |
|---|---|---|---|---|---|---|---|
アパート 阪堺電気軌道阪堺線 石津北駅 徒歩5分 築2年(1K/3階) | |||||||
![]() | 6.15万円 4,500円 | なし なし | 1K 30.15m2 | 築2年 | 阪堺電気軌道阪堺線 石津北駅 徒歩5分 南海電鉄南海本線 石津川駅 徒歩8分 南海電鉄南海本線 諏訪ノ森駅 徒歩21分 大阪府堺市西区浜寺石津町中1丁 | 詳細を見る | |
アパート ラフィーネクローバー(1K/2階) | |||||||
![]() | 6.5万円 9,000円 | なし 5.3万円 | 1K 29.44m2 | 築4年 | 近鉄難波・奈良線 布施駅 徒歩3分 大阪市千日前線 小路駅(大阪メトロ) 徒歩9分 近鉄難波・奈良線 今里駅(近鉄) 徒歩16分 大阪府東大阪市足代1丁目 | 詳細を見る | |
アパート ヴァンヴェール・オオテ(1K/2階) | |||||||
![]() | 4.4万円 4,100円 | なし なし | 1K 24m2 | 築25年 | 阪和線 津久野駅 徒歩12分 阪和線 鳳駅 徒歩18分 阪和線 上野芝駅 徒歩24分 大阪府堺市西区家原寺町1丁 | 詳細を見る | |
アパート クレールメゾン(1K/2階) | |||||||
| 6.75万円 1.1万円 | なし 6.75万円 | 1K 25.2m2 | 築24年 | 東海道本線 吹田駅(JR) 徒歩1分 阪急電鉄千里線 吹田駅(阪急) 徒歩10分 阪急電鉄京都線 相川駅 徒歩15分 大阪府吹田市朝日町5-5 | 詳細を見る | ||
アパート ヴォヌール鳳(1K/2階) | |||||||
![]() | 5.5万円 2,900円 | なし 8万円 | 1K 25.08m2 | 築14年 | 阪和線 鳳駅 徒歩4分 阪和線 津久野駅 徒歩20分 南海電鉄南海本線 羽衣駅 徒歩28分 大阪府堺市西区鳳東町4丁 | 詳細を見る | |
アパート フジパレス花園中央公園南番館(1LDK/1階) | |||||||
![]() | 6.7万円 4,500円 | なし 10万円 | 1LDK 40.44m2 | 新築 | 近鉄難波・奈良線 東花園駅 徒歩6分 近鉄難波・奈良線 河内花園駅 徒歩14分 近鉄難波・奈良線 瓢箪山駅(大阪) 徒歩25分 大阪府東大阪市吉田6丁目 | 詳細を見る | |
マンション サンハイツ松原(2LDK/4階) | |||||||
![]() | 5.5万円 5,000円 | なし なし | 2LDK 45.36m2 | 築38年 | 近鉄南大阪線 河内松原駅 徒歩10分 近鉄南大阪線 高見ノ里駅 徒歩14分 近鉄南大阪線 河内天美駅 徒歩20分 大阪府松原市阿保2丁目 | 詳細を見る | |






