賃貸マンション
エスリード 京橋ステーションプラザの賃貸物件情報(1K/4階)
| 家賃 | 管理費等 | 敷金 | 礼金 | 間取り | 専有面積 |
|---|---|---|---|---|---|
| 6.6万円 | 1.2万円 | なし | なし | 1K | 20.3m2 |
入居決定でお祝い金最大100,000円
- 保証金
- -
- 償却・敷引
- -
- 築年数
- 築17年
- 所在階
- 4階
- 向き
- 東
Point
当店は、普通は掛かるあの費用『仲介手数料』が無料です♪この物件に限らず、他にもいろいろ扱えます♪当店がネットに掲載していない物件もありますので、お気軽にお問い合わせください♪
提供:(株)マスホーム(SUUMO経由)

詳細情報 エスリード 京橋ステーションプラザ
物件紹介
エスリード 京橋ステーションプラザは京阪本線京橋駅から徒歩6分にあり、駅近で通勤通学に便利なマンションです。
このお部屋は2階以上に位置しているので、通行人や周囲の住人からの視線が気になりにくく、防犯面でも安心。建物のエントランスはオートロックがついており、インターホンにはTVモニタもついているため、相手の顔を確認してから来客対応することができます。
フローリングのお部屋なのでお掃除もラクラク。キッチンはシステムキッチン仕様になっていますので、お料理好きの方にもぴったり。バス・トイレは別なので、のんびりお風呂タイムも楽しめるでしょう。また、雨の日でも浴室乾燥機を使えば、お洗濯も問題ありません。
通信設備面では、インターネット接続が可能です。また、BSアンテナ・CSアンテナがありCATVにも対応しているので、おうち時間も充実するでしょう(別途工事、契約料が必要な場合あり)。
建物にはエレベーターがついているので、重い荷物があっても安心。共用部には宅配ボックスが設定されているので、不在の時にも荷物を受け取ることができます。
このお部屋は2階以上に位置しているので、通行人や周囲の住人からの視線が気になりにくく、防犯面でも安心。建物のエントランスはオートロックがついており、インターホンにはTVモニタもついているため、相手の顔を確認してから来客対応することができます。
フローリングのお部屋なのでお掃除もラクラク。キッチンはシステムキッチン仕様になっていますので、お料理好きの方にもぴったり。バス・トイレは別なので、のんびりお風呂タイムも楽しめるでしょう。また、雨の日でも浴室乾燥機を使えば、お洗濯も問題ありません。
通信設備面では、インターネット接続が可能です。また、BSアンテナ・CSアンテナがありCATVにも対応しているので、おうち時間も充実するでしょう(別途工事、契約料が必要な場合あり)。
建物にはエレベーターがついているので、重い荷物があっても安心。共用部には宅配ボックスが設定されているので、不在の時にも荷物を受け取ることができます。
お金・契約の情報
※「-」と表示されているものは、実際は料金が発生するものもございます。詳細はお問い合わせください。
| 家賃 | 6.6万円 | 管理費・共益費 | 1.2万円 |
|---|---|---|---|
| 敷金 | なし | 礼金 | なし |
| 入居決定でお祝い金最大100,000円 | |||
| 保証金 | - | 償却・敷引 | - |
| 住宅保険料 | - | 更新料 | - |
| 保証会社利用 | 必須 | 保証会社名 | - |
| 保証会社費用 | - | 保証会社備考 | 保証会社利用必 実費/初回保証料:総賃料の100%更新時:20000円/年毎 |
| 契約形態 | 定期借家 | 契約期間 | 2年 |
| 入居・引渡期間 | 即時 | 現況 | - |
| 契約備考 | JR片町線京橋駅徒歩9分/同じ物件借りるなら仲介手数料無料の当店におまかせください!あんな物件、こんな物件♪当店がネットに掲載していない物件も♪いろいろお尋ねください♪初期費用(保証会社費用や火災保険料など)を明確にして初期費用をご提示させていただきます。 合計9.35万円(内訳:鍵交換代:16500円/室内清掃費用:55000円/事務手数料:22000円) 更新料新賃料(ヶ月):1.00ヶ月、水道代定額:2000円/月、賃料等引き落とし料:330円/月 1K 定期借家2年 損保【2万円2年】 バストイレ別、バルコニー、エアコン、ガスコンロ対応、クロゼット、フローリング、TVインターホン、浴室乾燥機、オートロック、室内洗濯置、陽当り良好、シューズボックス、システムキッチン、温水洗浄便座、エレベーター、宅配ボックス、CATV、光ファイバー、外壁タイル張り、即入居可、礼金不要、BS・CS、敷金不要、分譲賃貸、保証人不要、仲介手数料不要、駅まで平坦、緑豊かな住宅地、保証金不要、平坦地、家電付、家具付、3駅以上利用可、3沿線以上利用可、駅徒歩5分以内、敷地内ごみ置き場、都市ガス、高速ネット対応、敷金・礼金不要、IT重説対応物件、初期費用カード決済可 | ||
部屋の情報
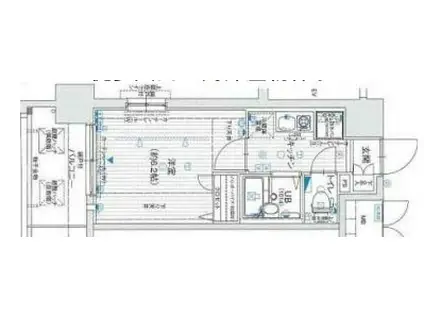
| 間取り | 1K | 専有面積 | 20.3m2 |
|---|---|---|---|
| 所在階 / 向き | 4階 / 東 | バルコニー面積 | - |
| 水道 / ガス | - | ||
| 設備 | バス・トイレ別、2階以上、オートロック、テレビドアホン、宅配ボックス、浴室乾燥機、インターネット対応、システムキッチン、エアコン、エレベーター、温水洗浄便座、バルコニー、フローリング、コンロ:ガス、CATV、CSアンテナ、BSアンテナ、洗濯機:室内 | ||
| 当社物件ID | 467723 | ||
建物の情報
| 建物名 | エスリード 京橋ステーションプラザ | ||
|---|---|---|---|
| 所在地 | 大阪府大阪市都島区東野田町 | ||
| 交通 | 京阪本線 京橋駅(大阪) 徒歩7分 JR大阪環状線 京橋駅(大阪) 徒歩9分 JR東西線 京橋駅(大阪) 徒歩9分 | ||
| 階数 | 10階建 | 総戸数 | 80戸 |
| 築年月 | 2010年03月 / 築17年 | エレベーター | あり |
| 駐車場 | なし | バイク置き場 | - |
| 駐輪場 | - | 管理人/管理会社 | - |
| 周辺環境 | その他 ファミリーマート薬ヒグチ京橋店(コンビニ)まで100m その他 ファミリーマート+薬ヒグチ京橋店(ドラッグストア)まで100m その他 医療法人正和会協和病院(病院)まで100m その他 大阪市立桜宮中学校(中学校)まで390m その他 大阪市立桜宮小学校(小学校)まで840m その他 業務スーパー京橋店(スーパー)まで70m | ||
| 建物種別 | マンション | 建物構造 | RC(鉄筋コンクリート) |
この部屋の取扱い不動産会社
| 会社名 | (株)シーズ京橋店(SUUMO経由) | ||
|---|---|---|---|
| 所在地 | 大阪府大阪市都島区東野田町2-3-27 富士ビル1階 | 交通 | - |
| 営業時間 | 10:00~19:00 | 定休日 | 12月28日から1月3日 |
| 免許番号 | 大阪府知事57183 | 取引態様 | 仲介 |
| 不動産会社管理番号 | 100443991197 | 当社管理番号 | 89 |
| 取扱い物件情報 | 物件詳細へ | ||
※各種情報と現状に差異がある場合は、現状優先となります。問い合わせをすることで、より詳しい条件、情報を確認する事ができます。
提供:(株)シーズ京橋店(SUUMO経由)
この物件が気になったら掲載期限まであと10日
エスリード 京橋ステーションプラザに条件(家賃・エリア)が近い物件一覧
| 写真 | 家賃 管理費等 | 敷金 礼金 | 間取り 専有面積 | 築年数 | 最寄り駅 所在地 | キープ | 詳細 |
|---|---|---|---|---|---|---|---|
マンション プルミエールメゾン江坂(1K/8階) | |||||||
| 7.6万円 8,000円 | 7.6万円 15.2万円 | 1K 28.8m2 | 築22年 | 北大阪急行南北線 江坂駅 徒歩9分 阪急電鉄千里線 豊津駅(大阪) 徒歩11分 阪急電鉄千里線 吹田駅(阪急) 徒歩20分 大阪府吹田市垂水町3丁目26-12 | 詳細を見る | ||
マンション リラスクエア相生(2LDK/2階) | |||||||
![]() | 10.2万円 1.2万円 | なし 15万円 | 2LDK 57m2 | 築3年 | 関西本線 八尾駅 徒歩12分 関西本線 志紀駅 徒歩24分 大阪府八尾市相生町2丁目 | 詳細を見る | |
マンション グランデ松原(3LDK/7階) | |||||||
![]() | 7.5万円 1万円 | なし 10万円 | 3LDK 60.4m2 | 築37年 | 近鉄南大阪線 河内松原駅 徒歩5分 近鉄南大阪線 高見ノ里駅 徒歩14分 近鉄南大阪線 恵我ノ荘駅 徒歩19分 大阪府松原市上田3丁目 | 詳細を見る | |
マンション ライブガーデン江坂9(1DK/3階) | |||||||
| 8.6万円 1万円 | なし 17.2万円 | 1DK 28.8m2 | 築4年 | 北大阪急行南北線 江坂駅 徒歩14分 おおさか東線 南吹田駅 徒歩16分 阪急電鉄千里線 豊津駅(大阪) 徒歩18分 大阪府吹田市南金田2丁目8-28 | 詳細を見る | ||
アパート スヴェニール ラ・テール(2LDK/2階) | |||||||
![]() | 10.35万円 4,400円 | なし 10.35万円 | 2LDK 59.58m2 | 新築 | 近鉄難波・奈良線 河内花園駅 徒歩22分 近鉄難波・奈良線 若江岩田駅 徒歩23分 近鉄難波・奈良線 東花園駅 徒歩28分 大阪府東大阪市玉串町西2丁目 | 詳細を見る | |
マンション KIT祝町(1LDK/1階) | |||||||
![]() | 8.6万円 5,000円 | なし 17.2万円 | 1LDK 40.36m2 | 新築 | 京阪電気鉄道京阪線 土居駅 徒歩5分 大阪市谷町線 太子橋今市駅 徒歩8分 京阪電気鉄道京阪線 守口市駅 徒歩9分 大阪府守口市祝町 | 詳細を見る | |
マンション ウエリスアーバン守口(2K/10階) | |||||||
![]() | 9.5万円 1万円 | なし 9.5万円 | 2K 30.48m2 | 築2年 | 大阪メトロ谷町線 守口駅 徒歩2分 大阪府守口市日吉町2丁目 | 詳細を見る | |
アパート ハイムミレニアム2(2LDK/1階) | |||||||
![]() | 7.5万円 5,500円 | なし 7.5万円 | 2LDK 57.22m2 | 築22年 | 近鉄南大阪線 河内松原駅 徒歩25分 大阪府松原市立部1丁目 | 詳細を見る | |






