賃貸マンション
パレステュディオ新宿パークサイドの賃貸物件情報(1K/2階)
| 家賃 | 管理費等 | 敷金 | 礼金 | 間取り | 専有面積 |
|---|---|---|---|---|---|
| 14.4万円 | 1.1万円 | なし | 14.4万円 | 1K | 22.68m2 |
入居決定でお祝い金最大100,000円
- 保証金
- -
- 償却・敷引
- -
- 築年数
- 築23年
- 所在階
- 2階
- 向き
- 北東
Point
室内見学承ります・お客様のご都合に合わせてオンラインまたはお近くの店舗でご提案可・初期費用分割払い可・クレジットカード利用可・引越業者割引・初期費用のお見積や入居日のご相談もお気軽にお問合せください
提供:(株)DoDoNPA中野店(SUUMO経由)

詳細情報 パレステュディオ新宿パークサイド
物件紹介
パレステュディオ新宿パークサイドは都営大江戸線西新宿五丁目駅から徒歩1分にあり、駅近で通勤通学に便利なマンションです。
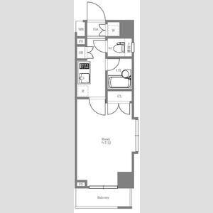
このお部屋は2階以上に位置しているので、通行人や周囲の住人からの視線が気になりにくく、防犯面でも安心。建物のエントランスはオートロックがついており、インターホンにはTVモニタもついているため、相手の顔を確認してから来客対応することができます。
フローリングのお部屋なのでお掃除もラクラク。キッチンはシステムキッチン仕様になっていますので、お料理好きの方にもぴったり。バス・トイレは別なので、のんびりお風呂タイムも楽しめるでしょう。また、雨の日でも浴室乾燥機を使えば、お洗濯も問題ありません。
通信設備面では、インターネットが無料で使えるので、月々の出費を抑えられるのも魅力です(別途工事等が必要な場合あり)。
建物にはエレベーターがついているので、重い荷物があっても安心。共用部には宅配ボックスが設定されているので、不在の時にも荷物を受け取ることができます。
このお部屋は2階以上に位置しているので、通行人や周囲の住人からの視線が気になりにくく、防犯面でも安心。建物のエントランスはオートロックがついており、インターホンにはTVモニタもついているため、相手の顔を確認してから来客対応することができます。
フローリングのお部屋なのでお掃除もラクラク。キッチンはシステムキッチン仕様になっていますので、お料理好きの方にもぴったり。バス・トイレは別なので、のんびりお風呂タイムも楽しめるでしょう。また、雨の日でも浴室乾燥機を使えば、お洗濯も問題ありません。
通信設備面では、インターネットが無料で使えるので、月々の出費を抑えられるのも魅力です(別途工事等が必要な場合あり)。
建物にはエレベーターがついているので、重い荷物があっても安心。共用部には宅配ボックスが設定されているので、不在の時にも荷物を受け取ることができます。
お金・契約の情報
※「-」と表示されているものは、実際は料金が発生するものもございます。詳細はお問い合わせください。
| 家賃 | 14.4万円 | 管理費・共益費 | 1.1万円 |
|---|---|---|---|
| 敷金 | なし | 礼金 | 14.4万円 |
| 入居決定でお祝い金最大100,000円 | |||
| 保証金 | - | 償却・敷引 | - |
| 住宅保険料 | - | 更新料 | - |
| 保証会社利用 | 必須 | 保証会社名 | - |
| 保証会社費用 | - | 保証会社備考 | 保証会社利用必 初回保証料:総賃料の100% 更新時:2万円/年毎 |
| 契約形態 | 定期借家 | 契約期間 | 2年 |
| 入居・引渡期間 | 即時 | 現況 | - |
| 契約備考 | 当物件は「住まいのリライフ」で取り扱っております。リライフは首都圏25店舗のネットワークで豊富な物件情報をお客様へご提供します。当物件に類似した未公開物件なども合わせてご提案可能です。お気軽にお問合せください。ランニング費用:リブクラブ(月額)、SBI少額短期保険(月額):3000円/その他費用:事務費用、退去時精算費用:2.75万円 合計3.3万円(内訳:鍵交換代金3.3万円) 室内清掃費用5.5万円 1K 定期借家2年 損保【要】 バストイレ別、エアコン、ガスコンロ対応、フローリング、TVインターホン、浴室乾燥機、オートロック、室内洗濯置、温水洗浄便座、エレベーター、駐輪場、宅配ボックス、防犯カメラ、分譲賃貸、バイク置場、ネット使用料不要、家電付、家具付、始発駅、3駅以上利用可、3沿線以上利用可、駅前、24時間ゴミ出し可、敷地内ごみ置き場、都市ガス、LAN | ||
部屋の情報
| 間取り | 1K | 専有面積 | 22.68m2 |
|---|---|---|---|
| 所在階 / 向き | 2階 / 北東 | バルコニー面積 | - |
| 水道 / ガス | - | ||
| 設備 | バス・トイレ別、2階以上、オートロック、テレビドアホン、宅配ボックス、浴室乾燥機、インターネット対応、エアコン、エレベーター、温水洗浄便座、フローリング、コンロ:ガス、インターネット使用料無料、洗濯機:室内 | ||
| 当社物件ID | 12864370 | ||
建物の情報
| 建物名 | パレステュディオ新宿パークサイド | ||
|---|---|---|---|
| 所在地 | 東京都新宿区西新宿 | ||
| 交通 | 都営大江戸線 西新宿五丁目駅 徒歩1分 東京メトロ丸ノ内線 中野坂上駅 徒歩13分 京王新線 初台駅 徒歩13分 | ||
| 階数 | 14階建 | 総戸数 | 269戸 |
| 築年月 | 2003年10月 / 築23年 | エレベーター | あり |
| 駐車場 | なし | バイク置き場 | あり |
| 駐輪場 | あり | 管理人/管理会社 | - |
| 周辺環境 | その他 マルエツプチ 西新宿六丁目店(スーパー)まで592m その他 まいばすけっと 渋谷本町2丁目店(スーパー)まで701m その他 ローソン 西新宿四丁目店(コンビニ)まで34m その他 ファミリーマート サンズ西新宿店(コンビニ)まで67m その他 どらっぐぱぱす 西新宿店(ドラッグストア)まで292m その他 スワローチェーン 西新宿5丁目店(その他)まで243m | ||
| 建物種別 | マンション | 建物構造 | SRC(鉄骨鉄筋コンクリート) |
この部屋の取扱い不動産会社
| 会社名 | (株)リライフ中野坂上店(SUUMO経由) | ||
|---|---|---|---|
| 所在地 | 東京都中野区本町2-49-12 誠文堂ビル1階 | 交通 | - |
| 営業時間 | 10:00~20:00 | 定休日 | なし |
| 免許番号 | 国土交通大臣10792 | 取引態様 | 仲介 |
| 不動産会社管理番号 | 100427600940 | 当社管理番号 | 89 |
| 所属団体 | (公社)東京都宅地建物取引業協会会員 | ||
| 公正取引協議会 | (公社)首都圏不動産公正取引協議会加盟 | ||
| 取扱い物件情報 | 物件詳細へ | ||
※各種情報と現状に差異がある場合は、現状優先となります。問い合わせをすることで、より詳しい条件、情報を確認する事ができます。
提供:(株)リライフ中野坂上店(SUUMO経由)
この物件が気になったら掲載期限まであと11日
パレステュディオ新宿パークサイドに条件(家賃・エリア)が近い物件一覧
| 写真 | 家賃 管理費等 | 敷金 礼金 | 間取り 専有面積 | 築年数 | 最寄り駅 所在地 | キープ | 詳細 |
|---|---|---|---|---|---|---|---|
マンション サンイング飯田橋(ワンルーム/4階) | |||||||
![]() | 12.5万円 1万円 | 12.5万円 12.5万円 | ワンルーム 25.73m2 | 築7年 | 東京地下鉄丸ノ内線 後楽園駅 徒歩9分 総武・中央緩行線 飯田橋駅 徒歩10分 東京都文京区後楽2丁目 | 詳細を見る | |
マンション スカイコート目白台(1K/7階) | |||||||
![]() | 10.6万円 1万円 | 10.6万円 10.6万円 | 1K 30.07m2 | 築25年 | 東京地下鉄有楽町線 江戸川橋駅 徒歩7分 東京地下鉄有楽町線 護国寺駅 徒歩11分 東京都荒川線 早稲田駅(都電) 徒歩14分 東京都文京区関口2丁目 | 詳細を見る | |
マンション パークホームズ千代田淡路町(1K/4階) | |||||||
![]() | 15万円 なし | 15万円 15万円 | 1K 25.35m2 | 築8年 | 東京地下鉄丸ノ内線 淡路町駅 徒歩3分 東京地下鉄銀座線 神田駅(東京) 徒歩3分 山手線 神田駅(東京) 徒歩5分 東京都千代田区神田須田町1丁目 | 詳細を見る | |
マンション パークキューブ神田(1K/10階) | |||||||
![]() | 15.3万円 1万円 | 15.3万円 15.3万円 | 1K 30.7m2 | 築21年 | 東京都新宿線 岩本町駅 徒歩3分 中央本線 神田駅(東京) 徒歩3分 山手線 秋葉原駅 徒歩6分 東京都千代田区神田須田町2丁目 | 詳細を見る | |
マンション アーバンコア本郷(1LDK/10階) | |||||||
![]() | 23.3万円 1.5万円 | 23.3万円 なし | 1LDK 40.09m2 | 築6年 | 東京地下鉄丸ノ内線 本郷三丁目駅 徒歩4分 総武・中央緩行線 水道橋駅 徒歩9分 東京地下鉄丸ノ内線 御茶ノ水駅 徒歩10分 東京都文京区本郷2丁目 | 詳細を見る | |
マンション GRAN PASEO本郷三丁目(1K/9階) | |||||||
![]() | 14.2万円 1.5万円 | なし 14.2万円 | 1K 25.51m2 | 築5年 | 東京地下鉄丸ノ内線 本郷三丁目駅 徒歩7分 東京地下鉄千代田線 湯島駅 徒歩8分 中央本線 御茶ノ水駅 徒歩12分 東京都文京区本郷3丁目 | 詳細を見る | |
マンション エスティメゾン千石(1K/2階) | |||||||
![]() | 9.9万円 1万円 | 9.9万円 9.9万円 | 1K 20.2m2 | 築17年 | 東京都三田線 千石駅 徒歩7分 山手線 巣鴨駅 徒歩9分 東京都文京区千石4丁目 | 詳細を見る | |
マンション レジディア文京音羽(1LDK/1階) | |||||||
![]() | 17.9万円 2万円 | 17.9万円 なし | 1LDK 47.46m2 | 築23年 | 東京地下鉄有楽町線 護国寺駅 徒歩2分 東京地下鉄丸ノ内線 新大塚駅 徒歩13分 東京地下鉄丸ノ内線 茗荷谷駅 徒歩16分 東京都文京区大塚5丁目 | 詳細を見る | |








