賃貸アパート
QUQURITOKYOSHINJUKUの賃貸物件情報(ワンルーム/2階)
| 家賃 | 管理費等 | 敷金 | 礼金 | 間取り | 専有面積 |
|---|---|---|---|---|---|
| 7.67万円 | 5,000円 | なし | なし | ワンルーム | 13.94m2 |
入居決定でお祝い金最大100,000円
- 保証金
- -
- 償却・敷引
- -
- 築年数
- 築6年
- 所在階
- 2階
- 向き
- -
Point
見学はマンション前・最寄駅から等、お客様のご都合に合わせ対応可能です。条件のご相談、御見積などお気軽にお問合せください。
提供:(株)ファティライズ新宿店(SUUMO経由)

詳細情報 QUQURITOKYOSHINJUKU
物件紹介
QUQURITOKYOSHINJUKUは都営大江戸線東中野駅から徒歩9分にあり、駅近で通勤通学に便利なアパートです。
このお部屋は2階以上に位置しているので通行人や周囲の住人からの視線が気になりにくく、建物のエントランスはオートロックがついているので防犯性が高くなっています。
フローリングのお部屋なのでお掃除もラクラク。室内には多目的に利用できる人気のロフトもあり、お部屋のアレンジも自在です。キッチンはシステムキッチン仕様になっていますので、お料理好きの方にもぴったり。また、バス・トイレは別で、のんびりお風呂タイムも楽しめるでしょう。
通信設備面ではBSアンテナがありますので、おうち時間も充実するでしょう(別途工事、契約料が必要な場合あり)。
このお部屋は2階以上に位置しているので通行人や周囲の住人からの視線が気になりにくく、建物のエントランスはオートロックがついているので防犯性が高くなっています。
フローリングのお部屋なのでお掃除もラクラク。室内には多目的に利用できる人気のロフトもあり、お部屋のアレンジも自在です。キッチンはシステムキッチン仕様になっていますので、お料理好きの方にもぴったり。また、バス・トイレは別で、のんびりお風呂タイムも楽しめるでしょう。
通信設備面ではBSアンテナがありますので、おうち時間も充実するでしょう(別途工事、契約料が必要な場合あり)。
お金・契約の情報
※「-」と表示されているものは、実際は料金が発生するものもございます。詳細はお問い合わせください。
| 家賃 | 7.67万円 | 管理費・共益費 | 5,000円 |
|---|---|---|---|
| 敷金 | なし | 礼金 | なし |
| 入居決定でお祝い金最大100,000円 | |||
| 保証金 | - | 償却・敷引 | - |
| 住宅保険料 | - | 更新料 | - |
| 契約形態 | - | 契約期間 | - |
| 入居・引渡期間 | - | 現況 | - |
| 契約備考 | 見学はマンション前・最寄駅から等、お客様のご都合に合わせ対応可能です。条件のご相談、御見積などお気軽にお問合せください。 町会費月額100円 ワンルーム 普通借家2年 バストイレ別、エアコン、フローリング、オートロック、室内洗濯置、システムキッチン、温水洗浄便座、防犯カメラ、IHクッキングヒーター、ロフト、保証人不要、24時間換気システム、複層ガラス、3駅以上利用可、3沿線以上利用可、駅徒歩10分以内、プロパンガス、BS、敷金・礼金不要、IT重説対応物件 入居日:'26年4月中旬 | ||
部屋の情報
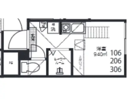
| 間取り | ワンルーム | 専有面積 | 13.94m2 |
|---|---|---|---|
| 所在階 / 向き | 2階 / - | バルコニー面積 | - |
| 水道 / ガス | - | ||
| 設備 | バス・トイレ別、2階以上、オートロック、システムキッチン、エアコン、温水洗浄便座、フローリング、ロフトあり、コンロ:IH、BSアンテナ、洗濯機:室内 | ||
| 当社物件ID | 46614551 | ||
建物の情報
| 建物名 | QUQURITOKYOSHINJUKU | ||
|---|---|---|---|
| 所在地 | 東京都新宿区北新宿 | ||
| 交通 | 都営大江戸線 東中野駅 徒歩9分 東京メトロ丸ノ内線 中野坂上駅 徒歩10分 JR総武線 大久保駅(東京) 徒歩10分 | ||
| 階数 | 3階建 | 総戸数 | - |
| 築年月 | 2020年12月 / 築6年 | エレベーター | - |
| 駐車場 | なし | バイク置き場 | - |
| 駐輪場 | - | 管理人/管理会社 | - |
| 周辺環境 | その他 スギ薬局北新宿3丁目店(ドラッグストア)まで562m その他 ゲオ北新宿店(レンタルビデオ)まで566m その他 大戸屋ごはん処新宿フロントタワー店(飲食店)まで789m その他 マルエツプチ中野中央店(スーパー)まで224m その他 まいばすけっと北新宿2丁目店(スーパー)まで464m その他 ローソン北新宿1丁目店(コンビニ)まで279m | ||
| 建物種別 | アパート | 建物構造 | 木造 |
この部屋の取扱い不動産会社
| 会社名 | (株)ファティライズ新宿店(SUUMO経由) | ||
|---|---|---|---|
| 所在地 | 東京都新宿区西新宿1-15-4 第2セイコービル6階 | 交通 | - |
| 営業時間 | 9:30~19:00 | 定休日 | 無し |
| 免許番号 | 東京都知事93915 | 取引態様 | 仲介 |
| 不動産会社管理番号 | 100485961645 | 当社管理番号 | 89 |
| 所属団体 | (公社)東京都宅地建物取引業協会会員 | ||
| 公正取引協議会 | (公社)首都圏不動産公正取引協議会加盟 | ||
| 取扱い物件情報 | 物件詳細へ | ||
※各種情報と現状に差異がある場合は、現状優先となります。問い合わせをすることで、より詳しい条件、情報を確認する事ができます。
提供:(株)ファティライズ新宿店(SUUMO経由)
この物件が気になったら掲載期限まであと10日
QUQURITOKYOSHINJUKUに条件(家賃・エリア)が近い物件一覧
| 写真 | 家賃 管理費等 | 敷金 礼金 | 間取り 専有面積 | 築年数 | 最寄り駅 所在地 | キープ | 詳細 |
|---|---|---|---|---|---|---|---|
マンション スカイコート神田須田町(1K/4階) | |||||||
![]() | 9.8万円 1万円 | 9.8万円 9.8万円 | 1K 22.99m2 | 築22年 | 都営新宿線 岩本町駅 徒歩1分 JR山手線 秋葉原駅 徒歩3分 JR山手線 神田駅(東京) 徒歩8分 東京都千代田区神田須田町 | 詳細を見る | |
マンション レジディア神田岩本町(ワンルーム/11階) | |||||||
![]() | 11.9万円 1.5万円 | なし なし | ワンルーム 22.78m2 | 築23年 | 東京都新宿線 岩本町駅 徒歩3分 東京地下鉄日比谷線 秋葉原駅 徒歩5分 中央本線 神田駅(東京) 徒歩7分 東京都千代田区岩本町2丁目 | 詳細を見る | |
マンション ラ・レジダンス・ド千駄木(1K/12階) | |||||||
![]() | 10.9万円 6,000円 | 10.9万円 10.9万円 | 1K 21.46m2 | 築21年 | 東京地下鉄千代田線 千駄木駅 徒歩2分 東京都文京区千駄木2丁目 | 詳細を見る | |
マンション マイナビSTAYパレス文京湯島(1K/3階) | |||||||
![]() | 9.6万円 1.1万円 | なし 19.2万円 | 1K 19.18m2 | 築26年 | 東京地下鉄千代田線 湯島駅 徒歩5分 山手線 御徒町駅 徒歩9分 東京地下鉄銀座線 上野広小路駅 徒歩9分 東京都文京区湯島2丁目 | 詳細を見る | |
マンション プレールドゥーク神田(ワンルーム/8階) | |||||||
![]() | 9.4万円 6,000円 | なし 9.4万円 | ワンルーム 24.33m2 | 築21年 | 東京地下鉄千代田線 湯島駅 徒歩2分 東京地下鉄銀座線 末広町駅(東京) 徒歩5分 東京都千代田区外神田6丁目 | 詳細を見る | |
マンション ザ・クラスアーバンス水道橋本郷(ワンルーム/4階) | |||||||
![]() | 11.9万円 2万円 | 11.9万円 なし | ワンルーム 23.2m2 | 築2年 | 東京都三田線 水道橋駅 徒歩3分 東京地下鉄丸ノ内線 本郷三丁目駅 徒歩7分 中央本線 御茶ノ水駅 徒歩10分 東京都文京区本郷1丁目 | 詳細を見る | |
マンション 東京地下鉄丸ノ内線 茗荷谷駅 徒歩2分 築19年(1K/2階) | |||||||
![]() | 8.7万円 6,000円 | 8.7万円 8.7万円 | 1K 20.54m2 | 築19年 | 東京地下鉄丸ノ内線 茗荷谷駅 徒歩2分 東京地下鉄有楽町線 護国寺駅 徒歩17分 東京地下鉄有楽町線 江戸川橋駅 徒歩18分 東京都文京区小日向4丁目 | 詳細を見る | |
マンション パレドール文京メトロプラザ1(ワンルーム/7階) | |||||||
![]() | 7.9万円 なし | なし なし | ワンルーム 21.08m2 | 築43年 | 東京地下鉄丸ノ内線 新大塚駅 徒歩1分 東京地下鉄有楽町線 護国寺駅 徒歩9分 山手線 大塚駅(東京) 徒歩10分 東京都文京区大塚5丁目 | 詳細を見る | |









