賃貸マンション
ミリアレジデンス早稲田山吹町の賃貸物件情報(2DK/6階)
| 家賃 | 管理費等 | 敷金 | 礼金 | 間取り | 専有面積 |
|---|---|---|---|---|---|
| 18.7万円 | 1.5万円 | 18.7万円 | なし | 2DK | 40.82m2 |
入居決定でお祝い金最大100,000円
- 保証金
- -
- 償却・敷引
- -
- 築年数
- 築9年
- 所在階
- 6階
- 向き
- 南
Point
セキュリティ面は、オートロック・TVインターホンなどを設置しているので安全面でも優れております。
提供:アパマンショップ西荻窪店

詳細情報 ミリアレジデンス早稲田山吹町
物件紹介
ミリアレジデンス早稲田山吹町は東京地下鉄有楽町線江戸川橋駅から徒歩6分にあり、駅近で通勤通学に便利なマンションです。
このお部屋は2階以上に位置しているので、通行人や周囲の住人からの視線が気になりにくく、防犯面でも安心。建物のエントランスはオートロックがついており、インターホンにはTVモニタもついているため、相手の顔を確認してから来客対応することができます。
おしゃれなデザイナーズ物件!人気の南向き・フローリングのお部屋。角部屋でもあるため、周囲の居住者の生活音も気になりにくい場所です。室内にはウォークインクローゼットがありますので、たくさんの荷物も効率的に収納ができます。キッチンはシステムキッチン仕様になっていますので、お料理好きの方にもぴったり。バス・トイレは別なので、のんびりお風呂タイムも楽しめるでしょう。また、雨の日でも浴室乾燥機を使えば、お洗濯も問題ありません。
通信設備面では、インターネットが無料で使えるので、月々の出費を抑えられるのも魅力です。また、BSアンテナ・CSアンテナがありCATVにも対応しているので、おうち時間も充実するでしょう(別途工事、BS・CS・CATVの契約料等が必要な場合あり)。
建物にはエレベーターがついているので、重い荷物があっても安心。共用部には宅配ボックスが設定されているので、不在の時にも荷物を受け取ることができます。
このお部屋は2階以上に位置しているので、通行人や周囲の住人からの視線が気になりにくく、防犯面でも安心。建物のエントランスはオートロックがついており、インターホンにはTVモニタもついているため、相手の顔を確認してから来客対応することができます。
おしゃれなデザイナーズ物件!人気の南向き・フローリングのお部屋。角部屋でもあるため、周囲の居住者の生活音も気になりにくい場所です。室内にはウォークインクローゼットがありますので、たくさんの荷物も効率的に収納ができます。キッチンはシステムキッチン仕様になっていますので、お料理好きの方にもぴったり。バス・トイレは別なので、のんびりお風呂タイムも楽しめるでしょう。また、雨の日でも浴室乾燥機を使えば、お洗濯も問題ありません。
通信設備面では、インターネットが無料で使えるので、月々の出費を抑えられるのも魅力です。また、BSアンテナ・CSアンテナがありCATVにも対応しているので、おうち時間も充実するでしょう(別途工事、BS・CS・CATVの契約料等が必要な場合あり)。
建物にはエレベーターがついているので、重い荷物があっても安心。共用部には宅配ボックスが設定されているので、不在の時にも荷物を受け取ることができます。
お金・契約の情報
※「-」と表示されているものは、実際は料金が発生するものもございます。詳細はお問い合わせください。
| 家賃 | 18.7万円 | 管理費・共益費 | 1.5万円 |
|---|---|---|---|
| 敷金 | 18.7万円 | 礼金 | なし |
| 入居決定でお祝い金最大100,000円 | |||
| 保証金 | - | 償却・敷引 | - |
| 住宅保険料 | 1円 | 更新料 | - |
| その他費用 | エアコンクリーニング代:2.2万円 | ||
| 保証会社利用 | 必須 | 保証会社名 | - |
| 保証会社費用 | - | 保証会社備考 | 初回保証料:毎月賃料総支払額の50% 最低保証料:20000円 月額保証料1% |
| 契約形態 | - | 契約期間 | 3年 |
| 入居・引渡期間 | 2025年12月 | 現況 | - |
| 入居可能条件 | 2人入居可 | ||
| 契約備考 | 鍵交換費用:22000 室内清掃費用:44000 その他設備/条件:室内洗濯機置き場、独立洗面台、クローゼット | ||
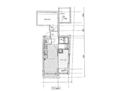
部屋の情報
| 間取り | 2DK | 専有面積 | 40.82m2 |
|---|---|---|---|
| 間取り詳細 | DK(7.5帖)、洋室(5.9帖)、洋室(3.2帖) | ||
| 所在階 / 向き | 6階 / 南 | バルコニー面積 | - |
| 水道 / ガス | 水道【公営】、ガス【都市】 | ||
| 設備 | バス・トイレ別、オートロック、テレビドアホン、宅配ボックス、浴室乾燥機、ウォークインクローゼット、追い焚き、光ファイバー対応、システムキッチン、エアコン、エレベーター、温水洗浄便座、角部屋、フローリング、3口コンロ、コンロ:ガス、デザイナーズ、CSアンテナ、BSアンテナ、インターネット使用料無料、シャワー | ||
| 当社物件ID | 155203556 | ||
建物の情報
| 建物名 | ミリアレジデンス早稲田山吹町 | ||
|---|---|---|---|
| 所在地 | 東京都新宿区山吹町 | ||
| 交通 | 東京地下鉄有楽町線 江戸川橋駅 徒歩6分 東京地下鉄東西線 早稲田駅(メトロ) 徒歩11分 | ||
| 階数 | 6階建 | 総戸数 | - |
| 築年月 | 2017年03月 / 築9年 | エレベーター | あり |
| 駐車場 | - | バイク置き場 | - |
| 駐輪場 | - | 管理人/管理会社 | - |
| 周辺環境 | その他 ドラッグストア その他 公園 その他 銀行 その他 * | ||
| 建物種別 | マンション | 建物構造 | RC(鉄筋コンクリート) |
この部屋の取扱い不動産会社
| 会社名 | ハウスコム東東京株式会社 中野店 | ||
|---|---|---|---|
| 所在地 | 東京都中野区24-9ナカノサウステラ レジデンス棟1階 | 交通 | - |
| 営業時間 | 10:00~18:00 | 定休日 | - |
| 免許番号 | 東京都知事(1)第108283号 | 取引態様 | 仲介 |
| 不動産会社管理番号 | HC2-3743985-603-0174 | 当社管理番号 | 468 |
| 所属団体 | 、 | ||
| 取扱い物件情報 | 物件詳細へ | ||
※各種情報と現状に差異がある場合は、現状優先となります。問い合わせをすることで、より詳しい条件、情報を確認する事ができます。
提供:ハウスコム東東京株式会社 中野店
この物件が気になったら掲載期限まであと5日
ミリアレジデンス早稲田山吹町に条件(家賃・エリア)が近い物件一覧
| 写真 | 家賃 管理費等 | 敷金 礼金 | 間取り 専有面積 | 築年数 | 最寄り駅 所在地 | キープ | 詳細 |
|---|---|---|---|---|---|---|---|
マンション モンレーヴ本駒込(1DK/2階) | |||||||
![]() | 13.2万円 5,000円 | 13.2万円 13.2万円 | 1DK 32.89m2 | 新築 | 山手線 駒込駅 徒歩8分 東京都三田線 千石駅 徒歩10分 東京地下鉄南北線 本駒込駅 徒歩12分 東京都文京区本駒込5丁目 | 詳細を見る | |
マンション リブクオーレ神保町(ワンルーム/11階) | |||||||
![]() | 13.9万円 1万円 | 13.9万円 13.9万円 | ワンルーム 26.08m2 | 築6年 | 東京地下鉄半蔵門線 神保町駅 徒歩5分 東京都三田線 神保町駅 徒歩5分 東京都千代田区神田神保町1丁目 | 詳細を見る | |
マンション パークキューブ神田(1DK/5階) | |||||||
![]() | 16.3万円 1万円 | 16.3万円 16.3万円 | 1DK 32.07m2 | 築21年 | 東京都新宿線 岩本町駅 徒歩3分 中央本線 神田駅(東京) 徒歩3分 山手線 秋葉原駅 徒歩6分 東京都千代田区神田須田町2丁目 | 詳細を見る | |
マンション レジディア文京千石(1DK/12階) | |||||||
![]() | 15.2万円 1万円 | 15.2万円 なし | 1DK 30.2m2 | 築23年 | 東京都三田線 千石駅 徒歩3分 山手線 巣鴨駅 徒歩7分 東京地下鉄南北線 駒込駅 徒歩12分 東京都文京区千石4丁目 | 詳細を見る | |
マンション プライマル小石川(1DK/7階) | |||||||
![]() | 14.7万円 1万円 | 14.7万円 なし | 1DK 31.26m2 | 築20年 | 東京都大江戸線 飯田橋駅 徒歩9分 総武・中央緩行線 飯田橋駅 徒歩9分 東京地下鉄丸ノ内線 後楽園駅 徒歩11分 東京都文京区水道1丁目 | 詳細を見る | |
マンション ACPレジデンス文京春日(1LDK/4階) | |||||||
![]() | 21.2万円 2万円 | なし なし | 1LDK 40.65m2 | 築2年 | 東京地下鉄南北線 後楽園駅 徒歩11分 東京地下鉄丸ノ内線 後楽園駅 徒歩11分 東京都文京区春日2丁目 | 詳細を見る | |
マンション LASANTE 千駄木(1LDK/9階) | |||||||
![]() | 22.1万円 1.2万円 | なし なし | 1LDK 42.35m2 | 築18年 | 山手線 西日暮里駅 徒歩5分 東京都文京区千駄木3丁目 | 詳細を見る | |
マンション オーパスホームズ白山(1LDK/4階) | |||||||
![]() | 26万円 2万円 | なし なし | 1LDK 52.31m2 | 築26年 | 東京都三田線 白山駅(東京) 徒歩5分 東京地下鉄南北線 東大前駅 徒歩5分 東京都文京区向丘1丁目 | 詳細を見る | |








