賃貸マンション
トレ・ピラストリ表参道の賃貸物件情報(3LDK/3階)
| 家賃 | 管理費等 | 敷金 | 礼金 | 間取り | 専有面積 |
|---|---|---|---|---|---|
| 50万円 | なし | 50万円 | なし | 3LDK | 124.68m2 |
入居決定でお祝い金最大100,000円
- 保証金
- -
- 償却・敷引
- -
- 築年数
- 築6年
- 所在階
- 3階
- 向き
- 南東
Point
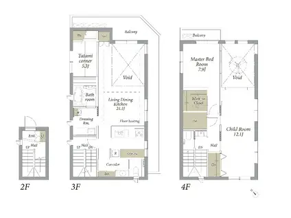
オートロック・宅配ボックス設置のエントランスのある共有部。フローリング、吹き抜けのあるリビングダイニング、3口IHヒーター・グリル・食洗機付キッチン、追焚・浴室暖房乾燥機付バスルームなど充実の室内設備
提供:(株)アクセス・リアルティー(SUUMO経由)

詳細情報 トレ・ピラストリ表参道
物件紹介
トレ・ピラストリ表参道は東京メトロ半蔵門線表参道駅から徒歩4分にあり、駅近で通勤通学に便利なマンションです。
このお部屋は2階以上に位置しているので、通行人や周囲の住人からの視線が気になりにくく、防犯面でも安心。建物のエントランスはオートロックがついており、インターホンにはTVモニタもついているため、相手の顔を確認してから来客対応することができます。
人気の南向き・フローリングのお部屋。角部屋でもあるため、周囲の居住者の生活音も気になりにくい場所です。室内にはウォークインクローゼットがありますので、たくさんの荷物も効率的に収納ができます。キッチンはシステムキッチン仕様になっていますので、お料理好きの方にもぴったり。バス・トイレは別なので、のんびりお風呂タイムも楽しめるでしょう。また、雨の日でも浴室乾燥機を使えば、お洗濯も問題ありません。
通信設備面では、インターネット接続が可能です。また、BSアンテナ・CSアンテナもありますので、おうち時間も充実するでしょう(別途工事、契約料が必要な場合あり)。
床暖房があり、冬も足元から暖かく快適に過ごすことができます。共用部には宅配ボックスが設定されているので、不在の時にも荷物を受け取ることができます。
このお部屋は2階以上に位置しているので、通行人や周囲の住人からの視線が気になりにくく、防犯面でも安心。建物のエントランスはオートロックがついており、インターホンにはTVモニタもついているため、相手の顔を確認してから来客対応することができます。
人気の南向き・フローリングのお部屋。角部屋でもあるため、周囲の居住者の生活音も気になりにくい場所です。室内にはウォークインクローゼットがありますので、たくさんの荷物も効率的に収納ができます。キッチンはシステムキッチン仕様になっていますので、お料理好きの方にもぴったり。バス・トイレは別なので、のんびりお風呂タイムも楽しめるでしょう。また、雨の日でも浴室乾燥機を使えば、お洗濯も問題ありません。
通信設備面では、インターネット接続が可能です。また、BSアンテナ・CSアンテナもありますので、おうち時間も充実するでしょう(別途工事、契約料が必要な場合あり)。
床暖房があり、冬も足元から暖かく快適に過ごすことができます。共用部には宅配ボックスが設定されているので、不在の時にも荷物を受け取ることができます。
お金・契約の情報
※「-」と表示されているものは、実際は料金が発生するものもございます。詳細はお問い合わせください。
| 家賃 | 50万円 | 管理費・共益費 | なし |
|---|---|---|---|
| 敷金 | 50万円 | 礼金 | なし |
| 入居決定でお祝い金最大100,000円 | |||
| 保証金 | - | 償却・敷引 | - |
| 住宅保険料 | - | 更新料 | - |
| 保証会社利用 | 必須 | 保証会社名 | - |
| 保証会社費用 | - | 保証会社備考 | 保証会社利用必 【初回保証料】賃料・管理費合計の50% 【更新料】10000円(1年毎) |
| 契約形態 | 定期借家 | 契約期間 | 2026年01月まで |
| 入居・引渡期間 | 相談 | 現況 | - |
| 契約備考 | JR山手線原宿駅徒歩14分/巡回管理/ご内覧可/定期借家契約(2027年3月31日まで・再契約不可)保証会社利用必須/火災保険加入必須/事務所使用不可/ペット飼育不可/楽器禁止/民泊・シェアハウス利用禁止/エレベーター設置無し/駐輪スペース有(1台のみ)【物件情報・初期費用計算等は当社HPでご確認頂けます!アクセス・リアルティーで検索♪】トレ・ピラストリ表参道 合計2.86万円(内訳:鍵交換代 28600円税込) 退去時クリーニング費用 231440円/退去時 3LDK 二人入居可/ルームシェア不可 定期借家西暦2027年3月まで 損保【3万円2年】 バストイレ別、バルコニー、エアコン、クロゼット、フローリング、TVインターホン、浴室乾燥機、オートロック、室内洗濯置、シューズボックス、システムキッチン、追焚機能浴室、角住戸、温水洗浄便座、洗面所独立、宅配ボックス、光ファイバー、礼金不要、2面採光、最上階、BS・CS、3口以上コンロ、対面式キッチン、防犯カメラ、IHクッキングヒーター、グリル付、ウォークインクロゼット、東南角住戸、敷金1ヶ月、二人入居相談、CS、メゾネット、床暖房、食器洗乾燥機、エアコン全室、浴室に窓、24時間換気システム、内階段、LDK20畳以上、複層ガラス、南面2室、吹抜け、3駅以上利用可、3沿線以上利用可、駅徒歩5分以内、専有面積30坪以上、東南向き、当社管理物件、リビング吹抜け、和室、畳コーナー、備付食器棚、都市ガス、L字型バルコニー、琉球畳、BS、高速ネット対応 | ||
部屋の情報
| 間取り | 3LDK | 専有面積 | 124.68m2 |
|---|---|---|---|
| 所在階 / 向き | 3階 / 南東 | バルコニー面積 | - |
| 水道 / ガス | - | ||
| 設備 | バス・トイレ別、2階以上、オートロック、テレビドアホン、宅配ボックス、浴室乾燥機、ウォークインクローゼット、追い焚き、インターネット対応、システムキッチン、エアコン、温水洗浄便座、南向き、角部屋、バルコニー、フローリング、洗髪洗面化粧台、床暖房、2口コンロ、コンロ:IH、CSアンテナ、BSアンテナ、洗濯機:室内 | ||
| 当社物件ID | 151416041 | ||
建物の情報
| 建物名 | トレ・ピラストリ表参道 | ||
|---|---|---|---|
| 所在地 | 東京都渋谷区神宮前 | ||
| 交通 | 東京メトロ半蔵門線 表参道駅 徒歩4分 東京メトロ銀座線 外苑前駅 徒歩9分 東京メトロ副都心線 明治神宮前駅 徒歩10分 | ||
| 階数 | 4階建 | 総戸数 | 3戸 |
| 築年月 | 2020年07月 / 築6年 | エレベーター | - |
| 駐車場 | なし | バイク置き場 | - |
| 駐輪場 | - | 管理人/管理会社 | - |
| 周辺環境 | その他 表参道ヒルズ(ショッピングセンター)まで310m その他 東急プラザ表参道原宿店(ショッピングセンター)まで571m その他 西武渋谷店(ショッピングセンター)まで1344m その他 渋谷パルコ(ショッピングセンター)まで1372m その他 東急ハンズ渋谷店(ホームセンター)まで1455m その他 ミッドタウンガーデン(公園)まで1665m | ||
| 建物種別 | マンション | 建物構造 | 鉄骨造 |
この部屋の取扱い不動産会社
| 会社名 | (株)アクセス・リアルティー(SUUMO経由) | ||
|---|---|---|---|
| 所在地 | 東京都渋谷区千駄ヶ谷1-20-1 パークアベニュー5階 | 交通 | - |
| 営業時間 | 平日10時~17時半/土日祝10時~17時 | 定休日 | 年末年始/GW/夏期休暇を除く |
| 免許番号 | 東京都知事55712 | 取引態様 | 代理 |
| 不動産会社管理番号 | 100482857936 | 当社管理番号 | 89 |
| 所属団体 | (公社)東京都宅地建物取引業協会会員 | ||
| 公正取引協議会 | (公社)首都圏不動産公正取引協議会加盟 | ||
| 取扱い物件情報 | 物件詳細へ | ||
※各種情報と現状に差異がある場合は、現状優先となります。問い合わせをすることで、より詳しい条件、情報を確認する事ができます。
提供:(株)アクセス・リアルティー(SUUMO経由)
この物件が気になったら掲載期限まであと10日
トレ・ピラストリ表参道に条件(家賃・エリア)が近い物件一覧
| 写真 | 家賃 管理費等 | 敷金 礼金 | 間取り 専有面積 | 築年数 | 最寄り駅 所在地 | キープ | 詳細 |
|---|---|---|---|---|---|---|---|
マンション ザ・神宮前レジデンス(1SLDK/5階) | |||||||
![]() | 55万円 なし | 110万円 55万円 | 1SLDK 73.04m2 | 築13年 | 東京メトロ銀座線 外苑前駅 徒歩7分 東京メトロ半蔵門線 表参道駅 徒歩9分 東京メトロ千代田線 明治神宮前駅 徒歩16分 東京都渋谷区神宮前 | 詳細を見る | |
マンション ザ・パークハウス西新宿タワー60(2LDK/28階) | |||||||
![]() | 44.9万円 なし | 89.8万円 44.9万円 | 2LDK 77.93m2 | 築9年 | 都営大江戸線 西新宿五丁目駅 徒歩7分 東京メトロ丸ノ内線 西新宿駅 徒歩9分 東京メトロ丸ノ内線 中野坂上駅 徒歩11分 東京都新宿区西新宿 | 詳細を見る | |
マンション 三田聖坂ガーデンレジデンス(2LDK/5階) | |||||||
![]() | 43万円 なし | 86万円 43万円 | 2LDK 64m2 | 築3年 | 都営浅草線 三田駅(東京) 徒歩6分 JR山手線 田町駅(東京) 徒歩8分 都営三田線 白金高輪駅 徒歩10分 東京都港区三田 | 詳細を見る | |
マンション タワーマンション 2LDK 更新可(2LDK/5階) | |||||||
![]() | 34.5万円 1.5万円 | 34.5万円 34.5万円 | 2LDK 55.34m2 | 築4年 | JR山手線 田町駅(東京) 徒歩13分 都営浅草線 泉岳寺駅 徒歩14分 都営三田線 三田駅(東京) 徒歩14分 東京都港区芝浦 | 詳細を見る | |
一戸建て 中央本線 阿佐ケ谷駅 徒歩9分 築14年(2SLDK) | |||||||
![]() | 31.5万円 なし | 31.5万円 31.5万円 | 2SLDK 92.24m2 | 築14年 | 中央本線 阿佐ケ谷駅 徒歩9分 東京地下鉄丸ノ内線 南阿佐ケ谷駅 徒歩9分 東京都杉並区阿佐谷南3丁目 | 詳細を見る | |
マンション 高輪・ザ・レジデンス(1LDK/14階) | |||||||
![]() | 33万円 2万円 | 66万円 33万円 | 1LDK 60.47m2 | 築21年 | 都営浅草線 高輪台駅 徒歩6分 東京メトロ南北線 白金台駅 徒歩8分 都営三田線 白金高輪駅 徒歩10分 東京都港区高輪 | 詳細を見る | |
マンション グランドメゾン池尻(3LDK/6階) | |||||||
![]() | 50万円 なし | 100万円 50万円 | 3LDK 97.59m2 | 築36年 | 東急田園都市線 池尻大橋駅 徒歩10分 京王電鉄井の頭線 駒場東大前駅 徒歩16分 東京都世田谷区池尻4丁目 | 詳細を見る | |
マンション ZOOM広尾(1LDK/6階) | |||||||
![]() | 35.1万円 1.6万円 | 35.1万円 35.1万円 | 1LDK 53.98m2 | 築6年 | 東京メトロ日比谷線 広尾駅 徒歩10分 JR山手線 恵比寿駅 徒歩12分 東京メトロ南北線 白金台駅 徒歩15分 東京都渋谷区恵比寿 | 詳細を見る | |









