賃貸マンション
ゲオタワー池袋の賃貸物件情報(3LDK/3階)
| 家賃 | 管理費等 | 敷金 | 礼金 | 間取り | 専有面積 |
|---|---|---|---|---|---|
| 20万円 | 2万円 | 40万円 | 20万円 | 3LDK | 75.53m2 |
入居決定でお祝い金最大100,000円
- 保証金
- -
- 償却・敷引
- -
- 築年数
- 築37年
- 所在階
- 3階
- 向き
- 南
Point
当物件は初期費用分割払い可(クレジットカード決済も可)/お客様のご希望に合わせた方法(店頭、オンライン等)で物件をご提案いたします。初期費用のお見積りや入居希望日のご相談もお気軽にお問い合わせください
提供:アエラス池袋店/現地案内センター (株)アエラス.FR(SUUMO経由)

詳細情報 ゲオタワー池袋
物件紹介
ゲオタワー池袋は東武東上線大山駅から徒歩12分にあるマンションです。
このお部屋は2階以上に位置しているので通行人や周囲の住人からの視線が気になりにくく、建物のエントランスはオートロックがついているので防犯性が高くなっています。
人気の南向きのお部屋。バス・トイレ別の仕様で、のんびりお風呂タイムも楽しめます。
通信設備面では、インターネット接続が可能です(別途工事、契約料が必要な場合あり)。
建物にはエレベーターがついているので、重い荷物があっても安心。共用部には宅配ボックスが設定されているので、不在の時にも荷物を受け取ることができます。
このお部屋は2階以上に位置しているので通行人や周囲の住人からの視線が気になりにくく、建物のエントランスはオートロックがついているので防犯性が高くなっています。
人気の南向きのお部屋。バス・トイレ別の仕様で、のんびりお風呂タイムも楽しめます。
通信設備面では、インターネット接続が可能です(別途工事、契約料が必要な場合あり)。
建物にはエレベーターがついているので、重い荷物があっても安心。共用部には宅配ボックスが設定されているので、不在の時にも荷物を受け取ることができます。
お金・契約の情報
※「-」と表示されているものは、実際は料金が発生するものもございます。詳細はお問い合わせください。
| 家賃 | 20万円 | 管理費・共益費 | 2万円 |
|---|---|---|---|
| 敷金 | 40万円 | 礼金 | 20万円 |
| 入居決定でお祝い金最大100,000円 | |||
| 保証金 | - | 償却・敷引 | - |
| 住宅保険料 | - | 更新料 | - |
| 保証会社利用 | 必須 | 保証会社名 | - |
| 保証会社費用 | - | 保証会社備考 | 保証会社利用必 月額賃料等の50% ̄100%(初回保証料)、2年目以降は1万円/年 |
| 契約形態 | 定期借家 | 契約期間 | 2年 |
| 入居・引渡期間 | 即時 | 現況 | - |
| 契約備考 | 東武鉄道東上線下板橋駅徒歩18分/豊島区立千川中学校まで772m/わくわく保育園まで403m/家財保険(24000円2年)/退去時清掃費120000円+税退去時エアコン掃除費15000円+税/台/1年未満解約する場合違約金(賃料の1ヶ月分)が発生します 3LDK 二人入居可/子供可 定期借家2年 損保【要】 バストイレ別、バルコニー、エアコン、ガスコンロ対応、オートロック、南向き、温水洗浄便座、エレベーター、2口コンロ、駐輪場、宅配ボックス、光ファイバー、外壁タイル張り、即入居可、防犯カメラ、二人入居相談、敷金2ヶ月、保証金不要、外壁コンクリート、始発駅、3駅以上利用可、3沿線以上利用可、都市ガス、高速ネット対応、礼金1ヶ月、初期費用カード決済可 | ||
部屋の情報
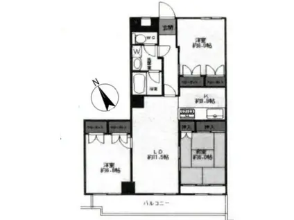
| 間取り | 3LDK | 専有面積 | 75.53m2 |
|---|---|---|---|
| 所在階 / 向き | 3階 / 南 | バルコニー面積 | - |
| 水道 / ガス | - | ||
| 設備 | バス・トイレ別、2階以上、オートロック、宅配ボックス、インターネット対応、エアコン、エレベーター、温水洗浄便座、南向き、バルコニー、2口コンロ、コンロ:ガス | ||
| 当社物件ID | 2863700 | ||
建物の情報
| 建物名 | ゲオタワー池袋 | ||
|---|---|---|---|
| 所在地 | 東京都板橋区中丸町 | ||
| 交通 | 東武東上線 大山駅(東京) 徒歩12分 東京メトロ副都心線 要町駅 徒歩12分 JR山手線 池袋駅 徒歩15分 | ||
| 階数 | 地下2地上13階建 | 総戸数 | - |
| 築年月 | 1989年02月 / 築37年 | エレベーター | あり |
| 駐車場 | 空有 20000円 | バイク置き場 | - |
| 駐輪場 | あり | 管理人/管理会社 | - |
| 周辺環境 | その他 Hanamasa Plus+要町店(スーパー)まで216m その他 どらっぐぱぱす板橋南町店(ドラッグストア)まで612m その他 ミニストップ 板橋中丸店(コンビニ)まで134m その他 ゲオボート店(レンタルビデオ)まで495m その他 デニーズ北池袋店(飲食店)まで587m その他 東京交通短期大学(大学・短大)まで457m | ||
| 建物種別 | マンション | 建物構造 | SRC(鉄骨鉄筋コンクリート) |
この部屋の取扱い不動産会社
| 会社名 | アエラス池袋店/現地案内センター (株)アエラス.FR(SUUMO経由) | ||
|---|---|---|---|
| 所在地 | 東京都豊島区東池袋1-34-5 いちご東池袋ビル 3階6号室 | 交通 | - |
| 営業時間 | 10:00~19:00(時間外対応出来る場合有り) | 定休日 | 年中無休(年末年始などを除く) |
| 免許番号 | 国土交通大臣10206 | 取引態様 | 仲介 |
| 不動産会社管理番号 | 100473677213 | 当社管理番号 | 89 |
| 所属団体 | (公社)東京都宅地建物取引業協会会員 | ||
| 公正取引協議会 | (公社)首都圏不動産公正取引協議会加盟 | ||
| 取扱い物件情報 | 物件詳細へ | ||
※各種情報と現状に差異がある場合は、現状優先となります。問い合わせをすることで、より詳しい条件、情報を確認する事ができます。
提供:アエラス池袋店/現地案内センター (株)アエラス.FR(SUUMO経由)
この物件が気になったら掲載期限まであと10日
ゲオタワー池袋に条件(家賃・エリア)が近い物件一覧
| 写真 | 家賃 管理費等 | 敷金 礼金 | 間取り 専有面積 | 築年数 | 最寄り駅 所在地 | キープ | 詳細 |
|---|---|---|---|---|---|---|---|
マンション フュージョナル浮間舟渡(2LDK/2階) | |||||||
![]() | 16.4万円 2.1万円 | なし 8.22万円 | 2LDK 56.06m2 | 築3年 | JR埼京線 浮間舟渡駅 徒歩10分 都営三田線 蓮根駅 徒歩20分 都営三田線 西台駅 徒歩21分 東京都板橋区舟渡 | 詳細を見る | |
マンション ガリシア大塚サウス(1K/1階) | |||||||
![]() | 12万円 1万円 | 12万円 12万円 | 1K 28.81m2 | 築7年 | JR山手線 大塚駅(東京) 徒歩4分 都電荒川線 大塚駅前駅 徒歩4分 東京メトロ丸ノ内線 新大塚駅 徒歩10分 東京都豊島区南大塚 | 詳細を見る | |
アパート 39 VILLA NUKUI(2K/2階) | |||||||
![]() | 15.2万円 4,000円 | 15.2万円 15.2万円 | 2K 48.91m2 | 新築 | 西武池袋線 練馬高野台駅 徒歩14分 西武池袋線 富士見台駅 徒歩15分 西武池袋線 中村橋駅 徒歩20分 東京都練馬区貫井 | 詳細を見る | |
アパート 青山荘(4DK/1階) | |||||||
![]() | 15万円 なし | 15万円 なし | 4DK 95m2 | 築63年 | 都営三田線 志村坂上駅 徒歩5分 都営三田線 志村三丁目駅 徒歩9分 都営三田線 本蓮沼駅 徒歩18分 東京都板橋区志村 | 詳細を見る | |
アパート D-ROOM石神井台4丁目PJ B棟(2LDK/2階) | |||||||
![]() | 15.4万円 5,000円 | なし 30.8万円 | 2LDK 59.99m2 | 新築 | 西武新宿線 上石神井駅 徒歩14分 西武新宿線 武蔵関駅 徒歩19分 西武池袋線 大泉学園駅 徒歩24分 東京都練馬区石神井台 | 詳細を見る | |
マンション SAKURA AXIS 中板橋(2SLDK/4階) | |||||||
![]() | 20.7万円 2万円 | 20.7万円 なし | 2SLDK 56.29m2 | 築1年 | 東武鉄道東上線 中板橋駅 徒歩5分 東京都板橋区常盤台1丁目 | 詳細を見る | |
マンション SYFORME ITABASHI III(1LDK/6階) | |||||||
![]() | 21.25万円 1.2万円 | なし なし | 1LDK 41.2m2 | 築1年 | 都営三田線 新板橋駅 徒歩2分 JR埼京線 板橋駅 徒歩7分 東武東上線 下板橋駅 徒歩7分 東京都板橋区板橋 | 詳細を見る | |
マンション RIDGE王子神谷(1LDK/2階) | |||||||
![]() | 16.4万円 1.5万円 | なし なし | 1LDK 40.3m2 | 築6年 | 東京メトロ南北線 王子神谷駅 徒歩5分 JR京浜東北線 東十条駅 徒歩12分 東京メトロ南北線 志茂駅 徒歩14分 東京都北区神谷 | 詳細を見る | |








