賃貸マンション
フュージョナル浮間舟渡の賃貸物件情報(2LDK/2階)
| 家賃 | 管理費等 | 敷金 | 礼金 | 間取り | 専有面積 |
|---|---|---|---|---|---|
| 16.4万円 | 2.1万円 | なし | 8.22万円 | 2LDK | 56.06m2 |
入居決定でお祝い金最大100,000円
- 保証金
- -
- 償却・敷引
- -
- 築年数
- 築3年
- 所在階
- 2階
- 向き
- 北東
Point
収納はシューズボックス・クロゼットなどが備え付けられているので、衣類や日用品の収納に重宝します。共用部には宅配ボックスが備え付けられているため、対面で荷物を受け取らなくて済みます。
提供:(株)DoDoNPA新橋店(SUUMO経由)

詳細情報 フュージョナル浮間舟渡
物件紹介
フュージョナル浮間舟渡はJR埼京線浮間舟渡駅から徒歩10分にあり、駅近で通勤通学に便利なマンションです。
このお部屋は2階以上に位置しているので、通行人や周囲の住人からの視線が気になりにくく、防犯面でも安心。建物のエントランスはオートロックがついており、インターホンにはTVモニタもついているため、相手の顔を確認してから来客対応することができます。
おしゃれなデザイナーズ物件!人気の角部屋で周囲の居住者の生活音も気になりにくく、また、フローリングのお部屋なのでお掃除もラクラク。キッチンはシステムキッチン仕様になっていますので、お料理好きの方にもぴったり。バス・トイレは別なので、のんびりお風呂タイムも楽しめるでしょう。また、雨の日でも浴室乾燥機を使えば、お洗濯も問題ありません。
通信設備面では、インターネットが無料で使えるので、月々の出費を抑えられるのも魅力です。また、BSアンテナ・CSアンテナがありCATVにも対応しているので、おうち時間も充実するでしょう(別途工事、BS・CS・CATVの契約料等が必要な場合あり)。
床暖房があり、冬も足元から暖かく快適に過ごすことができます。建物にはエレベーターがついているので、重い荷物があっても安心。共用部には宅配ボックスが設定されているので、不在の時にも荷物を受け取ることができます。また、ペット飼育の相談ができますので、あなたの大切な家族の一員も快適に暮らせるか、ぜひ確認してみてください。
このお部屋は2階以上に位置しているので、通行人や周囲の住人からの視線が気になりにくく、防犯面でも安心。建物のエントランスはオートロックがついており、インターホンにはTVモニタもついているため、相手の顔を確認してから来客対応することができます。
おしゃれなデザイナーズ物件!人気の角部屋で周囲の居住者の生活音も気になりにくく、また、フローリングのお部屋なのでお掃除もラクラク。キッチンはシステムキッチン仕様になっていますので、お料理好きの方にもぴったり。バス・トイレは別なので、のんびりお風呂タイムも楽しめるでしょう。また、雨の日でも浴室乾燥機を使えば、お洗濯も問題ありません。
通信設備面では、インターネットが無料で使えるので、月々の出費を抑えられるのも魅力です。また、BSアンテナ・CSアンテナがありCATVにも対応しているので、おうち時間も充実するでしょう(別途工事、BS・CS・CATVの契約料等が必要な場合あり)。
床暖房があり、冬も足元から暖かく快適に過ごすことができます。建物にはエレベーターがついているので、重い荷物があっても安心。共用部には宅配ボックスが設定されているので、不在の時にも荷物を受け取ることができます。また、ペット飼育の相談ができますので、あなたの大切な家族の一員も快適に暮らせるか、ぜひ確認してみてください。
お金・契約の情報
※「-」と表示されているものは、実際は料金が発生するものもございます。詳細はお問い合わせください。
| 家賃 | 16.4万円 | 管理費・共益費 | 2.1万円 |
|---|---|---|---|
| 敷金 | なし | 礼金 | 8.22万円 |
| 入居決定でお祝い金最大100,000円 | |||
| 保証金 | - | 償却・敷引 | - |
| 住宅保険料 | - | 更新料 | - |
| 保証会社利用 | 必須 | 保証会社名 | - |
| 保証会社費用 | - | 保証会社備考 | 保証会社利用必 ルームバンクインシュア:初回保証料50%、更新時10000円 、口座振替手数料660円 |
| 契約形態 | - | 契約期間 | - |
| 入居・引渡期間 | 即時 | 現況 | - |
| 入居可能条件 | ペット相談 | ||
| 契約備考 | 短期解約違約金あり/2か月前解約/退去時償却1ヶ月/更新事務手数料22000円/退去時に清掃費代等の負担あり/ペット飼育時、共益費3500円増額/掲載情報と現況が異なる場合は、現況を優先とします短期解約違約金あり/退去時に清掃費代等の負担あり/掲載情報と現況が異なる場合は、現況を優先とします 合計7.54万円(内訳:契約事務手数料1.1万円室内抗菌処理代1.76万円入居中サポート2.145万円鍵交換代2.53万円) 更新料 新賃料1.50ヶ月分 2LDK 二人入居可/ペット相談 普通借家2年 損保【要】 バストイレ別、バルコニー、エアコン、ガスコンロ対応、クロゼット、フローリング、TVインターホン、浴室乾燥機、オートロック、室内洗濯置、シューズボックス、システムキッチン、角住戸、温水洗浄便座、脱衣所、エレベーター、洗面所独立、洗面化粧台、駐輪場、宅配ボックス、CATV、即入居可、敷金不要、3口以上コンロ、対面式キッチン、ペット相談、照明付、分譲賃貸、2沿線利用可、CS、ネット使用料不要、床暖房、24時間換気システム、人感照明センサー、耐火構造、2駅利用可、3駅以上利用可、都市ガス、BS、IT重説対応物件、初期費用カード決済可 | ||
部屋の情報
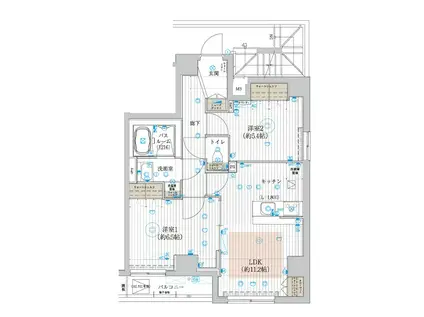
| 間取り | 2LDK | 専有面積 | 56.06m2 |
|---|---|---|---|
| 所在階 / 向き | 2階 / 北東 | バルコニー面積 | - |
| 水道 / ガス | - | ||
| 設備 | バス・トイレ別、2階以上、オートロック、テレビドアホン、宅配ボックス、浴室乾燥機、インターネット対応、システムキッチン、エアコン、エレベーター、温水洗浄便座、角部屋、バルコニー、フローリング、洗髪洗面化粧台、床暖房、2口コンロ、コンロ:ガス、CATV、CSアンテナ、BSアンテナ、インターネット使用料無料、洗濯機:室内 | ||
| 当社物件ID | 129664423 | ||
建物の情報
| 建物名 | フュージョナル浮間舟渡 | ||
|---|---|---|---|
| 所在地 | 東京都板橋区舟渡 | ||
| 交通 | JR埼京線 浮間舟渡駅 徒歩10分 都営三田線 蓮根駅 徒歩20分 都営三田線 西台駅 徒歩21分 | ||
| 階数 | 7階建 | 総戸数 | - |
| 築年月 | 2023年03月 / 築3年 | エレベーター | あり |
| 駐車場 | なし | バイク置き場 | - |
| 駐輪場 | あり | 管理人/管理会社 | - |
| 周辺環境 | その他 BeLX(ベルクス) 浮間舟渡店(スーパー)まで391m その他 maruetsu(マルエツ) 浮間舟渡店(スーパー)まで680m その他 Olympicおりーぶ志村坂下店(スーパー)まで1187m その他 ファミリーマート 板橋舟渡三丁目店(コンビニ)まで113m その他 都立浮間公園(公園)まで810m その他 板橋中央総合病院付属iタワークリニック(病院)まで670m | ||
| 建物種別 | マンション | 建物構造 | RC(鉄筋コンクリート) |
この部屋の取扱い不動産会社
| 会社名 | ハウス・トゥ・ハウス・ネットサービス(株)巣鴨店(SUUMO経由) | ||
|---|---|---|---|
| 所在地 | 東京都豊島区巣鴨2-3-10清水ビル6F | 交通 | - |
| 営業時間 | 10:00~18:30(1月~3月は9:30~) | 定休日 | 水曜日(1月~3月無休) |
| 免許番号 | 国土交通大臣7400 | 取引態様 | 仲介 |
| 不動産会社管理番号 | 100465383174 | 当社管理番号 | 89 |
| 所属団体 | (公社)全日本不動産協会東京都本部会員 | ||
| 公正取引協議会 | (公社)首都圏不動産公正取引協議会加盟 | ||
| 取扱い物件情報 | 物件詳細へ | ||
※各種情報と現状に差異がある場合は、現状優先となります。問い合わせをすることで、より詳しい条件、情報を確認する事ができます。
提供:ハウス・トゥ・ハウス・ネットサービス(株)巣鴨店(SUUMO経由)
この物件が気になったら掲載期限まであと9日
フュージョナル浮間舟渡に条件(家賃・エリア)が近い物件一覧
| 写真 | 家賃 管理費等 | 敷金 礼金 | 間取り 専有面積 | 築年数 | 最寄り駅 所在地 | キープ | 詳細 |
|---|---|---|---|---|---|---|---|
マンション アーバンパーク西巣鴨ウエスト(1LDK/2階) | |||||||
![]() | 16.3万円 1.2万円 | 16.3万円 なし | 1LDK 40.78m2 | 築6年 | 都営三田線 西巣鴨駅 徒歩6分 都電荒川線 西ケ原四丁目駅 徒歩6分 JR京浜東北線 王子駅 徒歩13分 東京都北区滝野川 | 詳細を見る | |
マンション エルグランピア(1SLDK/3階) | |||||||
![]() | 12.5万円 6,000円 | 12.5万円 12.5万円 | 1SLDK 40.03m2 | 築24年 | 西武池袋線 東長崎駅 徒歩3分 都営大江戸線 落合南長崎駅 徒歩7分 東京メトロ有楽町線 千川駅 徒歩19分 東京都豊島区南長崎 | 詳細を見る | |
マンション GRANPASEO田端B(1K/4階) | |||||||
![]() | 11.3万円 1.5万円 | 11.3万円 なし | 1K 25.5m2 | 築5年 | 山手線 田端駅 徒歩9分 京浜東北・根岸線 田端駅 徒歩9分 東京都北区田端新町2丁目 | 詳細を見る | |
マンション オーパスホームズ大泉学園Ⅱ(1K/5階) | |||||||
![]() | 10.8万円 9,000円 | なし なし | 1K 25.88m2 | 築3年 | 西武池袋・豊島線 大泉学園駅 徒歩4分 東京都練馬区東大泉3丁目 | 詳細を見る | |
マンション ポンピエール板橋本町(1K/3階) | |||||||
![]() | 12.1万円 なし | 12.1万円 12.1万円 | 1K 26.7m2 | 新築 | 都営三田線 板橋本町駅 徒歩3分 東武東上線 中板橋駅 徒歩16分 JR埼京線 十条駅(東京) 徒歩21分 東京都板橋区本町 | 詳細を見る | |
アパート 板橋区高島平9丁目PJ(3LDK/1階) | |||||||
![]() | 21.2万円 1万円 | なし 21.2万円 | 3LDK 73.58m2 | 新築 | 東京都三田線 高島平駅 徒歩10分 東京都板橋区高島平9丁目 | 詳細を見る | |
マンション コンフォルテハイム池袋(1LDK/2階) | |||||||
![]() | 16万円 1万円 | なし 16万円 | 1LDK 36.8m2 | 築17年 | JR山手線 池袋駅 徒歩5分 東京メトロ有楽町線 要町駅 徒歩11分 東武東上線 北池袋駅 徒歩21分 東京都豊島区池袋 | 詳細を見る | |
マンション クレヴィスタ板橋ときわ台(1K/3階) | |||||||
![]() | 10.7万円 1.1万円 | なし 10.7万円 | 1K 25.84m2 | 築8年 | 東武鉄道東上線 ときわ台駅(東京) 徒歩7分 東京都板橋区東新町1丁目 | 詳細を見る | |







