賃貸マンション
小谷ハイツの賃貸物件情報(ワンルーム/4階)
| 家賃 | 管理費等 | 敷金 | 礼金 | 間取り | 専有面積 |
|---|---|---|---|---|---|
| 11.5万円 | なし | 11.5万円 | 11.5万円 | ワンルーム | 30.86m2 |
入居決定でお祝い金最大100,000円
- 保証金
- -
- 償却・敷引
- -
- 築年数
- 築37年
- 所在階
- 4階
- 向き
- -
Point
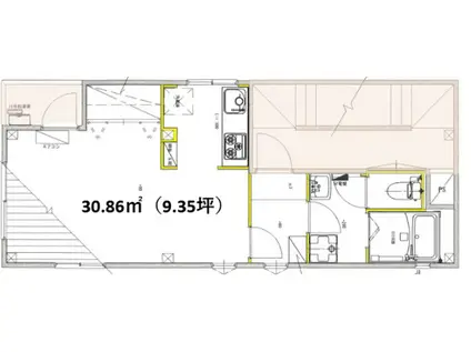
TVインターホン付きなので、女性の方も安心です。収納はクロゼット・シューズボックスなど豊富なので、広々と空間を利用することも可能です。お部屋の面積も30.86平米あります。
提供:ハウス・トゥ・ハウス・ネットサービス(株)巣鴨店(SUUMO経由)

詳細情報 小谷ハイツ
物件紹介
小谷ハイツは東京メトロ南北線赤羽岩淵駅から徒歩3分にあり、駅近で通勤通学に便利なマンションです。
このお部屋は2階以上に位置しているので、通行人や周囲の住人からの視線が気になりにくく、防犯面でも安心。インターホンにはTVモニタもついているため、相手の顔を確認してから来客対応することができます。
人気の角部屋で周囲の居住者の生活音も気になりにくく、また、フローリングのお部屋なのでお掃除もラクラク。キッチンはシステムキッチン仕様になっていますので、お料理好きの方にもぴったり。また、バス・トイレは別で、のんびりお風呂タイムも楽しめるでしょう。
通信設備面では、インターネット接続が可能です(別途工事、契約料が必要な場合あり)。
このお部屋は2階以上に位置しているので、通行人や周囲の住人からの視線が気になりにくく、防犯面でも安心。インターホンにはTVモニタもついているため、相手の顔を確認してから来客対応することができます。
人気の角部屋で周囲の居住者の生活音も気になりにくく、また、フローリングのお部屋なのでお掃除もラクラク。キッチンはシステムキッチン仕様になっていますので、お料理好きの方にもぴったり。また、バス・トイレは別で、のんびりお風呂タイムも楽しめるでしょう。
通信設備面では、インターネット接続が可能です(別途工事、契約料が必要な場合あり)。
お金・契約の情報
※「-」と表示されているものは、実際は料金が発生するものもございます。詳細はお問い合わせください。
| 家賃 | 11.5万円 | 管理費・共益費 | なし |
|---|---|---|---|
| 敷金 | 11.5万円 | 礼金 | 11.5万円 |
| 入居決定でお祝い金最大100,000円 | |||
| 保証金 | - | 償却・敷引 | - |
| 住宅保険料 | - | 更新料 | - |
| 保証会社利用 | 必須 | 保証会社名 | - |
| 保証会社費用 | - | 保証会社備考 | 保証会社利用必 初回保証料50% |
| 契約形態 | - | 契約期間 | - |
| 入居・引渡期間 | 即時 | 現況 | - |
| 契約備考 | フルリノベーション済み/掲載情報と現況が異なる場合は、現況を優先とします ワンルーム 普通借家2年 損保【要】 バストイレ別、バルコニー、エアコン、ガスコンロ対応、クロゼット、シャワー付洗面台、TVインターホン、室内洗濯置、シューズボックス、システムキッチン、角住戸、温水洗浄便座、脱衣所、洗面所独立、洗面化粧台、即入居可、最上階、グリル付、ガスレンジ付、2沿線利用可、2駅利用可、3駅以上利用可、IT重説対応物件 | ||
部屋の情報
| 間取り | ワンルーム | 専有面積 | 30.86m2 |
|---|---|---|---|
| 所在階 / 向き | 4階 / - | バルコニー面積 | - |
| 水道 / ガス | - | ||
| 設備 | バス・トイレ別、2階以上、テレビドアホン、システムキッチン、エアコン、温水洗浄便座、角部屋、バルコニー、洗髪洗面化粧台、コンロ:ガス、洗濯機:室内 | ||
| 当社物件ID | 17857074 | ||
建物の情報
| 建物名 | 小谷ハイツ | ||
|---|---|---|---|
| 所在地 | 東京都北区赤羽 | ||
| 交通 | 東京メトロ南北線 赤羽岩淵駅 徒歩3分 JR京浜東北線 赤羽駅 徒歩9分 東京メトロ南北線 志茂駅 徒歩17分 | ||
| 階数 | 4階建 | 総戸数 | - |
| 築年月 | 1989年08月 / 築37年 | エレベーター | - |
| 駐車場 | なし | バイク置き場 | - |
| 駐輪場 | - | 管理人/管理会社 | - |
| 周辺環境 | その他 まいばすけっと 赤羽岩淵駅前店(スーパー)まで160m その他 いまどや(スーパー)まで565m その他 ファミリーマート 赤羽二丁目店(コンビニ)まで207m その他 ファミリーマート 赤羽岩淵町店(コンビニ)まで281m その他 Beans(ビーンズ)赤羽(ショッピングセンター)まで627m その他 赤羽公園(公園)まで849m | ||
| 建物種別 | マンション | 建物構造 | 鉄骨造 |
この部屋の取扱い不動産会社
| 会社名 | ハウス・トゥ・ハウス・ネットサービス(株)赤羽店(本店)(SUUMO経由) | ||
|---|---|---|---|
| 所在地 | 東京都北区赤羽1-6-5 KAZAMAビル1階 | 交通 | - |
| 営業時間 | 10:00~18:30 | 定休日 | 水曜日 (1月~3月無休) |
| 免許番号 | 国土交通大臣7400 | 取引態様 | 仲介 |
| 不動産会社管理番号 | 100471769859 | 当社管理番号 | 89 |
| 所属団体 | (公社)全日本不動産協会東京都本部会員 | ||
| 公正取引協議会 | (公社)首都圏不動産公正取引協議会加盟 | ||
| 取扱い物件情報 | 物件詳細へ | ||
※各種情報と現状に差異がある場合は、現状優先となります。問い合わせをすることで、より詳しい条件、情報を確認する事ができます。
提供:ハウス・トゥ・ハウス・ネットサービス(株)赤羽店(本店)(SUUMO経由)
この物件が気になったら掲載期限まであと11日
小谷ハイツに条件(家賃・エリア)が近い物件一覧
| 写真 | 家賃 管理費等 | 敷金 礼金 | 間取り 専有面積 | 築年数 | 最寄り駅 所在地 | キープ | 詳細 |
|---|---|---|---|---|---|---|---|
マンション フォルトゥナ目白(1K/5階) | |||||||
![]() | 8.8万円 6,000円 | なし 8.8万円 | 1K 21.09m2 | 築23年 | 西武池袋線 椎名町駅 徒歩5分 西武新宿線 下落合駅(東京) 徒歩13分 JR山手線 目白駅 徒歩14分 東京都豊島区目白 | 詳細を見る | |
マンション マストライフ赤羽ウエスト(1LDK/5階) | |||||||
![]() | 16.8万円 9,320円 | 16.8万円 なし | 1LDK 47.17m2 | 築12年 | JR埼京線 赤羽駅 徒歩10分 JR京浜東北線 赤羽駅 徒歩10分 JR京浜東北線 東十条駅 徒歩17分 東京都北区赤羽西 | 詳細を見る | |
マンション 寺田マンション(1DK/1階) | |||||||
![]() | 7万円 3,000円 | 7万円 7万円 | 1DK 25.7m2 | 築41年 | 京成本線 千住大橋駅 徒歩5分 東京メトロ日比谷線 北千住駅 徒歩12分 東京メトロ日比谷線 南千住駅 徒歩18分 東京都足立区千住河原町 | 詳細を見る | |
アパート セレスティア南花畑Ⅱ(2LDK/1階) | |||||||
![]() | 13.4万円 6,000円 | なし 13.4万円 | 2LDK 47.95m2 | 築2年 | つくばエクスプレス 六町駅 徒歩14分 東京都足立区南花畑3丁目 | 詳細を見る | |
マンション サングランデ六町(2LDK/5階) | |||||||
![]() | 16.9万円 1万円 | 16.9万円 16.9万円 | 2LDK 58.02m2 | 築6年 | つくばエクスプレス 六町駅 徒歩1分 つくばエクスプレス 青井駅 徒歩18分 東京メトロ千代田線 北綾瀬駅 徒歩20分 東京都足立区六町 | 詳細を見る | |
マンション ラシクラス板橋本町(1K/3階) | |||||||
![]() | 12.3万円 1.2万円 | 12.3万円 12.3万円 | 1K 25.95m2 | 新築 | 都営三田線 板橋本町駅 徒歩5分 都営三田線 板橋区役所前駅 徒歩12分 東武東上線 中板橋駅 徒歩19分 東京都板橋区本町 | 詳細を見る | |
マンション アーバンハイツ要町(ワンルーム/4階) | |||||||
![]() | 8.5万円 5,000円 | 8.5万円 8.5万円 | ワンルーム 20.22m2 | 築40年 | 東京メトロ有楽町線 要町駅 徒歩3分 東京メトロ副都心線 要町駅 徒歩3分 JR山手線 池袋駅 徒歩17分 東京都豊島区要町 | 詳細を見る | |
アパート T.A足立区足立2丁目IIC棟(1DK/2階) | |||||||
![]() | 8.4万円 3,000円 | なし なし | 1DK 30.24m2 | 築7年 | 東武伊勢崎線 小菅駅 徒歩8分 東武伊勢崎線 五反野駅 徒歩9分 JR常磐線 綾瀬駅 徒歩22分 東京都足立区足立 | 詳細を見る | |








