賃貸マンション
レナトゥス四谷の賃貸物件情報(1K/5階)
| 家賃 | 管理費等 | 敷金 | 礼金 | 間取り | 専有面積 |
|---|---|---|---|---|---|
| 9万円 | 1.5万円 | なし | 9万円 | 1K | 23.08m2 |
入居決定でお祝い金最大100,000円
- 保証金
- -
- 償却・敷引
- -
- 築年数
- 築21年
- 所在階
- 5階
- 向き
- 南
Point
まずはお問い合わせ!
不動産会社は街のプロ、あなたに合った物件がきっと見つかります。
提供:クリアルパートナーズ(株)(SUUMO経由)

詳細情報 レナトゥス四谷
物件紹介
レナトゥス四谷は東京メトロ丸ノ内線四谷三丁目駅から徒歩4分にあり、駅近で通勤通学に便利なマンションです。
このお部屋は2階以上に位置しているので通行人や周囲の住人からの視線が気になりにくく、建物のエントランスはオートロックがついているので防犯性が高くなっています。
人気の南向きのお部屋。キッチンはシステムキッチン仕様になっていますので、お料理好きの方にもぴったり。バス・トイレは別なので、のんびりお風呂タイムも楽しめるでしょう。また、雨の日でも浴室乾燥機を使えば、お洗濯も問題ありません。
通信設備面では、インターネットが無料で使えるので、月々の出費を抑えられるのも魅力です。また、BSアンテナ・CSアンテナもありますので、おうち時間も充実するでしょう(別途工事、BS・CSの契約料等が必要な場合あり)。
建物にはエレベーターがついているので、重い荷物があっても安心。共用部には宅配ボックスが設定されているので、不在の時にも荷物を受け取ることができます。
このお部屋は2階以上に位置しているので通行人や周囲の住人からの視線が気になりにくく、建物のエントランスはオートロックがついているので防犯性が高くなっています。
人気の南向きのお部屋。キッチンはシステムキッチン仕様になっていますので、お料理好きの方にもぴったり。バス・トイレは別なので、のんびりお風呂タイムも楽しめるでしょう。また、雨の日でも浴室乾燥機を使えば、お洗濯も問題ありません。
通信設備面では、インターネットが無料で使えるので、月々の出費を抑えられるのも魅力です。また、BSアンテナ・CSアンテナもありますので、おうち時間も充実するでしょう(別途工事、BS・CSの契約料等が必要な場合あり)。
建物にはエレベーターがついているので、重い荷物があっても安心。共用部には宅配ボックスが設定されているので、不在の時にも荷物を受け取ることができます。
お金・契約の情報
※「-」と表示されているものは、実際は料金が発生するものもございます。詳細はお問い合わせください。
| 家賃 | 9万円 | 管理費・共益費 | 1.5万円 |
|---|---|---|---|
| 敷金 | なし | 礼金 | 9万円 |
| 入居決定でお祝い金最大100,000円 | |||
| 保証金 | - | 償却・敷引 | - |
| 住宅保険料 | - | 更新料 | - |
| 保証会社利用 | 必須 | 保証会社名 | - |
| 保証会社費用 | - | 保証会社備考 | 保証会社利用必 初回契約時:50%、月額:1.2%、外国籍の方(ジェイリースの場合):初回保証料100%・月額保証料1.2% |
| 契約形態 | - | 契約期間 | - |
| 入居・引渡期間 | - | 現況 | - |
| 契約備考 | 解約予告:2ヶ月前、1年未満短期解約違約金有(賃料+管理費の1ヶ月分)、更新料:新賃料の1か月分、更新事務手数料有(個人名義:20,000円+消費税/法人名義0.5ヶ月+消費税)、鍵交換代は1シリンダーのみ交換の場合の金額、鍵のお渡しは1本のみの場合がございます、初期費用カード決済可(ご相談ください) 合計6.05万円(内訳:アクト安心ライフ24(2年毎更新必須) 16500円税込 除菌消臭代 11000円税込 鍵交換代/1シリンダーに付き 33000円税込) 退去時:室内清掃費(定額)、ACクリーニング代(定額)、原状回復費用(実費)を頂戴致します 1K 普通借家2年 損保【2万円2年】 バストイレ別、バルコニー、エアコン、浴室乾燥機、オートロック、室内洗濯置、システムキッチン、南向き、温水洗浄便座、エレベーター、駐輪場、宅配ボックス、BS・CS、敷金不要、分譲賃貸、保証人不要、バイク置場、2沿線利用可、CS、ネット使用料不要、2駅利用可、駅徒歩5分以内、敷地内ごみ置き場、都市ガス、BS、礼金1ヶ月、保証会社利用可、IT重説対応物件、初期費用カード決済可 入居日:'26年3月下旬 | ||
部屋の情報
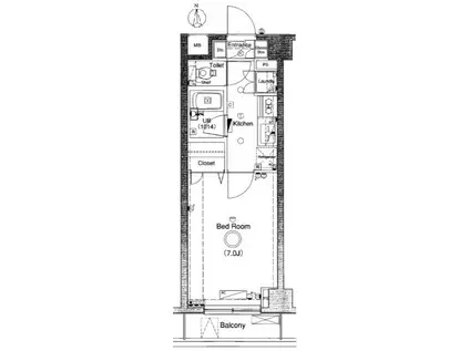
| 間取り | 1K | 専有面積 | 23.08m2 |
|---|---|---|---|
| 所在階 / 向き | 5階 / 南 | バルコニー面積 | - |
| 水道 / ガス | - | ||
| 設備 | バス・トイレ別、2階以上、オートロック、宅配ボックス、浴室乾燥機、インターネット対応、システムキッチン、エアコン、エレベーター、温水洗浄便座、南向き、バルコニー、CSアンテナ、BSアンテナ、インターネット使用料無料、洗濯機:室内 | ||
| 当社物件ID | 21645409 | ||
建物の情報
| 建物名 | レナトゥス四谷 | ||
|---|---|---|---|
| 所在地 | 東京都新宿区荒木町 | ||
| 交通 | 東京メトロ丸ノ内線 四谷三丁目駅 徒歩4分 都営新宿線 曙橋駅 徒歩5分 東京メトロ南北線 四ツ谷駅 徒歩10分 | ||
| 階数 | 6階建 | 総戸数 | 50戸 |
| 築年月 | 2006年01月 / 築21年 | エレベーター | あり |
| 駐車場 | なし | バイク置き場 | あり |
| 駐輪場 | あり | 管理人/管理会社 | - |
| 周辺環境 | その他 まいばすけっと四谷三丁目駅東店(スーパー)まで210m その他 ミニストップ四谷3丁目店(コンビニ)まで248m その他 スギ薬局四谷三丁目店(ドラッグストア)まで205m その他 どらっぐぱぱす曙橋店(ドラッグストア)まで528m その他 ほっともっと四谷2丁目店(飲食店)まで200m その他 ファミリーマート新宿荒木町店(コンビニ)まで108m | ||
| 建物種別 | マンション | 建物構造 | RC(鉄筋コンクリート) |
この部屋の取扱い不動産会社
| 会社名 | クリアルパートナーズ(株)(SUUMO経由) | ||
|---|---|---|---|
| 所在地 | 東京都港区虎ノ門3-8-8NTT虎ノ門ビル8階 | 交通 | - |
| 営業時間 | 10:00~18:30 | 定休日 | 日曜日・祝日 |
| 免許番号 | 東京都知事96109 | 取引態様 | 代理 |
| 不動産会社管理番号 | 100481900700 | 当社管理番号 | 89 |
| 所属団体 | (公社)東京都宅地建物取引業協会会員 | ||
| 公正取引協議会 | (公社)首都圏不動産公正取引協議会加盟 | ||
| 取扱い物件情報 | 物件詳細へ | ||
※各種情報と現状に差異がある場合は、現状優先となります。問い合わせをすることで、より詳しい条件、情報を確認する事ができます。
提供:クリアルパートナーズ(株)(SUUMO経由)
この物件が気になったら掲載期限まであと9日
レナトゥス四谷に条件(家賃・エリア)が近い物件一覧
| 写真 | 家賃 管理費等 | 敷金 礼金 | 間取り 専有面積 | 築年数 | 最寄り駅 所在地 | キープ | 詳細 |
|---|---|---|---|---|---|---|---|
マンション エスコート東大前(1K/6階) | |||||||
![]() | 8.4万円 9,000円 | 8.4万円 8.4万円 | 1K 20.68m2 | 築26年 | 東京地下鉄南北線 本駒込駅 徒歩2分 東京都三田線 白山駅(東京) 徒歩5分 東京地下鉄南北線 東大前駅 徒歩9分 東京都文京区向丘1丁目 | 詳細を見る | |
マンション T&G神田マンション(1K/13階) | |||||||
![]() | 12.9万円 6,000円 | 12.9万円 12.9万円 | 1K 26.52m2 | 築22年 | 総武本線 新日本橋駅 徒歩3分 山手線 神田駅(東京) 徒歩6分 東京都千代田区神田美倉町 | 詳細を見る | |
マンション パレヴェール文京(ワンルーム/3階) | |||||||
![]() | 6.9万円 4,000円 | 6.9万円 なし | ワンルーム 20.82m2 | 築36年 | 東京都荒川線 早稲田駅(都電) 徒歩7分 東京地下鉄有楽町線 江戸川橋駅 徒歩11分 東京地下鉄東西線 早稲田駅(メトロ) 徒歩11分 東京都文京区関口1丁目 | 詳細を見る | |
アパート フィオーレ(1DK/1階) | |||||||
![]() | 12.55万円 4,100円 | なし 12.55万円 | 1DK 33.85m2 | 築3年 | 東京都三田線 春日駅(東京) 徒歩11分 東京都三田線 白山駅(東京) 徒歩11分 東京地下鉄南北線 後楽園駅 徒歩11分 東京都文京区白山2丁目 | 詳細を見る | |
マンション S-RESIDENCE駒込六義園(1K/9階) | |||||||
![]() | 11.7万円 1.5万円 | なし なし | 1K 25.22m2 | 築4年 | 東京地下鉄南北線 駒込駅 徒歩6分 山手線 駒込駅 徒歩7分 東京都文京区本駒込5丁目 | 詳細を見る | |
マンション ルーブル文京音羽(1K/12階) | |||||||
![]() | 8.3万円 1万円 | 8.3万円 8.3万円 | 1K 20.67m2 | 築26年 | 東京地下鉄有楽町線 江戸川橋駅 徒歩3分 東京地下鉄有楽町線 護国寺駅 徒歩7分 東京地下鉄丸ノ内線 茗荷谷駅 徒歩15分 東京都文京区音羽1丁目 | 詳細を見る | |
マンション レジディア文京湯島Ⅱ(1K/10階) | |||||||
![]() | 12.5万円 1万円 | なし なし | 1K 21.29m2 | 築22年 | 東京地下鉄千代田線 湯島駅 徒歩1分 東京地下鉄銀座線 上野広小路駅 徒歩5分 山手線 御徒町駅 徒歩7分 東京都文京区湯島3丁目 | 詳細を見る | |
マンション スカイコート東大前壱番館(1K/3階) | |||||||
![]() | 9.02万円 6,800円 | 9.02万円 9.02万円 | 1K 19.39m2 | 築22年 | 東京地下鉄南北線 東大前駅 徒歩3分 東京都三田線 白山駅(東京) 徒歩10分 東京地下鉄南北線 本駒込駅 徒歩14分 東京都文京区西片2丁目 | 詳細を見る | |









