賃貸アパート
レオパレスシャングリラの賃貸物件情報(1K/2階)
| 家賃 | 管理費等 | 敷金 | 礼金 | 間取り | 専有面積 |
|---|---|---|---|---|---|
| 4.5万円 | 4,500円 | なし | なし | 1K | 22.35m2 |
入居決定でお祝い金最大100,000円
Point
即入居でお部屋に住みたい方はこちら現在空き室となっております。
提供:ハウスコム静岡株式会社 静岡店

詳細情報 レオパレスシャングリラ
物件紹介
このお部屋は2階以上に位置しているので、通行人や周囲の住人からの視線が気になりにくく、防犯面でも安心。インターホンにはTVモニタもついているため、相手の顔を確認してから来客対応することができます。
バス・トイレ別の仕様で、のんびりお風呂タイムも楽しめます。
通信設備面では、インターネット接続が可能です(別途工事、契約料が必要な場合あり)。
共用部には宅配ボックスが設定されているので、不在の時にも荷物を受け取ることができます。
コンビニまで徒歩18分の場所にあり、日用品や食料品のお買い物にも便利です。
バス・トイレ別の仕様で、のんびりお風呂タイムも楽しめます。
通信設備面では、インターネット接続が可能です(別途工事、契約料が必要な場合あり)。
共用部には宅配ボックスが設定されているので、不在の時にも荷物を受け取ることができます。
コンビニまで徒歩18分の場所にあり、日用品や食料品のお買い物にも便利です。
お金・契約の情報
※「-」と表示されているものは、実際は料金が発生するものもございます。詳細はお問い合わせください。
| 家賃 | 4.5万円 | 管理費・共益費 | 4,500円 |
|---|---|---|---|
| 敷金 | なし | 礼金 | なし |
| 入居決定でお祝い金最大100,000円 | |||
| 保証金 | - | 償却・敷引 | - |
| 住宅保険料 | 1円 | 更新料 | - |
| その他費用 | 抗菌施工(任意):2.376万円 | ||
| 保証会社利用 | 必須 | 保証会社名 | - |
| 保証会社費用 | - | 保証会社備考 | 保証料:53390円(契約内容により100〜120%で変動有)※記載金額は120%の場合 |
| 契約形態 | - | 契約期間 | - |
| 入居・引渡期間 | 即時 | 現況 | - |
| 契約備考 | 鍵交換費10450円、抗菌施工(任意)18040円から23760円(税込)/環境維持費550円/月、更新手数料16500円/2年(税込)/基本清掃料:31350円(税込) 月額(環境維持費 550円) 鍵交換費用:16500 室内清掃費用:41800 その他設備/条件:室内洗濯機置き場、シューズボックス | ||
部屋の情報
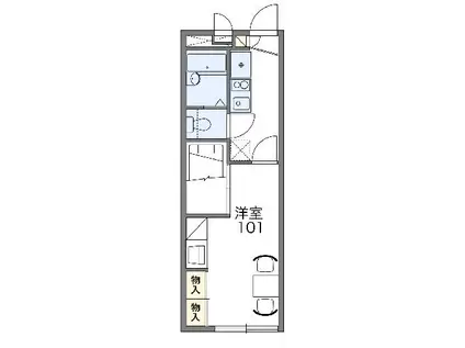
| 間取り | 1K | 専有面積 | 22.35m2 |
|---|---|---|---|
| 所在階 / 向き | 2階 / - | バルコニー面積 | - |
| 水道 / ガス | - | ||
| 設備 | バス・トイレ別、テレビドアホン、宅配ボックス、光ファイバー対応、エアコン、家具家電付き | ||
| 当社物件ID | 3256582 | ||
建物の情報
| 建物名 | レオパレスシャングリラ | ||
|---|---|---|---|
| 所在地 | 静岡県静岡市葵区南沼上3丁目 | ||
| 交通 | 東海道本線 静岡駅 バス乗車時間:30分 南沼上バス停で下車 徒歩4分 | ||
| 階数 | 2階建 | 総戸数 | 14戸 |
| 築年月 | 2007年02月 / 築19年 | エレベーター | - |
| 駐車場 | 空有 6,050円/月 | バイク置き場 | - |
| 駐輪場 | - | 管理人/管理会社 | - |
| 周辺環境 | コンビニ 徒歩18分(1434m) その他 ドラッグストア その他 公園 その他 銀行 その他 * | ||
| 建物種別 | アパート | 建物構造 | 軽量鉄骨造 |
この部屋の取扱い不動産会社
| 会社名 | ハウスコム静岡株式会社 静岡草薙店 | ||
|---|---|---|---|
| 所在地 | 静岡県静岡市清水区6-11KOWAビル1階 | 交通 | - |
| 営業時間 | 10:00~18:00 | 定休日 | - |
| 免許番号 | 静岡県知事(1)第14629号 | 取引態様 | 仲介 |
| 不動産会社管理番号 | HC5-85780-202-0079 | 当社管理番号 | 468 |
| 所属団体 | 、 | ||
| 取扱い物件情報 | 物件詳細へ | ||
※各種情報と現状に差異がある場合は、現状優先となります。問い合わせをすることで、より詳しい条件、情報を確認する事ができます。
提供:ハウスコム静岡株式会社 静岡草薙店
この物件が気になったら掲載期限まであと5日
レオパレスシャングリラに条件(家賃・エリア)が近い物件一覧
| 写真 | 家賃 管理費等 | 敷金 礼金 | 間取り 専有面積 | 築年数 | 最寄り駅 所在地 | キープ | 詳細 |
|---|---|---|---|---|---|---|---|
マンション オリエントハイツ(ワンルーム/3階) | |||||||
![]() | 4.9万円 1,000円 | なし なし | ワンルーム 24.18m2 | 築37年 | JR東海道本線 静岡駅 徒歩6分 静岡鉄道静岡清水線 新静岡駅 徒歩13分 静岡県静岡市駿河区南町 | 詳細を見る | |
アパート スカイビレッヂ(1LDK/2階) | |||||||
![]() | 3.9万円 2,000円 | なし なし | 1LDK 34.02m2 | 築37年 | 静岡県藤枝市時ケ谷 | 詳細を見る | |
マンション 宮本ビル(2DK/4階) | |||||||
![]() | 3.5万円 2,500円 | なし なし | 2DK 48.6m2 | 築53年 | 岳南電車 ジヤトコ前駅(ジヤトコ1地区前) 徒歩17分 静岡県富士市永田町1丁目 | 詳細を見る | |
マンション レオパレスSUGIYAMAⅢ(1K/2階) | |||||||
![]() | 3.4万円 6,000円 | なし なし | 1K 20.81m2 | 築19年 | 東海道本線 焼津駅 徒歩19分 静岡県焼津市大村3丁目 | 詳細を見る | |
マンション ソレーユ富士(1DK/1階) | |||||||
![]() | 3.8万円 3,000円 | なし なし | 1DK 30.71m2 | 築29年 | JR身延線 竪堀駅 徒歩9分 JR身延線 柚木駅(JR) 徒歩19分 JR東海道本線 富士駅 徒歩20分 静岡県富士市中島 | 詳細を見る | |
マンション コーポサンエス(ワンルーム/3階) | |||||||
![]() | 4.3万円 なし | 4.3万円 なし | ワンルーム 24.42m2 | 築43年 | 静岡鉄道静岡清水線 日吉町駅 徒歩3分 静岡鉄道静岡清水線 新静岡駅 徒歩6分 静岡県静岡市葵区鷹匠2丁目 | 詳細を見る | |
マンション グランドール太田(3DK/4階) | |||||||
![]() | 5.2万円 3,000円 | 5.2万円 なし | 3DK 55.68m2 | 築37年 | JR東海道本線 富士駅 徒歩11分 JR身延線 柚木駅(JR) 徒歩14分 JR身延線 竪堀駅 徒歩21分 静岡県富士市平垣本町 | 詳細を見る | |
マンション ときわマンション(ワンルーム/3階) | |||||||
![]() | 3.9万円 6,000円 | なし なし | ワンルーム 16.73m2 | 築34年 | 東海道本線 静岡駅 徒歩10分 静岡県静岡市葵区川辺町2丁目 | 詳細を見る | |









/105x80-f1-q70-wp1)