賃貸アパート
レオパレスシャングリラの賃貸物件情報(1K/2階)
| 家賃 | 管理費等 | 敷金 | 礼金 | 間取り | 専有面積 |
|---|---|---|---|---|---|
| 4.5万円 | 4,500円 | なし | 4.5万円 | 1K | 22.35m2 |
入居決定でお祝い金最大100,000円
Point
まずはお問い合わせ!
不動産会社は街のプロ、あなたに合った物件がきっと見つかります。
提供:ハウスコム静岡株式会社 静岡草薙店

詳細情報 レオパレスシャングリラ
物件紹介
このお部屋は2階以上に位置しているので、通行人や周囲の住人からの視線が気になりにくく、防犯面でも安心。インターホンにはTVモニタもついているため、相手の顔を確認してから来客対応することができます。
バス・トイレ別の仕様で、のんびりお風呂タイムも楽しめます。
通信設備面では、インターネット接続が可能です(別途工事、契約料が必要な場合あり)。
共用部には宅配ボックスが設定されているので、不在の時にも荷物を受け取ることができます。
コンビニまで徒歩18分の場所にあり、日用品や食料品のお買い物にも便利です。
バス・トイレ別の仕様で、のんびりお風呂タイムも楽しめます。
通信設備面では、インターネット接続が可能です(別途工事、契約料が必要な場合あり)。
共用部には宅配ボックスが設定されているので、不在の時にも荷物を受け取ることができます。
コンビニまで徒歩18分の場所にあり、日用品や食料品のお買い物にも便利です。
お金・契約の情報
※「-」と表示されているものは、実際は料金が発生するものもございます。詳細はお問い合わせください。
| 家賃 | 4.5万円 | 管理費・共益費 | 4,500円 |
|---|---|---|---|
| 敷金 | なし | 礼金 | 4.5万円 |
| 入居決定でお祝い金最大100,000円 | |||
| 保証金 | - | 償却・敷引 | - |
| 住宅保険料 | 1円 | 更新料 | - |
| その他費用 | 抗菌施工(任意):2.376万円 | ||
| 保証会社利用 | 必須 | 保証会社名 | - |
| 保証会社費用 | - | 保証会社備考 | 保証料:53390円(契約内容により100〜120%で変動有)※記載金額は120%の場合 |
| 契約形態 | - | 契約期間 | - |
| 入居・引渡期間 | 即時 | 現況 | - |
| 契約備考 | 鍵交換費10450円、抗菌施工(任意)18040円から23760円(税込)/環境維持費550円/月、更新手数料16500円/2年(税込)/基本清掃料:31350円(税込) 月額(環境維持費 550円) 鍵交換費用:16500 室内清掃費用:41800 その他設備/条件:室内洗濯機置き場、シューズボックス | ||
部屋の情報
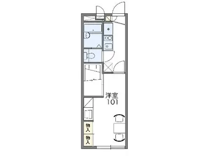
| 間取り | 1K | 専有面積 | 22.35m2 |
|---|---|---|---|
| 所在階 / 向き | 2階 / - | バルコニー面積 | - |
| 水道 / ガス | - | ||
| 設備 | バス・トイレ別、テレビドアホン、宅配ボックス、光ファイバー対応、エアコン、家具家電付き | ||
| 当社物件ID | 1611038 | ||
建物の情報
| 建物名 | レオパレスシャングリラ | ||
|---|---|---|---|
| 所在地 | 静岡県静岡市葵区南沼上3丁目 | ||
| 交通 | 東海道本線 静岡駅 バス乗車時間:30分 南沼上バス停で下車 徒歩4分 | ||
| 階数 | 2階建 | 総戸数 | 14戸 |
| 築年月 | 2007年02月 / 築20年 | エレベーター | - |
| 駐車場 | 空有 6,050円/月 | バイク置き場 | - |
| 駐輪場 | - | 管理人/管理会社 | - |
| 周辺環境 | コンビニ 徒歩18分(1434m) その他 ドラッグストア その他 公園 その他 銀行 その他 * | ||
| 建物種別 | アパート | 建物構造 | 軽量鉄骨造 |
この部屋の取扱い不動産会社
| 会社名 | ハウスコム静岡株式会社 静岡北店 | ||
|---|---|---|---|
| 所在地 | 静岡県静岡市葵区10-6第一富士岡ビル1階 | 交通 | - |
| 営業時間 | 10:00~18:00 | 定休日 | - |
| 免許番号 | 静岡県知事(1)第14629号 | 取引態様 | 仲介 |
| 不動産会社管理番号 | HC5-85780-204-0039 | 当社管理番号 | 468 |
| 所属団体 | 、 | ||
| 取扱い物件情報 | 物件詳細へ | ||
※各種情報と現状に差異がある場合は、現状優先となります。問い合わせをすることで、より詳しい条件、情報を確認する事ができます。
提供:ハウスコム静岡株式会社 静岡北店
この物件が気になったら掲載期限まであと5日
レオパレスシャングリラに条件(家賃・エリア)が近い物件一覧
| 写真 | 家賃 管理費等 | 敷金 礼金 | 間取り 専有面積 | 築年数 | 最寄り駅 所在地 | キープ | 詳細 |
|---|---|---|---|---|---|---|---|
マンション メゾンかりがね(1DK/1階) | |||||||
![]() | 4.9万円 2,000円 | なし なし | 1DK 30.35m2 | 築25年 | JR身延線 柚木駅(JR) 徒歩6分 JR身延線 竪堀駅 徒歩23分 JR東海道本線 富士駅 徒歩23分 静岡県富士市松岡 | 詳細を見る | |
マンション ブルージュM(1DK/3階) | |||||||
![]() | 5.1万円 2,000円 | 5.1万円 なし | 1DK 30.35m2 | 築26年 | JR東海道本線 富士駅 徒歩9分 JR身延線 富士駅 徒歩9分 JR身延線 柚木駅(JR) 徒歩13分 静岡県富士市元町 | 詳細を見る | |
マンション ロゼオ・フィオーレ(2LDK/3階) | |||||||
![]() | 5.9万円 3,000円 | なし なし | 2LDK 58.42m2 | 築22年 | 東海道・山陽新幹線 新富士駅(静岡) 徒歩36分 静岡県富士市蓼原 | 詳細を見る | |
マンション カーサ落合(1DK/3階) | |||||||
![]() | 4.2万円 3,000円 | なし なし | 1DK 30.29m2 | 築25年 | 東海道・山陽新幹線 新富士駅(静岡) 徒歩20分 静岡県富士市森下 | 詳細を見る | |
マンション CITY RIVER II(2DK/1階) | |||||||
![]() | 4.5万円 2,000円 | なし なし | 2DK 41.76m2 | 築27年 | JR身延線 富士根駅 徒歩12分 JR東海道本線 富士駅 徒歩88分 岳南電車 吉原本町駅 徒歩91分 静岡県富士市天間 | 詳細を見る | |
マンション カーサカジマII(2LDK/1階) | |||||||
![]() | 6.6万円 3,000円 | なし なし | 2LDK 53.28m2 | 築27年 | JR東海道本線 富士駅 徒歩15分 静岡県富士市本市場 | 詳細を見る | |
マンション コンフォートマエジマ(1LDK/1階) | |||||||
![]() | 5.7万円 3,000円 | なし なし | 1LDK 42.36m2 | 築11年 | 身延線 富士根駅 徒歩12分 静岡県富士市天間 | 詳細を見る | |
マンション マンション明日香(1DK/3階) | |||||||
![]() | 4万円 2,000円 | なし なし | 1DK 30.7m2 | 築29年 | 岳南電車 ジヤトコ前駅(ジヤトコ1地区前) 徒歩22分 岳南電車 吉原本町駅 徒歩26分 静岡県富士市蓼原 | 詳細を見る | |









