賃貸マンション
ルーブル板橋区役所前の賃貸物件情報(1K/4階)
| 家賃 | 管理費等 | 敷金 | 礼金 | 間取り | 専有面積 |
|---|---|---|---|---|---|
| 10.5万円 | 1万円 | 10.5万円 | なし | 1K | 25.62m2 |
入居決定でお祝い金最大100,000円
- 保証金
- -
- 償却・敷引
- -
- 築年数
- 築12年
- 所在階
- 4階
- 向き
- 西
Point
収納はクロゼット・シューズボックスなどが備え付けられているので、衣類や日用品の収納に重宝します。共用部にはゴミ出し24時間OK・宅配ボックスなど様々な設備やサービスが揃っているので便利です。
提供:ハウス・トゥ・ハウス・ネットサービス(株)志村坂上店(SUUMO経由)

詳細情報 ルーブル板橋区役所前
物件紹介
ルーブル板橋区役所前は都営三田線板橋区役所前駅から徒歩4分にあり、駅近で通勤通学に便利なマンションです。
このお部屋は2階以上に位置しているので、通行人や周囲の住人からの視線が気になりにくく、防犯面でも安心。建物のエントランスはオートロックがついており、インターホンにはTVモニタもついているため、相手の顔を確認してから来客対応することができます。
フローリングのお部屋なのでお掃除もラクラク。キッチンはシステムキッチン仕様になっていますので、お料理好きの方にもぴったり。バス・トイレは別なので、のんびりお風呂タイムも楽しめるでしょう。また、雨の日でも浴室乾燥機を使えば、お洗濯も問題ありません。
通信設備面では、インターネット接続が可能です。また、BSアンテナ・CSアンテナがありCATVにも対応しているので、おうち時間も充実するでしょう(別途工事、契約料が必要な場合あり)。
建物にはエレベーターがついているので、重い荷物があっても安心。共用部には宅配ボックスが設定されているので、不在の時にも荷物を受け取ることができます。
このお部屋は2階以上に位置しているので、通行人や周囲の住人からの視線が気になりにくく、防犯面でも安心。建物のエントランスはオートロックがついており、インターホンにはTVモニタもついているため、相手の顔を確認してから来客対応することができます。
フローリングのお部屋なのでお掃除もラクラク。キッチンはシステムキッチン仕様になっていますので、お料理好きの方にもぴったり。バス・トイレは別なので、のんびりお風呂タイムも楽しめるでしょう。また、雨の日でも浴室乾燥機を使えば、お洗濯も問題ありません。
通信設備面では、インターネット接続が可能です。また、BSアンテナ・CSアンテナがありCATVにも対応しているので、おうち時間も充実するでしょう(別途工事、契約料が必要な場合あり)。
建物にはエレベーターがついているので、重い荷物があっても安心。共用部には宅配ボックスが設定されているので、不在の時にも荷物を受け取ることができます。
お金・契約の情報
※「-」と表示されているものは、実際は料金が発生するものもございます。詳細はお問い合わせください。
| 家賃 | 10.5万円 | 管理費・共益費 | 1万円 |
|---|---|---|---|
| 敷金 | 10.5万円 | 礼金 | なし |
| 入居決定でお祝い金最大100,000円 | |||
| 保証金 | - | 償却・敷引 | - |
| 住宅保険料 | - | 更新料 | - |
| 保証会社利用 | 必須 | 保証会社名 | - |
| 保証会社費用 | - | 保証会社備考 | 保証会社利用必 初回保証料:賃料等の50% 月額保証料:賃料等の1% |
| 契約形態 | - | 契約期間 | - |
| 入居・引渡期間 | - | 現況 | - |
| 契約備考 | 更新事務手数料22000円。解約予告2ヶ月前。1年未満の解約は賃料2ヶ月分、2年未満の解約は賃料1ヶ月分の違約金あり。お車でご案内します。お気軽にお問い合わせ下さい。 合計4.95万円(内訳:緊急駆付けサポート1.65万円鍵交換代3.3万円) 更新料 新賃料1.00ヶ月分 火災保険 月額1000円 1K 普通借家2年 損保【要】 バストイレ別、バルコニー、エアコン、ガスコンロ対応、クロゼット、フローリング、TVインターホン、オートロック、室内洗濯置、シューズボックス、システムキッチン、温水洗浄便座、エレベーター、洗面化粧台、2口コンロ、駐輪場、宅配ボックス、CATV、礼金不要、防犯カメラ、分譲賃貸、バイク置場、24時間緊急通報システム、24時間ゴミ出し可、敷地内ごみ置き場、セキュリティ会社加入済、都市ガス、IT重説対応物件、初期費用カード決済可 入居日:'26年3月下旬 | ||
部屋の情報
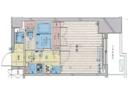
| 間取り | 1K | 専有面積 | 25.62m2 |
|---|---|---|---|
| 所在階 / 向き | 4階 / 西 | バルコニー面積 | - |
| 水道 / ガス | - | ||
| 設備 | バス・トイレ別、2階以上、オートロック、テレビドアホン、宅配ボックス、システムキッチン、エアコン、エレベーター、温水洗浄便座、バルコニー、フローリング、2口コンロ、コンロ:ガス、CATV、洗濯機:室内 | ||
| 当社物件ID | 13874191 | ||
建物の情報
| 建物名 | ルーブル板橋区役所前 | ||
|---|---|---|---|
| 所在地 | 東京都板橋区板橋 | ||
| 交通 | 都営三田線 板橋区役所前駅 徒歩4分 東武東上線 大山駅(東京) 徒歩9分 東武東上線 下板橋駅 徒歩11分 | ||
| 階数 | 14階建 | 総戸数 | - |
| 築年月 | 2014年07月 / 築12年 | エレベーター | あり |
| 駐車場 | なし | バイク置き場 | あり |
| 駐輪場 | あり | 管理人/管理会社 | - |
| 周辺環境 | その他 谷端川北緑道(公園)まで578m その他 メディカルスクエア板橋区役所前(病院)まで530m その他 まいばすけっと 板橋区役所前店(スーパー)まで240m その他 ローソン 大山東町店(コンビニ)まで172m その他 板橋警察署(警察署・交番)まで362m その他 ビッグ・エー 板橋大山店(スーパー)まで276m | ||
| 建物種別 | マンション | 建物構造 | RC(鉄筋コンクリート) |
この部屋の取扱い不動産会社
| 会社名 | ハウス・トゥ・ハウス・ネットサービス(株)駒込店(SUUMO経由) | ||
|---|---|---|---|
| 所在地 | 東京都文京区本駒込6-24-4 アヴァンツァーレ文京本駒込101 | 交通 | - |
| 営業時間 | 10:00~18:30(1月~3月は9:30~) | 定休日 | 水曜日 |
| 免許番号 | 国土交通大臣7400 | 取引態様 | 仲介 |
| 不動産会社管理番号 | 100485788951 | 当社管理番号 | 89 |
| 所属団体 | (公社)全日本不動産協会東京都本部会員 | ||
| 公正取引協議会 | (公社)首都圏不動産公正取引協議会加盟 | ||
| 取扱い物件情報 | 物件詳細へ | ||
※各種情報と現状に差異がある場合は、現状優先となります。問い合わせをすることで、より詳しい条件、情報を確認する事ができます。
提供:ハウス・トゥ・ハウス・ネットサービス(株)駒込店(SUUMO経由)
この物件が気になったら掲載期限まであと10日
ルーブル板橋区役所前に条件(家賃・エリア)が近い物件一覧
| 写真 | 家賃 管理費等 | 敷金 礼金 | 間取り 専有面積 | 築年数 | 最寄り駅 所在地 | キープ | 詳細 |
|---|---|---|---|---|---|---|---|
マンション ハウスS赤羽(ワンルーム/2階) | |||||||
![]() | 6.5万円 3,000円 | なし なし | ワンルーム 20.02m2 | 築38年 | JR京浜東北線 赤羽駅 徒歩4分 JR埼京線 赤羽駅 徒歩4分 東京メトロ南北線 志茂駅 徒歩12分 東京都北区赤羽南 | 詳細を見る | |
マンション オーパスレジデンス中板橋(1LDK/11階) | |||||||
![]() | 16.3万円 9,000円 | なし なし | 1LDK 35.42m2 | 築3年 | 東武東上線 中板橋駅 徒歩6分 東武東上線 大山駅(東京) 徒歩15分 東武東上線 ときわ台駅(東京) 徒歩16分 東京都板橋区中板橋 | 詳細を見る | |
マンション ビバリーホームズ板橋本町(1DK/7階) | |||||||
![]() | 8.8万円 6,000円 | なし 8.8万円 | 1DK 25.97m2 | 築16年 | 都営三田線 板橋本町駅 徒歩5分 都営三田線 本蓮沼駅 徒歩7分 東武東上線 中板橋駅 徒歩20分 東京都板橋区清水町 | 詳細を見る | |
マンション プレセダン板橋本町(1DK/6階) | |||||||
![]() | 13.7万円 1万円 | 13.7万円 なし | 1DK 30.62m2 | 築1年 | 都営三田線 板橋本町駅 徒歩5分 都営三田線 板橋区役所前駅 徒歩12分 東武東上線 中板橋駅 徒歩13分 東京都板橋区大和町 | 詳細を見る | |
マンション レオパレス壽光I(1LDK/2階) | |||||||
![]() | 12.8万円 7,500円 | なし 12.8万円 | 1LDK 39.74m2 | 築17年 | 都営三田線 本蓮沼駅 徒歩12分 都営三田線 志村坂上駅 徒歩14分 東京都板橋区前野町 | 詳細を見る | |
マンション RELUXIA氷川台(1LDK/4階) | |||||||
![]() | 14万円 2万円 | なし なし | 1LDK 40.91m2 | 築7年 | 東京メトロ副都心線 氷川台駅 徒歩6分 西武有楽町線 新桜台駅 徒歩14分 東京メトロ副都心線 小竹向原駅 徒歩20分 東京都練馬区氷川台 | 詳細を見る | |
アパート メゾン西村(2DK/1階) | |||||||
![]() | 7万円 なし | 7万円 なし | 2DK 46m2 | 築34年 | 都営三田線 志村三丁目駅 徒歩18分 東武東上線 東武練馬駅 徒歩18分 都営三田線 蓮根駅 徒歩19分 東京都板橋区西台 | 詳細を見る | |







