賃貸マンション
ルーブル板橋区役所前の賃貸物件情報(1K/4階)
| 家賃 | 管理費等 | 敷金 | 礼金 | 間取り | 専有面積 |
|---|---|---|---|---|---|
| 10.5万円 | 1万円 | 10.5万円 | なし | 1K | 25.62m2 |
入居決定でお祝い金最大100,000円
- 保証金
- -
- 償却・敷引
- -
- 築年数
- 築12年
- 所在階
- 4階
- 向き
- 西
Point
収納はクロゼット・シューズボックスなどが備え付けられているので、衣類や日用品の収納に重宝します。共用部にはゴミ出し24時間OK・宅配ボックスなど様々な設備やサービスが揃っているので便利です。
提供:ハウス・トゥ・ハウス・ネットサービス(株)巣鴨店(SUUMO経由)

詳細情報 ルーブル板橋区役所前
物件紹介
ルーブル板橋区役所前は都営三田線板橋区役所前駅から徒歩4分にあり、駅近で通勤通学に便利なマンションです。
このお部屋は2階以上に位置しているので、通行人や周囲の住人からの視線が気になりにくく、防犯面でも安心。建物のエントランスはオートロックがついており、インターホンにはTVモニタもついているため、相手の顔を確認してから来客対応することができます。
フローリングのお部屋なのでお掃除もラクラク。キッチンはシステムキッチン仕様になっていますので、お料理好きの方にもぴったり。バス・トイレは別なので、のんびりお風呂タイムも楽しめるでしょう。また、雨の日でも浴室乾燥機を使えば、お洗濯も問題ありません。
通信設備面では、インターネット接続が可能です。また、BSアンテナ・CSアンテナがありCATVにも対応しているので、おうち時間も充実するでしょう(別途工事、契約料が必要な場合あり)。
建物にはエレベーターがついているので、重い荷物があっても安心。共用部には宅配ボックスが設定されているので、不在の時にも荷物を受け取ることができます。
このお部屋は2階以上に位置しているので、通行人や周囲の住人からの視線が気になりにくく、防犯面でも安心。建物のエントランスはオートロックがついており、インターホンにはTVモニタもついているため、相手の顔を確認してから来客対応することができます。
フローリングのお部屋なのでお掃除もラクラク。キッチンはシステムキッチン仕様になっていますので、お料理好きの方にもぴったり。バス・トイレは別なので、のんびりお風呂タイムも楽しめるでしょう。また、雨の日でも浴室乾燥機を使えば、お洗濯も問題ありません。
通信設備面では、インターネット接続が可能です。また、BSアンテナ・CSアンテナがありCATVにも対応しているので、おうち時間も充実するでしょう(別途工事、契約料が必要な場合あり)。
建物にはエレベーターがついているので、重い荷物があっても安心。共用部には宅配ボックスが設定されているので、不在の時にも荷物を受け取ることができます。
お金・契約の情報
※「-」と表示されているものは、実際は料金が発生するものもございます。詳細はお問い合わせください。
| 家賃 | 10.5万円 | 管理費・共益費 | 1万円 |
|---|---|---|---|
| 敷金 | 10.5万円 | 礼金 | なし |
| 入居決定でお祝い金最大100,000円 | |||
| 保証金 | - | 償却・敷引 | - |
| 住宅保険料 | - | 更新料 | - |
| 保証会社利用 | 必須 | 保証会社名 | - |
| 保証会社費用 | - | 保証会社備考 | 保証会社利用必 初回保証料:賃料等の50% 月額保証料:賃料等の1% |
| 契約形態 | - | 契約期間 | - |
| 入居・引渡期間 | - | 現況 | - |
| 契約備考 | 更新事務手数料22000円。解約予告2ヶ月前。1年未満の解約は賃料2ヶ月分、2年未満の解約は賃料1ヶ月分の違約金あり。お車でご案内します。お気軽にお問い合わせ下さい。 合計4.95万円(内訳:緊急駆付けサポート1.65万円鍵交換代3.3万円) 更新料 新賃料1.00ヶ月分 火災保険 月額1000円 1K 普通借家2年 損保【要】 バストイレ別、バルコニー、エアコン、ガスコンロ対応、クロゼット、フローリング、TVインターホン、オートロック、室内洗濯置、シューズボックス、システムキッチン、温水洗浄便座、エレベーター、洗面化粧台、2口コンロ、駐輪場、宅配ボックス、CATV、礼金不要、防犯カメラ、分譲賃貸、バイク置場、24時間緊急通報システム、2沿線利用可、ディンプルキー、ダブルロックキー、24時間換気システム、耐火構造、2駅利用可、3駅以上利用可、24時間ゴミ出し可、敷地内ごみ置き場、セキュリティ会社加入済、都市ガス、保証会社利用可、IT重説対応物件、初期費用カード決済可 入居日:'26年3月下旬 | ||
部屋の情報
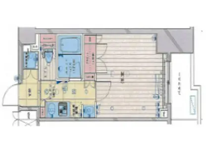
| 間取り | 1K | 専有面積 | 25.62m2 |
|---|---|---|---|
| 所在階 / 向き | 4階 / 西 | バルコニー面積 | - |
| 水道 / ガス | - | ||
| 設備 | バス・トイレ別、2階以上、オートロック、テレビドアホン、宅配ボックス、システムキッチン、エアコン、エレベーター、温水洗浄便座、バルコニー、フローリング、2口コンロ、コンロ:ガス、CATV、洗濯機:室内 | ||
| 当社物件ID | 13874191 | ||
建物の情報
| 建物名 | ルーブル板橋区役所前 | ||
|---|---|---|---|
| 所在地 | 東京都板橋区板橋 | ||
| 交通 | 都営三田線 板橋区役所前駅 徒歩4分 東武東上線 大山駅(東京) 徒歩9分 東武東上線 下板橋駅 徒歩11分 | ||
| 階数 | 14階建 | 総戸数 | - |
| 築年月 | 2014年07月 / 築12年 | エレベーター | あり |
| 駐車場 | なし | バイク置き場 | あり |
| 駐輪場 | あり | 管理人/管理会社 | - |
| 周辺環境 | その他 谷端川北緑道(公園)まで578m その他 メディカルスクエア板橋区役所前(病院)まで530m その他 まいばすけっと 板橋区役所前店(スーパー)まで240m その他 ローソン 大山東町店(コンビニ)まで172m その他 板橋警察署(警察署・交番)まで362m その他 ビッグ・エー 板橋大山店(スーパー)まで276m | ||
| 建物種別 | マンション | 建物構造 | RC(鉄筋コンクリート) |
この部屋の取扱い不動産会社
| 会社名 | ハウス・トゥ・ハウス・ネットサービス(株)板橋店(SUUMO経由) | ||
|---|---|---|---|
| 所在地 | 東京都板橋区板橋1-20-8 | 交通 | - |
| 営業時間 | 10時~18時30分(1月~3月9:30~) | 定休日 | 水曜日 (1月~3月無休) |
| 免許番号 | 国土交通大臣7400 | 取引態様 | 仲介 |
| 不動産会社管理番号 | 100485758086 | 当社管理番号 | 89 |
| 所属団体 | (公社)全日本不動産協会東京都本部会員 | ||
| 公正取引協議会 | (公社)首都圏不動産公正取引協議会加盟 | ||
| 取扱い物件情報 | 物件詳細へ | ||
※各種情報と現状に差異がある場合は、現状優先となります。問い合わせをすることで、より詳しい条件、情報を確認する事ができます。
提供:ハウス・トゥ・ハウス・ネットサービス(株)板橋店(SUUMO経由)
この物件が気になったら掲載期限まであと12日
ルーブル板橋区役所前に条件(家賃・エリア)が近い物件一覧
| 写真 | 家賃 管理費等 | 敷金 礼金 | 間取り 専有面積 | 築年数 | 最寄り駅 所在地 | キープ | 詳細 |
|---|---|---|---|---|---|---|---|
マンション STビル(1K/4階) | |||||||
![]() | 7.2万円 なし | 7.2万円 なし | 1K 31.3m2 | 築39年 | JR京浜東北線 王子駅 徒歩5分 東京メトロ南北線 王子駅 徒歩5分 東京メトロ南北線 西ケ原駅 徒歩8分 東京都北区滝野川 | 詳細を見る | |
マンション レオパレスソフィア(1K/1階) | |||||||
![]() | 6.7万円 7,500円 | なし 6.7万円 | 1K 19.87m2 | 築26年 | 都営大江戸線 光が丘駅 徒歩19分 東京メトロ副都心線 地下鉄成増駅 徒歩23分 東武東上線 成増駅 徒歩26分 東京都練馬区旭町 | 詳細を見る | |
マンション イクシオ高野台(1LDK/2階) | |||||||
![]() | 11.2万円 5,000円 | なし 11.2万円 | 1LDK 34.56m2 | 新築 | 西武池袋・豊島線 練馬高野台駅 徒歩13分 西武池袋・豊島線 石神井公園駅 徒歩20分 東京都練馬区高野台2丁目 | 詳細を見る | |
マンション アイル グランデ赤羽(1LDK/3階) | |||||||
![]() | 13.9万円 2.5万円 | 13.9万円 13.9万円 | 1LDK 34.17m2 | 築1年 | 京浜東北・根岸線 赤羽駅 徒歩8分 東京地下鉄南北線 志茂駅 徒歩8分 東京都北区志茂1丁目 | 詳細を見る | |
マンション サリジェ志村公園(1LDK/3階) | |||||||
![]() | 13万円 5,000円 | なし なし | 1LDK 41.65m2 | 築35年 | 都営三田線 志村三丁目駅 徒歩4分 都営三田線 蓮根駅 徒歩9分 都営三田線 志村坂上駅 徒歩13分 東京都板橋区坂下 | 詳細を見る | |
マンション グラントゥルース練馬II(1K/7階) | |||||||
![]() | 9万円 1.5万円 | なし 9万円 | 1K 21.83m2 | 築17年 | 西武池袋線 練馬駅 徒歩5分 都営大江戸線 練馬駅 徒歩5分 西武有楽町線 練馬駅 徒歩5分 東京都練馬区豊玉北 | 詳細を見る | |
マンション スカイラシクラス平和台(1K/3階) | |||||||
![]() | 11.8万円 7,000円 | 11.8万円 11.8万円 | 1K 25.12m2 | 築1年 | 東京メトロ有楽町線 平和台駅(東京) 徒歩5分 東武東上線 東武練馬駅 徒歩19分 東京メトロ有楽町線 地下鉄赤塚駅 徒歩21分 東京都練馬区北町 | 詳細を見る | |








