賃貸マンション
ZOOM都庁前の賃貸物件情報(1LDK/15階)
| 家賃 | 管理費等 | 敷金 | 礼金 | 間取り | 専有面積 |
|---|---|---|---|---|---|
| 34.3万円 | 1.7万円 | 34.3万円 | 34.3万円 | 1LDK | 64.55m2 |
入居決定でお祝い金最大100,000円
Point
■内見は現地待ち合わせでのご案内が可能です(要予約制)■契約金はクレジット決済が可能、分割払いも可能です
提供:(株)FINDERS(SUUMO経由)

詳細情報 ZOOM都庁前
物件紹介
ZOOM都庁前は都営大江戸線都庁前駅から徒歩6分にあり、駅近で通勤通学に便利なマンションです。
このお部屋は2階以上に位置しているので、通行人や周囲の住人からの視線が気になりにくく、防犯面でも安心。建物のエントランスはオートロックがついており、インターホンにはTVモニタもついているため、相手の顔を確認してから来客対応することができます。
おしゃれなデザイナーズ物件!人気の南向き・フローリングのお部屋。角部屋でもあるため、周囲の居住者の生活音も気になりにくい場所です。キッチンはシステムキッチン仕様になっていますので、お料理好きの方にもぴったり。バス・トイレは別なので、のんびりお風呂タイムも楽しめるでしょう。また、雨の日でも浴室乾燥機を使えば、お洗濯も問題ありません。
通信設備面では、インターネットが無料で使えるので、月々の出費を抑えられるのも魅力です。また、CATVにも対応しているので、おうち時間も充実するでしょう(別途工事、CATVの契約料等が必要な場合あり)。
床暖房があり、冬も足元から暖かく快適に過ごすことができます。建物にはエレベーターがついているので、重い荷物があっても安心。共用部には宅配ボックスが設定されているので、不在の時にも荷物を受け取ることができます。また、ペット飼育の相談ができますので、あなたの大切な家族の一員も快適に暮らせるか、ぜひ確認してみてください。
このお部屋は2階以上に位置しているので、通行人や周囲の住人からの視線が気になりにくく、防犯面でも安心。建物のエントランスはオートロックがついており、インターホンにはTVモニタもついているため、相手の顔を確認してから来客対応することができます。
おしゃれなデザイナーズ物件!人気の南向き・フローリングのお部屋。角部屋でもあるため、周囲の居住者の生活音も気になりにくい場所です。キッチンはシステムキッチン仕様になっていますので、お料理好きの方にもぴったり。バス・トイレは別なので、のんびりお風呂タイムも楽しめるでしょう。また、雨の日でも浴室乾燥機を使えば、お洗濯も問題ありません。
通信設備面では、インターネットが無料で使えるので、月々の出費を抑えられるのも魅力です。また、CATVにも対応しているので、おうち時間も充実するでしょう(別途工事、CATVの契約料等が必要な場合あり)。
床暖房があり、冬も足元から暖かく快適に過ごすことができます。建物にはエレベーターがついているので、重い荷物があっても安心。共用部には宅配ボックスが設定されているので、不在の時にも荷物を受け取ることができます。また、ペット飼育の相談ができますので、あなたの大切な家族の一員も快適に暮らせるか、ぜひ確認してみてください。
お金・契約の情報
※「-」と表示されているものは、実際は料金が発生するものもございます。詳細はお問い合わせください。
| 家賃 | 34.3万円 | 管理費・共益費 | 1.7万円 |
|---|---|---|---|
| 敷金 | 34.3万円 | 礼金 | 34.3万円 |
| 入居決定でお祝い金最大100,000円 | |||
| 保証金 | - | 償却・敷引 | - |
| 住宅保険料 | - | 更新料 | - |
| 保証会社利用 | 必須 | 保証会社名 | - |
| 保証会社費用 | - | 保証会社備考 | 保証会社利用必 トーシンライフ、オリコフォレントインシュア、全保連/保証料:初回=賃料等×50%、月額=賃料等×1% |
| 契約形態 | - | 契約期間 | - |
| 入居・引渡期間 | - | 現況 | - |
| 入居可能条件 | ペット相談 | ||
| 契約備考 | 合計3.3万円(内訳:鍵交換費用(税込)33000円) ■契約時:当月分+翌月分の賃料・管理費をお支払い頂きます ■ペット飼育時:敷金1ヶ月追加(別途飼育細則参照・要申請書) ■解約時:ルームクリーニング費用及び借主負担分の原状回復費用をお支払い頂きます、家財保険+付帯サービス(税込)1835円/月 1LDK 二人入居可/ペット相談 普通借家2年 バストイレ別、バルコニー、エアコン、ガスコンロ対応、クロゼット、フローリング、TVインターホン、浴室乾燥機、オートロック、室内洗濯置、シューズボックス、システムキッチン、追焚機能浴室、角住戸、温水洗浄便座、脱衣所、エレベーター、洗面所独立、洗面化粧台、駐輪場、宅配ボックス、CATV、2面採光、最上階、3口以上コンロ、防犯カメラ、ペット相談、照明付、分譲賃貸、オートバス、グリル付、敷金1ヶ月、デザイナーズ、ディンプルキー、ネット専用回線、ネット使用料不要、床暖房、ダブルロックキー、24時間換気システム、外壁コンクリート、LDK20畳以上、人感照明センサー、ペット専用設備、耐震構造、屋上、3駅以上利用可、3沿線以上利用可、駅徒歩10分以内、24時間ゴミ出し可、クリーニングボックス、風除室、敷地内ごみ置き場、南西向き、都市ガス、室内らせん階段、LAN、マルチメディアコンセント、礼金1ヶ月、ブラインド付 入居日:'26年2月上旬 | ||
部屋の情報
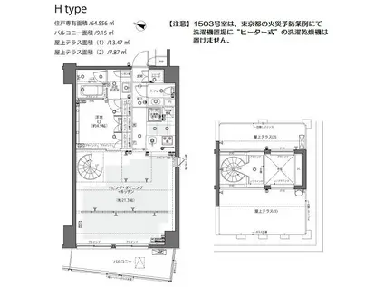
| 間取り | 1LDK | 専有面積 | 64.55m2 |
|---|---|---|---|
| 所在階 / 向き | 15階 / 南西 | バルコニー面積 | 9m2 |
| 水道 / ガス | - | ||
| 設備 | バス・トイレ別、2階以上、オートロック、テレビドアホン、宅配ボックス、浴室乾燥機、追い焚き、インターネット対応、システムキッチン、エアコン、エレベーター、温水洗浄便座、南向き、角部屋、バルコニー、フローリング、洗髪洗面化粧台、床暖房、2口コンロ、コンロ:ガス、デザイナーズ、CATV、インターネット使用料無料、洗濯機:室内 | ||
| 当社物件ID | 25715226 | ||
建物の情報
| 建物名 | ZOOM都庁前 | ||
|---|---|---|---|
| 所在地 | 東京都新宿区西新宿 | ||
| 交通 | 都営大江戸線 都庁前駅 徒歩6分 京王新線 初台駅 徒歩9分 JR山手線 新宿駅 徒歩11分 | ||
| 階数 | 15階建 | 総戸数 | 68戸 |
| 築年月 | 2017年11月 / 築9年 | エレベーター | あり |
| 駐車場 | なし | バイク置き場 | - |
| 駐輪場 | あり | 管理人/管理会社 | - |
| 建物種別 | マンション | 建物構造 | RC(鉄筋コンクリート) |
この部屋の取扱い不動産会社
| 会社名 | (株)FINDERS KICHIJOJI(SUUMO経由) | ||
|---|---|---|---|
| 所在地 | 東京都武蔵野市吉祥寺本町1-33-5 | 交通 | - |
| 営業時間 | 10:00~18:00 | 定休日 | 日曜日 |
| 免許番号 | 東京都知事105698 | 取引態様 | 仲介 |
| 不動産会社管理番号 | 100480458415 | 当社管理番号 | 89 |
| 所属団体 | (公社)東京都宅地建物取引業協会会員 | ||
| 公正取引協議会 | (公社)首都圏不動産公正取引協議会加盟 | ||
| 取扱い物件情報 | 物件詳細へ | ||
※各種情報と現状に差異がある場合は、現状優先となります。問い合わせをすることで、より詳しい条件、情報を確認する事ができます。
提供:(株)FINDERS KICHIJOJI(SUUMO経由)
この物件が気になったら掲載期限まであと10日
ZOOM都庁前に条件(家賃・エリア)が近い物件一覧
| 写真 | 家賃 管理費等 | 敷金 礼金 | 間取り 専有面積 | 築年数 | 最寄り駅 所在地 | キープ | 詳細 |
|---|---|---|---|---|---|---|---|
マンション G.T.A. 中野坂上(2LDK/3階) | |||||||
![]() | 22.6万円 2万円 | なし なし | 2LDK 42.69m2 | 築1年 | 東京地下鉄方南支線 中野新橋駅 徒歩3分 東京都中野区本町3丁目 | 詳細を見る | |
マンション デュオメゾン渋谷(1LDK/1階) | |||||||
![]() | 34.5万円 1万円 | 34.5万円 なし | 1LDK 47.14m2 | 新築 | 京王電鉄井の頭線 神泉駅 徒歩2分 東京都渋谷区神泉町 | 詳細を見る | |
マンション LOTUS NAKANOSHINBASHI(2LDK/3階) | |||||||
![]() | 21.8万円 1.5万円 | 21.8万円 なし | 2LDK 40.45m2 | 築1年 | 東京地下鉄方南支線 中野新橋駅 徒歩7分 東京都中野区弥生町1丁目 | 詳細を見る | |
マンション フィシオ飯田橋(1LDK/11階) | |||||||
![]() | 29.2万円 2万円 | 29.2万円 なし | 1LDK 41.32m2 | 築1年 | 東京地下鉄東西線 九段下駅 徒歩4分 東京都千代田区飯田橋2丁目 | 詳細を見る | |
マンション ルミーク文京湯島(2LDK/14階) | |||||||
![]() | 35万円 2万円 | なし なし | 2LDK 55.3m2 | 築1年 | 東京メトロ銀座線 末広町駅(東京) 徒歩4分 東京メトロ千代田線 湯島駅 徒歩4分 東京メトロ丸ノ内線 御茶ノ水駅 徒歩11分 東京都文京区湯島 | 詳細を見る | |
マンション JPT RESIDENCE(1LDK/10階) | |||||||
![]() | 21万円 7,500円 | なし 21万円 | 1LDK 38.08m2 | 築1年 | 東京地下鉄半蔵門線 神保町駅 徒歩5分 東京都千代田区神田猿楽町神田猿楽町1丁目 | 詳細を見る | |
マンション DELLCS永田町(1LDK/4階) | |||||||
![]() | 28.8万円 1万円 | 28.8万円 なし | 1LDK 40.65m2 | 築23年 | 東京メトロ有楽町線 永田町駅 徒歩4分 東京メトロ銀座線 赤坂見附駅 徒歩6分 東京メトロ銀座線 溜池山王駅 徒歩9分 東京都千代田区永田町 | 詳細を見る | |
マンション グランシャトレ目白台(3LDK/6階) | |||||||
![]() | 28.5万円 なし | 28.5万円 14.25万円 | 3LDK 75.6m2 | 築22年 | 東京メトロ副都心線 雑司が谷駅(東京メトロ) 徒歩9分 都電荒川線 早稲田駅(都電) 徒歩10分 東京メトロ有楽町線 護国寺駅 徒歩13分 東京都文京区目白台 | 詳細を見る | |



/105x80-f1-q70-wp1)


/105x80-f1-q70-wp1)

