賃貸マンション
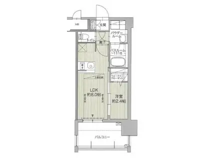
グランフォーレ博多ウォーターフロントの賃貸物件情報(1LDK/10階)
| 家賃 | 管理費等 | 敷金 | 礼金 | 間取り | 専有面積 |
|---|---|---|---|---|---|
| 7.7万円 | 3,000円 | なし | 7.7万円 | 1LDK | 27.37m2 |
入居決定でお祝い金最大100,000円
- 保証金
- -
- 償却・敷引
- -
- 築年数
- 築3年
- 所在階
- 10階
- 向き
- -
Point
初期費用を全額カードで分割払いできます/当店提携駐車場あり(3時間無料)/土日祝日営業中/送迎サービス有り/オンライン内見対応可能
提供:(株)トーマスリビング博多本店(SUUMO経由)

詳細情報 グランフォーレ博多ウォーターフロント
物件紹介
グランフォーレ博多ウォーターフロントは地下鉄箱崎線千代県庁口駅から徒歩10分にあり、駅近で通勤通学に便利なマンションです。
このお部屋は2階以上に位置しているので、通行人や周囲の住人からの視線が気になりにくく、防犯面でも安心。建物のエントランスはオートロックがついており、インターホンにはTVモニタもついているため、相手の顔を確認してから来客対応することができます。
おしゃれなデザイナーズ物件!人気の南向き・フローリングのお部屋。室内にはウォークインクローゼットがありますので、たくさんの荷物も効率的に収納ができます。キッチンはシステムキッチン仕様になっていますので、お料理好きの方にもぴったり。バス・トイレは別なので、のんびりお風呂タイムも楽しめるでしょう。また、雨の日でも浴室乾燥機を使えば、お洗濯も問題ありません。
通信設備面では、インターネットが無料で使えるので、月々の出費を抑えられるのも魅力です(別途工事等が必要な場合あり)。
建物にはエレベーターがついているので、重い荷物があっても安心。共用部には宅配ボックスが設定されているので、不在の時にも荷物を受け取ることができます。また、ペット飼育の相談ができますので、あなたの大切な家族の一員も快適に暮らせるか、ぜひ確認してみてください。
このお部屋は2階以上に位置しているので、通行人や周囲の住人からの視線が気になりにくく、防犯面でも安心。建物のエントランスはオートロックがついており、インターホンにはTVモニタもついているため、相手の顔を確認してから来客対応することができます。
おしゃれなデザイナーズ物件!人気の南向き・フローリングのお部屋。室内にはウォークインクローゼットがありますので、たくさんの荷物も効率的に収納ができます。キッチンはシステムキッチン仕様になっていますので、お料理好きの方にもぴったり。バス・トイレは別なので、のんびりお風呂タイムも楽しめるでしょう。また、雨の日でも浴室乾燥機を使えば、お洗濯も問題ありません。
通信設備面では、インターネットが無料で使えるので、月々の出費を抑えられるのも魅力です(別途工事等が必要な場合あり)。
建物にはエレベーターがついているので、重い荷物があっても安心。共用部には宅配ボックスが設定されているので、不在の時にも荷物を受け取ることができます。また、ペット飼育の相談ができますので、あなたの大切な家族の一員も快適に暮らせるか、ぜひ確認してみてください。
お金・契約の情報
※「-」と表示されているものは、実際は料金が発生するものもございます。詳細はお問い合わせください。
| 家賃 | 7.7万円 | 管理費・共益費 | 3,000円 |
|---|---|---|---|
| 敷金 | なし | 礼金 | 7.7万円 |
| 入居決定でお祝い金最大100,000円 | |||
| 保証金 | - | 償却・敷引 | - |
| 住宅保険料 | - | 更新料 | - |
| 保証会社利用 | 必須 | 保証会社名 | - |
| 保証会社費用 | - | 保証会社備考 | 保証会社利用必 月額合計の50% 更新料 10,000/年 月額2,290円(家財保険・24時間サポート・継続保証料・口振手数料含む) |
| 契約形態 | - | 契約期間 | - |
| 入居・引渡期間 | 相談 | 現況 | - |
| 入居可能条件 | ペット相談 | ||
| 契約備考 | 巡回管理/退去時クリーニング代 49,500円 合計4.62万円(内訳:鍵交換代33000円/消毒代13200円) 町内会費100円/月、駐輪220円/月、駐原付550円/月 1LDK 単身者可/ペット相談 普通借家2年 損保【要】 バストイレ別、バルコニー、エアコン、ガスコンロ対応、フローリング、シャワー付洗面台、TVインターホン、浴室乾燥機、オートロック、室内洗濯置、シューズボックス、システムキッチン、温水洗浄便座、脱衣所、エレベーター、洗面所独立、洗面化粧台、2口コンロ、駐輪場、宅配ボックス、光ファイバー、外壁タイル張り、敷金不要、対面式キッチン、防犯カメラ、ペット相談、ウォークインクロゼット、二人入居相談、バイク置場、全居室フローリング、デザイナーズ、2沿線利用可、駅まで平坦、ネット使用料不要、24時間換気システム、平坦地、築3年以内、エレベーター2基、3駅以上利用可、敷地内ごみ置き場、高速ネット対応、礼金1ヶ月、IT重説対応物件、初期費用カード決済可、通風良好 | ||
部屋の情報
| 間取り | 1LDK | 専有面積 | 27.37m2 |
|---|---|---|---|
| 所在階 / 向き | 10階 / - | バルコニー面積 | - |
| 水道 / ガス | - | ||
| 設備 | バス・トイレ別、2階以上、オートロック、テレビドアホン、宅配ボックス、浴室乾燥機、ウォークインクローゼット、インターネット対応、システムキッチン、エアコン、エレベーター、温水洗浄便座、バルコニー、フローリング、洗髪洗面化粧台、2口コンロ、コンロ:ガス、デザイナーズ、インターネット使用料無料、洗濯機:室内 | ||
| 当社物件ID | 132057476 | ||
建物の情報
| 建物名 | グランフォーレ博多ウォーターフロント | ||
|---|---|---|---|
| 所在地 | 福岡県福岡市博多区石城町 | ||
| 交通 | 地下鉄箱崎線 呉服町駅(福岡) 徒歩13分 地下鉄箱崎線 千代県庁口駅 徒歩13分 地下鉄空港線 祇園駅(福岡) 徒歩22分 | ||
| 階数 | 14階建 | 総戸数 | 247戸 |
| 築年月 | 2023年03月 / 築3年 | エレベーター | あり |
| 駐車場 | 近隣 220m13200円 | バイク置き場 | あり |
| 駐輪場 | あり | 管理人/管理会社 | - |
| 周辺環境 | その他 マックスバリュエクスプレス下呉服町店(スーパー)まで422m その他 業務スーパー 博多せんしょう店(スーパー)まで862m その他 ドラッグイレブン 神屋町店(ドラッグストア)まで643m その他 ベイサイドプレイス博多(その他)まで909m その他 ゆめタウン博多(ショッピングセンター)まで1209m その他 セブンイレブン 博多築港店(コンビニ)まで62m | ||
| 建物種別 | マンション | 建物構造 | RC(鉄筋コンクリート) |
この部屋の取扱い不動産会社
| 会社名 | バッチリ賃貸 香椎店(株)バッチリ賃貸福岡(SUUMO経由) | ||
|---|---|---|---|
| 所在地 | 福岡県福岡市東区香椎駅前1-9-2 1階 | 交通 | - |
| 営業時間 | 10:00~18:00 | 定休日 | 年末年始、GW、お盆 |
| 免許番号 | 福岡県知事19148 | 取引態様 | 仲介 |
| 不動産会社管理番号 | 100485220460 | 当社管理番号 | 89 |
| 所属団体 | (公社)福岡県宅地建物取引業協会会員 | ||
| 公正取引協議会 | (一社)九州不動産公正取引協議会加盟 | ||
| 取扱い物件情報 | 物件詳細へ | ||
※各種情報と現状に差異がある場合は、現状優先となります。問い合わせをすることで、より詳しい条件、情報を確認する事ができます。
提供:バッチリ賃貸 香椎店(株)バッチリ賃貸福岡(SUUMO経由)
この物件が気になったら掲載期限まであと10日
グランフォーレ博多ウォーターフロントに条件(家賃・エリア)が近い物件一覧
| 写真 | 家賃 管理費等 | 敷金 礼金 | 間取り 専有面積 | 築年数 | 最寄り駅 所在地 | キープ | 詳細 |
|---|---|---|---|---|---|---|---|
タウンハウス 春日市伯玄町ヘーベルメゾン(2LDK) | |||||||
![]() | 10.7万円 なし | なし 21.4万円 | 2LDK 55.09m2 | 築1年 | 鹿児島本線 南福岡駅 徒歩17分 鹿児島本線 春日駅(福岡) 徒歩18分 西鉄天神大牟田線 桜並木駅 徒歩23分 福岡県春日市伯玄町2丁目 | 詳細を見る | |
マンション QUINTET MINAMI FUKUOKA(1LDK/4階) | |||||||
![]() | 8.3万円 6,000円 | なし なし | 1LDK 31.84m2 | 築4年 | 西鉄天神大牟田線 雑餉隈駅 徒歩9分 鹿児島本線 笹原駅 徒歩14分 鹿児島本線 南福岡駅 徒歩15分 福岡県福岡市博多区三筑2丁目 | 詳細を見る | |
マンション プリマヴェーラ(ワンルーム/1階) | |||||||
![]() | 4.7万円 2,000円 | なし なし | ワンルーム 23.4m2 | 築20年 | 西鉄天神大牟田線 井尻駅 徒歩23分 JR鹿児島本線 笹原駅 徒歩27分 JR鹿児島本線 南福岡駅 徒歩27分 福岡県春日市須玖南 | 詳細を見る | |
アパート D-ROOM南福岡(1LDK/2階) | |||||||
![]() | 8.9万円 4,500円 | なし 17.8万円 | 1LDK 40.3m2 | 新築 | 鹿児島本線 南福岡駅 徒歩11分 鹿児島本線 笹原駅 徒歩14分 福岡県福岡市博多区南八幡町2丁目 | 詳細を見る | |
アパート 福岡県春日市 築1年(1K/2階) | |||||||
![]() | 6.6万円 5,000円 | 6.6万円 6.6万円 | 1K 30.68m2 | 築1年 | 福岡県春日市春日原東町1丁目 | 詳細を見る | |
マンション LIFEFIELD諸岡2(1LDK/4階) | |||||||
![]() | 7.9万円 4,000円 | なし なし | 1LDK 32.3m2 | 新築 | 鹿児島本線 笹原駅 徒歩8分 西鉄天神大牟田線 井尻駅 徒歩14分 鹿児島本線 南福岡駅 徒歩24分 福岡県福岡市博多区諸岡5丁目 | 詳細を見る | |
マンション 第二天神山コーポ(2LDK/1階) | |||||||
![]() | 8.3万円 2,000円 | なし 24.9万円 | 2LDK 63.76m2 | 築44年 | 博多南線 博多南駅 徒歩14分 鹿児島本線 南福岡駅 徒歩40分 鹿児島本線 春日駅(福岡) 徒歩42分 福岡県春日市下白水南5丁目 | 詳細を見る | |
マンション シャンテ吉塚(1K/2階) | |||||||
![]() | 4.9万円 3,900円 | なし なし | 1K 24.64m2 | 築26年 | 鹿児島本線 吉塚駅 徒歩12分 福岡市空港線 東比恵駅 徒歩20分 鹿児島本線 博多駅 徒歩22分 福岡県福岡市博多区吉塚3丁目 | 詳細を見る | |








