賃貸マンション
レキシントンスクエア白金高輪の賃貸物件情報(2LDK/11階)
| 家賃 | 管理費等 | 敷金 | 礼金 | 間取り | 専有面積 |
|---|---|---|---|---|---|
| 32万円 | 2万円 | なし | なし | 2LDK | 55.81m2 |
入居決定でお祝い金最大100,000円
- 保証金
- -
- 償却・敷引
- -
- 築年数
- 築21年
- 所在階
- 11階
- 向き
- 南東
Point
この物件に興味があるなら、まずはご相談ください!間取り図だけでは分からない地域のリアルな情報や、公開前の最新物件、資金計画の不安まで、あなたの新生活をトータルでサポートします。
提供:(株)Trustford(SUUMO経由)

詳細情報 レキシントンスクエア白金高輪
物件紹介
レキシントンスクエア白金高輪は東京メトロ南北線白金高輪駅から徒歩1分にあり、駅近で通勤通学に便利なマンションです。
このお部屋は2階以上に位置しているので、通行人や周囲の住人からの視線が気になりにくく、防犯面でも安心。建物のエントランスはオートロックがついており、インターホンにはTVモニタもついているため、相手の顔を確認してから来客対応することができます。
人気の南向きのお部屋。また、フローリングなのでお掃除もラクラク。キッチンはシステムキッチン仕様になっていますので、お料理好きの方にもぴったり。バス・トイレは別なので、のんびりお風呂タイムも楽しめるでしょう。また、雨の日でも浴室乾燥機を使えば、お洗濯も問題ありません。
通信設備面では、インターネット接続が可能です。また、CATVにも対応しているので、おうち時間も充実するでしょう(別途工事、契約料が必要な場合あり)。
建物にはエレベーターがついているので、重い荷物があっても安心。共用部には宅配ボックスが設定されているので、不在の時にも荷物を受け取ることができます。
このお部屋は2階以上に位置しているので、通行人や周囲の住人からの視線が気になりにくく、防犯面でも安心。建物のエントランスはオートロックがついており、インターホンにはTVモニタもついているため、相手の顔を確認してから来客対応することができます。
人気の南向きのお部屋。また、フローリングなのでお掃除もラクラク。キッチンはシステムキッチン仕様になっていますので、お料理好きの方にもぴったり。バス・トイレは別なので、のんびりお風呂タイムも楽しめるでしょう。また、雨の日でも浴室乾燥機を使えば、お洗濯も問題ありません。
通信設備面では、インターネット接続が可能です。また、CATVにも対応しているので、おうち時間も充実するでしょう(別途工事、契約料が必要な場合あり)。
建物にはエレベーターがついているので、重い荷物があっても安心。共用部には宅配ボックスが設定されているので、不在の時にも荷物を受け取ることができます。
お金・契約の情報
※「-」と表示されているものは、実際は料金が発生するものもございます。詳細はお問い合わせください。
| 家賃 | 32万円 | 管理費・共益費 | 2万円 |
|---|---|---|---|
| 敷金 | なし | 礼金 | なし |
| 入居決定でお祝い金最大100,000円 | |||
| 保証金 | - | 償却・敷引 | - |
| 住宅保険料 | - | 更新料 | - |
| 保証会社利用 | 必須 | 保証会社名 | - |
| 保証会社費用 | - | 保証会社備考 | 保証会社利用必 株式会社エポスカード(東京) ROOM iD(個人)保証料:保証人有30% 無40% (法人)40%※保証人不要 更新料:10000円/1年14000円/1年(総賃料が15万以上) |
| 契約形態 | - | 契約期間 | - |
| 入居・引渡期間 | 即時 | 現況 | - |
| 契約備考 | 合計11.05万円(内訳:カギ費用:42900円/退去時RC代:67530円) 2LDK 損保【2.2万円2年】 バストイレ別、クロゼット、フローリング、TVインターホン、浴室乾燥機、オートロック、室内洗濯置、シューズボックス、システムキッチン、追焚機能浴室、温水洗浄便座、エレベーター、洗面所独立、宅配ボックス、CATV、即入居可、礼金不要、敷金不要、防犯カメラ、グリル付、二人入居相談、ガスレンジ付、2沿線利用可、ディンプルキー、ネット専用回線、ダブルロックキー、24時間換気システム、エアコン3台、電子キー、2駅利用可、駅徒歩5分以内、敷地内ごみ置き場、東南向き、敷金・礼金不要 | ||
部屋の情報
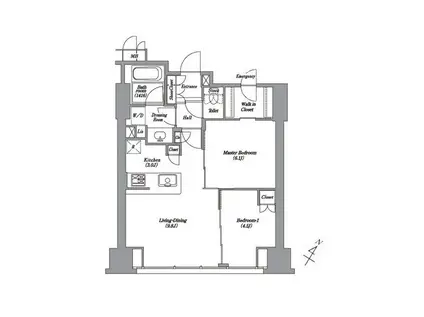
| 間取り | 2LDK | 専有面積 | 55.81m2 |
|---|---|---|---|
| 所在階 / 向き | 11階 / 南東 | バルコニー面積 | - |
| 水道 / ガス | - | ||
| 設備 | バス・トイレ別、2階以上、オートロック、テレビドアホン、宅配ボックス、浴室乾燥機、追い焚き、インターネット対応、システムキッチン、エアコン、エレベーター、温水洗浄便座、南向き、フローリング、洗髪洗面化粧台、コンロ:ガス、CATV、洗濯機:室内 | ||
| 当社物件ID | 102701758 | ||
建物の情報
| 建物名 | レキシントンスクエア白金高輪 | ||
|---|---|---|---|
| 所在地 | 東京都港区高輪 | ||
| 交通 | 東京メトロ南北線 白金高輪駅 徒歩1分 都営浅草線 泉岳寺駅 徒歩13分 東京メトロ南北線 白金台駅 徒歩14分 | ||
| 階数 | 地下1地上22階建 | 総戸数 | 129戸 |
| 築年月 | 2005年12月 / 築21年 | エレベーター | あり |
| 駐車場 | なし | バイク置き場 | - |
| 駐輪場 | - | 管理人/管理会社 | - |
| 建物種別 | マンション | 建物構造 | RC(鉄筋コンクリート) |
この部屋の取扱い不動産会社
| 会社名 | (株)Trustford(SUUMO経由) | ||
|---|---|---|---|
| 所在地 | 栃木県宇都宮市二荒町 5-7 MUSASHI futaara base202 | 交通 | - |
| 営業時間 | 9:30~18:00 | 定休日 | 水曜日 |
| 免許番号 | 栃木県知事5499 | 取引態様 | 仲介 |
| 不動産会社管理番号 | 100480366731 | 当社管理番号 | 89 |
| 所属団体 | (公社)栃木県宅地建物取引業協会会員 | ||
| 公正取引協議会 | (公社)首都圏不動産公正取引協議会加盟 | ||
| 取扱い物件情報 | 物件詳細へ | ||
※各種情報と現状に差異がある場合は、現状優先となります。問い合わせをすることで、より詳しい条件、情報を確認する事ができます。
提供:(株)Trustford(SUUMO経由)
この物件が気になったら掲載期限まであと10日
レキシントンスクエア白金高輪に条件(家賃・エリア)が近い物件一覧
| 写真 | 家賃 管理費等 | 敷金 礼金 | 間取り 専有面積 | 築年数 | 最寄り駅 所在地 | キープ | 詳細 |
|---|---|---|---|---|---|---|---|
マンション ALTERNA銀座 (1LDK/10階) | |||||||
![]() | 26.9万円 1.5万円 | なし なし | 1LDK 46.39m2 | 築11年 | 東京地下鉄日比谷線 築地駅 徒歩5分 東京都中央区築地7丁目 | 詳細を見る | |
マンション THE TOKYO TOWERS SEA TOWERS(1LDK/5階) | |||||||
![]() | 33万円 1万円 | 33万円 66万円 | 1LDK 65.14m2 | 築18年 | 都営大江戸線 勝どき駅 徒歩5分 都営大江戸線 築地市場駅 徒歩23分 新交通ゆりかもめ 竹芝駅 徒歩38分 東京都中央区勝どき | 詳細を見る | |
マンション 高輪アビタシオン(2LDK/5階) | |||||||
![]() | 34万円 2万円 | 34万円 34万円 | 2LDK 75.14m2 | 築62年 | JR山手線 品川駅 徒歩9分 都営浅草線 高輪台駅 徒歩10分 東急池上線 五反田駅 徒歩15分 東京都港区高輪 | 詳細を見る | |
マンション 河田町ガーデン クラブフロア(1K/31階) | |||||||
![]() | 26.18万円 1万円 | なし なし | 1K 51.86m2 | 築23年 | 都営新宿線 曙橋駅 徒歩6分 都営大江戸線 若松河田駅 徒歩9分 東京メトロ丸ノ内線 四谷三丁目駅 徒歩12分 東京都新宿区河田町 | 詳細を見る | |
マンション ザ・パークハビオ神楽坂レジデンスサウス(1LDK/6階) | |||||||
![]() | 19.6万円 2.1万円 | 19.6万円 19.6万円 | 1LDK 39.43m2 | 築1年 | 東京メトロ有楽町線 江戸川橋駅 徒歩8分 東京メトロ東西線 神楽坂駅 徒歩8分 都営大江戸線 飯田橋駅 徒歩9分 東京都新宿区東五軒町 | 詳細を見る | |
マンション BRILLIA TOWERS目黒サウスレジデンス ブリリアタワーズ目黒(2LDK/21階) | |||||||
![]() | 42万円 2万円 | 42万円 42万円 | 2LDK 54.64m2 | 築9年 | JR山手線 目黒駅 徒歩3分 都営浅草線 五反田駅 徒歩13分 東急目黒線 不動前駅 徒歩16分 東京都品川区上大崎 | 詳細を見る | |
マンション リエトコートアルクスタワー(2LDK/17階) | |||||||
![]() | 41万円 2万円 | 82万円 なし | 2LDK 60.29m2 | 築19年 | 東京メトロ有楽町線 新富町駅(東京) 徒歩6分 JR京葉線 八丁堀駅(東京) 徒歩8分 東京メトロ日比谷線 築地駅 徒歩9分 東京都中央区湊 | 詳細を見る | |
マンション GARDEN ILL YOTSUYA ガーデンアイルヨツヤ(1LDK/10階) | |||||||
![]() | 27万円 2万円 | 27万円 27万円 | 1LDK 47.79m2 | 築18年 | 東京メトロ丸ノ内線 四ツ谷駅 徒歩3分 東京メトロ丸ノ内線 四谷三丁目駅 徒歩10分 都営新宿線 曙橋駅 徒歩15分 東京都新宿区四谷 | 詳細を見る | |









