賃貸マンション
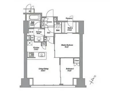
レキシントンスクエア白金高輪の賃貸物件情報(2LDK/11階)
| 家賃 | 管理費等 | 敷金 | 礼金 | 間取り | 専有面積 |
|---|---|---|---|---|---|
| 32万円 | 2万円 | なし | なし | 2LDK | 55.81m2 |
入居決定でお祝い金最大100,000円
- 保証金
- -
- 償却・敷引
- -
- 築年数
- 築21年
- 所在階
- 11階
- 向き
- 南東
Point
初期費用分割払い可能☆最大24ヶ月払い☆カード決済も対応しております!!遠方の方や忙しい方向けオンライン内見実施中☆
提供:(株)カムグラン(SUUMO経由)

詳細情報 レキシントンスクエア白金高輪
物件紹介
レキシントンスクエア白金高輪は東京メトロ南北線白金高輪駅から徒歩1分にあり、駅近で通勤通学に便利なマンションです。
このお部屋は2階以上に位置しているので、通行人や周囲の住人からの視線が気になりにくく、防犯面でも安心。建物のエントランスはオートロックがついており、インターホンにはTVモニタもついているため、相手の顔を確認してから来客対応することができます。
おしゃれなデザイナーズ物件!また、楽器相談が可能な物件となっているので、楽器演奏をお考えの方はぜひ相談してみてください。人気の南向き・フローリングのお部屋。室内にはウォークインクローゼットがありますので、たくさんの荷物も効率的に収納ができます。キッチンはシステムキッチン仕様になっていますので、お料理好きの方にもぴったり。バス・トイレは別なので、のんびりお風呂タイムも楽しめるでしょう。また、雨の日でも浴室乾燥機を使えば、お洗濯も問題ありません。
通信設備面では、インターネット接続が可能です。また、BSアンテナ・CSアンテナがありCATVにも対応しているので、おうち時間も充実するでしょう(別途工事、契約料が必要な場合あり)。
床暖房があり、冬も足元から暖かく快適に過ごすことができます。建物にはエレベーターがついているので、重い荷物があっても安心。共用部には宅配ボックスが設定されているので、不在の時にも荷物を受け取ることができます。
このお部屋は2階以上に位置しているので、通行人や周囲の住人からの視線が気になりにくく、防犯面でも安心。建物のエントランスはオートロックがついており、インターホンにはTVモニタもついているため、相手の顔を確認してから来客対応することができます。
おしゃれなデザイナーズ物件!また、楽器相談が可能な物件となっているので、楽器演奏をお考えの方はぜひ相談してみてください。人気の南向き・フローリングのお部屋。室内にはウォークインクローゼットがありますので、たくさんの荷物も効率的に収納ができます。キッチンはシステムキッチン仕様になっていますので、お料理好きの方にもぴったり。バス・トイレは別なので、のんびりお風呂タイムも楽しめるでしょう。また、雨の日でも浴室乾燥機を使えば、お洗濯も問題ありません。
通信設備面では、インターネット接続が可能です。また、BSアンテナ・CSアンテナがありCATVにも対応しているので、おうち時間も充実するでしょう(別途工事、契約料が必要な場合あり)。
床暖房があり、冬も足元から暖かく快適に過ごすことができます。建物にはエレベーターがついているので、重い荷物があっても安心。共用部には宅配ボックスが設定されているので、不在の時にも荷物を受け取ることができます。
お金・契約の情報
※「-」と表示されているものは、実際は料金が発生するものもございます。詳細はお問い合わせください。
| 家賃 | 32万円 | 管理費・共益費 | 2万円 |
|---|---|---|---|
| 敷金 | なし | 礼金 | なし |
| 入居決定でお祝い金最大100,000円 | |||
| 保証金 | - | 償却・敷引 | - |
| 住宅保険料 | - | 更新料 | - |
| 保証会社利用 | 必須 | 保証会社名 | - |
| 保証会社費用 | - | 保証会社備考 | 保証会社利用必 初回保証委託料:月額賃料等の40%(保証人無)、30%(保証人有) 詳細はお問い合わせください。 |
| 契約形態 | - | 契約期間 | - |
| 入居・引渡期間 | 即時 | 現況 | - |
| 契約備考 | 通勤管理 合計4.29万円(内訳:鍵交換代4.29万円) 更新料 新賃料1.00ヶ月分 室内清掃費用 67530円 2LDK 二人入居可 普通借家2年 損保【2.2万円2年】 バストイレ別、エアコン、ガスコンロ対応、クロゼット、TVインターホン、浴室乾燥機、オートロック、室内洗濯置、陽当り良好、シューズボックス、システムキッチン、南向き、追焚機能浴室、温水洗浄便座、エレベーター、洗面所独立、駐輪場、宅配ボックス、CATV、即入居可、礼金不要、閑静な住宅地、BS・CS、敷金不要、3口以上コンロ、対面式キッチン、防犯カメラ、保証人不要、二人入居相談、全居室フローリング、ディンプルキー、ネット専用回線、眺望良好、ダブルロックキー、24時間換気システム、南面リビング、耐火構造、耐震構造、防犯ガラス、高気密住宅、2駅利用可、3駅以上利用可、駅前、防犯強化地域、駅徒歩5分以内、駅徒歩10分以内、耐風構造、高層階、24時間ゴミ出し可、敷地内ごみ置き場、東南向き、日勤管理、備付食器棚、都市ガス、敷金・礼金不要、通風良好 | ||
部屋の情報
| 間取り | 2LDK | 専有面積 | 55.81m2 |
|---|---|---|---|
| 所在階 / 向き | 11階 / 南東 | バルコニー面積 | - |
| 水道 / ガス | - | ||
| 設備 | バス・トイレ別、2階以上、オートロック、テレビドアホン、宅配ボックス、浴室乾燥機、追い焚き、インターネット対応、システムキッチン、エアコン、エレベーター、温水洗浄便座、南向き、フローリング、洗髪洗面化粧台、2口コンロ、コンロ:ガス、CATV、CSアンテナ、BSアンテナ、洗濯機:室内 | ||
| 当社物件ID | 18151335 | ||
建物の情報
| 建物名 | レキシントンスクエア白金高輪 | ||
|---|---|---|---|
| 所在地 | 東京都港区高輪 | ||
| 交通 | 東京メトロ南北線 白金高輪駅 徒歩1分 東京メトロ南北線 白金台駅 徒歩13分 都営浅草線 泉岳寺駅 徒歩15分 | ||
| 階数 | 地下1地上22階建 | 総戸数 | 129戸 |
| 築年月 | 2005年12月 / 築21年 | エレベーター | あり |
| 駐車場 | なし | バイク置き場 | - |
| 駐輪場 | あり | 管理人/管理会社 | - |
| 周辺環境 | その他 ローソン H三田四丁目店(コンビニ)まで738m | ||
| 建物種別 | マンション | 建物構造 | RC(鉄筋コンクリート) |
この部屋の取扱い不動産会社
| 会社名 | PRA(株)青山店(SUUMO経由) | ||
|---|---|---|---|
| 所在地 | 東京都港区北青山1-3-3 三橋ビル8階 | 交通 | - |
| 営業時間 | 9:00~20:00 | 定休日 | 無し |
| 免許番号 | 東京都知事109775 | 取引態様 | 仲介 |
| 不動産会社管理番号 | 100480073647 | 当社管理番号 | 89 |
| 所属団体 | (公社)東京都宅地建物取引業協会会員 | ||
| 公正取引協議会 | (公社)首都圏不動産公正取引協議会加盟 | ||
| 取扱い物件情報 | 物件詳細へ | ||
※各種情報と現状に差異がある場合は、現状優先となります。問い合わせをすることで、より詳しい条件、情報を確認する事ができます。
提供:PRA(株)青山店(SUUMO経由)
この物件が気になったら掲載期限まであと10日
レキシントンスクエア白金高輪に条件(家賃・エリア)が近い物件一覧
| 写真 | 家賃 管理費等 | 敷金 礼金 | 間取り 専有面積 | 築年数 | 最寄り駅 所在地 | キープ | 詳細 |
|---|---|---|---|---|---|---|---|
マンション 本町2丁目メゾン南棟(3LDK/1階) | |||||||
![]() | 35.1万円 6,000円 | 17.55万円 38.61万円 | 3LDK 71.13m2 | 新築 | 京王新線 初台駅 徒歩10分 都営大江戸線 西新宿五丁目駅 徒歩13分 東京都渋谷区本町 | 詳細を見る | |
マンション パークタワー目黒(2LDK/18階) | |||||||
![]() | 45万円 なし | 45万円 45万円 | 2LDK 58.62m2 | 築19年 | JR山手線 目黒駅 徒歩1分 東京メトロ南北線 目黒駅 徒歩1分 東急目黒線 目黒駅 徒歩1分 東京都品川区上大崎 | 詳細を見る | |
マンション アイフラット品川戸越パークサイド(1LDK/3階) | |||||||
![]() | 21.1万円 1.2万円 | 21.1万円 なし | 1LDK 35.07m2 | 築1年 | 東急大井町線 戸越公園駅 徒歩5分 都営浅草線 戸越駅 徒歩6分 東急池上線 戸越銀座駅 徒歩10分 東京都品川区戸越 | 詳細を見る | |
マンション WHITE TOWER HAMAMATSUCHO ホワイトタワー浜松町(2LDK/18階) | |||||||
![]() | 42.5万円 2万円 | 85万円 21.25万円 | 2LDK 62.53m2 | 築19年 | JR山手線 浜松町駅 徒歩3分 都営浅草線 大門駅(東京) 徒歩3分 都営三田線 御成門駅 徒歩8分 東京都港区浜松町 | 詳細を見る | |
マンション パークコート ザ・三番町ハウス(2LDK/3階) | |||||||
![]() | 41.1万円 なし | 41.1万円 41.1万円 | 2LDK 56.7m2 | 築1年 | 東京地下鉄半蔵門線 半蔵門駅 徒歩8分 東京都千代田区三番町 | 詳細を見る | |
マンション コンフォリア・リヴ豊洲キャナル(3LDK/5階) | |||||||
![]() | 26万円 1.5万円 | 26万円 なし | 3LDK 58.32m2 | 築1年 | 東京メトロ有楽町線 豊洲駅 徒歩16分 JR京葉線 潮見駅 徒歩20分 東京メトロ有楽町線 辰巳駅 徒歩29分 東京都江東区枝川 | 詳細を見る | |
マンション J.GRAN COURT 品川西大井ウエスト(2LDK/2階) | |||||||
![]() | 20.3万円 2万円 | 20.3万円 なし | 2LDK 40.26m2 | 築3年 | JR横須賀線 西大井駅 徒歩7分 都営浅草線 馬込駅 徒歩17分 都営浅草線 中延駅 徒歩18分 東京都品川区西大井 | 詳細を見る | |





/105x80-f1-q70-wp1)

