賃貸マンション
ヴェール・クレール大崎の賃貸物件情報(1K/4階)
| 家賃 | 管理費等 | 敷金 | 礼金 | 間取り | 専有面積 |
|---|---|---|---|---|---|
| 15.5万円 | 1万円 | 15.5万円 | 15.5万円 | 1K | 30.66m2 |
入居決定でお祝い金最大100,000円
Point
421号室 ペット飼育応相談 エアコン設置済
提供:アパマンショップ新横浜店

詳細情報 ヴェール・クレール大崎
物件紹介
ヴェール・クレール大崎は東急池上線戸越銀座駅から徒歩7分にあり、駅近で通勤通学に便利なマンションです。
このお部屋は2階以上に位置しているので、通行人や周囲の住人からの視線が気になりにくく、防犯面でも安心。建物のエントランスはオートロックがついており、インターホンにはTVモニタもついているため、相手の顔を確認してから来客対応することができます。
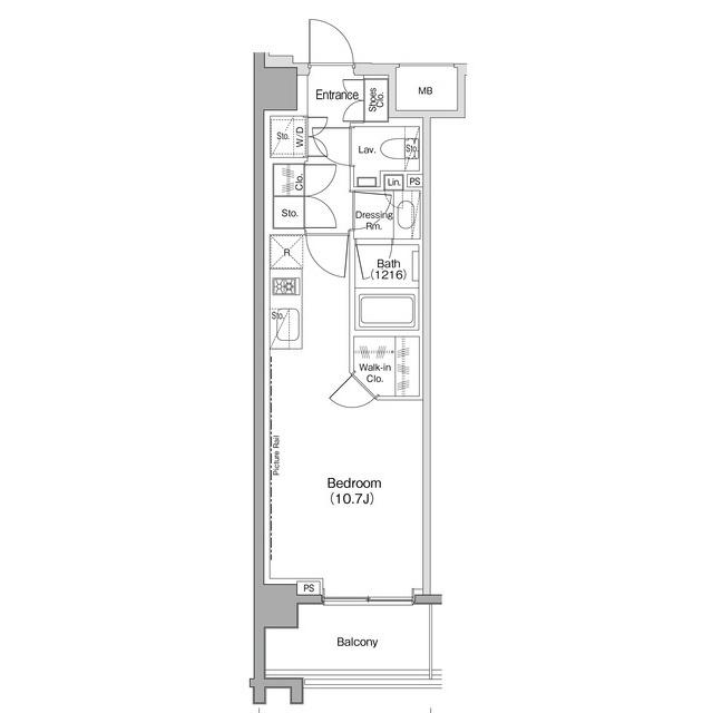
人気の南向き・フローリングのお部屋。室内にはウォークインクローゼットがありますので、たくさんの荷物も効率的に収納ができます。キッチンはシステムキッチン仕様になっていますので、お料理好きの方にもぴったり。バス・トイレは別なので、のんびりお風呂タイムも楽しめるでしょう。また、雨の日でも浴室乾燥機を使えば、お洗濯も問題ありません。
通信設備面では、インターネットが無料で使えるので、月々の出費を抑えられるのも魅力です。また、BSアンテナ・CSアンテナもありますので、おうち時間も充実するでしょう(別途工事、BS・CSの契約料等が必要な場合あり)。
建物にはエレベーターがついているので、重い荷物があっても安心。共用部には宅配ボックスが設定されているので、不在の時にも荷物を受け取ることができます。また、ペット飼育の相談ができますので、あなたの大切な家族の一員も快適に暮らせるか、ぜひ確認してみてください。
このお部屋は2階以上に位置しているので、通行人や周囲の住人からの視線が気になりにくく、防犯面でも安心。建物のエントランスはオートロックがついており、インターホンにはTVモニタもついているため、相手の顔を確認してから来客対応することができます。
人気の南向き・フローリングのお部屋。室内にはウォークインクローゼットがありますので、たくさんの荷物も効率的に収納ができます。キッチンはシステムキッチン仕様になっていますので、お料理好きの方にもぴったり。バス・トイレは別なので、のんびりお風呂タイムも楽しめるでしょう。また、雨の日でも浴室乾燥機を使えば、お洗濯も問題ありません。
通信設備面では、インターネットが無料で使えるので、月々の出費を抑えられるのも魅力です。また、BSアンテナ・CSアンテナもありますので、おうち時間も充実するでしょう(別途工事、BS・CSの契約料等が必要な場合あり)。
建物にはエレベーターがついているので、重い荷物があっても安心。共用部には宅配ボックスが設定されているので、不在の時にも荷物を受け取ることができます。また、ペット飼育の相談ができますので、あなたの大切な家族の一員も快適に暮らせるか、ぜひ確認してみてください。
お金・契約の情報
※「-」と表示されているものは、実際は料金が発生するものもございます。詳細はお問い合わせください。
| 家賃 | 15.5万円 | 管理費・共益費 | 1万円 |
|---|---|---|---|
| 敷金 | 15.5万円 | 礼金 | 15.5万円 |
| 入居決定でお祝い金最大100,000円 | |||
| 保証金 | - | 償却・敷引 | - |
| 住宅保険料 | - | 更新料 | - |
| 保証会社利用 | 必須 | 保証会社名 | - |
| 保証会社費用 | - | 保証会社備考 | ジェイリース・ウェルオンソリューションズ 初年度保証料:賃料等合計額の50% 2年目以降:1年毎1万 |
| 契約形態 | - | 契約期間 | 2年 |
| 入居・引渡期間 | 相談 | 現況 | - |
| 入居可能条件 | ペット可 | ||
| 契約備考 | 法人契約保証会社要確認 駆付けサポート24借主加入 保証会社未使用時敷金2か月 ペット飼育応相談(諸条件弊社募集図面要確認) 楽器・民泊不可 鍵交換任意/退去時:室内清掃・エアコン洗浄費借主負担 付属施設空状況要確認施設空状況要確認 | ||
部屋の情報
| 間取り | 1K | 専有面積 | 30.66m2 |
|---|---|---|---|
| 間取り詳細 | 洋室(8.9帖) | ||
| 所在階 / 向き | 4階 / 南西 | バルコニー面積 | 4m2 |
| 水道 / ガス | - | ||
| 設備 | バス・トイレ別、オートロック、テレビドアホン、宅配ボックス、浴室乾燥機、ウォークインクローゼット、追い焚き、光ファイバー対応、エレベーター、温水洗浄便座、バルコニー、フローリング、CSアンテナ、BSアンテナ、シャワー、給湯、洗濯機:室内 | ||
| 当社物件ID | 126602141 | ||
建物の情報
| 建物名 | ヴェール・クレール大崎 | ||
|---|---|---|---|
| 所在地 | 東京都品川区大崎4丁目 | ||
| 交通 | 東京都浅草線 戸越駅 徒歩8分 | ||
| 階数 | 9階建 | 総戸数 | 230戸 |
| 築年月 | 2023年01月 / 築4年 | エレベーター | あり |
| 駐車場 | - | バイク置き場 | - |
| 駐輪場 | - | 管理人/管理会社 | - |
| 周辺環境 | その他 セブンイレブン 徒歩12分(888m) その他 TSUTAYA 大崎駅前店 徒歩13分(1020m) その他 ライフ 大崎ニューシティ店 徒歩15分(1169m) その他 東急ストア五反田店 徒歩16分(1209m) その他 セブン-イレブン 不動前駅東店 徒歩16分(1216m) その他 東急ストア 不動前店 徒歩18分(1384m) その他 品川不動前郵便局 徒歩18分(1383m) その他 ローソン 大崎店 徒歩19分(1494m) | ||
| 建物種別 | マンション | 建物構造 | RC(鉄筋コンクリート) |
この部屋の取扱い不動産会社
| 会社名 | アパマンショップ品川駅前店 | ||
|---|---|---|---|
| 所在地 | 東京都港区港南2丁目 2-15レゴリス品川駅前ビルディング4階 | 交通 | 常磐線品川から徒歩2分 |
| 営業時間 | 10:00〜19:00(オンライン接客対応店舗) | 定休日 | 水曜日 |
| 免許番号 | 国土交通大臣(5)6971 | 取引態様 | 仲介 |
| 不動産会社管理番号 | 95194682 | 当社管理番号 | 4 |
| 所属団体 | (公社)東京都宅地建物取引協会 | ||
| 公正取引協議会 | (公社) 首都圏不動産公正取引協議会加盟 | ||
| 取扱い物件情報 | 物件詳細へ | ||
※各種情報と現状に差異がある場合は、現状優先となります。問い合わせをすることで、より詳しい条件、情報を確認する事ができます。
提供:アパマンショップ品川駅前店
この物件が気になったら掲載期限まであと13日
ヴェール・クレール大崎に条件(家賃・エリア)が近い物件一覧
| 写真 | 家賃 管理費等 | 敷金 礼金 | 間取り 専有面積 | 築年数 | 最寄り駅 所在地 | キープ | 詳細 |
|---|---|---|---|---|---|---|---|
マンション REALIZE蒲田Ⅱ(1K/3階) | |||||||
![]() | 10.4万円 8,000円 | なし 10.4万円 | 1K 25.74m2 | 築6年 | 京浜急行電鉄本線 京急蒲田駅 徒歩9分 京浜急行電鉄本線 梅屋敷駅(東京) 徒歩10分 京浜急行電鉄空港線 糀谷駅 徒歩13分 東京都大田区東蒲田2丁目 | 詳細を見る | |
マンション パークホームズ木場クリアテラス(2LDK/10階) | |||||||
![]() | 23.8万円 1.5万円 | 23.8万円 23.8万円 | 2LDK 56.53m2 | 築12年 | 東京メトロ東西線 木場駅 徒歩3分 東京メトロ東西線 東陽町駅 徒歩14分 都営大江戸線 門前仲町駅 徒歩16分 東京都江東区木場 | 詳細を見る | |
マンション ハイツ髙沢(1LDK/2階) | |||||||
![]() | 13.5万円 5,000円 | 13.5万円 27万円 | 1LDK 32.89m2 | 築7年 | 東急池上線 旗の台駅 徒歩5分 東急大井町線 荏原町駅 徒歩6分 横須賀線 西大井駅 徒歩21分 東京都品川区旗の台4丁目 | 詳細を見る | |
マンション ジェノヴィア蒲田3スカイガーデン(1K/4階) | |||||||
![]() | 12万円 1.5万円 | なし なし | 1K 25.41m2 | 築5年 | 京浜急行電鉄本線 京急蒲田駅 徒歩6分 京浜急行電鉄空港線 糀谷駅 徒歩10分 京浜東北・根岸線 蒲田駅 徒歩15分 東京都大田区南蒲田2丁目 | 詳細を見る | |
一戸建て 京浜急行電鉄本線 梅屋敷駅(東京) 徒歩9分 築25年(3LDK) | |||||||
![]() | 20万円 なし | 20万円 20万円 | 3LDK 80.82m2 | 築25年 | 京浜急行電鉄本線 梅屋敷駅(東京) 徒歩9分 京浜東北・根岸線 蒲田駅 徒歩10分 東京都大田区大森西7丁目 | 詳細を見る | |
マンション KDXレジデンス西馬込(1K/2階) | |||||||
![]() | 11.5万円 1万円 | 11.5万円 11.5万円 | 1K 25.22m2 | 築10年 | 都営浅草線 西馬込駅 徒歩4分 東急池上線 池上駅 徒歩23分 JR京浜東北線 大森駅(東京) 徒歩30分 東京都大田区南馬込 | 詳細を見る | |
マンション SEED JUST B-BASE Ⅱ(1LDK/2階) | |||||||
![]() | 9.9万円 1.5万円 | 9.9万円 9.9万円 | 1LDK 25.41m2 | 新築 | 東京モノレール羽田 昭和島駅 徒歩11分 京浜急行電鉄本線 梅屋敷駅(東京) 徒歩19分 東京都大田区大森南4丁目 | 詳細を見る | |
アパート VOX LILY(2LDK/1階) | |||||||
![]() | 19.6万円 4,000円 | 19.6万円 19.6万円 | 2LDK 56.47m2 | 築2年 | 京浜東北・根岸線 蒲田駅 徒歩13分 東急池上線 蓮沼駅 徒歩15分 東京都大田区西蒲田1丁目 | 詳細を見る | |








