賃貸マンション
ヴェール・クレール大崎の賃貸物件情報(1K/9階)
| 家賃 | 管理費等 | 敷金 | 礼金 | 間取り | 専有面積 |
|---|---|---|---|---|---|
| 16.2万円 | 1万円 | 16.2万円 | なし | 1K | 30.66m2 |
入居決定でお祝い金最大100,000円
- 保証金
- -
- 償却・敷引
- -
- 築年数
- 築4年
- 所在階
- 9階
- 向き
- 南西
Point
まずはお問い合わせ!
不動産会社は街のプロ、あなたに合った物件がきっと見つかります。
提供:(株)ユウキ・ホーム麻布十番サテライト店(SUUMO経由)

詳細情報 ヴェール・クレール大崎
物件紹介
ヴェール・クレール大崎は都営浅草線戸越駅から徒歩8分にあり、駅近で通勤通学に便利なマンションです。
このお部屋は2階以上に位置しているので、通行人や周囲の住人からの視線が気になりにくく、防犯面でも安心。建物のエントランスはオートロックがついており、インターホンにはTVモニタもついているため、相手の顔を確認してから来客対応することができます。
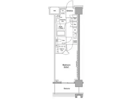
人気の南向き・フローリングのお部屋。室内にはウォークインクローゼットがありますので、たくさんの荷物も効率的に収納ができます。キッチンはシステムキッチン仕様になっていますので、お料理好きの方にもぴったり。バス・トイレは別なので、のんびりお風呂タイムも楽しめるでしょう。また、雨の日でも浴室乾燥機を使えば、お洗濯も問題ありません。
通信設備面では、インターネットが無料で使えるので、月々の出費を抑えられるのも魅力です。また、BSアンテナ・CSアンテナがありCATVにも対応しているので、おうち時間も充実するでしょう(別途工事、BS・CS・CATVの契約料等が必要な場合あり)。
建物にはエレベーターがついているので、重い荷物があっても安心。共用部には宅配ボックスが設定されているので、不在の時にも荷物を受け取ることができます。また、ペット飼育の相談ができますので、あなたの大切な家族の一員も快適に暮らせるか、ぜひ確認してみてください。
このお部屋は2階以上に位置しているので、通行人や周囲の住人からの視線が気になりにくく、防犯面でも安心。建物のエントランスはオートロックがついており、インターホンにはTVモニタもついているため、相手の顔を確認してから来客対応することができます。
人気の南向き・フローリングのお部屋。室内にはウォークインクローゼットがありますので、たくさんの荷物も効率的に収納ができます。キッチンはシステムキッチン仕様になっていますので、お料理好きの方にもぴったり。バス・トイレは別なので、のんびりお風呂タイムも楽しめるでしょう。また、雨の日でも浴室乾燥機を使えば、お洗濯も問題ありません。
通信設備面では、インターネットが無料で使えるので、月々の出費を抑えられるのも魅力です。また、BSアンテナ・CSアンテナがありCATVにも対応しているので、おうち時間も充実するでしょう(別途工事、BS・CS・CATVの契約料等が必要な場合あり)。
建物にはエレベーターがついているので、重い荷物があっても安心。共用部には宅配ボックスが設定されているので、不在の時にも荷物を受け取ることができます。また、ペット飼育の相談ができますので、あなたの大切な家族の一員も快適に暮らせるか、ぜひ確認してみてください。
お金・契約の情報
※「-」と表示されているものは、実際は料金が発生するものもございます。詳細はお問い合わせください。
| 家賃 | 16.2万円 | 管理費・共益費 | 1万円 |
|---|---|---|---|
| 敷金 | 16.2万円 | 礼金 | なし |
| 入居決定でお祝い金最大100,000円 | |||
| 保証金 | - | 償却・敷引 | - |
| 住宅保険料 | - | 更新料 | - |
| 保証会社利用 | 必須 | 保証会社名 | - |
| 保証会社費用 | - | 保証会社備考 | 保証会社利用必 初年度委託料:賃料等合計額の50% 詳細はお問い合わせください |
| 契約形態 | - | 契約期間 | - |
| 入居・引渡期間 | 即時 | 現況 | - |
| 入居可能条件 | ペット相談 | ||
| 契約備考 | 巡回管理/礼金不要:条件1月以内の申込 短期解約違約金有:1年未満解約時賃料1ヶ月分※ 退去時ルーム・ACクリーニング費用借主負担※詳細要確認 ペット相談可※詳細要確認 鍵交換任意 付属施設空状況要確認 その他詳細要確認 駆付けサポート2416500円/2年間 1K 単身者可/ペット相談 普通借家2年 損保【要】 バストイレ別、バルコニー、エアコン、ガスコンロ対応、クロゼット、フローリング、浴室乾燥機、オートロック、室内洗濯置、シューズボックス、システムキッチン、追焚機能浴室、温水洗浄便座、エレベーター、洗面所独立、洗面化粧台、2口コンロ、宅配ボックス、即入居可、礼金不要、防犯カメラ、ペット相談、オートバス、ウォークインクロゼット、保証人不要、3駅以上利用可、3沿線以上利用可、駅徒歩10分以内、敷地内ごみ置き場、南西向き、南面バルコニー、保証会社利用可 敷金積み増し【ペット飼育の場合敷金2ヶ月(総額)】 | ||
部屋の情報
| 間取り | 1K | 専有面積 | 30.66m2 |
|---|---|---|---|
| 所在階 / 向き | 9階 / 南西 | バルコニー面積 | - |
| 水道 / ガス | - | ||
| 設備 | バス・トイレ別、2階以上、オートロック、宅配ボックス、浴室乾燥機、ウォークインクローゼット、追い焚き、システムキッチン、エアコン、エレベーター、温水洗浄便座、南向き、バルコニー、フローリング、洗髪洗面化粧台、2口コンロ、コンロ:ガス、洗濯機:室内 | ||
| 当社物件ID | 160252392 | ||
建物の情報
| 建物名 | ヴェール・クレール大崎 | ||
|---|---|---|---|
| 所在地 | 東京都品川区大崎 | ||
| 交通 | 都営浅草線 戸越駅 徒歩8分 東急池上線 大崎広小路駅 徒歩9分 JR山手線 大崎駅 徒歩11分 | ||
| 階数 | 9階建 | 総戸数 | - |
| 築年月 | 2023年01月 / 築4年 | エレベーター | あり |
| 駐車場 | なし | バイク置き場 | - |
| 駐輪場 | - | 管理人/管理会社 | - |
| 周辺環境 | その他 ライフ 大崎百反通店(スーパー)まで136m その他 ローソン 品川大崎三丁目店(コンビニ)まで243m その他 サンドラッグ 戸越銀座店(ドラッグストア)まで493m | ||
| 建物種別 | マンション | 建物構造 | RC(鉄筋コンクリート) |
この部屋の取扱い不動産会社
| 会社名 | (株)ユウキ・ホーム麻布十番サテライト店(SUUMO経由) | ||
|---|---|---|---|
| 所在地 | 東京都港区麻布十番2-19-10 桂麻布十番ビル1階 | 交通 | - |
| 営業時間 | 9:30~21:30 | 定休日 | 年中無休 |
| 免許番号 | 東京都知事76214 | 取引態様 | 仲介 |
| 不動産会社管理番号 | 100484079998 | 当社管理番号 | 89 |
| 所属団体 | (公社)東京都宅地建物取引業協会会員 | ||
| 公正取引協議会 | (公社)首都圏不動産公正取引協議会加盟 | ||
| 取扱い物件情報 | 物件詳細へ | ||
※各種情報と現状に差異がある場合は、現状優先となります。問い合わせをすることで、より詳しい条件、情報を確認する事ができます。
提供:(株)ユウキ・ホーム麻布十番サテライト店(SUUMO経由)
この物件が気になったら掲載期限まであと11日
ヴェール・クレール大崎に条件(家賃・エリア)が近い物件一覧
| 写真 | 家賃 管理費等 | 敷金 礼金 | 間取り 専有面積 | 築年数 | 最寄り駅 所在地 | キープ | 詳細 |
|---|---|---|---|---|---|---|---|
マンション XEBEC池上Ⅲ(1K/2階) | |||||||
![]() | 10.7万円 1.5万円 | なし 10.7万円 | 1K 25.84m2 | 築8年 | 東急池上線 池上駅 徒歩5分 東急池上線 千鳥町駅 徒歩13分 東京都大田区池上3丁目 | 詳細を見る | |
マンション SYFORME MONZEN-NAKACHO(1DK/1階) | |||||||
![]() | 12.4万円 1万円 | 12.4万円 12.4万円 | 1DK 28.2m2 | 築6年 | 東京メトロ東西線 門前仲町駅 徒歩5分 都営大江戸線 門前仲町駅 徒歩5分 JR京葉線 越中島駅 徒歩10分 東京都江東区永代 | 詳細を見る | |
マンション プラウドフラット南品川(1K/1階) | |||||||
![]() | 12.2万円 1万円 | 12.2万円 12.2万円 | 1K 25.44m2 | 築7年 | 京急本線 青物横丁駅 徒歩5分 りんかい線 品川シーサイド駅 徒歩11分 JR京浜東北線 大井町駅 徒歩16分 東京都品川区南品川 | 詳細を見る | |
マンション ハーモニーレジデンス羽田天空橋(1DK/3階) | |||||||
![]() | 10.45万円 1.5万円 | 10.45万円 10.45万円 | 1DK 25.75m2 | 築3年 | 京急空港線 天空橋駅 徒歩6分 京急空港線 穴守稲荷駅 徒歩10分 東京モノレール 整備場駅 徒歩17分 東京都大田区羽田 | 詳細を見る | |
マンション ハイツ髙沢(1LDK/2階) | |||||||
![]() | 13.5万円 5,000円 | 13.5万円 27万円 | 1LDK 32.89m2 | 築7年 | 東急池上線 旗の台駅 徒歩5分 東急大井町線 荏原町駅 徒歩6分 横須賀線 西大井駅 徒歩21分 東京都品川区旗の台4丁目 | 詳細を見る | |
一戸建て 東京都新宿線 大島駅(東京) 徒歩7分 築77年(1DK) | |||||||
![]() | 15.8万円 1万円 | 15.8万円 15.8万円 | 1DK 27.91m2 | 築77年 | 東京都新宿線 大島駅(東京) 徒歩7分 東京都新宿線 西大島駅 徒歩7分 総武・中央緩行線 亀戸駅 徒歩11分 東京都江東区大島3丁目 | 詳細を見る | |
マンション LIVEFLAT馬込(1LDK/2階) | |||||||
![]() | 14.3万円 1万円 | なし なし | 1LDK 28.48m2 | 築1年 | 都営浅草線 馬込駅 徒歩3分 東急大井町線 荏原町駅 徒歩13分 都営浅草線 西馬込駅 徒歩14分 東京都大田区中馬込 | 詳細を見る | |
マンション ジェノヴィア蒲田3スカイガーデン(1K/4階) | |||||||
![]() | 12万円 1.5万円 | なし なし | 1K 25.41m2 | 築5年 | 京浜急行電鉄本線 京急蒲田駅 徒歩6分 京浜急行電鉄空港線 糀谷駅 徒歩10分 京浜東北・根岸線 蒲田駅 徒歩15分 東京都大田区南蒲田2丁目 | 詳細を見る | |








