賃貸マンション
DELCCS WASEDAーIIIの賃貸物件情報(1DK/2階)
| 家賃 | 管理費等 | 敷金 | 礼金 | 間取り | 専有面積 |
|---|---|---|---|---|---|
| 16.4万円 | 5,000円 | なし | 16.4万円 | 1DK | 31.18m2 |
入居決定でお祝い金最大100,000円
- 保証金
- -
- 償却・敷引
- -
- 築年数
- 築20年
- 所在階
- 2階
- 向き
- -
Point
当物件は初期費用分割払い可(クレジットカード決済も可)/お客様のご希望に合わせた方法(店頭、オンライン等)で物件をご提案いたします。初期費用のお見積りや入居希望日のご相談もお気軽にお問い合わせください
提供:アエラス駒込店 (株)アエラス.FR(SUUMO経由)

詳細情報 DELCCS WASEDAーIII
物件紹介
DELCCS WASEDAーIIIは東京メトロ東西線早稲田駅から徒歩3分にあり、駅近で通勤通学に便利なマンションです。
このお部屋は2階以上に位置しているので通行人や周囲の住人からの視線が気になりにくく、建物のエントランスはオートロックがついているので防犯性が高くなっています。
バス・トイレ別の仕様で、のんびりお風呂タイムも楽しめます。
通信設備面では、インターネットが無料で使えるので、月々の出費を抑えられるのも魅力です(別途工事等が必要な場合あり)。
建物にはエレベーターがついているので、重い荷物があっても安心。
このお部屋は2階以上に位置しているので通行人や周囲の住人からの視線が気になりにくく、建物のエントランスはオートロックがついているので防犯性が高くなっています。
バス・トイレ別の仕様で、のんびりお風呂タイムも楽しめます。
通信設備面では、インターネットが無料で使えるので、月々の出費を抑えられるのも魅力です(別途工事等が必要な場合あり)。
建物にはエレベーターがついているので、重い荷物があっても安心。
お金・契約の情報
※「-」と表示されているものは、実際は料金が発生するものもございます。詳細はお問い合わせください。
| 家賃 | 16.4万円 | 管理費・共益費 | 5,000円 |
|---|---|---|---|
| 敷金 | なし | 礼金 | 16.4万円 |
| 入居決定でお祝い金最大100,000円 | |||
| 保証金 | - | 償却・敷引 | - |
| 住宅保険料 | - | 更新料 | - |
| 保証会社利用 | 必須 | 保証会社名 | - |
| 保証会社費用 | - | 保証会社備考 | 保証会社利用必 初回:賃料等の100% |
| 契約形態 | - | 契約期間 | - |
| 入居・引渡期間 | 相談 | 現況 | - |
| 契約備考 | 早稲田大学前郵便局まで234m/新宿区役所榎町特別出張所まで447m/室内清掃費用借主負担(退去時)/短期解約違約金有(1年未満の解約は賃料と管理費を合わせた総賃料の2ヶ月分、2年未満の解約は賃料と管理費を合わせた総賃料の1ヶ月分) 合計3.85万円(内訳:カギ交換費用22000円/事務手数料16500円) 1DK 普通借家2年 損保【要】 バストイレ別、バルコニー、エアコン、ガスコンロ対応、オートロック、室内洗濯置、エレベーター、洗面所独立、洗面化粧台、2口コンロ、光ファイバー、外壁タイル張り、敷金不要、防犯カメラ、ネット使用料不要、保証金不要、外壁コンクリート、3駅以上利用可、3沿線以上利用可、駅徒歩5分以内、都市ガス、高速ネット対応、礼金1ヶ月、初期費用カード決済可 | ||
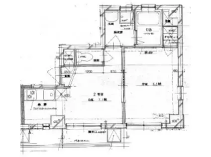
部屋の情報
| 間取り | 1DK | 専有面積 | 31.18m2 |
|---|---|---|---|
| 所在階 / 向き | 2階 / - | バルコニー面積 | - |
| 水道 / ガス | - | ||
| 設備 | バス・トイレ別、2階以上、オートロック、インターネット対応、エアコン、エレベーター、バルコニー、洗髪洗面化粧台、2口コンロ、コンロ:ガス、インターネット使用料無料、洗濯機:室内 | ||
| 当社物件ID | 160267304 | ||
建物の情報
| 建物名 | DELCCS WASEDAーIII | ||
|---|---|---|---|
| 所在地 | 東京都新宿区早稲田鶴巻町 | ||
| 交通 | 東京メトロ東西線 早稲田駅(メトロ) 徒歩3分 東京メトロ有楽町線 江戸川橋駅 徒歩11分 都営大江戸線 牛込柳町駅 徒歩16分 | ||
| 階数 | 5階建 | 総戸数 | - |
| 築年月 | 2007年01月 / 築20年 | エレベーター | あり |
| 駐車場 | 近隣 569m29700円 | バイク置き場 | - |
| 駐輪場 | - | 管理人/管理会社 | - |
| 周辺環境 | その他 イトーヨーカドー食品館早稲田店(スーパー)まで269m その他 セブン-イレブン 早稲田店(コンビニ)まで156m その他 ツルハドラッグ 早稲田店(ドラッグストア)まで435m その他 キッチンオリジン 早稲田正門前店(飲食店)まで255m その他 早稲田大学喜久井町キャンパス(大学・短大)まで699m その他 岡崎医院(病院)まで142m | ||
| 建物種別 | マンション | 建物構造 | RC(鉄筋コンクリート) |
この部屋の取扱い不動産会社
| 会社名 | アエラス駒込店 (株)アエラス.FR(SUUMO経由) | ||
|---|---|---|---|
| 所在地 | 東京都豊島区駒込1-42-5 EK駒込ビル 1階・2階 | 交通 | - |
| 営業時間 | 10:00~19:00(時間外対応出来る場合有り) | 定休日 | 毎週水曜日 |
| 免許番号 | 国土交通大臣10206 | 取引態様 | 仲介 |
| 不動産会社管理番号 | 100484542969 | 当社管理番号 | 89 |
| 所属団体 | (公社)全日本不動産協会東京都本部会員 | ||
| 公正取引協議会 | (公社)首都圏不動産公正取引協議会加盟 | ||
| 取扱い物件情報 | 物件詳細へ | ||
※各種情報と現状に差異がある場合は、現状優先となります。問い合わせをすることで、より詳しい条件、情報を確認する事ができます。
提供:アエラス駒込店 (株)アエラス.FR(SUUMO経由)
この物件が気になったら掲載期限まであと10日
DELCCS WASEDAーIIIに条件(家賃・エリア)が近い物件一覧
| 写真 | 家賃 管理費等 | 敷金 礼金 | 間取り 専有面積 | 築年数 | 最寄り駅 所在地 | キープ | 詳細 |
|---|---|---|---|---|---|---|---|
マンション GRAN PASEO 神田駅前(1K/7階) | |||||||
![]() | 13.4万円 1.5万円 | 13.4万円 13.4万円 | 1K 20.94m2 | 築7年 | 東京都新宿線 岩本町駅 徒歩3分 京浜東北・根岸線 神田駅(東京) 徒歩5分 山手線 神田駅(東京) 徒歩5分 東京都千代田区神田須田町2丁目 | 詳細を見る | |
マンション リビオメゾン御茶ノ水イースト(1DK/9階) | |||||||
![]() | 17万円 1万円 | 17万円 なし | 1DK 25.41m2 | 築1年 | 中央本線 御茶ノ水駅 徒歩5分 東京地下鉄銀座線 末広町駅(東京) 徒歩6分 東京地下鉄丸ノ内線 御茶ノ水駅 徒歩6分 東京都文京区湯島1丁目 | 詳細を見る | |
マンション ベルファース神田神保町(1DK/8階) | |||||||
![]() | 17.7万円 1万円 | 17.7万円 なし | 1DK 25.05m2 | 築3年 | 東京地下鉄半蔵門線 神保町駅 徒歩4分 東京都三田線 神保町駅 徒歩4分 総武・中央緩行線 水道橋駅 徒歩8分 東京都千代田区神田神保町1丁目 | 詳細を見る | |
マンション クレイシア秋葉原ラグゼスウィート(1DK/9階) | |||||||
![]() | 15.9万円 1.5万円 | 15.9万円 15.9万円 | 1DK 30.48m2 | 築7年 | 総武本線 馬喰町駅 徒歩5分 東京都新宿線 岩本町駅 徒歩6分 山手線 秋葉原駅 徒歩8分 東京都千代田区東神田2丁目 | 詳細を見る | |
マンション パークアクシス神保町(1DK/5階) | |||||||
![]() | 18万円 1万円 | 18万円 なし | 1DK 27.31m2 | 築2年 | 東京都新宿線 神保町駅 徒歩4分 総武・中央緩行線 水道橋駅 徒歩6分 東京地下鉄半蔵門線 九段下駅 徒歩9分 東京都千代田区神田神保町1丁目 | 詳細を見る | |
マンション グランカーサ江戸川橋(1DK/4階) | |||||||
![]() | 14.1万円 8,000円 | 14.1万円 14.1万円 | 1DK 25.28m2 | 築3年 | 東京地下鉄有楽町線 江戸川橋駅 徒歩3分 東京都文京区水道2丁目 | 詳細を見る | |
マンション ザ・クラスアーバンス水道橋本郷(ワンルーム/4階) | |||||||
![]() | 12.3万円 2万円 | 12.3万円 なし | ワンルーム 24.3m2 | 築2年 | 東京都三田線 水道橋駅 徒歩3分 東京地下鉄丸ノ内線 本郷三丁目駅 徒歩7分 中央本線 御茶ノ水駅 徒歩10分 東京都文京区本郷1丁目 | 詳細を見る | |
マンション パークアクシス文京本郷(1DK/4階) | |||||||
![]() | 18.8万円 1.2万円 | 18.8万円 なし | 1DK 28.46m2 | 築1年 | 東京都大江戸線 本郷三丁目駅 徒歩6分 東京地下鉄丸ノ内線 本郷三丁目駅 徒歩6分 東京都文京区本郷5丁目 | 詳細を見る | |








