賃貸マンション
CREST TAPP SHIN YOKOHAMAの賃貸物件情報(1K/7階)
| 家賃 | 管理費等 | 敷金 | 礼金 | 間取り | 専有面積 |
|---|---|---|---|---|---|
| 10.2万円 | 1万円 | なし | なし | 1K | 21.75m2 |
入居決定でお祝い金最大100,000円
- 保証金
- -
- 償却・敷引
- -
- 築年数
- 築2年
- 所在階
- 7階
- 向き
- 北西
Point
24時間ゴミ捨て可能!浴室乾燥・温水洗浄便座などの充実した設備搭載!オートロック・モニター付きインターホンなどの防犯設備も充実♪
提供:センチュリー21(株)ヨコハマ地所(SUUMO経由)

詳細情報 CREST TAPP SHIN YOKOHAMA
物件紹介
CREST TAPP SHIN YOKOHAMAはブルーライン新横浜駅から徒歩8分にあり、駅近で通勤通学に便利なマンションです。
このお部屋は2階以上に位置しているので、通行人や周囲の住人からの視線が気になりにくく、防犯面でも安心。建物のエントランスはオートロックがついており、インターホンにはTVモニタもついているため、相手の顔を確認してから来客対応することができます。
フローリングのお部屋なのでお掃除もラクラク。キッチンはシステムキッチン仕様になっていますので、お料理好きの方にもぴったり。バス・トイレは別なので、のんびりお風呂タイムも楽しめるでしょう。また、雨の日でも浴室乾燥機を使えば、お洗濯も問題ありません。
建物にはエレベーターがついているので、重い荷物があっても安心。共用部には宅配ボックスが設定されているので、不在の時にも荷物を受け取ることができます。
このお部屋は2階以上に位置しているので、通行人や周囲の住人からの視線が気になりにくく、防犯面でも安心。建物のエントランスはオートロックがついており、インターホンにはTVモニタもついているため、相手の顔を確認してから来客対応することができます。
フローリングのお部屋なのでお掃除もラクラク。キッチンはシステムキッチン仕様になっていますので、お料理好きの方にもぴったり。バス・トイレは別なので、のんびりお風呂タイムも楽しめるでしょう。また、雨の日でも浴室乾燥機を使えば、お洗濯も問題ありません。
建物にはエレベーターがついているので、重い荷物があっても安心。共用部には宅配ボックスが設定されているので、不在の時にも荷物を受け取ることができます。
お金・契約の情報
※「-」と表示されているものは、実際は料金が発生するものもございます。詳細はお問い合わせください。
| 家賃 | 10.2万円 | 管理費・共益費 | 1万円 |
|---|---|---|---|
| 敷金 | なし | 礼金 | なし |
| 入居決定でお祝い金最大100,000円 | |||
| 保証金 | - | 償却・敷引 | - |
| 住宅保険料 | - | 更新料 | - |
| 保証会社利用 | 必須 | 保証会社名 | - |
| 保証会社費用 | - | 保証会社備考 | 保証会社利用必 初回総賃料の50%+月額総賃料の1% |
| 契約形態 | - | 契約期間 | - |
| 入居・引渡期間 | - | 現況 | - |
| 契約備考 | 合計3.96万円(内訳:鍵交換) Concierge24月額1100円、保険会社月額1100円 1K 損保【要】 バストイレ別、バルコニー、エアコン、クロゼット、フローリング、TVインターホン、浴室乾燥機、オートロック、シューズボックス、システムキッチン、温水洗浄便座、エレベーター、洗面所独立、2口コンロ、駐輪場、宅配ボックス、防犯カメラ、分譲賃貸、駅まで平坦、ダブルロックキー、3沿線以上利用可、24時間ゴミ出し可、敷地内ごみ置き場、都市ガス 入居日:'26年4月下旬 | ||
部屋の情報
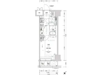
| 間取り | 1K | 専有面積 | 21.75m2 |
|---|---|---|---|
| 所在階 / 向き | 7階 / 北西 | バルコニー面積 | - |
| 水道 / ガス | - | ||
| 設備 | バス・トイレ別、2階以上、オートロック、テレビドアホン、宅配ボックス、浴室乾燥機、システムキッチン、エアコン、エレベーター、温水洗浄便座、バルコニー、フローリング、洗髪洗面化粧台、2口コンロ | ||
| 当社物件ID | 158195550 | ||
建物の情報
| 建物名 | CREST TAPP SHIN YOKOHAMA | ||
|---|---|---|---|
| 所在地 | 神奈川県横浜市港北区新横浜 | ||
| 交通 | ブルーライン 新横浜駅 徒歩8分 JR横浜線 小机駅 徒歩20分 ブルーライン 岸根公園駅 徒歩21分 | ||
| 階数 | 11階建 | 総戸数 | - |
| 築年月 | 2025年01月 / 築2年 | エレベーター | あり |
| 駐車場 | 近隣 100m17600円 | バイク置き場 | - |
| 駐輪場 | あり | 管理人/管理会社 | - |
| 周辺環境 | その他 紳士服コナカ新横浜岸根店(ショッピングセンター)まで561m その他 まいばすけっと新横浜1丁目店(スーパー)まで188m その他 まいばすけっと新横浜環状2号店(スーパー)まで295m その他 セブンイレブン野村不動産新横浜ビル店(コンビニ)まで512m その他 ファミリーマート新横浜店(コンビニ)まで659m その他 Fit Care Express DSM新横浜店(ドラッグストア)まで480m | ||
| 建物種別 | マンション | 建物構造 | RC(鉄筋コンクリート) |
この部屋の取扱い不動産会社
| 会社名 | センチュリー21(株)ヨコハマ地所(SUUMO経由) | ||
|---|---|---|---|
| 所在地 | 神奈川県横浜市港北区新横浜3-21-12 | 交通 | - |
| 営業時間 | AM9:30~PM6:30 | 定休日 | 水曜日 |
| 免許番号 | 神奈川県知事26950 | 取引態様 | 仲介 |
| 不動産会社管理番号 | 100490479501 | 当社管理番号 | 89 |
| 所属団体 | (公社)神奈川県宅地建物取引業協会会員 | ||
| 公正取引協議会 | (公社)首都圏不動産公正取引協議会加盟 | ||
| 取扱い物件情報 | 物件詳細へ | ||
※各種情報と現状に差異がある場合は、現状優先となります。問い合わせをすることで、より詳しい条件、情報を確認する事ができます。
提供:センチュリー21(株)ヨコハマ地所(SUUMO経由)
この物件が気になったら掲載期限まであと11日
CREST TAPP SHIN YOKOHAMAに条件(家賃・エリア)が近い物件一覧
| 写真 | 家賃 管理費等 | 敷金 礼金 | 間取り 専有面積 | 築年数 | 最寄り駅 所在地 | キープ | 詳細 |
|---|---|---|---|---|---|---|---|
アパート 第二小川ハイツ(2DK/2階) | |||||||
![]() | 6.5万円 1,000円 | 13万円 なし | 2DK 37.95m2 | 築43年 | 東急田園都市線 宮崎台駅 徒歩16分 東急田園都市線 宮前平駅 徒歩21分 神奈川県川崎市宮前区宮崎 | 詳細を見る | |
マンション パインヒルズ(2LDK/3階) | |||||||
![]() | 13.4万円 1万円 | 13.4万円 13.4万円 | 2LDK 50.3m2 | 築21年 | 東急東横線 綱島駅 徒歩11分 東急東横線 大倉山駅(神奈川) 徒歩18分 神奈川県横浜市港北区樽町 | 詳細を見る | |
アパート カーサM大和(2SLDK/2階) | |||||||
![]() | 12.7万円 4,000円 | 12.7万円 12.7万円 | 2SLDK 58.33m2 | 築4年 | 小田急電鉄江ノ島線 大和駅(神奈川) 徒歩10分 神奈川県大和市上草柳1丁目 | 詳細を見る | |
アパート D PAINA 子母口 II(2LDK/3階) | |||||||
![]() | 15.2万円 6,000円 | なし 30.4万円 | 2LDK 63.64m2 | 新築 | JR南武線 武蔵中原駅 徒歩22分 JR南武線 武蔵新城駅 徒歩24分 神奈川県川崎市高津区子母口 | 詳細を見る | |
アパート コロル・スピーネEDO2号棟(2LDK/1階) | |||||||
![]() | 14.9万円 6,000円 | 14.9万円 14.9万円 | 2LDK 55.89m2 | 築2年 | 東急東横線 元住吉駅 徒歩20分 JR南武線 武蔵中原駅 徒歩22分 神奈川県川崎市高津区明津 | 詳細を見る | |
アパート ウイングハウス(2DK/3階) | |||||||
![]() | 7万円 なし | 7万円 なし | 2DK 34.7m2 | 築37年 | 神奈川県横須賀市鶴が丘1丁目 | 詳細を見る | |
マンション タワービレッジ鷺沼(3LDK/3階) | |||||||
![]() | 11.8万円 1万円 | 11.8万円 23.6万円 | 3LDK 69.96m2 | 築32年 | グリーンライン 北山田駅(神奈川) 徒歩24分 東急田園都市線 宮崎台駅 徒歩27分 東急田園都市線 鷺沼駅 徒歩32分 神奈川県川崎市宮前区東有馬 | 詳細を見る | |








