賃貸マンション
CREST TAPP SHIN YOKOHAMAの賃貸物件情報(1K/2階)
| 家賃 | 管理費等 | 敷金 | 礼金 | 間取り | 専有面積 |
|---|---|---|---|---|---|
| 9.3万円 | 1万円 | なし | なし | 1K | 21.89m2 |
入居決定でお祝い金最大100,000円
- 保証金
- -
- 償却・敷引
- -
- 築年数
- 築2年
- 所在階
- 2階
- 向き
- 南東
Point
24時間ゴミ捨て可能!浴室乾燥・温水洗浄便座などの充実した設備搭載!オートロック・モニター付きインターホンなどの防犯設備も充実♪新横浜駅最寄りの設備充実♪
提供:センチュリー21(株)ヨコハマ地所(SUUMO経由)

詳細情報 CREST TAPP SHIN YOKOHAMA
物件紹介
CREST TAPP SHIN YOKOHAMAはブルーライン新横浜駅から徒歩8分にあり、駅近で通勤通学に便利なマンションです。
このお部屋は2階以上に位置しているので、通行人や周囲の住人からの視線が気になりにくく、防犯面でも安心。建物のエントランスはオートロックがついており、インターホンにはTVモニタもついているため、相手の顔を確認してから来客対応することができます。
人気の南向きのお部屋。また、フローリングなのでお掃除もラクラク。キッチンはシステムキッチン仕様になっていますので、お料理好きの方にもぴったり。バス・トイレは別なので、のんびりお風呂タイムも楽しめるでしょう。また、雨の日でも浴室乾燥機を使えば、お洗濯も問題ありません。
建物にはエレベーターがついているので、重い荷物があっても安心。共用部には宅配ボックスが設定されているので、不在の時にも荷物を受け取ることができます。また、ペット飼育の相談ができますので、あなたの大切な家族の一員も快適に暮らせるか、ぜひ確認してみてください。
このお部屋は2階以上に位置しているので、通行人や周囲の住人からの視線が気になりにくく、防犯面でも安心。建物のエントランスはオートロックがついており、インターホンにはTVモニタもついているため、相手の顔を確認してから来客対応することができます。
人気の南向きのお部屋。また、フローリングなのでお掃除もラクラク。キッチンはシステムキッチン仕様になっていますので、お料理好きの方にもぴったり。バス・トイレは別なので、のんびりお風呂タイムも楽しめるでしょう。また、雨の日でも浴室乾燥機を使えば、お洗濯も問題ありません。
建物にはエレベーターがついているので、重い荷物があっても安心。共用部には宅配ボックスが設定されているので、不在の時にも荷物を受け取ることができます。また、ペット飼育の相談ができますので、あなたの大切な家族の一員も快適に暮らせるか、ぜひ確認してみてください。
お金・契約の情報
※「-」と表示されているものは、実際は料金が発生するものもございます。詳細はお問い合わせください。
| 家賃 | 9.3万円 | 管理費・共益費 | 1万円 |
|---|---|---|---|
| 敷金 | なし | 礼金 | なし |
| 入居決定でお祝い金最大100,000円 | |||
| 保証金 | - | 償却・敷引 | - |
| 住宅保険料 | - | 更新料 | - |
| 保証会社利用 | 必須 | 保証会社名 | - |
| 保証会社費用 | - | 保証会社備考 | 保証会社利用必 初回総賃料の50%、年間1万円。 |
| 契約形態 | - | 契約期間 | - |
| 入居・引渡期間 | - | 現況 | - |
| 入居可能条件 | ペット相談 | ||
| 契約備考 | 合計1.1万円(内訳:契約事務手数料:11000円) 安心サポート:月額1100円 1K ペット相談 損保【2万円2年】 バストイレ別、バルコニー、エアコン、クロゼット、フローリング、TVインターホン、浴室乾燥機、オートロック、シューズボックス、システムキッチン、温水洗浄便座、エレベーター、洗面所独立、2口コンロ、駐輪場、宅配ボックス、防犯カメラ、ペット相談、分譲賃貸、駅まで平坦、ダブルロックキー、3沿線以上利用可、24時間ゴミ出し可、敷地内ごみ置き場、都市ガス 敷金積み増し【ペット飼育の場合敷金1ヶ月(総額)】 入居日:'26年4月中旬 | ||
部屋の情報
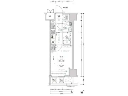
| 間取り | 1K | 専有面積 | 21.89m2 |
|---|---|---|---|
| 所在階 / 向き | 2階 / 南東 | バルコニー面積 | - |
| 水道 / ガス | - | ||
| 設備 | バス・トイレ別、2階以上、オートロック、テレビドアホン、宅配ボックス、浴室乾燥機、システムキッチン、エアコン、エレベーター、温水洗浄便座、南向き、バルコニー、フローリング、洗髪洗面化粧台、2口コンロ | ||
| 当社物件ID | 160297153 | ||
建物の情報
| 建物名 | CREST TAPP SHIN YOKOHAMA | ||
|---|---|---|---|
| 所在地 | 神奈川県横浜市港北区新横浜 | ||
| 交通 | ブルーライン 新横浜駅 徒歩8分 JR横浜線 小机駅 徒歩20分 ブルーライン 岸根公園駅 徒歩21分 | ||
| 階数 | 11階建 | 総戸数 | - |
| 築年月 | 2025年01月 / 築2年 | エレベーター | あり |
| 駐車場 | 近隣 150m17600円 | バイク置き場 | - |
| 駐輪場 | あり | 管理人/管理会社 | - |
| 周辺環境 | その他 紳士服コナカ新横浜岸根店(ショッピングセンター)まで561m その他 まいばすけっと新横浜1丁目店(スーパー)まで188m その他 まいばすけっと新横浜環状2号店(スーパー)まで295m その他 セブンイレブン野村不動産新横浜ビル店(コンビニ)まで512m その他 ファミリーマート新横浜店(コンビニ)まで659m その他 Fit Care Express DSM新横浜店(ドラッグストア)まで480m | ||
| 建物種別 | マンション | 建物構造 | RC(鉄筋コンクリート) |
この部屋の取扱い不動産会社
| 会社名 | センチュリー21(株)ヨコハマ地所(SUUMO経由) | ||
|---|---|---|---|
| 所在地 | 神奈川県横浜市港北区新横浜3-21-12 | 交通 | - |
| 営業時間 | AM9:30~PM6:30 | 定休日 | 水曜日 |
| 免許番号 | 神奈川県知事26950 | 取引態様 | 仲介 |
| 不動産会社管理番号 | 100485343792 | 当社管理番号 | 89 |
| 所属団体 | (公社)神奈川県宅地建物取引業協会会員 | ||
| 公正取引協議会 | (公社)首都圏不動産公正取引協議会加盟 | ||
| 取扱い物件情報 | 物件詳細へ | ||
※各種情報と現状に差異がある場合は、現状優先となります。問い合わせをすることで、より詳しい条件、情報を確認する事ができます。
提供:センチュリー21(株)ヨコハマ地所(SUUMO経由)
この物件が気になったら掲載期限まであと7日
CREST TAPP SHIN YOKOHAMAに条件(家賃・エリア)が近い物件一覧
| 写真 | 家賃 管理費等 | 敷金 礼金 | 間取り 専有面積 | 築年数 | 最寄り駅 所在地 | キープ | 詳細 |
|---|---|---|---|---|---|---|---|
アパート イーストライフ湘南B(2DK/2階) | |||||||
![]() | 7.4万円 2,000円 | 14.8万円 7.4万円 | 2DK 39.25m2 | 築32年 | JR東海道本線 藤沢駅 徒歩18分 神奈川県藤沢市弥勒寺 | 詳細を見る | |
アパート ベイルーム鷹取(1K/1階) | |||||||
![]() | 5.9万円 4,000円 | なし なし | 1K 20m2 | 築9年 | 京急本線 追浜駅 徒歩6分 京急逗子線 金沢八景駅 徒歩27分 シーサイドライン 金沢八景駅 徒歩27分 神奈川県横須賀市鷹取 | 詳細を見る | |
アパート 麻生区高石三丁目プロジェクト(1LDK/3階) | |||||||
![]() | 12.2万円 4,000円 | 12.2万円 12.2万円 | 1LDK 42.23m2 | 新築 | 小田急線 読売ランド前駅 徒歩4分 小田急線 百合ケ丘駅 徒歩12分 神奈川県川崎市麻生区高石 | 詳細を見る | |
マンション ライオンズマンション宮前平第8(2LDK/3階) | |||||||
![]() | 14万円 1万円 | 14万円 14万円 | 2LDK 66.84m2 | 築40年 | 東急田園都市線 宮前平駅 徒歩5分 東急田園都市線 鷺沼駅 徒歩14分 東急田園都市線 宮崎台駅 徒歩14分 神奈川県川崎市宮前区小台 | 詳細を見る | |
マンション マロンボナール(2LDK/4階) | |||||||
![]() | 11.1万円 4,000円 | 11.1万円 11.1万円 | 2LDK 57.28m2 | 築23年 | 京王相模原線 若葉台駅 徒歩8分 小田急多摩線 黒川駅(神奈川) 徒歩8分 小田急多摩線 はるひ野駅 徒歩12分 神奈川県川崎市麻生区黒川 | 詳細を見る | |
マンション 東横マンション(2K/1階) | |||||||
![]() | 6万円 なし | 6万円 なし | 2K 40.72m2 | 築59年 | 神奈川県横須賀市鴨居2丁目 | 詳細を見る | |
マンション 伊之崎ビル(2DK/3階) | |||||||
![]() | 9万円 5,000円 | 9万円 9万円 | 2DK 55.02m2 | 築32年 | 京急久里浜線 京急長沢駅 徒歩5分 京急久里浜線 YRP野比駅 徒歩17分 京急久里浜線 津久井浜駅 徒歩20分 神奈川県横須賀市長沢 | 詳細を見る | |
マンション 洋伸大倉山マンション(3LDK/3階) | |||||||
![]() | 13.8万円 5,000円 | 13.8万円 13.8万円 | 3LDK 72.45m2 | 築45年 | 東急東横線 大倉山駅(神奈川) 徒歩10分 JR横浜線 菊名駅 徒歩15分 ブルーライン 新横浜駅 徒歩19分 神奈川県横浜市港北区大倉山 | 詳細を見る | |









