賃貸マンション
ワコー第三マンションの賃貸物件情報(ワンルーム/7階)
| 家賃 | 管理費等 | 敷金 | 礼金 | 間取り | 専有面積 |
|---|---|---|---|---|---|
| 8.5万円 | 7,000円 | 8.5万円 | なし | ワンルーム | 34.56m2 |
入居決定でお祝い金最大100,000円
Point
共用部には宅配ボックスが備え付けられているため、非対面での荷物の受け取りが可能です。
提供:ハウスコム東東京株式会社 赤羽店

詳細情報 ワコー第三マンション
物件紹介
ワコー第三マンションは東京都三田線志村坂上駅から徒歩6分にあり、駅近で通勤通学に便利なマンションです。
このお部屋は2階以上に位置しているので、通行人や周囲の住人からの視線が気になりにくく、防犯面でも安心。建物のエントランスはオートロックがついており、インターホンにはTVモニタもついているため、相手の顔を確認してから来客対応することができます。
人気の角部屋で周囲の居住者の生活音も気になりにくく、また、フローリングのお部屋なのでお掃除もラクラク。キッチンはシステムキッチン仕様になっていますので、お料理好きの方にもぴったり。また、バス・トイレは別で、のんびりお風呂タイムも楽しめるでしょう。
通信設備面では、インターネット接続が可能です(別途工事、契約料が必要な場合あり)。
建物にはエレベーターがついているので、重い荷物があっても安心。共用部には宅配ボックスが設定されているので、不在の時にも荷物を受け取ることができます。
コンビニまで徒歩18分の場所にあり、日用品や食料品のお買い物にも便利です。
このお部屋は2階以上に位置しているので、通行人や周囲の住人からの視線が気になりにくく、防犯面でも安心。建物のエントランスはオートロックがついており、インターホンにはTVモニタもついているため、相手の顔を確認してから来客対応することができます。
人気の角部屋で周囲の居住者の生活音も気になりにくく、また、フローリングのお部屋なのでお掃除もラクラク。キッチンはシステムキッチン仕様になっていますので、お料理好きの方にもぴったり。また、バス・トイレは別で、のんびりお風呂タイムも楽しめるでしょう。
通信設備面では、インターネット接続が可能です(別途工事、契約料が必要な場合あり)。
建物にはエレベーターがついているので、重い荷物があっても安心。共用部には宅配ボックスが設定されているので、不在の時にも荷物を受け取ることができます。
コンビニまで徒歩18分の場所にあり、日用品や食料品のお買い物にも便利です。
お金・契約の情報
※「-」と表示されているものは、実際は料金が発生するものもございます。詳細はお問い合わせください。
| 家賃 | 8.5万円 | 管理費・共益費 | 7,000円 |
|---|---|---|---|
| 敷金 | 8.5万円 | 礼金 | なし |
| 入居決定でお祝い金最大100,000円 | |||
| 保証金 | - | 償却・敷引 | - |
| 住宅保険料 | 1円 | 更新料 | - |
| 保証会社利用 | 必須 | 保証会社名 | - |
| 保証会社費用 | - | 保証会社備考 | 賃料等の60%、更新時:20000円、事務手数料月額賃料等の1.3% |
| 契約形態 | - | 契約期間 | 2年 |
| 入居・引渡期間 | 相談 | 現況 | - |
| 契約備考 | 2年未満解約時賃料1ヵ月分の違約金あり 再契約相談可(新賃料1か月分) 月額(コンシェルジュ24 1100円) 鍵交換費用:29700 その他設備/条件:室内洗濯機置き場、防犯カメラ、クローゼット、シューズボックス | ||
部屋の情報
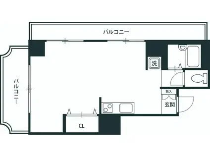
| 間取り | ワンルーム | 専有面積 | 34.56m2 |
|---|---|---|---|
| 所在階 / 向き | 7階 / 北西 | バルコニー面積 | - |
| 水道 / ガス | 水道【公営】、ガス【都市】 | ||
| 設備 | バス・トイレ別、オートロック、テレビドアホン、宅配ボックス、光ファイバー対応、システムキッチン、エアコン、エレベーター、温水洗浄便座、バルコニー、フローリング、2口コンロ、コンロ:ガス、給湯 | ||
| 当社物件ID | 94138491 | ||
建物の情報
| 建物名 | ワコー第三マンション | ||
|---|---|---|---|
| 所在地 | 東京都板橋区小豆沢3丁目 | ||
| 交通 | 東京都三田線 志村坂上駅 徒歩6分 東京都三田線 志村三丁目駅 徒歩11分 | ||
| 階数 | 13階建 | 総戸数 | - |
| 築年月 | 1975年03月 / 築51年 | エレベーター | あり |
| 駐車場 | - | バイク置き場 | - |
| 駐輪場 | - | 管理人/管理会社 | - |
| 周辺環境 | コンビニ 徒歩18分(1398m) 販売店 徒歩13分(980m) その他 ドラッグストア その他 公園 その他 銀行 その他 * | ||
| 建物種別 | マンション | 建物構造 | SRC(鉄骨鉄筋コンクリート) |
この部屋の取扱い不動産会社
| 会社名 | ハウスコム東東京株式会社 高田馬場店 | ||
|---|---|---|---|
| 所在地 | 東京都新宿区17-18マルシメビル1階 | 交通 | - |
| 営業時間 | 10:00~18:00 | 定休日 | 水曜定休 |
| 免許番号 | 東京都知事(1)第108283号 | 取引態様 | 仲介 |
| 不動産会社管理番号 | HC2-649821-712-0227 | 当社管理番号 | 468 |
| 所属団体 | 、 | ||
| 取扱い物件情報 | 物件詳細へ | ||
※各種情報と現状に差異がある場合は、現状優先となります。問い合わせをすることで、より詳しい条件、情報を確認する事ができます。
提供:ハウスコム東東京株式会社 高田馬場店
この物件が気になったら掲載期限まであと4日
ワコー第三マンションに条件(家賃・エリア)が近い物件一覧
| 写真 | 家賃 管理費等 | 敷金 礼金 | 間取り 専有面積 | 築年数 | 最寄り駅 所在地 | キープ | 詳細 |
|---|---|---|---|---|---|---|---|
アパート ツカモトハウス(2K/2階) | |||||||
![]() | 6.8万円 2,000円 | 6.8万円 なし | 2K 30.78m2 | 築30年 | 西武池袋線 大泉学園駅 徒歩15分 西武池袋線 保谷駅 徒歩25分 東京都練馬区大泉学園町 | 詳細を見る | |
アパート 日ノ出ハイツ(ワンルーム/3階) | |||||||
![]() | 5.4万円 3,000円 | 5.4万円 5.4万円 | ワンルーム 28m2 | 築39年 | 都営三田線 板橋本町駅 徒歩7分 東武東上線 中板橋駅 徒歩13分 東京都板橋区双葉町 | 詳細を見る | |
アパート コルティーレ十条(ワンルーム/1階) | |||||||
![]() | 7.6万円 2,000円 | 7.6万円 7.6万円 | ワンルーム 20.54m2 | 築10年 | JR埼京線 十条駅(東京) 徒歩11分 都営三田線 板橋本町駅 徒歩12分 JR京浜東北線 東十条駅 徒歩18分 東京都板橋区稲荷台 | 詳細を見る | |
アパート レオネクスト小関2(1K/2階) | |||||||
![]() | 8.5万円 5,500円 | なし 8.5万円 | 1K 28.66m2 | 築14年 | 西武新宿線 武蔵関駅 徒歩8分 東京都練馬区石神井台 | 詳細を見る | |
アパート ピュアハウス(3K/1階) | |||||||
![]() | 11万円 なし | 11万円 11万円 | 3K 50.1m2 | 築34年 | 西武池袋線 中村橋駅 徒歩6分 西武池袋線 富士見台駅 徒歩9分 西武豊島線 豊島園駅 徒歩23分 東京都練馬区貫井 | 詳細を見る | |
マンション ARKMARK志茂STA(2K/9階) | |||||||
![]() | 10.7万円 1.8万円 | なし なし | 2K 25.57m2 | 築5年 | 東京地下鉄南北線 志茂駅 徒歩1分 東京都北区志茂2丁目 | 詳細を見る | |
マンション COCOFLAT雑司が谷(ワンルーム/2階) | |||||||
![]() | 8.8万円 5,000円 | 8.8万円 なし | ワンルーム 18m2 | 築1年 | 東京メトロ副都心線 雑司が谷駅(東京メトロ) 徒歩5分 東京メトロ有楽町線 護国寺駅 徒歩14分 JR山手線 目白駅 徒歩16分 東京都豊島区雑司が谷 | 詳細を見る | |
マンション ミスティル志村坂上(1K/4階) | |||||||
![]() | 8.25万円 5,000円 | なし なし | 1K 20.63m2 | 築1年 | 東京都三田線 志村坂上駅 徒歩10分 埼京線 北赤羽駅 徒歩15分 東京都板橋区小豆沢2丁目 | 詳細を見る | |









