賃貸マンション
アークシティの賃貸物件情報(2DK/2階)
| 家賃 | 管理費等 | 敷金 | 礼金 | 間取り | 専有面積 |
|---|---|---|---|---|---|
| 13万円 | 9,000円 | 13万円 | 13万円 | 2DK | 56m2 |
入居決定でお祝い金最大100,000円
Point
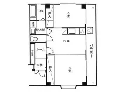
忙しい朝でも鏡を見ながらサッと身支度を整えられる独立洗面台があります。収納はシューズボックス・押入など豊富なので、衣類や履き物の整理がしやすく便利です。大量の洗濯物もバルコニーで解決。
提供:ハウス・トゥ・ハウス・ネットサービス(株)板橋店(SUUMO経由)

詳細情報 アークシティ
物件紹介
アークシティはJR埼京線浮間舟渡駅から徒歩8分にあり、駅近で通勤通学に便利なマンションです。
このお部屋は2階以上に位置しているので、通行人や周囲の住人からの視線が気になりにくく、防犯面でも安心です。
人気の角部屋で周囲の居住者の生活音も気になりにくく、また、フローリングのお部屋なのでお掃除もラクラク。キッチンはシステムキッチン仕様になっていますので、お料理好きの方にもぴったり。また、バス・トイレは別で、のんびりお風呂タイムも楽しめるでしょう。
通信設備面では、インターネット接続が可能です(別途工事、契約料が必要な場合あり)。
このお部屋は2階以上に位置しているので、通行人や周囲の住人からの視線が気になりにくく、防犯面でも安心です。
人気の角部屋で周囲の居住者の生活音も気になりにくく、また、フローリングのお部屋なのでお掃除もラクラク。キッチンはシステムキッチン仕様になっていますので、お料理好きの方にもぴったり。また、バス・トイレは別で、のんびりお風呂タイムも楽しめるでしょう。
通信設備面では、インターネット接続が可能です(別途工事、契約料が必要な場合あり)。
お金・契約の情報
※「-」と表示されているものは、実際は料金が発生するものもございます。詳細はお問い合わせください。
| 家賃 | 13万円 | 管理費・共益費 | 9,000円 |
|---|---|---|---|
| 敷金 | 13万円 | 礼金 | 13万円 |
| 入居決定でお祝い金最大100,000円 | |||
| 保証金 | - | 償却・敷引 | - |
| 住宅保険料 | - | 更新料 | - |
| 保証会社利用 | 必須 | 保証会社名 | - |
| 保証会社費用 | - | 保証会社備考 | 保証会社利用必 初回保証料50% |
| 契約形態 | - | 契約期間 | - |
| 入居・引渡期間 | 即時 | 現況 | - |
| 入居可能条件 | 事務所可 | ||
| 契約備考 | 短期解約違約金あり/退去時に清掃費代等の負担あり/更新事務手数料11000円/掲載情報と現況が異なる場合は、現況を優先とします。 合計4.4万円(内訳:管理登録料1.1万円鍵交換代3.3万円) 緊急ダイヤル 月額1500円 2DK 事務所利用相談 普通借家2年 損保【2万円2年】 バストイレ別、バルコニー、エアコン、フローリング、室内洗濯置、シューズボックス、システムキッチン、角住戸、脱衣所、洗面所独立、洗面化粧台、押入、全居室フローリング、2沿線利用可、事務所相談、エアコン3台、2駅利用可、3駅以上利用可、IT重説対応物件 | ||
部屋の情報
| 間取り | 2DK | 専有面積 | 56m2 |
|---|---|---|---|
| 所在階 / 向き | 2階 / 東 | バルコニー面積 | 11m2 |
| 水道 / ガス | - | ||
| 設備 | バス・トイレ別、2階以上、システムキッチン、エアコン、角部屋、バルコニー、フローリング、洗髪洗面化粧台、洗濯機:室内 | ||
| 当社物件ID | 6962339 | ||
建物の情報
| 建物名 | アークシティ | ||
|---|---|---|---|
| 所在地 | 東京都板橋区舟渡 | ||
| 交通 | JR埼京線 浮間舟渡駅 徒歩8分 都営三田線 蓮根駅 徒歩19分 都営三田線 西台駅 徒歩22分 | ||
| 階数 | 3階建 | 総戸数 | - |
| 築年月 | 1995年03月 / 築32年 | エレベーター | - |
| 駐車場 | なし | バイク置き場 | - |
| 駐輪場 | - | 管理人/管理会社 | - |
| 周辺環境 | その他 BeLX(ベルクス) 浮間舟渡店(スーパー)まで216m その他 maruetsu(マルエツ) 浮間舟渡店(スーパー)まで601m その他 Olympicおりーぶ志村坂下店(スーパー)まで1012m その他 ファミリーマート 板橋舟渡三丁目店(コンビニ)まで81m その他 都立浮間公園(公園)まで731m その他 板橋中央総合病院付属iタワークリニック(病院)まで593m | ||
| 建物種別 | マンション | 建物構造 | 鉄骨造 |
この部屋の取扱い不動産会社
| 会社名 | ハウス・トゥ・ハウス・ネットサービス(株)板橋桜通り店(SUUMO経由) | ||
|---|---|---|---|
| 所在地 | 東京都北区滝野川7-8-10第二城北ビル | 交通 | - |
| 営業時間 | 10:00~18:30 | 定休日 | 水曜日 |
| 免許番号 | 国土交通大臣7400 | 取引態様 | 仲介 |
| 不動産会社管理番号 | 100482804236 | 当社管理番号 | 89 |
| 所属団体 | (公社)全日本不動産協会東京都本部会員 | ||
| 公正取引協議会 | (公社)首都圏不動産公正取引協議会加盟 | ||
| 取扱い物件情報 | 物件詳細へ | ||
※各種情報と現状に差異がある場合は、現状優先となります。問い合わせをすることで、より詳しい条件、情報を確認する事ができます。
提供:ハウス・トゥ・ハウス・ネットサービス(株)板橋桜通り店(SUUMO経由)
この物件が気になったら掲載期限まであと11日
アークシティに条件(家賃・エリア)が近い物件一覧
| 写真 | 家賃 管理費等 | 敷金 礼金 | 間取り 専有面積 | 築年数 | 最寄り駅 所在地 | キープ | 詳細 |
|---|---|---|---|---|---|---|---|
マンション アクシルコート桜台(ワンルーム/7階) | |||||||
![]() | 7.8万円 8,000円 | 7.8万円 7.8万円 | ワンルーム 22.2m2 | 築36年 | 西武池袋線 桜台駅(東京) 徒歩1分 西武有楽町線 新桜台駅 徒歩10分 都営大江戸線 練馬駅 徒歩10分 東京都練馬区桜台 | 詳細を見る | |
マンション アイル グランデ赤羽(1LDK/3階) | |||||||
![]() | 13.9万円 2.5万円 | 13.9万円 13.9万円 | 1LDK 34.14m2 | 築1年 | JR京浜東北線 赤羽駅 徒歩8分 東京メトロ南北線 志茂駅 徒歩8分 JR京浜東北線 東十条駅 徒歩22分 東京都北区志茂 | 詳細を見る | |
マンション プライムガーデン若木(2LDK/5階) | |||||||
![]() | 18.9万円 2万円 | なし なし | 2LDK 55.54m2 | 築3年 | 東武鉄道東上線 東武練馬駅 徒歩10分 東武鉄道東上線 上板橋駅 徒歩13分 東京都板橋区若木1丁目 | 詳細を見る | |
マンション ARCOBALENO HASUNE I(1DK/4階) | |||||||
![]() | 9.95万円 1.5万円 | なし 4.98万円 | 1DK 25.95m2 | 築1年 | 都営三田線 蓮根駅 徒歩10分 都営三田線 志村三丁目駅 徒歩16分 JR埼京線 浮間舟渡駅 徒歩18分 東京都板橋区東坂下 | 詳細を見る | |
マンション SYFORME東池袋(2K/1階) | |||||||
![]() | 13.5万円 1万円 | なし なし | 2K 25.43m2 | 築4年 | 東京メトロ有楽町線 東池袋駅 徒歩4分 東京メトロ丸ノ内線 新大塚駅 徒歩10分 JR山手線 池袋駅 徒歩15分 東京都豊島区東池袋 | 詳細を見る | |
マンション リヴェール・バレ(2LDK/2階) | |||||||
![]() | 13.4万円 4,000円 | 26.8万円 13.4万円 | 2LDK 55.08m2 | 築26年 | 西武鉄道新宿線 武蔵関駅 徒歩10分 東京都練馬区関町南3丁目 | 詳細を見る | |
マンション VIENTO DE SENKAWA(1LDK/3階) | |||||||
![]() | 17.6万円 8,000円 | 17.6万円 21.12万円 | 1LDK 45.3m2 | 築4年 | 東京メトロ副都心線 千川駅 徒歩2分 東京メトロ有楽町線 要町駅 徒歩14分 西武池袋線 東長崎駅 徒歩17分 東京都豊島区要町 | 詳細を見る | |
マンション アクシス池袋(1K/4階) | |||||||
![]() | 12万円 1.5万円 | 12万円 12万円 | 1K 34.43m2 | 築13年 | JR山手線 池袋駅 徒歩8分 東京メトロ丸ノ内線 池袋駅 徒歩8分 東京都豊島区東池袋 | 詳細を見る | |








