賃貸マンション
メイクス矢場町の賃貸物件情報(1K/5階)
| 家賃 | 管理費等 | 敷金 | 礼金 | 間取り | 専有面積 |
|---|---|---|---|---|---|
| 5.95万円 | 8,000円 | なし | なし | 1K | 21.66m2 |
入居決定でお祝い金最大100,000円
- 保証金
- -
- 償却・敷引
- -
- 築年数
- 築6年
- 所在階
- 5階
- 向き
- 北
Point
ペット飼育可!ペット飼育時、敷金1ヶ月になります。
提供:(株)ニッショー栄支店(SUUMO経由)

詳細情報 メイクス矢場町
物件紹介
メイクス矢場町は地下鉄名城線矢場町駅から徒歩9分にあり、駅近で通勤通学に便利なマンションです。
このお部屋は2階以上に位置しているので、通行人や周囲の住人からの視線が気になりにくく、防犯面でも安心。建物のエントランスはオートロックがついており、インターホンにはTVモニタもついているため、相手の顔を確認してから来客対応することができます。
こちらは楽器相談が可能な物件。楽器演奏をお考えの方はぜひ相談してみてください。フローリングのお部屋なのでお掃除もラクラク。キッチンはシステムキッチン仕様になっていますので、お料理好きの方にもぴったり。バス・トイレは別なので、のんびりお風呂タイムも楽しめるでしょう。また、雨の日でも浴室乾燥機を使えば、お洗濯も問題ありません。
通信設備面では、インターネットが無料で使えるので、月々の出費を抑えられるのも魅力です。また、BSアンテナ・CSアンテナもありますので、おうち時間も充実するでしょう(別途工事、BS・CSの契約料等が必要な場合あり)。
建物にはエレベーターがついているので、重い荷物があっても安心。共用部には宅配ボックスが設定されているので、不在の時にも荷物を受け取ることができます。また、ペット飼育の相談ができますので、あなたの大切な家族の一員も快適に暮らせるか、ぜひ確認してみてください。
このお部屋は2階以上に位置しているので、通行人や周囲の住人からの視線が気になりにくく、防犯面でも安心。建物のエントランスはオートロックがついており、インターホンにはTVモニタもついているため、相手の顔を確認してから来客対応することができます。
こちらは楽器相談が可能な物件。楽器演奏をお考えの方はぜひ相談してみてください。フローリングのお部屋なのでお掃除もラクラク。キッチンはシステムキッチン仕様になっていますので、お料理好きの方にもぴったり。バス・トイレは別なので、のんびりお風呂タイムも楽しめるでしょう。また、雨の日でも浴室乾燥機を使えば、お洗濯も問題ありません。
通信設備面では、インターネットが無料で使えるので、月々の出費を抑えられるのも魅力です。また、BSアンテナ・CSアンテナもありますので、おうち時間も充実するでしょう(別途工事、BS・CSの契約料等が必要な場合あり)。
建物にはエレベーターがついているので、重い荷物があっても安心。共用部には宅配ボックスが設定されているので、不在の時にも荷物を受け取ることができます。また、ペット飼育の相談ができますので、あなたの大切な家族の一員も快適に暮らせるか、ぜひ確認してみてください。
お金・契約の情報
※「-」と表示されているものは、実際は料金が発生するものもございます。詳細はお問い合わせください。
| 家賃 | 5.95万円 | 管理費・共益費 | 8,000円 |
|---|---|---|---|
| 敷金 | なし | 礼金 | なし |
| 入居決定でお祝い金最大100,000円 | |||
| 保証金 | - | 償却・敷引 | - |
| 住宅保険料 | - | 更新料 | - |
| 保証会社利用 | 必須 | 保証会社名 | - |
| 保証会社費用 | - | 保証会社備考 | 保証会社利用必 初回保証料月額総賃料の50%。更新料10,000円/年。 |
| 契約形態 | - | 契約期間 | - |
| 入居・引渡期間 | - | 現況 | - |
| 入居可能条件 | ペット相談 | ||
| 契約備考 | 巡回管理/駐車場の空き状況は別途お問い合わせ下さい。 合計2.95万円(内訳:駐輪場(初回登録料)2000円/鍵交換費用27500円) 安心入居サポート2200円/月 1K 単身者可/ペット相談 普通借家2年 損保【要】 バストイレ別、バルコニー、エアコン、ガスコンロ対応、クロゼット、フローリング、TVインターホン、浴室乾燥機、オートロック、室内洗濯置、シューズボックス、システムキッチン、温水洗浄便座、脱衣所、エレベーター、洗面所独立、洗面化粧台、2口コンロ、駐輪場、宅配ボックス、光ファイバー、防犯カメラ、ペット相談、保証人不要、バイク置場、全居室フローリング、ネット使用料不要、3駅以上利用可、3沿線以上利用可、駅徒歩10分以内、都市ガス、洗面所にドア、縦型照明付洗面化粧台、敷金・礼金不要、初期費用カード決済可 入居日:'26年2月中旬 | ||
部屋の情報
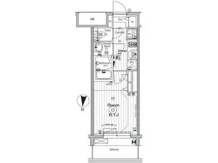
| 間取り | 1K | 専有面積 | 21.66m2 |
|---|---|---|---|
| 所在階 / 向き | 5階 / 北 | バルコニー面積 | - |
| 水道 / ガス | - | ||
| 設備 | バス・トイレ別、2階以上、オートロック、テレビドアホン、宅配ボックス、浴室乾燥機、インターネット対応、システムキッチン、エアコン、エレベーター、温水洗浄便座、バルコニー、フローリング、洗髪洗面化粧台、2口コンロ、コンロ:ガス、インターネット使用料無料、洗濯機:室内 | ||
| 当社物件ID | 46444771 | ||
建物の情報
| 建物名 | メイクス矢場町 | ||
|---|---|---|---|
| 所在地 | 愛知県名古屋市中区新栄 | ||
| 交通 | 地下鉄名城線 矢場町駅 徒歩9分 地下鉄東山線 新栄町駅(愛知) 徒歩13分 地下鉄鶴舞線 鶴舞駅 徒歩13分 | ||
| 階数 | 12階建 | 総戸数 | 77戸 |
| 築年月 | 2020年12月 / 築6年 | エレベーター | あり |
| 駐車場 | 近隣 100m20000円 | バイク置き場 | あり |
| 駐輪場 | あり | 管理人/管理会社 | - |
| 周辺環境 | その他 バロー 新栄店(スーパー)まで509m その他 ファミリーマート 新栄一丁目店(コンビニ)まで216m その他 スギ薬局 東新町店(ドラッグストア)まで694m その他 東急ハンズ ANNEX(アネックス)店(ホームセンター)まで1784m その他 名古屋東陽町郵便局(郵便局)まで299m その他 勝又病院(病院)まで245m | ||
| 建物種別 | マンション | 建物構造 | RC(鉄筋コンクリート) |
この部屋の取扱い不動産会社
| 会社名 | スタイルエステート北支店(株)エムホームエステート(SUUMO経由) | ||
|---|---|---|---|
| 所在地 | 愛知県名古屋市東区矢田1-1-15 メイフィス大曽根ビル | 交通 | - |
| 営業時間 | 10:00~19:00 1~3月は20時 | 定休日 | - |
| 免許番号 | 愛知県知事22094 | 取引態様 | 仲介 |
| 不動産会社管理番号 | 100476173333 | 当社管理番号 | 89 |
| 所属団体 | (公社)愛知県宅地建物取引業協会会員 | ||
| 公正取引協議会 | 東海不動産公正取引協議会加盟 | ||
| 取扱い物件情報 | 物件詳細へ | ||
※各種情報と現状に差異がある場合は、現状優先となります。問い合わせをすることで、より詳しい条件、情報を確認する事ができます。
提供:スタイルエステート北支店(株)エムホームエステート(SUUMO経由)
この物件が気になったら掲載期限まであと10日
メイクス矢場町に条件(家賃・エリア)が近い物件一覧
| 写真 | 家賃 管理費等 | 敷金 礼金 | 間取り 専有面積 | 築年数 | 最寄り駅 所在地 | キープ | 詳細 |
|---|---|---|---|---|---|---|---|
マンション S-RESIDENCE上前津サウス(1K/6階) | |||||||
![]() | 6.2万円 8,000円 | なし なし | 1K 23.04m2 | 築3年 | 名古屋市鶴舞線 上前津駅 徒歩7分 名古屋市名城線 東別院駅 徒歩10分 名古屋市鶴舞線 大須観音駅 徒歩13分 愛知県名古屋市中区橘1丁目 | 詳細を見る | |
マンション プレサンス東別院駅前Ⅱ(1K/2階) | |||||||
![]() | 6.131万円 7,670円 | なし なし | 1K 23.5m2 | 築5年 | 名古屋市名城線 東別院駅 徒歩2分 愛知県名古屋市中区伊勢山1丁目 | 詳細を見る | |
マンション プレサンス久屋大通公園サウス(1LDK/11階) | |||||||
![]() | 8.61万円 1.591万円 | なし 5.1万円 | 1LDK 40.92m2 | 築20年 | 地下鉄鶴舞線 上前津駅 徒歩7分 地下鉄鶴舞線 鶴舞駅 徒歩10分 地下鉄名城線 矢場町駅 徒歩12分 愛知県名古屋市中区千代田 | 詳細を見る | |
マンション プレサンス上前津オレシア(1K/11階) | |||||||
![]() | 6.45万円 7,520円 | なし 6.45万円 | 1K 24.66m2 | 築1年 | 名古屋市鶴舞線 上前津駅 徒歩3分 愛知県名古屋市中区上前津1丁目 | 詳細を見る | |
マンション エステムコート名古屋新栄Ⅴラポール(1DK/3階) | |||||||
![]() | 7.85万円 5,880円 | なし なし | 1DK 28.6m2 | 築2年 | 名古屋市東山線 新栄町駅(愛知) 徒歩5分 名古屋市桜通線 高岳駅 徒歩12分 中央本線 千種駅 徒歩13分 愛知県名古屋市中区新栄2丁目 | 詳細を見る | |
マンション プレサンスSAKAEフロント(1K/12階) | |||||||
![]() | 6.17万円 7,330円 | なし 6.9万円 | 1K 22.21m2 | 築6年 | 地下鉄名城線 矢場町駅 徒歩4分 地下鉄東山線 栄駅(名古屋) 徒歩9分 名鉄瀬戸線 栄町駅(愛知) 徒歩11分 愛知県名古屋市中区栄 | 詳細を見る | |
マンション エステムコート名古屋新栄Ⅱアリーナ(1LDK/12階) | |||||||
![]() | 8.4万円 1.28万円 | なし なし | 1LDK 31.62m2 | 築7年 | 中央本線 鶴舞駅 徒歩9分 名古屋市名城線 矢場町駅 徒歩9分 名古屋市東山線 新栄町駅(愛知) 徒歩10分 愛知県名古屋市中区新栄2丁目 | 詳細を見る | |
アパート ハーモニーテラス栄イースト(1K/2階) | |||||||
![]() | 5.95万円 4,000円 | なし 5.95万円 | 1K 21.34m2 | 築9年 | 地下鉄東山線 新栄町駅(愛知) 徒歩10分 JR中央本線 鶴舞駅 徒歩12分 地下鉄名城線 矢場町駅 徒歩13分 愛知県名古屋市中区新栄 | 詳細を見る | |




/105x80-f1-q70-wp1)



