賃貸マンション
メイクス矢場町の賃貸物件情報(1K/8階)
| 家賃 | 管理費等 | 敷金 | 礼金 | 間取り | 専有面積 |
|---|---|---|---|---|---|
| 6.15万円 | 8,000円 | なし | なし | 1K | 22.23m2 |
入居決定でお祝い金最大100,000円
- 保証金
- -
- 償却・敷引
- -
- 築年数
- 築6年
- 所在階
- 8階
- 向き
- 南
Point
名古屋のお部屋探しは「ゴールドエステート」へ。地域密着で、理想の新生活をしっかりサポート。デザイナーズ・高級賃貸・初めての一人暮らしまで幅広くご提案します。
提供:(株)ゴールドエステート金山支店(SUUMO経由)

詳細情報 メイクス矢場町
物件紹介
メイクス矢場町は地下鉄名城線矢場町駅から徒歩9分にあり、駅近で通勤通学に便利なマンションです。
このお部屋は2階以上に位置しているので、通行人や周囲の住人からの視線が気になりにくく、防犯面でも安心。建物のエントランスはオートロックがついており、インターホンにはTVモニタもついているため、相手の顔を確認してから来客対応することができます。
おしゃれなデザイナーズ物件!また、楽器相談が可能な物件となっているので、楽器演奏をお考えの方はぜひ相談してみてください。人気の南向きのお部屋。また、フローリングなのでお掃除もラクラク。キッチンはシステムキッチン仕様になっていますので、お料理好きの方にもぴったり。バス・トイレは別なので、のんびりお風呂タイムも楽しめるでしょう。また、雨の日でも浴室乾燥機を使えば、お洗濯も問題ありません。
通信設備面では、インターネットが無料で使えるので、月々の出費を抑えられるのも魅力です。また、BSアンテナ・CSアンテナがありCATVにも対応しているので、おうち時間も充実するでしょう(別途工事、BS・CS・CATVの契約料等が必要な場合あり)。
建物にはエレベーターがついているので、重い荷物があっても安心。共用部には宅配ボックスが設定されているので、不在の時にも荷物を受け取ることができます。
このお部屋は2階以上に位置しているので、通行人や周囲の住人からの視線が気になりにくく、防犯面でも安心。建物のエントランスはオートロックがついており、インターホンにはTVモニタもついているため、相手の顔を確認してから来客対応することができます。
おしゃれなデザイナーズ物件!また、楽器相談が可能な物件となっているので、楽器演奏をお考えの方はぜひ相談してみてください。人気の南向きのお部屋。また、フローリングなのでお掃除もラクラク。キッチンはシステムキッチン仕様になっていますので、お料理好きの方にもぴったり。バス・トイレは別なので、のんびりお風呂タイムも楽しめるでしょう。また、雨の日でも浴室乾燥機を使えば、お洗濯も問題ありません。
通信設備面では、インターネットが無料で使えるので、月々の出費を抑えられるのも魅力です。また、BSアンテナ・CSアンテナがありCATVにも対応しているので、おうち時間も充実するでしょう(別途工事、BS・CS・CATVの契約料等が必要な場合あり)。
建物にはエレベーターがついているので、重い荷物があっても安心。共用部には宅配ボックスが設定されているので、不在の時にも荷物を受け取ることができます。
お金・契約の情報
※「-」と表示されているものは、実際は料金が発生するものもございます。詳細はお問い合わせください。
| 家賃 | 6.15万円 | 管理費・共益費 | 8,000円 |
|---|---|---|---|
| 敷金 | なし | 礼金 | なし |
| 入居決定でお祝い金最大100,000円 | |||
| 保証金 | - | 償却・敷引 | - |
| 住宅保険料 | - | 更新料 | - |
| 保証会社利用 | 必須 | 保証会社名 | - |
| 保証会社費用 | - | 保証会社備考 | 保証会社利用必 保証会社利用必須 (1)にじいろインシュア 50% 決済サービス料550円/月+月次保証料:月額賃料の1%(1%が1000円に満たない場合は一律で1000円)※継続保証料(年払い)は無し (2)オリコフォレントインシュア 50% 支払手数料:月額賃料の1% ※継続保証料(年払い)は無し (3)K-net 50% 決済サービス料550円/月+年間保証料1万円 個人契約の場合利用必須 |
| 契約形態 | - | 契約期間 | - |
| 入居・引渡期間 | 即時 | 現況 | - |
| 入居可能条件 | 楽器相談 | ||
| 契約備考 | プロマーケット新栄店まで318m/ファミリーマート新栄一丁目店まで253m 合計3.3万円(内訳:鍵交換費用(必須)契約時33000円(税込)) 安心入居サポート(必須)月額2200円(税込)※2200円(税込)に火災保険と同等のサービス内容が含まれますので、火災保険のご加入は不要です。★退去時ルームクリーニング費用44000円(税込)★退去時エアコンクリーニング費用16500円(税込)/台 1K 楽器相談 バストイレ別、バルコニー、エアコン、ガスコンロ対応、クロゼット、フローリング、TVインターホン、浴室乾燥機、オートロック、室内洗濯置、陽当り良好、シューズボックス、システムキッチン、南向き、温水洗浄便座、脱衣所、エレベーター、洗面所独立、2口コンロ、駐輪場、宅配ボックス、CATV、光ファイバー、即入居可、礼金不要、BS・CS、敷金不要、防犯カメラ、保証人不要、バイク置場、デザイナーズ、2沿線利用可、CS、ネット専用回線、ネット使用料不要、眺望良好、全室南向き、南面リビング、2駅利用可、3駅以上利用可、3沿線以上利用可、駅徒歩10分以内、24時間ゴミ出し可、敷地内ごみ置き場、平面駐車場、都市ガス、南面バルコニー、BS、高速ネット対応、LAN、敷金・礼金不要、保証会社利用可、IT重説対応物件、通風良好 | ||
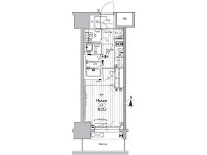
部屋の情報
| 間取り | 1K | 専有面積 | 22.23m2 |
|---|---|---|---|
| 所在階 / 向き | 8階 / 南 | バルコニー面積 | - |
| 水道 / ガス | - | ||
| 設備 | バス・トイレ別、2階以上、オートロック、テレビドアホン、宅配ボックス、浴室乾燥機、インターネット対応、システムキッチン、エアコン、エレベーター、温水洗浄便座、南向き、バルコニー、フローリング、洗髪洗面化粧台、2口コンロ、コンロ:ガス、デザイナーズ、CATV、CSアンテナ、BSアンテナ、インターネット使用料無料、洗濯機:室内 | ||
| 当社物件ID | 46452218 | ||
建物の情報
| 建物名 | メイクス矢場町 | ||
|---|---|---|---|
| 所在地 | 愛知県名古屋市中区新栄 | ||
| 交通 | 地下鉄名城線 矢場町駅 徒歩9分 地下鉄東山線 新栄町駅(愛知) 徒歩11分 地下鉄鶴舞線 鶴舞駅 徒歩15分 | ||
| 階数 | 12階建 | 総戸数 | 77戸 |
| 築年月 | 2020年12月 / 築6年 | エレベーター | あり |
| 駐車場 | なし | バイク置き場 | あり |
| 駐輪場 | あり | 管理人/管理会社 | - |
| 周辺環境 | その他 プロマーケット新栄店(スーパー)まで318m その他 ファミリーマート新栄一丁目店(コンビニ)まで253m | ||
| 建物種別 | マンション | 建物構造 | RC(鉄筋コンクリート) |
この部屋の取扱い不動産会社
| 会社名 | (株)ゴールドエステート金山支店(SUUMO経由) | ||
|---|---|---|---|
| 所在地 | 愛知県名古屋市中区金山2-6-14 HATビル1階 | 交通 | - |
| 営業時間 | 10:00~19:00 | 定休日 | なし |
| 免許番号 | 愛知県知事26184 | 取引態様 | 仲介 |
| 不動産会社管理番号 | 100472234623 | 当社管理番号 | 89 |
| 所属団体 | (公社)全日本不動産協会愛知県本部会員 | ||
| 公正取引協議会 | 東海不動産公正取引協議会加盟 | ||
| 取扱い物件情報 | 物件詳細へ | ||
※各種情報と現状に差異がある場合は、現状優先となります。問い合わせをすることで、より詳しい条件、情報を確認する事ができます。
提供:(株)ゴールドエステート金山支店(SUUMO経由)
この物件が気になったら掲載期限まであと8日
メイクス矢場町の空き部屋一覧
全部で23の空き部屋があります。
メイクス矢場町に条件(家賃・エリア)が近い物件一覧
| 写真 | 家賃 管理費等 | 敷金 礼金 | 間取り 専有面積 | 築年数 | 最寄り駅 所在地 | キープ | 詳細 |
|---|---|---|---|---|---|---|---|
マンション メゾンドエトワール(ワンルーム/6階) | |||||||
![]() | 4.2万円 6,000円 | なし なし | ワンルーム 21m2 | 築37年 | 名古屋市東山線 栄駅(名古屋) 徒歩10分 愛知県名古屋市中区栄三丁目20番20号 | 詳細を見る | |
マンション プレサンスTHE新栄(1K/13階) | |||||||
![]() | 6.17万円 6,390円 | なし 6.8万円 | 1K 22.8m2 | 築5年 | 地下鉄東山線 新栄町駅(愛知) 徒歩4分 JR中央本線 千種駅 徒歩11分 地下鉄桜通線 車道駅 徒歩13分 愛知県名古屋市中区新栄 | 詳細を見る | |
マンション 千種アヴァンギャルドプレイス(1K/2階) | |||||||
![]() | 7.5万円 7,000円 | なし なし | 1K 30m2 | 築9年 | 地下鉄鶴舞線 鶴舞駅 徒歩9分 JR中央本線 千種駅 徒歩15分 地下鉄東山線 新栄町駅(愛知) 徒歩15分 愛知県名古屋市中区新栄 | 詳細を見る | |
マンション GRANVIA丸の内(1K/5階) | |||||||
![]() | 8.7万円 1.1万円 | なし なし | 1K 28.16m2 | 築1年 | 名古屋市鶴舞線 丸の内駅(愛知) 徒歩2分 名古屋市桜通線 国際センター駅(愛知) 徒歩11分 名古屋市東山線 伏見駅(愛知) 徒歩11分 愛知県名古屋市中区丸の内1丁目 | 詳細を見る | |
マンション プレサンス上前津フィット(1K/13階) | |||||||
![]() | 6.519万円 8,810円 | なし 7.4万円 | 1K 23.3m2 | 築8年 | 名古屋市名城線 上前津駅 徒歩5分 愛知県名古屋市中区上前津2丁目 | 詳細を見る | |
マンション プレサンス上前津ディアシス(1K/6階) | |||||||
![]() | 5.96万円 6,180円 | なし なし | 1K 21.66m2 | 築1年 | 名古屋市鶴舞線 上前津駅 徒歩4分 名古屋市名城線 上前津駅 徒歩4分 中央本線 鶴舞駅 徒歩17分 愛知県名古屋市中区上前津1丁目 | 詳細を見る | |
マンション MAXIV大須観音(1LDK/13階) | |||||||
![]() | 8.15万円 1.2万円 | なし なし | 1LDK 29.97m2 | 築1年 | 名鉄名古屋本線 山王駅(愛知) 徒歩11分 名古屋市鶴舞線 大須観音駅 徒歩15分 東海道本線 尾頭橋駅 徒歩15分 愛知県名古屋市中区松原3丁目 | 詳細を見る | |
マンション エステムコート名古屋上前津(1DK/11階) | |||||||
![]() | 7.7万円 5,150円 | なし なし | 1DK 27.04m2 | 築1年 | 地下鉄名城線 東別院駅 徒歩5分 地下鉄鶴舞線 上前津駅 徒歩6分 JR中央本線 鶴舞駅 徒歩17分 愛知県名古屋市中区富士見町 | 詳細を見る | |









