賃貸マンション
フェニックス西新宿弐番館の賃貸物件情報(1K/4階)
| 家賃 | 管理費等 | 敷金 | 礼金 | 間取り | 専有面積 |
|---|---|---|---|---|---|
| 10.5万円 | 1万円 | 10.5万円 | なし | 1K | 20.32m2 |
入居決定でお祝い金最大100,000円
- 保証金
- -
- 償却・敷引
- -
- 築年数
- 築16年
- 所在階
- 4階
- 向き
- 南
Point
室内見学承ります・お客様のご都合に合わせてオンラインまたはお近くの店舗でご提案可・初期費用分割払い可・クレジットカード利用可・引越業者割引・初期費用のお見積や入居日のご相談もお気軽にお問合せください
提供:(株)リライフ中野坂上店(SUUMO経由)

詳細情報 フェニックス西新宿弐番館
物件紹介
フェニックス西新宿弐番館は都営大江戸線西新宿五丁目駅から徒歩2分にあり、駅近で通勤通学に便利なマンションです。
このお部屋は2階以上に位置しているので、通行人や周囲の住人からの視線が気になりにくく、防犯面でも安心。建物のエントランスはオートロックがついており、インターホンにはTVモニタもついているため、相手の顔を確認してから来客対応することができます。
人気の南向きのお部屋。また、フローリングなのでお掃除もラクラク。キッチンはシステムキッチン仕様になっていますので、お料理好きの方にもぴったり。バス・トイレは別なので、のんびりお風呂タイムも楽しめるでしょう。また、雨の日でも浴室乾燥機を使えば、お洗濯も問題ありません。
通信設備面ではCATVに対応しているので、おうち時間も充実するでしょう(別途工事、契約料が必要な場合あり)。
建物にはエレベーターがついているので、重い荷物があっても安心。共用部には宅配ボックスが設定されているので、不在の時にも荷物を受け取ることができます。また、ペット飼育の相談ができますので、あなたの大切な家族の一員も快適に暮らせるか、ぜひ確認してみてください。
このお部屋は2階以上に位置しているので、通行人や周囲の住人からの視線が気になりにくく、防犯面でも安心。建物のエントランスはオートロックがついており、インターホンにはTVモニタもついているため、相手の顔を確認してから来客対応することができます。
人気の南向きのお部屋。また、フローリングなのでお掃除もラクラク。キッチンはシステムキッチン仕様になっていますので、お料理好きの方にもぴったり。バス・トイレは別なので、のんびりお風呂タイムも楽しめるでしょう。また、雨の日でも浴室乾燥機を使えば、お洗濯も問題ありません。
通信設備面ではCATVに対応しているので、おうち時間も充実するでしょう(別途工事、契約料が必要な場合あり)。
建物にはエレベーターがついているので、重い荷物があっても安心。共用部には宅配ボックスが設定されているので、不在の時にも荷物を受け取ることができます。また、ペット飼育の相談ができますので、あなたの大切な家族の一員も快適に暮らせるか、ぜひ確認してみてください。
お金・契約の情報
※「-」と表示されているものは、実際は料金が発生するものもございます。詳細はお問い合わせください。
| 家賃 | 10.5万円 | 管理費・共益費 | 1万円 |
|---|---|---|---|
| 敷金 | 10.5万円 | 礼金 | なし |
| 入居決定でお祝い金最大100,000円 | |||
| 保証金 | - | 償却・敷引 | - |
| 住宅保険料 | - | 更新料 | - |
| 保証会社利用 | 必須 | 保証会社名 | - |
| 保証会社費用 | - | 保証会社備考 | 保証会社利用必 初回:月額総賃料50%~ |
| 契約形態 | - | 契約期間 | - |
| 入居・引渡期間 | - | 現況 | - |
| 入居可能条件 | ペット相談 | ||
| 契約備考 | 当物件は「住まいのリライフ」で取り扱っております。リライフは首都圏25店舗のネットワークで豊富な物件情報をお客様へご提供します。当物件に類似した未公開物件なども合わせてご提案可能です。お気軽にお問合せください。ペット相談:敷金+1か月(償却)違約金有:短期解約時:1年以内2か月分、2年以内1か月分 合計4.95万円(内訳:鍵交換代金3.3万円緊急駆けつけサポート(初回のみ)1.65万円) 総合保険サポート(月額)0.1万円 1K ペット相談 損保【要】 バストイレ別、バルコニー、エアコン、ガスコンロ対応、クロゼット、フローリング、TVインターホン、浴室乾燥機、オートロック、室内洗濯置、シューズボックス、システムキッチン、南向き、温水洗浄便座、脱衣所、エレベーター、洗面所独立、2口コンロ、駐輪場、宅配ボックス、CATV、2面採光、防犯カメラ、ペット相談、分譲賃貸、保証人不要、バイク置場、2沿線利用可、ディンプルキー、24時間換気システム、始発駅、3駅以上利用可、都市ガス、南面バルコニー、玄関収納、保証会社利用可、初期費用カード決済可、通風良好 敷金積み増し【ペット飼育の場合敷金1ヶ月(総額)】 入居日:'26年1月中旬 | ||
部屋の情報
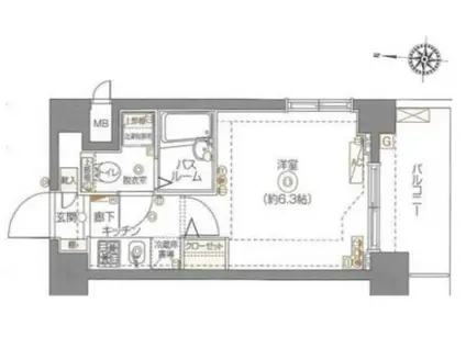
| 間取り | 1K | 専有面積 | 20.32m2 |
|---|---|---|---|
| 所在階 / 向き | 4階 / 南 | バルコニー面積 | - |
| 水道 / ガス | - | ||
| 設備 | バス・トイレ別、2階以上、オートロック、テレビドアホン、宅配ボックス、浴室乾燥機、システムキッチン、エアコン、エレベーター、温水洗浄便座、南向き、バルコニー、フローリング、洗髪洗面化粧台、2口コンロ、コンロ:ガス、CATV、洗濯機:室内 | ||
| 当社物件ID | 1270731 | ||
建物の情報
| 建物名 | フェニックス西新宿弐番館 | ||
|---|---|---|---|
| 所在地 | 東京都新宿区西新宿 | ||
| 交通 | 都営大江戸線 西新宿五丁目駅 徒歩2分 都営大江戸線 都庁前駅 徒歩12分 東京メトロ丸ノ内線 中野坂上駅 徒歩14分 | ||
| 階数 | 7階建 | 総戸数 | 29戸 |
| 築年月 | 2010年07月 / 築16年 | エレベーター | あり |
| 駐車場 | なし | バイク置き場 | あり |
| 駐輪場 | あり | 管理人/管理会社 | - |
| 周辺環境 | その他 まいばすけっと 渋谷本町2丁目店(スーパー)まで590m その他 サミットストア 渋谷本町店(スーパー)まで642m その他 ファミリーマート サンズ西新宿店(コンビニ)まで121m その他 ローソン 西新宿四丁目店(コンビニ)まで155m その他 どらっぐぱぱす 西新宿店(ドラッグストア)まで480m その他 スワローチェーン 清水橋店(その他)まで106m | ||
| 建物種別 | マンション | 建物構造 | RC(鉄筋コンクリート) |
この部屋の取扱い不動産会社
| 会社名 | (株)リライフ中野坂上店(SUUMO経由) | ||
|---|---|---|---|
| 所在地 | 東京都中野区本町2-49-12 誠文堂ビル1階 | 交通 | - |
| 営業時間 | 10:00~18:30 | 定休日 | 水曜日(祝日を除く) |
| 免許番号 | 国土交通大臣10792 | 取引態様 | 仲介 |
| 不動産会社管理番号 | 100475751359 | 当社管理番号 | 89 |
| 所属団体 | (公社)東京都宅地建物取引業協会会員 | ||
| 公正取引協議会 | (公社)首都圏不動産公正取引協議会加盟 | ||
| 取扱い物件情報 | 物件詳細へ | ||
※各種情報と現状に差異がある場合は、現状優先となります。問い合わせをすることで、より詳しい条件、情報を確認する事ができます。
提供:(株)リライフ中野坂上店(SUUMO経由)
この物件が気になったら掲載期限まであと12日
フェニックス西新宿弐番館に条件(家賃・エリア)が近い物件一覧
| 写真 | 家賃 管理費等 | 敷金 礼金 | 間取り 専有面積 | 築年数 | 最寄り駅 所在地 | キープ | 詳細 |
|---|---|---|---|---|---|---|---|
マンション エスティメゾン千石(1LDK/1階) | |||||||
![]() | 16万円 1.2万円 | 16万円 16万円 | 1LDK 39.85m2 | 築17年 | 東京都三田線 千石駅 徒歩7分 山手線 巣鴨駅 徒歩9分 東京都文京区千石4丁目 | 詳細を見る | |
マンション リブクオーレ神保町(ワンルーム/11階) | |||||||
![]() | 13.9万円 1万円 | 13.9万円 13.9万円 | ワンルーム 26.08m2 | 築6年 | 東京地下鉄半蔵門線 神保町駅 徒歩5分 東京都三田線 神保町駅 徒歩5分 東京都千代田区神田神保町1丁目 | 詳細を見る | |
マンション BLUROCK後楽園(1DK/4階) | |||||||
![]() | 14.1万円 1.2万円 | 14.1万円 なし | 1DK 25.29m2 | 築3年 | 東京地下鉄南北線 後楽園駅 徒歩7分 東京都三田線 春日駅(東京) 徒歩7分 東京都大江戸線 飯田橋駅 徒歩11分 東京都文京区春日1丁目 | 詳細を見る | |
マンション ルーブル文京音羽(1K/11階) | |||||||
![]() | 8.5万円 9,000円 | なし 8.5万円 | 1K 20.67m2 | 築26年 | 東京地下鉄有楽町線 江戸川橋駅 徒歩3分 東京地下鉄有楽町線 護国寺駅 徒歩7分 東京地下鉄丸ノ内線 茗荷谷駅 徒歩15分 東京都文京区音羽1丁目 | 詳細を見る | |
マンション CREATIF文京江戸川橋(1K/4階) | |||||||
![]() | 15.4万円 1.5万円 | なし なし | 1K 25.43m2 | 築2年 | 東京地下鉄有楽町線 江戸川橋駅 徒歩6分 東京都文京区水道2丁目 | 詳細を見る | |
マンション ヒルサイドテラス文京湯島(ワンルーム/4階) | |||||||
![]() | 9.2万円 5,000円 | なし なし | ワンルーム 17.07m2 | 築5年 | 東京地下鉄千代田線 湯島駅 徒歩2分 東京地下鉄銀座線 末広町駅(東京) 徒歩9分 山手線 御徒町駅 徒歩9分 東京都文京区湯島3丁目 | 詳細を見る | |
マンション メインステージ御茶ノ水(1K/2階) | |||||||
![]() | 9.2万円 8,000円 | 9.2万円 9.2万円 | 1K 18.44m2 | 築25年 | 東京地下鉄千代田線 湯島駅 徒歩5分 東京地下鉄銀座線 上野広小路駅 徒歩9分 山手線 御徒町駅 徒歩9分 東京都文京区湯島2丁目 | 詳細を見る | |
マンション チェスターコート御茶ノ水(1K/13階) | |||||||
![]() | 15.5万円 1万円 | なし なし | 1K 26.7m2 | 築19年 | 東京都新宿線 小川町駅(東京) 徒歩3分 東京地下鉄千代田線 新御茶ノ水駅 徒歩5分 東京地下鉄丸ノ内線 淡路町駅 徒歩6分 東京都千代田区神田小川町3丁目 | 詳細を見る | |









