賃貸マンション
目白セクエンツァの賃貸物件情報(3SLDK/1階)
| 家賃 | 管理費等 | 敷金 | 礼金 | 間取り | 専有面積 |
|---|---|---|---|---|---|
| 50万円 | なし | 150万円 | 50万円 | 3SLDK | 140.23m2 |
入居決定でお祝い金最大100,000円
- 保証金
- -
- 償却・敷引
- -
- 築年数
- 築34年
- 所在階
- 1階
- 向き
- 南
Point
厚壁構造で防音性能の高いハイグレード物件。設計アモルフが目白の地に創造した「セクエンツァ」。床面フローリングと内壁コンクリートにペイント仕上げ。事務所(兼用住宅含む)の場合敷金4ヵ月。
提供:(株)ソワニエ(SUUMO経由)

詳細情報 目白セクエンツァ
物件紹介
目白セクエンツァはJR山手線目白駅から徒歩9分にあり、駅近で通勤通学に便利なマンションです。
このお部屋のインターホンにはTVモニタがついているため、相手の顔を確認してから来客対応することができます。
おしゃれなデザイナーズ物件!また、楽器相談が可能な物件となっているので、楽器演奏をお考えの方はぜひ相談してみてください。人気の南向き・フローリングのお部屋。室内にはウォークインクローゼットがありますので、たくさんの荷物も効率的に収納ができます。キッチンはシステムキッチン仕様になっていますので、お料理好きの方にもぴったり。また、バス・トイレは別で、のんびりお風呂タイムも楽しめるでしょう。
通信設備面ではBSアンテナがありますので、おうち時間も充実するでしょう(別途工事、契約料が必要な場合あり)。
ペット飼育の相談ができますので、あなたの大切な家族の一員も快適に暮らせるか、ぜひ確認してみてください。
このお部屋のインターホンにはTVモニタがついているため、相手の顔を確認してから来客対応することができます。
おしゃれなデザイナーズ物件!また、楽器相談が可能な物件となっているので、楽器演奏をお考えの方はぜひ相談してみてください。人気の南向き・フローリングのお部屋。室内にはウォークインクローゼットがありますので、たくさんの荷物も効率的に収納ができます。キッチンはシステムキッチン仕様になっていますので、お料理好きの方にもぴったり。また、バス・トイレは別で、のんびりお風呂タイムも楽しめるでしょう。
通信設備面ではBSアンテナがありますので、おうち時間も充実するでしょう(別途工事、契約料が必要な場合あり)。
ペット飼育の相談ができますので、あなたの大切な家族の一員も快適に暮らせるか、ぜひ確認してみてください。
お金・契約の情報
※「-」と表示されているものは、実際は料金が発生するものもございます。詳細はお問い合わせください。
| 家賃 | 50万円 | 管理費・共益費 | なし |
|---|---|---|---|
| 敷金 | 150万円 | 礼金 | 50万円 |
| 入居決定でお祝い金最大100,000円 | |||
| 保証金 | - | 償却・敷引 | - |
| 住宅保険料 | - | 更新料 | - |
| 保証会社利用 | 利用可 | 保証会社名 | 日本セーフティー |
| 保証会社費用 | - | 保証会社備考 | 日本セーフティー利用可 日本セーフティー 初回保証料:月額総支払額の50% 月額保証料800円振替手数料月額440円 ※事務所(兼用住宅含む)は事業用扱いとなり条件が異なります。 |
| 契約形態 | - | 契約期間 | - |
| 入居・引渡期間 | 即時 | 現況 | - |
| 入居可能条件 | 事務所可、楽器相談、ペット相談 | ||
| 契約備考 | リフォーム:2022年8月浴室ユニットバス交換/【ペットを飼育されるお客様】(1)ペット特約の締結(常識的な約束事項です)(2)敷金の積増し:犬(愛玩犬サイズ)敷金1ヵ月増額;犬(小型犬以上または複数頭飼育)及び猫 敷金2ヵ月増額増額した敷金は解約時償却となります(返還されません) 標準代金:ハウスクリーニング費用168,000円 エアコンクリーニング121,000円 3SLDK ペット相談/楽器相談/事務所利用相談/ルームシェア不可 損保【3万円2年】 バストイレ別、フローリング、TVインターホン、室内洗濯置、陽当り良好、シューズボックス、システムキッチン、南向き、追焚機能浴室、温水洗浄便座、洗面所独立、洗面化粧台、閑静な住宅地、3口以上コンロ、防犯カメラ、ペット相談、オートバス、グリル付、全居室洋室、ウォークインクロゼット、全居室フローリング、デザイナーズ、2沿線利用可、ディンプルキー、メゾネット、駅まで平坦、食器洗乾燥機、エアコン全室、ダブルロックキー、乾燥機、事務所相談、内階段、楽器相談、外壁コンクリート、トイレ2ヶ所、平坦地、南面2室、納戸、南面リビング、高台に立地、防音サッシ、内装コンクリート、天井高2.5m以上、スキップフロア、敷地内ごみ置き場、専有面積30坪以上、平面駐車場、LDK25畳以上、都市ガス、洗面所にドア、ビルトインエアコン、天井高シューズクロゼット、BS、内装リフォーム後渡、保証会社利用可、全室照明付、通風良好 敷金積み増し【ペット飼育の場合敷金4ヶ月(総額)】 | ||
部屋の情報
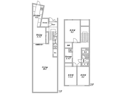
| 間取り | 3SLDK | 専有面積 | 140.23m2 |
|---|---|---|---|
| 所在階 / 向き | 1階 / 南 | バルコニー面積 | - |
| 水道 / ガス | - | ||
| 設備 | バス・トイレ別、テレビドアホン、ウォークインクローゼット、追い焚き、システムキッチン、エアコン、温水洗浄便座、南向き、フローリング、洗髪洗面化粧台、2口コンロ、デザイナーズ、BSアンテナ、洗濯機:室内 | ||
| 当社物件ID | 15160021 | ||
建物の情報
| 建物名 | 目白セクエンツァ | ||
|---|---|---|---|
| 所在地 | 東京都新宿区下落合 | ||
| 交通 | JR山手線 目白駅 徒歩9分 JR山手線 高田馬場駅 徒歩17分 JR山手線 池袋駅 徒歩19分 | ||
| 階数 | 4階建 | 総戸数 | 7戸 |
| 築年月 | 1992年09月 / 築34年 | エレベーター | - |
| 駐車場 | 空有 38500円/平置駐 | バイク置き場 | - |
| 駐輪場 | - | 管理人/管理会社 | - |
| 周辺環境 | その他 クイーンズ伊勢丹(スーパー)まで690m その他 ピーコック目白店(スーパー)まで178m その他 新宿区立落合中学校(中学校)まで452m その他 新宿区立落合第四小学校(小学校)まで468m その他 目白平和幼稚園(幼稚園・保育園)まで398m その他 社会福祉法人聖母会聖母病院(病院)まで669m | ||
| 建物種別 | マンション | 建物構造 | RC(鉄筋コンクリート) |
この部屋の取扱い不動産会社
| 会社名 | (株)ソワニエ(SUUMO経由) | ||
|---|---|---|---|
| 所在地 | 東京都新宿区下落合3-12-32 目白セクエンツァE | 交通 | - |
| 営業時間 | 10:00 ~ 18:00 | 定休日 | 土曜・日曜・祝日 |
| 免許番号 | 東京都知事95424 | 取引態様 | 仲介 |
| 不動産会社管理番号 | 100012381126 | 当社管理番号 | 89 |
| 所属団体 | (公社)全日本不動産協会東京都本部会員 | ||
| 公正取引協議会 | (公社)首都圏不動産公正取引協議会加盟 | ||
| 取扱い物件情報 | 物件詳細へ | ||
※各種情報と現状に差異がある場合は、現状優先となります。問い合わせをすることで、より詳しい条件、情報を確認する事ができます。
提供:(株)ソワニエ(SUUMO経由)
この物件が気になったら掲載期限まであと2日
目白セクエンツァに条件(家賃・エリア)が近い物件一覧
| 写真 | 家賃 管理費等 | 敷金 礼金 | 間取り 専有面積 | 築年数 | 最寄り駅 所在地 | キープ | 詳細 |
|---|---|---|---|---|---|---|---|
マンション パークコート神宮前(2SLDK/13階) | |||||||
![]() | 70万円 なし | 140万円 70万円 | 2SLDK 85.62m2 | 築18年 | JR山手線 原宿駅 徒歩6分 東京メトロ副都心線 明治神宮前駅 徒歩7分 東京メトロ千代田線 明治神宮前駅 徒歩7分 東京都渋谷区神宮前 | 詳細を見る | |
マンション アクシルコート早稲田(1SLDK/10階) | |||||||
![]() | 31万円 1.5万円 | 31万円 なし | 1SLDK 55.4m2 | 築1年 | 東京メトロ有楽町線 江戸川橋駅 徒歩6分 東京メトロ東西線 早稲田駅(メトロ) 徒歩9分 東京都新宿区早稲田鶴巻町 | 詳細を見る | |
マンション エスペランサ神宮前(2LDK/3階) | |||||||
![]() | 55.8万円 2.5万円 | 55.8万円 55.8万円 | 2LDK 68.32m2 | 築2年 | 東京メトロ銀座線 外苑前駅 徒歩6分 東京メトロ銀座線 表参道駅 徒歩9分 東京メトロ千代田線 表参道駅 徒歩9分 東京都渋谷区神宮前 | 詳細を見る | |
マンション パークアクシス溜池山王(1LDK/3階) | |||||||
![]() | 31.1万円 なし | 31.1万円 31.1万円 | 1LDK 51.32m2 | 築21年 | 東京メトロ千代田線 赤坂駅(東京) 徒歩5分 東京メトロ丸ノ内線 国会議事堂前駅 徒歩11分 東京メトロ南北線 六本木一丁目駅 徒歩12分 東京都港区赤坂 | 詳細を見る | |
マンション ザ・パークハビオ代々木(1LDK/4階) | |||||||
![]() | 30.8万円 2万円 | 30.8万円 30.8万円 | 1LDK 42.93m2 | 築1年 | 小田急線 南新宿駅 徒歩6分 小田急線 参宮橋駅 徒歩6分 JR山手線 代々木駅 徒歩8分 東京都渋谷区代々木 | 詳細を見る | |
マンション 麻布台ヒルズレジデンス(1LDK/11階) | |||||||
![]() | 66万円 なし | 132万円 なし | 1LDK 53.7m2 | 築3年 | 東京メトロ南北線 六本木一丁目駅 徒歩1分 東京メトロ日比谷線 神谷町駅 徒歩11分 都営大江戸線 六本木駅 徒歩11分 東京都港区麻布台 | 詳細を見る | |
マンション 高橋ビル(4SLDK/3階) | |||||||
![]() | 35万円 なし | 35万円 35万円 | 4SLDK 103.4m2 | 築27年 | 東京メトロ東西線 早稲田駅(メトロ) 徒歩8分 東京メトロ有楽町線 江戸川橋駅 徒歩15分 東京メトロ副都心線 西早稲田駅 徒歩16分 東京都新宿区西早稲田 | 詳細を見る | |
マンション WHITETOWERHAMAMATSUCHO(2LDK/18階) | |||||||
![]() | 42.5万円 2万円 | 85万円 42.5万円 | 2LDK 62.53m2 | 築18年 | JR山手線 浜松町駅 徒歩3分 都営浅草線 大門駅(東京) 徒歩4分 新交通ゆりかもめ 汐留駅 徒歩7分 東京都港区浜松町 | 詳細を見る | |









