賃貸アパート
星と青空のクーレKULLEの賃貸物件情報(1LDK/2階)
| 家賃 | 管理費等 | 敷金 | 礼金 | 間取り | 専有面積 |
|---|---|---|---|---|---|
| 5.8万円 | 6,000円 | なし | なし | 1LDK | 35.45m2 |
入居決定でお祝い金最大100,000円
- 保証金
- -
- 償却・敷引
- -
- 築年数
- 築1年
- 所在階
- 2階
- 向き
- 南西
- 交通
- 岡山電軌東山本線 東山・おかでんミュージアム駅駅 徒歩10分
岡山電軌東山本線 門田屋敷駅 徒歩15分
岡山電軌東山本線 中納言駅 徒歩18分
- 所在地
- 岡山県岡山市中区門田本町
星と青空のクーレKULLE
[地図を表示]
Point
まずはお問い合わせ!
不動産会社は街のプロ、あなたに合った物件がきっと見つかります。
提供:いい部屋ネット(株)良和ハウス岡山中央店(SUUMO経由)

詳細情報 星と青空のクーレKULLE
物件紹介
星と青空のクーレKULLEは岡山電軌東山本線東山・おかでんミュージアム駅駅から徒歩10分にあり、駅近で通勤通学に便利なアパートです。
このお部屋は2階以上に位置しているので、通行人や周囲の住人からの視線が気になりにくく、防犯面でも安心。建物のエントランスはオートロックがついており、インターホンにはTVモニタもついているため、相手の顔を確認してから来客対応することができます。
おしゃれなデザイナーズ物件!人気の南向き・フローリングのお部屋。角部屋でもあるため、周囲の居住者の生活音も気になりにくい場所です。室内にはウォークインクローゼットがありますので、たくさんの荷物も効率的に収納ができます。キッチンはシステムキッチン仕様になっていますので、お料理好きの方にもぴったり。バス・トイレは別なので、のんびりお風呂タイムも楽しめるでしょう。また、雨の日でも浴室乾燥機を使えば、お洗濯も問題ありません。
通信設備面では、インターネットが無料で使えるので、月々の出費を抑えられるのも魅力です(別途工事等が必要な場合あり)。
共用部には宅配ボックスが設定されているので、不在の時にも荷物を受け取ることができます。また、ペット飼育の相談ができますので、あなたの大切な家族の一員も快適に暮らせるか、ぜひ確認してみてください。
このお部屋は2階以上に位置しているので、通行人や周囲の住人からの視線が気になりにくく、防犯面でも安心。建物のエントランスはオートロックがついており、インターホンにはTVモニタもついているため、相手の顔を確認してから来客対応することができます。
おしゃれなデザイナーズ物件!人気の南向き・フローリングのお部屋。角部屋でもあるため、周囲の居住者の生活音も気になりにくい場所です。室内にはウォークインクローゼットがありますので、たくさんの荷物も効率的に収納ができます。キッチンはシステムキッチン仕様になっていますので、お料理好きの方にもぴったり。バス・トイレは別なので、のんびりお風呂タイムも楽しめるでしょう。また、雨の日でも浴室乾燥機を使えば、お洗濯も問題ありません。
通信設備面では、インターネットが無料で使えるので、月々の出費を抑えられるのも魅力です(別途工事等が必要な場合あり)。
共用部には宅配ボックスが設定されているので、不在の時にも荷物を受け取ることができます。また、ペット飼育の相談ができますので、あなたの大切な家族の一員も快適に暮らせるか、ぜひ確認してみてください。
お金・契約の情報
※「-」と表示されているものは、実際は料金が発生するものもございます。詳細はお問い合わせください。
| 家賃 | 5.8万円 | 管理費・共益費 | 6,000円 |
|---|---|---|---|
| 敷金 | なし | 礼金 | なし |
| 入居決定でお祝い金最大100,000円 | |||
| 保証金 | - | 償却・敷引 | - |
| 住宅保険料 | - | 更新料 | - |
| 契約形態 | - | 契約期間 | - |
| 入居・引渡期間 | - | 現況 | - |
| 入居可能条件 | ペット相談 | ||
| 契約備考 | 東山・おかでんミュージアム駅徒歩10分/フレスタ門田屋敷店まで813m/セブンイレブン岡山門田屋敷4丁まで851m/【家賃・初期費用交渉可】初期費用カード決済可能!PayPay使えます!写真ですが現状を優先します。 ペット飼育:礼金+1カ月or共益費+2000円アップ 1LDK 単身者可/二人入居可/ペット相談 バストイレ別、エアコン、クロゼット、フローリング、シャワー付洗面台、TVインターホン、浴室乾燥機、オートロック、室内洗濯置、陽当り良好、シューズボックス、システムキッチン、追焚機能浴室、角住戸、温水洗浄便座、脱衣所、洗面所独立、洗面化粧台、2口コンロ、駐輪場、宅配ボックス、礼金不要、閑静な住宅地、最上階、敷金不要、対面式キッチン、防犯カメラ、ペット相談、オートバス、グリル付、保証人不要、単身者相談、駐車2台可、二人入居相談、バイク置場、全居室フローリング、デザイナーズ、2沿線利用可、ネット専用回線、ネット使用料不要、眺望良好、保証金不要、24時間換気システム、クロゼット2ヶ所、浴室未使用、トイレ未使用、2駅利用可、バス2路線、駅徒歩10分以内、劣化対策、敷地内ごみ置き場、平面駐車場、自走式駐車場、洗面所にドア、高速ネット対応、敷金・礼金不要、保証会社利用可、IT重説対応物件、初期費用カード決済可、通風良好 入居日:'25年12月中旬 | ||
部屋の情報
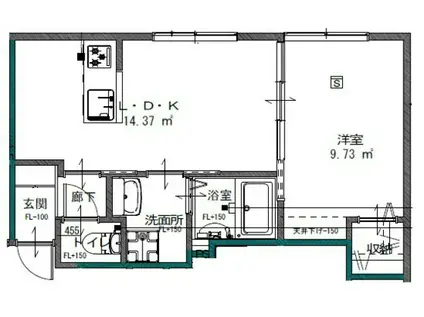
| 間取り | 1LDK | 専有面積 | 35.45m2 |
|---|---|---|---|
| 所在階 / 向き | 2階 / 南西 | バルコニー面積 | - |
| 水道 / ガス | - | ||
| 設備 | バス・トイレ別、2階以上、オートロック、テレビドアホン、宅配ボックス、浴室乾燥機、追い焚き、インターネット対応、システムキッチン、エアコン、温水洗浄便座、南向き、角部屋、フローリング、洗髪洗面化粧台、2口コンロ、デザイナーズ、インターネット使用料無料、洗濯機:室内 | ||
| 当社物件ID | 159488569 | ||
建物の情報
| 建物名 | 星と青空のクーレKULLE | ||
|---|---|---|---|
| 所在地 | 岡山県岡山市中区門田本町 | ||
| 交通 | 岡山電軌東山本線 東山・おかでんミュージアム駅駅 徒歩10分 岡山電軌東山本線 門田屋敷駅 徒歩15分 岡山電軌東山本線 中納言駅 徒歩18分 | ||
| 階数 | 2階建 | 総戸数 | - |
| 築年月 | 2025年11月 / 築1年 | エレベーター | - |
| 駐車場 | 空有 4400円/駐2台可 | バイク置き場 | あり |
| 駐輪場 | あり | 管理人/管理会社 | - |
| 周辺環境 | その他 フレスタ門田屋敷店(スーパー)まで813m その他 セブンイレブン岡山門田屋敷4丁目店(コンビニ)まで851m その他 ザグザグ門田屋敷南店(ドラッグストア)まで769m その他 ほっともっと岡山平井店(飲食店)まで1877m その他 私立山陽学園大学(大学・短大)まで1273m その他 総合病院岡山協立病院(病院)まで900m | ||
| 建物種別 | アパート | 建物構造 | 木造 |
この部屋の取扱い不動産会社
| 会社名 | OFCHOME(株)OFC(SUUMO経由) | ||
|---|---|---|---|
| 所在地 | 岡山県岡山市北区学南町2-4-50 | 交通 | - |
| 営業時間 | 9:00~18:00 | 定休日 | 毎週水曜日(繁忙期除く) |
| 免許番号 | 岡山県知事6087 | 取引態様 | 仲介 |
| 不動産会社管理番号 | 100469632886 | 当社管理番号 | 89 |
| 所属団体 | (一社)岡山県不動産協会会員 | ||
| 公正取引協議会 | 中国地区不動産公正取引協議会加盟 | ||
| 取扱い物件情報 | 物件詳細へ | ||
※各種情報と現状に差異がある場合は、現状優先となります。問い合わせをすることで、より詳しい条件、情報を確認する事ができます。
提供:OFCHOME(株)OFC(SUUMO経由)
この物件が気になったら掲載期限まであと2日
星と青空のクーレKULLEに条件(家賃・エリア)が近い物件一覧
| 写真 | 家賃 管理費等 | 敷金 礼金 | 間取り 専有面積 | 築年数 | 最寄り駅 所在地 | キープ | 詳細 |
|---|---|---|---|---|---|---|---|
アパート イースト CITY 壱番館(1K/1階) | |||||||
![]() | 4.2万円 3,500円 | 4.2万円 4.2万円 | 1K 31.57m2 | 築12年 | 山陽本線 東岡山駅 徒歩20分 赤穂線 大多羅駅 徒歩36分 山陽本線 高島駅(岡山) 徒歩41分 岡山県岡山市中区神下 | 詳細を見る | |
アパート メゾンラフィネ ひまわり(2LDK/1階) | |||||||
![]() | 4.4万円 3,000円 | 8.8万円 4.4万円 | 2LDK 46.37m2 | 築26年 | 赤穂線 伊部駅 徒歩12分 赤穂線 西片上駅 徒歩31分 赤穂線 備前片上駅 徒歩48分 岡山県備前市伊部 | 詳細を見る | |
アパート 村北グリーンハイツB棟(2LDK/2階) | |||||||
![]() | 5.2万円 3,000円 | なし なし | 2LDK 52.99m2 | 築30年 | 山陽本線 西川原駅 徒歩19分 山陽本線 高島駅(岡山) 徒歩26分 津山線 法界院駅 徒歩33分 岡山県岡山市中区中島 | 詳細を見る | |
アパート ツイン・ウッズⅡ(1K/2階) | |||||||
![]() | 3.6万円 5,000円 | なし なし | 1K 28.15m2 | 築28年 | 岡山県岡山市中区平井 | 詳細を見る | |
アパート フロード・N(1LDK/2階) | |||||||
![]() | 6.1万円 3,500円 | 6.1万円 なし | 1LDK 42.82m2 | 築1年 | 岡山電軌清輝橋線 清輝橋駅 徒歩22分 岡山県岡山市北区七日市東町 | 詳細を見る | |
アパート アルカディアE棟(2DK/2階) | |||||||
![]() | 6.2万円 4,500円 | なし なし | 2DK 59.46m2 | 築20年 | 山陽本線 高島駅(岡山) 徒歩8分 岡山県岡山市中区清水 | 詳細を見る | |
アパート ファミーユ・ビボE(1LDK/1階) | |||||||
![]() | 5.6万円 5,500円 | 11.2万円 5.6万円 | 1LDK 46.16m2 | 築20年 | 山陽本線 高島駅(岡山) 徒歩21分 山陽本線 西川原駅 徒歩23分 津山線 備前原駅 徒歩36分 岡山県岡山市中区今在家 | 詳細を見る | |
アパート コンフォートD棟(2DK/2階) | |||||||
![]() | 6.1万円 4,000円 | なし 2万円 | 2DK 52.8m2 | 築22年 | 岡山県岡山市中区平井 | 詳細を見る | |








