賃貸アパート
星と青空のクーレKULLEの賃貸物件情報(1LDK/1階)
| 家賃 | 管理費等 | 敷金 | 礼金 | 間取り | 専有面積 |
|---|---|---|---|---|---|
| 5.7万円 | 6,000円 | なし | なし | 1LDK | 35.45m2 |
入居決定でお祝い金最大100,000円
- 保証金
- -
- 償却・敷引
- -
- 築年数
- 築1年
- 所在階
- 1階
- 向き
- 北西
- 交通
- 岡山電軌東山本線 東山・おかでんミュージアム駅駅 徒歩12分
岡山電軌東山本線 門田屋敷駅 徒歩15分
JR山陽本線 岡山駅 バス乗車時間:18分 最寄りバス停で下車 徒歩16分
- 所在地
- 岡山県岡山市中区門田本町
星と青空のクーレKULLE
[地図を表示]
Point
門田本町、ペット可、設備充実の新築物件
提供:Doors岡山駅前店(株)ジェイ・フィール(SUUMO経由)

詳細情報 星と青空のクーレKULLE
物件紹介
星と青空のクーレKULLEは岡山電軌東山本線東山・おかでんミュージアム駅駅から徒歩10分にあり、駅近で通勤通学に便利なアパートです。
建物のエントランスはオートロックがついており、インターホンにはTVモニタもついているため、相手の顔を確認してから来客対応することができます。
人気の南向き・フローリングのお部屋。角部屋でもあるため、周囲の居住者の生活音も気になりにくい場所です。室内にはウォークインクローゼットがありますので、たくさんの荷物も効率的に収納ができます。キッチンはシステムキッチン仕様になっていますので、お料理好きの方にもぴったり。バス・トイレは別なので、のんびりお風呂タイムも楽しめるでしょう。また、雨の日でも浴室乾燥機を使えば、お洗濯も問題ありません。
通信設備面では、インターネットが無料で使えるので、月々の出費を抑えられるのも魅力です(別途工事等が必要な場合あり)。
共用部には宅配ボックスが設定されているので、不在の時にも荷物を受け取ることができます。また、ペット飼育の相談ができますので、あなたの大切な家族の一員も快適に暮らせるか、ぜひ確認してみてください。
建物のエントランスはオートロックがついており、インターホンにはTVモニタもついているため、相手の顔を確認してから来客対応することができます。
人気の南向き・フローリングのお部屋。角部屋でもあるため、周囲の居住者の生活音も気になりにくい場所です。室内にはウォークインクローゼットがありますので、たくさんの荷物も効率的に収納ができます。キッチンはシステムキッチン仕様になっていますので、お料理好きの方にもぴったり。バス・トイレは別なので、のんびりお風呂タイムも楽しめるでしょう。また、雨の日でも浴室乾燥機を使えば、お洗濯も問題ありません。
通信設備面では、インターネットが無料で使えるので、月々の出費を抑えられるのも魅力です(別途工事等が必要な場合あり)。
共用部には宅配ボックスが設定されているので、不在の時にも荷物を受け取ることができます。また、ペット飼育の相談ができますので、あなたの大切な家族の一員も快適に暮らせるか、ぜひ確認してみてください。
お金・契約の情報
※「-」と表示されているものは、実際は料金が発生するものもございます。詳細はお問い合わせください。
| 家賃 | 5.7万円 | 管理費・共益費 | 6,000円 |
|---|---|---|---|
| 敷金 | なし | 礼金 | なし |
| 入居決定でお祝い金最大100,000円 | |||
| 保証金 | - | 償却・敷引 | - |
| 住宅保険料 | - | 更新料 | - |
| 保証会社利用 | 必須 | 保証会社名 | - |
| 保証会社費用 | - | 保証会社備考 | 保証会社利用必 初回契約時:50%、更新時:10,000円 |
| 契約形態 | - | 契約期間 | - |
| 入居・引渡期間 | - | 現況 | - |
| 入居可能条件 | ペット相談 | ||
| 契約備考 | お気軽にお問い合わせください ゴミ回収代 1100円/月額 1LDK 二人入居可/ペット相談 普通借家2年 損保【1.9万円2年】 バストイレ別、エアコン、ガスコンロ対応、クロゼット、フローリング、シャワー付洗面台、TVインターホン、浴室乾燥機、オートロック、室内洗濯置、陽当り良好、シューズボックス、システムキッチン、追焚機能浴室、角住戸、温水洗浄便座、脱衣所、洗面所独立、洗面化粧台、2口コンロ、駐輪場、宅配ボックス、閑静な住宅地、2面採光、防犯カメラ、ペット相談、照明付、オートバス、二人入居相談、全居室フローリング、2沿線利用可、全室南向き、築2年以内、南面2室、玄関ポーチ、未入居、3駅以上利用可、敷地内ごみ置き場、プロパンガス、洗面所にドア、敷金・礼金不要、IT重説対応物件、通風良好 入居日:'25年12月中旬 | ||
部屋の情報
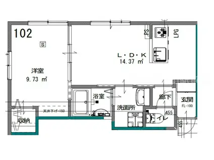
| 間取り | 1LDK | 専有面積 | 35.45m2 |
|---|---|---|---|
| 所在階 / 向き | 1階 / 北西 | バルコニー面積 | - |
| 水道 / ガス | - | ||
| 設備 | バス・トイレ別、オートロック、テレビドアホン、宅配ボックス、浴室乾燥機、追い焚き、システムキッチン、エアコン、温水洗浄便座、南向き、角部屋、フローリング、洗髪洗面化粧台、2口コンロ、コンロ:ガス、洗濯機:室内 | ||
| 当社物件ID | 159488572 | ||
建物の情報
| 建物名 | 星と青空のクーレKULLE | ||
|---|---|---|---|
| 所在地 | 岡山県岡山市中区門田本町 | ||
| 交通 | 岡山電軌東山本線 東山・おかでんミュージアム駅駅 徒歩12分 岡山電軌東山本線 門田屋敷駅 徒歩15分 JR山陽本線 岡山駅 バス乗車時間:18分 最寄りバス停で下車 徒歩16分 | ||
| 階数 | 2階建 | 総戸数 | 8戸 |
| 築年月 | 2025年11月 / 築1年 | エレベーター | - |
| 駐車場 | 空有 4400円 | バイク置き場 | - |
| 駐輪場 | あり | 管理人/管理会社 | - |
| 周辺環境 | その他 フレスタ門田屋敷店(スーパー)まで854m その他 パークス東山店(スーパー)まで849m その他 セブンイレブン岡山門田屋敷4丁目店(コンビニ)まで822m その他 ローソン岡山桜橋三丁目店(コンビニ)まで960m その他 デイリーヤマザキ岡山東山店(コンビニ)まで928m その他 ローソン岡山門田屋敷店(コンビニ)まで1329m | ||
| 建物種別 | アパート | 建物構造 | 木造 |
この部屋の取扱い不動産会社
| 会社名 | エイブルネットワーク東岡山店BRUNO不動産(株)(SUUMO経由) | ||
|---|---|---|---|
| 所在地 | 岡山県岡山市中区長岡 472-1 | 交通 | - |
| 営業時間 | 09:00~17:30 | 定休日 | 年末年始 |
| 免許番号 | 国土交通大臣10228 | 取引態様 | 仲介 |
| 不動産会社管理番号 | 100472192331 | 当社管理番号 | 89 |
| 所属団体 | (一社)岡山県不動産協会会員 | ||
| 公正取引協議会 | 中国地区不動産公正取引協議会加盟 | ||
| 取扱い物件情報 | 物件詳細へ | ||
※各種情報と現状に差異がある場合は、現状優先となります。問い合わせをすることで、より詳しい条件、情報を確認する事ができます。
提供:エイブルネットワーク東岡山店BRUNO不動産(株)(SUUMO経由)
この物件が気になったら掲載期限まであと10日
星と青空のクーレKULLEに条件(家賃・エリア)が近い物件一覧
| 写真 | 家賃 管理費等 | 敷金 礼金 | 間取り 専有面積 | 築年数 | 最寄り駅 所在地 | キープ | 詳細 |
|---|---|---|---|---|---|---|---|
アパート 江崎コーポ(1LDK/2階) | |||||||
![]() | 4.8万円 なし | なし 4.8万円 | 1LDK 43.07m2 | 築49年 | 岡山県岡山市中区江崎 | 詳細を見る | |
マンション ルラシオン岡山野田屋町(1K/5階) | |||||||
![]() | 5.4万円 5,500円 | なし 5.4万円 | 1K 25.5m2 | 築19年 | 岡山電軌清輝橋線 西川緑道公園駅 徒歩4分 山陽本線 岡山駅 徒歩6分 岡山電軌清輝橋線 柳川駅 徒歩7分 岡山県岡山市北区野田屋町2丁目 | 詳細を見る | |
アパート フローレンA・B棟 B棟(2LDK/1階) | |||||||
![]() | 7.8万円 6,000円 | なし 7.8万円 | 2LDK 52.5m2 | 築14年 | 山陽本線 高島駅(岡山) 徒歩9分 岡山県岡山市中区赤田 | 詳細を見る | |
アパート REGALEST 39(1LDK/2階) | |||||||
![]() | 6.6万円 3,000円 | なし 6.6万円 | 1LDK 30.18m2 | 築8年 | 山陽本線 岡山駅 徒歩13分 岡山電軌清輝橋線 西川緑道公園駅 徒歩15分 岡山電軌清輝橋線 田町駅(岡山) 徒歩17分 岡山県岡山市北区桑田町 | 詳細を見る | |
マンション ルナ国体町(1K/6階) | |||||||
![]() | 4.2万円 3,000円 | 4.2万円 4.2万円 | 1K 24.8m2 | 築28年 | 山陽本線 岡山駅 徒歩15分 岡山電軌清輝橋線 西川緑道公園駅 徒歩17分 岡山電軌清輝橋線 柳川駅 徒歩20分 岡山県岡山市北区国体町 | 詳細を見る | |
マンション 福富GRADEマンション(1LDK/6階) | |||||||
![]() | 6.4万円 7,000円 | 12.8万円 6.4万円 | 1LDK 36.87m2 | 築10年 | 岡山電軌東山本線 門田屋敷駅 徒歩50分 岡山県岡山市南区福富東1丁目 | 詳細を見る | |
マンション MHYビル清水(1K/4階) | |||||||
![]() | 4.4万円 2,000円 | なし なし | 1K 28.35m2 | 築30年 | 山陽本線 高島駅(岡山) 徒歩3分 山陽本線 西川原駅 徒歩32分 山陽本線 東岡山駅 徒歩36分 岡山県岡山市中区清水 | 詳細を見る | |
アパート ハイム里(1DK/2階) | |||||||
![]() | 3.9万円 なし | 3.9万円 3.9万円 | 1DK 39.73m2 | 築29年 | 山陽本線 高島駅(岡山) 徒歩19分 津山線 備前原駅 徒歩29分 山陽本線 西川原駅 徒歩31分 岡山県岡山市中区今在家 | 詳細を見る | |








