賃貸アパート
GRAN千歳台A棟の賃貸物件情報(2LDK/2階)
| 家賃 | 管理費等 | 敷金 | 礼金 | 間取り | 専有面積 |
|---|---|---|---|---|---|
| 17.3万円 | 5,000円 | 17.3万円 | 17.3万円 | 2LDK | 50m2 |
入居決定でお祝い金最大100,000円
- 保証金
- -
- 償却・敷引
- -
- 築年数
- 新築(築1年)
- 所在階
- 2階
- 向き
- 南西
Point
まずはお問い合わせ!
不動産会社は街のプロ、あなたに合った物件がきっと見つかります。
提供:ハウスコム東神奈川株式会社 向ヶ丘遊園店

詳細情報 GRAN千歳台A棟
物件紹介
GRAN千歳台A棟は小田急電鉄小田原線千歳船橋駅から徒歩12分にあるアパートです。
このお部屋は2階以上に位置しているので、通行人や周囲の住人からの視線が気になりにくく、防犯面でも安心。建物のエントランスはオートロックがついており、インターホンにはTVモニタもついているため、相手の顔を確認してから来客対応することができます。
人気の南向きのお部屋。また、フローリングなのでお掃除もラクラク。キッチンはシステムキッチン仕様になっていますので、お料理好きの方にもぴったり。バス・トイレは別なので、のんびりお風呂タイムも楽しめるでしょう。また、雨の日でも浴室乾燥機を使えば、お洗濯も問題ありません。
通信設備面では、インターネット接続が可能です。また、BSアンテナ・CSアンテナもありますので、おうち時間も充実するでしょう(別途工事、契約料が必要な場合あり)。
共用部には宅配ボックスが設定されているので、不在の時にも荷物を受け取ることができます。
このお部屋は2階以上に位置しているので、通行人や周囲の住人からの視線が気になりにくく、防犯面でも安心。建物のエントランスはオートロックがついており、インターホンにはTVモニタもついているため、相手の顔を確認してから来客対応することができます。
人気の南向きのお部屋。また、フローリングなのでお掃除もラクラク。キッチンはシステムキッチン仕様になっていますので、お料理好きの方にもぴったり。バス・トイレは別なので、のんびりお風呂タイムも楽しめるでしょう。また、雨の日でも浴室乾燥機を使えば、お洗濯も問題ありません。
通信設備面では、インターネット接続が可能です。また、BSアンテナ・CSアンテナもありますので、おうち時間も充実するでしょう(別途工事、契約料が必要な場合あり)。
共用部には宅配ボックスが設定されているので、不在の時にも荷物を受け取ることができます。
お金・契約の情報
※「-」と表示されているものは、実際は料金が発生するものもございます。詳細はお問い合わせください。
| 家賃 | 17.3万円 | 管理費・共益費 | 5,000円 |
|---|---|---|---|
| 敷金 | 17.3万円 | 礼金 | 17.3万円 |
| 入居決定でお祝い金最大100,000円 | |||
| 保証金 | - | 償却・敷引 | - |
| 住宅保険料 | 1円 | 更新料 | - |
| 保証会社利用 | 必須 | 保証会社名 | - |
| 保証会社費用 | - | 保証会社備考 | 初回契約時:50%、更新時:10,000円、月額:1% |
| 契約形態 | - | 契約期間 | 2年 |
| 入居・引渡期間 | 2026年03月上旬 | 現況 | - |
| 入居可能条件 | 2人入居可 | ||
| 契約備考 | 月額(火災保険料(月) 800円) その他設備/条件:室内洗濯機置き場、独立洗面台、クローゼット | ||
部屋の情報
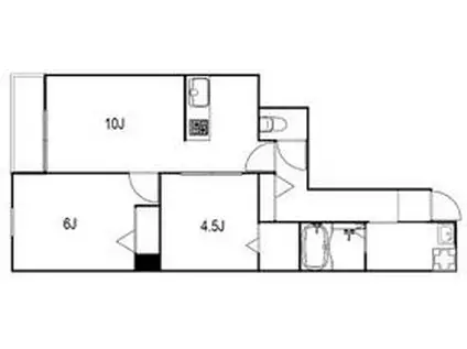
| 間取り | 2LDK | 専有面積 | 50m2 |
|---|---|---|---|
| 間取り詳細 | LDK(10帖)、洋室(6帖)、洋室(4.5帖) | ||
| 所在階 / 向き | 2階 / 南西 | バルコニー面積 | - |
| 水道 / ガス | ガス【都市】 | ||
| 設備 | バス・トイレ別、オートロック、テレビドアホン、宅配ボックス、追い焚き、システムキッチン、カウンターキッチン、エアコン、温水洗浄便座、バルコニー、フローリング、2口コンロ | ||
| 当社物件ID | 160409480 | ||
建物の情報
| 建物名 | GRAN千歳台A棟 | ||
|---|---|---|---|
| 所在地 | 東京都世田谷区千歳台3丁目 | ||
| 交通 | 小田急電鉄小田原線 千歳船橋駅 徒歩12分 小田急電鉄小田原線 祖師ケ谷大蔵駅 徒歩15分 | ||
| 階数 | 3階建 | 総戸数 | 5戸 |
| 築年月 | 2026年02月 / 新築(築1年) | エレベーター | - |
| 駐車場 | なし | バイク置き場 | - |
| 駐輪場 | - | 管理人/管理会社 | - |
| 周辺環境 | その他 ドラッグストア その他 公園 その他 銀行 その他 * | ||
| 建物種別 | アパート | 建物構造 | 木造 |
この部屋の取扱い不動産会社
| 会社名 | ハウスコム西東京株式会社 明大前店 | ||
|---|---|---|---|
| 所在地 | 東京都世田谷区44-1グランシーン明大前1階 | 交通 | - |
| 営業時間 | 10:00~18:00 | 定休日 | - |
| 免許番号 | 東京都知事(1)第108225号 | 取引態様 | 仲介 |
| 不動産会社管理番号 | HC4-5384434-202-0133 | 当社管理番号 | 468 |
| 所属団体 | 、 | ||
| 取扱い物件情報 | 物件詳細へ | ||
※各種情報と現状に差異がある場合は、現状優先となります。問い合わせをすることで、より詳しい条件、情報を確認する事ができます。
提供:ハウスコム西東京株式会社 明大前店
この物件が気になったら掲載期限まであと5日
GRAN千歳台A棟に条件(家賃・エリア)が近い物件一覧
| 写真 | 家賃 管理費等 | 敷金 礼金 | 間取り 専有面積 | 築年数 | 最寄り駅 所在地 | キープ | 詳細 |
|---|---|---|---|---|---|---|---|
マンション メゾンド・シャンテ(1LDK/1階) | |||||||
![]() | 14.5万円 3,000円 | 14.5万円 29万円 | 1LDK 40.05m2 | 築4年 | 京浜急行電鉄本線 梅屋敷駅(東京) 徒歩6分 京浜急行電鉄本線 京急蒲田駅 徒歩13分 東京都大田区蒲田2丁目 | 詳細を見る | |
アパート SEED SAVE 南蒲田(2DK/2階) | |||||||
![]() | 13.1万円 3,000円 | 13.1万円 13.1万円 | 2DK 39.99m2 | 築3年 | 京浜急行電鉄空港線 糀谷駅 徒歩5分 京浜急行電鉄本線 京急蒲田駅 徒歩15分 東京都大田区南蒲田3丁目 | 詳細を見る | |
マンション 本間ビル(3LDK/4階) | |||||||
![]() | 18万円 5,000円 | 18万円 18万円 | 3LDK 75m2 | 築47年 | 京浜急行電鉄本線 京急蒲田駅 徒歩5分 京浜急行電鉄空港線 糀谷駅 徒歩10分 東京都大田区南蒲田1丁目 | 詳細を見る | |
マンション メゾンドボナール(1DK/4階) | |||||||
![]() | 12万円 3,000円 | 12万円 なし | 1DK 32.48m2 | 築29年 | 京浜東北・根岸線 蒲田駅 徒歩10分 京浜急行電鉄本線 京急蒲田駅 徒歩10分 東京都大田区蒲田3丁目 | 詳細を見る | |
アパート ビレッジひの木B棟(1LDK/2階) | |||||||
![]() | 13.6万円 2,000円 | 13.6万円 なし | 1LDK 39.66m2 | 築31年 | 京急本線 梅屋敷駅(東京) 徒歩7分 京急本線 京急蒲田駅 徒歩9分 JR京浜東北線 蒲田駅 徒歩14分 東京都大田区蒲田 | 詳細を見る | |
マンション 京浜急行電鉄本線 梅屋敷駅(東京) 徒歩4分 築36年(3LDK/2階) | |||||||
![]() | 23万円 7,000円 | 23万円 23万円 | 3LDK 84.68m2 | 築36年 | 京浜急行電鉄本線 梅屋敷駅(東京) 徒歩4分 京浜急行電鉄本線 大森町駅 徒歩12分 東京都大田区大森西6丁目 | 詳細を見る | |
タウンハウス 大田菜園長屋(2LDK) | |||||||
![]() | 15.4万円 5,000円 | 15.4万円 23.1万円 | 2LDK 52.17m2 | 築10年 | 京浜急行電鉄本線 雑色駅 徒歩8分 京浜急行電鉄本線 六郷土手駅 徒歩13分 東京都大田区東六郷3丁目 | 詳細を見る | |
マンション ピュア・ダイジン(1LDK/2階) | |||||||
![]() | 11.7万円 5,000円 | 11.7万円 11.7万円 | 1LDK 42.49m2 | 築14年 | 京浜急行電鉄本線 梅屋敷駅(東京) 徒歩14分 京浜急行電鉄本線 大森町駅 徒歩16分 東京都大田区大森東4丁目 | 詳細を見る | |









