賃貸アパート
GRAN千歳台A棟の賃貸物件情報(1LDK/2階)
| 家賃 | 管理費等 | 敷金 | 礼金 | 間取り | 専有面積 |
|---|---|---|---|---|---|
| 14万円 | 5,000円 | 14万円 | 14万円 | 1LDK | 44.15m2 |
入居決定でお祝い金最大100,000円
Point
まずはお問い合わせ!
不動産会社は街のプロ、あなたに合った物件がきっと見つかります。
提供:三幸ハウス(株)本店(SUUMO経由)

詳細情報 GRAN千歳台A棟
物件紹介
GRAN千歳台A棟は小田急線千歳船橋駅から徒歩12分にあるアパートです。
このお部屋は2階以上に位置しているので、通行人や周囲の住人からの視線が気になりにくく、防犯面でも安心。建物のエントランスはオートロックがついており、インターホンにはTVモニタもついているため、相手の顔を確認してから来客対応することができます。
人気の南向きのお部屋。また、フローリングなのでお掃除もラクラク。キッチンはシステムキッチン仕様になっていますので、お料理好きの方にもぴったり。また、バス・トイレは別で、のんびりお風呂タイムも楽しめるでしょう。
共用部には宅配ボックスが設定されているので、不在の時にも荷物を受け取ることができます。
このお部屋は2階以上に位置しているので、通行人や周囲の住人からの視線が気になりにくく、防犯面でも安心。建物のエントランスはオートロックがついており、インターホンにはTVモニタもついているため、相手の顔を確認してから来客対応することができます。
人気の南向きのお部屋。また、フローリングなのでお掃除もラクラク。キッチンはシステムキッチン仕様になっていますので、お料理好きの方にもぴったり。また、バス・トイレは別で、のんびりお風呂タイムも楽しめるでしょう。
共用部には宅配ボックスが設定されているので、不在の時にも荷物を受け取ることができます。
お金・契約の情報
※「-」と表示されているものは、実際は料金が発生するものもございます。詳細はお問い合わせください。
| 家賃 | 14万円 | 管理費・共益費 | 5,000円 |
|---|---|---|---|
| 敷金 | 14万円 | 礼金 | 14万円 |
| 入居決定でお祝い金最大100,000円 | |||
| 保証金 | - | 償却・敷引 | - |
| 住宅保険料 | - | 更新料 | - |
| 保証会社利用 | 必須 | 保証会社名 | - |
| 保証会社費用 | - | 保証会社備考 | 保証会社利用必 初回契約時:50%、更新時:10,000円、月額:1% |
| 契約形態 | - | 契約期間 | - |
| 入居・引渡期間 | - | 現況 | - |
| 契約備考 | 火災保険料 800円/月額 更新料 1ヶ月 1LDK 二人入居可 普通借家2年 バストイレ別、バルコニー、エアコン、ガスコンロ対応、クロゼット、フローリング、TVインターホン、オートロック、室内洗濯置、システムキッチン、追焚機能浴室、温水洗浄便座、洗面所独立、洗面化粧台、宅配ボックス、対面式キッチン、保証人不要、敷金1ヶ月、二人入居相談、全居室フローリング、エアコン全室、クロゼット2ヶ所、未入居、2駅利用可、南西向き、LDK12畳以上、全居室6畳以上、都市ガス、礼金1ヶ月 入居日:'26年3月上旬 | ||
部屋の情報
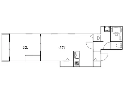
| 間取り | 1LDK | 専有面積 | 44.15m2 |
|---|---|---|---|
| 所在階 / 向き | 2階 / 南西 | バルコニー面積 | - |
| 水道 / ガス | - | ||
| 設備 | バス・トイレ別、2階以上、オートロック、テレビドアホン、宅配ボックス、追い焚き、システムキッチン、エアコン、温水洗浄便座、南向き、バルコニー、フローリング、洗髪洗面化粧台、コンロ:ガス、洗濯機:室内 | ||
| 当社物件ID | 160408871 | ||
建物の情報
| 建物名 | GRAN千歳台A棟 | ||
|---|---|---|---|
| 所在地 | 東京都世田谷区千歳台 | ||
| 交通 | 小田急線 千歳船橋駅 徒歩12分 小田急線 祖師ケ谷大蔵駅 徒歩15分 | ||
| 階数 | 3階建 | 総戸数 | 5戸 |
| 築年月 | 2026年02月 / 築1年 | エレベーター | - |
| 駐車場 | なし | バイク置き場 | - |
| 駐輪場 | - | 管理人/管理会社 | - |
| 建物種別 | アパート | 建物構造 | 木造 |
この部屋の取扱い不動産会社
| 会社名 | 三幸ハウス(株)本店(SUUMO経由) | ||
|---|---|---|---|
| 所在地 | 東京都世田谷区大原1-27-4 三幸ビル | 交通 | - |
| 営業時間 | AM9:15~PM6:00 | 定休日 | 水曜日 |
| 免許番号 | 東京都知事43504 | 取引態様 | 代理 |
| 不動産会社管理番号 | 100488560707 | 当社管理番号 | 89 |
| 所属団体 | (公社)全日本不動産協会東京都本部会員 | ||
| 公正取引協議会 | (公社)首都圏不動産公正取引協議会加盟 | ||
| 取扱い物件情報 | 物件詳細へ | ||
※各種情報と現状に差異がある場合は、現状優先となります。問い合わせをすることで、より詳しい条件、情報を確認する事ができます。
提供:三幸ハウス(株)本店(SUUMO経由)
この物件が気になったら掲載期限まであと11日
GRAN千歳台A棟に条件(家賃・エリア)が近い物件一覧
| 写真 | 家賃 管理費等 | 敷金 礼金 | 間取り 専有面積 | 築年数 | 最寄り駅 所在地 | キープ | 詳細 |
|---|---|---|---|---|---|---|---|
マンション メゾンド・シャンテ(1LDK/1階) | |||||||
![]() | 14.5万円 3,000円 | 14.5万円 29万円 | 1LDK 40.05m2 | 築4年 | 京浜急行電鉄本線 梅屋敷駅(東京) 徒歩6分 京浜急行電鉄本線 京急蒲田駅 徒歩13分 東京都大田区蒲田2丁目 | 詳細を見る | |
アパート ビレッジひの木B棟(1LDK/2階) | |||||||
![]() | 13.2万円 2,000円 | 13.2万円 13.2万円 | 1LDK 39.66m2 | 築31年 | 京浜急行電鉄本線 梅屋敷駅(東京) 徒歩7分 京浜急行電鉄本線 京急蒲田駅 徒歩9分 東京都大田区蒲田2丁目 | 詳細を見る | |
一戸建て 京浜急行電鉄本線 梅屋敷駅(東京) 徒歩9分 築25年(3LDK) | |||||||
![]() | 20万円 なし | 20万円 20万円 | 3LDK 80.82m2 | 築25年 | 京浜急行電鉄本線 梅屋敷駅(東京) 徒歩9分 京浜東北・根岸線 蒲田駅 徒歩10分 東京都大田区大森西7丁目 | 詳細を見る | |
マンション サリーレ・タカハタ(1K/2階) | |||||||
![]() | 8.5万円 4,000円 | 8.5万円 なし | 1K 24.41m2 | 築19年 | 京浜急行電鉄本線 六郷土手駅 徒歩11分 京浜急行電鉄本線 雑色駅 徒歩12分 東京都大田区西六郷3丁目 | 詳細を見る | |
アパート タカマルハイム(1LDK/1階) | |||||||
![]() | 11.5万円 3,000円 | 11.5万円 11.5万円 | 1LDK 34m2 | 築11年 | 東急多摩川線 武蔵新田駅 徒歩8分 東急多摩川線 下丸子駅 徒歩9分 東京都大田区下丸子2丁目 | 詳細を見る | |
マンション TSK蒲田フラワーマンション(1LDK/8階) | |||||||
![]() | 11.2万円 8,000円 | 11.2万円 11.2万円 | 1LDK 41m2 | 築47年 | 京浜東北・根岸線 蒲田駅 徒歩12分 京浜急行電鉄本線 梅屋敷駅(東京) 徒歩12分 東京都大田区蒲田1丁目 | 詳細を見る | |
タウンハウス 大田菜園長屋(2LDK) | |||||||
![]() | 15.9万円 5,000円 | 15.9万円 7.95万円 | 2LDK 52.17m2 | 築10年 | 京浜急行電鉄本線 雑色駅 徒歩8分 京浜急行電鉄本線 六郷土手駅 徒歩13分 東京都大田区東六郷3丁目 | 詳細を見る | |
マンション SEED JUST B-BASE Ⅱ(1LDK/3階) | |||||||
![]() | 8.8万円 1.5万円 | 8.8万円 8.8万円 | 1LDK 23.07m2 | 築1年 | 東京モノレール羽田 昭和島駅 徒歩11分 京浜急行電鉄本線 梅屋敷駅(東京) 徒歩19分 東京都大田区大森南4丁目 | 詳細を見る | |









